Города, которые относятся к категории «ближайшее Подмосковье» расположены примерно в 40 километрах от МКАД, есть среди них и город Люберцы, в котором активно ведется жилищное строительство. Как вам понравится, если до границы с Москвой будет не 40 километров, а 40 метров? Такой вариант в Люберцах есть, это жилой комплекс «1-й Лермонтовский» от группы компаний ФСК. На объекте уже сдано в эксплуатацию несколько корпусов и там есть на что посмотреть.
Как проехать
Строительство ведется по адресу: Московская область, городской округ Люберцы, проектируемый проезд № 4037. Время в пути на автомобиле от съезда на 9 километре МКАД по Лермонтовскому и Октябрьскому проспектам составит около 12 минут (расстояние 7 километров).
Из структуры общественного транспорта ближе всего к новостройке железнодорожная платформа Люберцы – 1 Казанского и Рязанского направлений Московской железной дороги. От станции до ЖК всего 1,2 километра по прямой.
А от метро «Некрасовка» придется 11 остановок ехать на автобусе (с учетом проблемного трафика это займет не менее получаса).
Что строят
На земельном участке площадью 17 гектаров построят пять многосекционных корпусов комфорт-класса высотой22 - 25 этажей. Строительство ведется в три этапа по индустриальной (то есть, панельной) технологии и будет закончено в 2024 году.
• 1 очередь – корпуса №№ 1 и 2
• 2 очередь - корпуса №№ 3, 4 и школа
• 3 очередь - корпус № 5 и детский сад
Класс энергоэффективности зданий В (высокий) и C+ (высочайший). Также запроектировано строительство школы на 1500 мест, детского сада на 560 мест и двух медицинских амбулаторных центров. Эти учреждения передадут в ведение муниципалитета.
Фасады выше первого этажа облицуют керамической плиткой «под кирпич» в теплой цветовой гамме, а предназначенные для коммерческой деятельности первые этажи оснастят навесным вентилируемым фасадом. В каждой квартире запроектирована лоджия и корзина для кондиционера. Архитектурой корпуса № 5 занималась испанская компания с мировым именем.
Подъезды сквозные на уровне земли со службой консъержей, помещениями для колясок и местами для мойки лап домашних животных.
В дизайнерском оформлении лобби, как и в оформлении дворовой территории, отражены различные периоды жизни великого русского поэта Михаила Лермонтова. Тарханы, Санкт-Петербург, Кавказ – об этих местах напоминают барельефы, мозаики и рисунки.
Один двор посвящен стихотворению «Парус», другой – стихотворению «Тучи». Для максимального эффекта невидимого присутствия поэта на территории туда даже привезли валуны со склонов Эльбруса.
Двор реализован как пространство без машин, вход на территорию двора, как и в подъезды по электронному ключу. По периметру ограждений установят видеонаблюдение.
В каждом корпусе от 7 до 9 секций, в каждой секции на этаже от 4 до 7 квартир. Связь между этажами (подземными тоже) осуществляют скоростные пассажирские и грузовые лифты, по два на секцию.
На двух подземных этажах разместится паркинг и кладовые для хранения личных вещей. Площадь машиномест от 14,3 до 26,3 кв.м. кладовых от 2,3 до 13,3 кв.м.
Квартиры продаются с отделкой в двух вариантах: предчистовая (вайт бокс) и чистовая. Выбор отделки возможен на этапе заключения договора, но данная опция зависит от секции. Одна секции – один вид отделки. Высота потолков в корпусах №№ 1 – 4 до 2,78 метра, в корпусе №5до 2,84 метра, размер окон увеличенный.
Предчистовая отделка предусматривает установленную металлическую дверь, деревянные межкомнатные двери, финишное шпаклевание стен и потолка, бетонную стяжку пола, установленные в оконных проемах оконные конструкции из профиля ПВХ (двойные в комнатах иодинарные на балконах), металлические системы отопления с нижней разводкой, уложенную керамическую плитку и смонтированные сантехнические приборы в санузлах, разведенную по квартире электрику с установкой розеток и выключателей.
Чистовая отделка выполняется в четырех стилях:«темный шоколад», «белый шоколад», «меренга», «трюфель». Чистовая отделка предусматривает установку металлической входной двери и деревянных межкомнатных дверей, укладку ламината и керамической плитки на полу, установку полного набора сантехники в санузле, поклейку обоев, установку плинтусов, разводку электрики с установкой розеток, выключателей, точечных светильников, монтаж натяжного потолка.
В корпусах №№ 3, 4 и 5 застройщик смонтирует систему «Умная квартира», которая позволит владельцу контролировать и оптимизировать расход ресурсов, контролировать протечки, а также выходить на связь с управляющей компанией «Группа КОМФОРТ».
В таблице ниже приведены некоторые технические данные корпусов.
Таблица 1.
|
№№ корп. |
Кол-во этажей |
Общая площ. застр. (кв. м.) |
Кол.секц.
|
Общее кол-во квартир/ машином. /кладов. |
Дата выдачи разр. на стр-во |
Окончание срока действия разр. на стр-во |
Предполагаемая дата введения в эксплуатац. |
|
1.1 |
25+2 подз |
3384 |
7 |
960/259/255 |
17.08.2020 г. |
17.04.2023 г. |
Сдан в эксплуатацию |
|
2.1 |
25+2 подз |
3384 |
7 |
960/259/255 |
17.08.2020 г. |
17.04.2023 г. |
Сдан в эксплуатацию |
|
3.1 |
24-26-27+2 подз |
8691 |
9 |
911/292 /281 |
31.05.2021 г. |
31.01.2024 г. |
3 квартал 2023 г. |
|
4.1 |
22-24+2 подз |
8952 |
9 |
919/293/288 |
31.05.2021 |
29.02.2024 |
3 квартал 2023 г. |
|
5.1 |
22-25+2 подз |
3571 |
7 |
981/259/174 |
22.12.2021 |
06.08.2024 |
2 квартал 2024 г. |
Данные по корпусам 1.2, 2.2, 3.2, 4.2 и 5.2 не приводятся, поскольку это не жилые корпуса, а автомобильные парковки.
В настоящее время на корпусе № 3.1 ведутся работы по устройству кровли и монтажу внутренних систем жизнеобеспечения, на корпусе № 4.1 ведутся работы по монтажу 20 этажа, на корпусе № 5.1ведутся работы по монтажу 20 этажа, на объекте «школа» ведутся работы по бетонированию 2 и 3 этажей.
Планируемые сроки передачи ключей собственникам:
• Корпус 3.1 - первоначальная дата 31.03.2024 г., планируемая дата 30.06.2024 г.
• Корпус 4.1 - 31.03.2024 г.
• Корпус 5.1 - 31.12.2024 г.
Кто строит
Строительство на земельных участках №№ 50:22:0010110:1680, 50:22:0010110:1682, 50:22:0010110:1684, 50:22:0010110:1685 и 50:22:0010110:1686 ведет ООО «Специализированный застройщик «Юг Столицы», созданное в 2018 году. Застройщик также имеет коммерческое обозначение «ДСК-1-Лермонтовский».
За три года, предшествующие подаче проектной декларации застройщик вел работы на корпусах №№ 1 и 2 данного объекта. Земельные участки находятся в собственности у застройщика
Территория строительства ограничена:
• с севера – территорией для размещения подземного паркинга
• с юга – территорией для размещения жилого корпуса
• с востока – административной границей между г. Люберцы и поселком Некрасовка
• с запада – территорией для размещения общеобразовательной школы и детской дошкольной организации
Все земельные участки расположены в пределах приаэродромной территории аэродромов «Чкаловский» и "Раменское".
Учредитель застройщика ООО «ФСК» («Финансово-строительная корпорация застройщиков»). ФСК – крупнейший строительный холдинг России, одним из подразделений которого с 2016 года является легендарная строительная компания «Домостроительный комбинат №1». Вот что такое «ФСК»:
Проекты комфорт-класса реализуются под брендом «ДСК», а проекты бизнес-класса под брендом «ФСК».
Тем не менее, на сайте контролирующей организации можно найти сообщения о «провалах» девелопера.
На строительстве ЖК «1-й Лермонтовский» также зафиксирован перенос на три месяца даты передачи ключей собственникам.
Генеральным подрядчиком строительства является ООО "Первый Домостроительный комбинат».
Сайт
Информация о новостройке размещена на сайте https://www.dsk1.ru/1-lermontovskij.
Здесь мы находим описание преимуществ проекта, его расположения, внутренней и внешней инфраструктуры, транспортной доступности и уровню комфорта зданий.
Есть место для механизма поиска квартир по параметрам, описания хода строительства через публикацию развернутых фотогалерей, размещен генплан комплекса и документация на него.
Достаточно полно представлен внешний вид будущих квартир с разными видами отделки.
Дополнительную информацию можно получить на «параллельных» сайтах новостройки и на сайте наш.дом.рф.
https://fsk.ru/1-lermontovskij
https://lermontovskiy.dsk1.ru/
https://наш.дом.рф/сервисы/каталог-новостроек/объект/40687
Офис продаж
Офис продаж расположен рядом с новостройкой. Это небольшое двухэтажное здание со стеклянным фасадом.
На первом этаже расположились зона ресепшен, зона ожидания для взрослых и детей, чайно-кофейный уголок.
Здесь же установлен макет новостройки.
На втором этаже выгорожено шесть рабочих мест для специалистов по продажам. Это хорошо подготовленные эксперты в области недвижимости, их знания и опыт призваны помочь покупателю выбрать квартиру с учетом всех обстоятельств. В ходе разговора менеджер выводит на большой телевизионный экран презентацию, использует печатные материалы. Главный вопрос менеджера – чего вы хотите? Ответом на этот вопрос в идеале может стать составление договора о покупке квартиры.
При необходимости офис продаж может за счет заведения организовать доставку клиентов на такси.
Сколько стоит
Таблица 2.
|
Тип квартиры |
Площадь (кв. м) |
Стоимость квартиры (руб.) |
Стоимость одного квадратного метра (руб.) |
|
Студия |
24,2 – 28,1 |
7 037 360 – 6 904 170 |
290 800-245 700 |
|
Однокомнатная |
33,6 – 45,0 |
8 104 320 – 10 516 500 |
241 200-233 700 |
|
Двухкомнатная |
41,8 – 65,7 |
8 368 360 – 13 573620 |
200 200-206 600 |
|
Трехкомнатная |
62,5 – 86,8 |
12 193 750 – 16 821 840 |
195 100-193 800 |
|
Четырехкомнатная |
82,7 – 109,7 |
16 697 130 – 17 986 180 |
201 900-163 958 |
Средняя стоимость квадратного метра в новостройке составляет 217 296 рублей. А в апреле 2021 года этот показатель равнялся 145 704 рублям.
В таблице ниже для сравнения приведены цены на двухкомнатные квартиры комфорт-класса с отделкой и без в строящихся домах в Подмосковье.
Таблица 3.
|
Название ЖК |
Локация |
Площадь квартир (кв. м.) |
Стоимость квартир (руб.) |
Стоимость одного кв.м. (руб.) |
Отделка |
Срок сдачи |
|
Г. Люберцы |
45,0 |
10 085 670 |
224 126 |
Есть |
1 квартал 2024 г. |
|
|
«1-й Лермонтовский» |
Г. Люберцы |
65,7 |
13 573 620 |
206 600 |
Есть |
3 квартал 2023 г. |
|
Г. Люберцы |
36,0 |
6 604 500 |
183 458 |
Нет |
3 квартал 2023 г. |
|
|
«Люберцы» |
Г. Люберцы |
34,51 |
6 171 979 |
178 846 |
Есть |
3 квартал 2023 г. |
|
Г. Котельники |
38,0 |
6 764 000 |
178 000 |
Есть |
1 квартал 2024 г. |
|
|
Г. Люберцы |
53,7 |
9 377 602 |
174 629 |
Нет |
2 квартал 2023 г. |
|
|
Г. Люберцы |
45,9 |
7 788 890 |
169 693 |
Нет |
4 квартал 2023 г. |
|
|
Г. Балашиха |
36,69 |
5 932 039 |
161 680 |
Нет |
1 квартал 2023 г. |
|
|
«Пехра» |
Г. Балашиха |
54,37 |
6 557 762 |
120 614 |
Нет |
1 квартал 2024 г. |
По стоимости квадратного метра «лермонтовцы» занимают одно из первых мест.
Планировки
На продажу выставлены квартиры во всех корпусах жилого комплекса площадью от 24 до 109 кв.м. В ассортименте квартиры-студии, одно-, двух-, трех и четырехкомнатные квартиры классической и евро планировки. Можно найти то, что нравится:
• с двумя и тремя лоджиями
• с увеличенным размером окон
• с гардеробной
• с окном в ванной
• с двумя санузлами
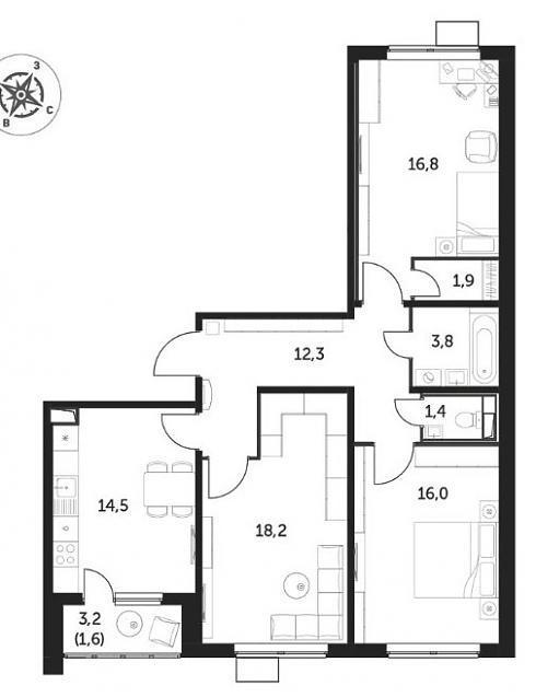
План 5 этажа секции 7 корпуса 3.1.
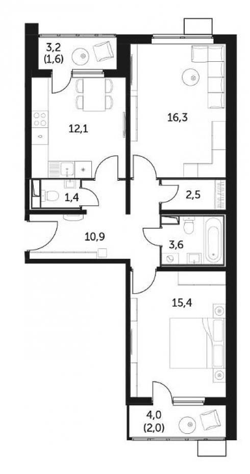
План 9 этажа секции 3 корпуса 1.1.
План 11 этажа секции 6 корпуса 5.1.
План 13 этажа секции 7 корпуса 3.1.
План 21 этажа секции 8 корпуса 4.1.
Планировка студии 24,2
Планировка студии 27,0
Планировка студии 28,1
Планировка студии включает в себя входную зону площадью от 2,7 до 4,0 кв.м., совмещенный санузел площадью от 3,0 до 3,5 кв.м. и универсальное помещение площадью от 18,6 до 19,8 кв.м. А также лоджия площадью от 2,5 до 5,0 кв.м. и в некоторых вариантах гардеробная площадью 1,9 кв.м. Иногда студии лишены входной зоны – вход сразу на кухню, иногда между кухней и комнатой сооружены незамкнутые стены.
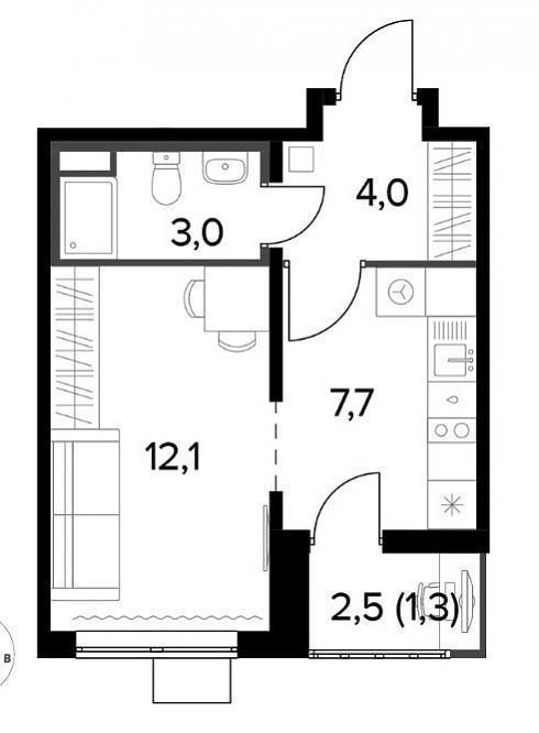
Планировка однокомнатной квартиры 33,6
Планировка однокомнатной квартиры 36,1
Планировка однокомнатной квартиры 45,0
Однокомнатные квартиры располагают входной зоной площадью от 3,5 до 7,1 кв.м., совмещенным или раздельным санузлом с площадью помещений от 1,4 до 3,6 кв.м., кухней площадью от 10,3 до 12,3 кв.м., спальней площадью от 14,1 до 18,6 кв.м. А также лоджией площадью от 3,2 до 3,4 кв.м. и в некоторых случаях гардеробной площадью 2,0 кв.м. Расположение комнат одностороннее и распашное, в некоторых помещениях два окна и встречается окно в ванной.
Планировка двухкомнатной квартиры 41,8
Планировка двухкомнатной квартиры 52,5
Планировка двухкомнатной квартиры 65,7
Двухкомнатные квартиры спроектированы с входной зоной площадью от 6,6 до 10,9 кв.м., раздельным санузлом с площадью помещений от 1,2 до 3,6 кв.м., кухней площадью от 10,6 до 12,1 кв.м. в класссическом варианте и кухней-гостиной площадью 14,7 кв.м.в евро варианте. Список дополняет одна или две спальни площадью от 9,8 до 16,3 кв.м., одна или две лоджии площадью от 3,2 до 4,2 кв.м., гардеробная площадью от 2,1 до 2,5 кв.м. Расположение комнат одностороннее, в некоторых помещениях по два окна.
Планировка трехкомнатной квартиры 62,5
Планировка трехкомнатной квартиры 75,3
Планировка трехкомнатной квартиры 86,8
В трехкомнатных квартирах обнаруживаем входную зону площадью от 7,1 до 13,1 кв.м., раздельный санузел с площадью помещений от 1,4 до 3,8 кв.м., кухню площадью от 8,6 до 14,5 кв.м. и три спальни площадью от 11,2 до 18,2 кв.м. Картину дополняют лоджии площадью от 3,2 до 3,6 кв.м. и в некоторых случаях гардеробная площадью 1,9 кв.м. Расположение комнат распашное, в некоторых комнатах по два окна, встречается ванная комната с окном.
Планировка четырехкомнатной квартиры 82,7
Планировка четырехкомнатной квартиры 91,3
Планировка четырехкомнатной квартиры 109,7
Планировка четырехкомнатных квартир предусматривает входную зону площадью от 12,0 до 13,9 кв.м., два или три санузла площадью помещений от 1,4 до 3,6 кв.м., кухню площадью от 12,2 до 15,7 в классическом варианте и кухню-гостиную прощадью 18,7 кв.м. в евро-варианте. Три или четыре спальни площадью от 11,0 до 29,2 кв.м., лоджию площадью от 3,3 до 3,5 кв.м., гардеробную площадью от 1,5 до 2,2 кв.м. Расположение комнат распашное, в некоторых помещениях запроектировано по два окна.
Как купить
Квартиры продаются в соответствии с федеральным законом № 214-ФЗ. Покупатель заключает с застройщиком договор долевого участия, вносит необходимые средства сначала на аккредитивный счет в любом банке, а затем на счет эскроу (что в переводе с английского означает условное депонирование) обязательно в Сбербанке.
Оформление сделки и ее регистрация в госорганах проходит за счет застройщика. Можно забронировать выбранную квартиру на 10 календарных дней за 15 000 рублей, которые входят в стоимость. Но если сделка расстроится, деньги останутся у продавца.
Можно договариваться о бесплатной рассрочке на том условии, что покупатель сначала внесет 30% стоимости квартиры, а за 4 месяца до ввода дома в эксплуатацию внесет остальное. Но тогда он потеряет возможность получить скидку в полном размере, которая может достигать 14%.
Через кредитную службу застройщика можно оформить ипотечный кредит, это будет удобно и выгодно для покупателя.
Инфраструктура
Инфраструктура в районе новостройки насыщена до предела, ведь московская Некрасовкаи Красная Горка в Люберцах - это обжитые густонаселенные районы.
Две школы, три детских сада, пять поликлиник, десятки торговых центров, включая те, что расположены в районе станции Люберцы – 1 – все это в шаговой доступности.
Не говоря уже об инфраструктурных объектах, которые будут построены непосредственно на территории ЖК.
Транспортная доступность тоже высока. Пусть станция метро расположена совсем не рядом, зато близко станция железной дороги, которая уже в 2023 году войдет в состав МЦД-3. Поезда легкого метро в часы пик будут курсировать каждые 5 минут и очевидно составят серьезную конкуренцию метрополитену.
На автомобиле легко выбраться на МКАД по Лермонтовскому проспекту и Новорязанскому шоссе.
Рядом лесопарк и православный храм Богоматери Воспитание.
Но не все благополучно в плане экологии. От ЖК до крупнейших в Европе Люберецких очистных сооружений всего полтора километра. Несмотря на перманентную модернизацию технологических процессов, предприятие создает проблемы для местных жителей. Об этом сигнализируют посты в Интернете.
Можно также обратить внимание на многоэтажного соседа – ЖК «Облако 2.0», который строится буквально в двух шагах от нашего объекта. То есть, население территории вырастет в разы, будет ли это способствовать комфорту проживания?
Заключение
Главным достоинством новостройки является ее близость к Москве и наличие развитой инфраструктуры обжитых городских районов. Можно также включить в список достоинств хорошую транспортную доступность, имея в виду прежде всего железнодорожный транспорт. Пожалуй, на чашу весов со знаком плюс можно положить и ценовые характеристики квартир.
К слабым местам отнесем некоторую экологическую и демографическую напряженность, вызванную близостью очистных сооружений многоэтажного жилого комплекса.
Автор: Андрей Петров
Специально для Квартирного контроля

Обсуждение ЖК «1-й Лермонтовский»: на границе со столицей