Поиск
Например:Бунинские луга
Регион
 Квартирный контрольМосква
 Квартирный контрольМосква
 Квартирный контрольНовая Москва
 Квартирный контрольПодмосковье
Округ, район, метро
Расположение
Количество комнат
Студия
1
2
3
4+
Стоимость
домлн.
Все параметры
Показать все новостройки
+Сбросить все фильтры

Квартирный контрольЖК "Новобулатниково"

Объект сдан. Всё распродано.
Последняя цена:
Застройщик АСК "Фриз"АСК "Фриз"
8 (499) 348-17-29
Московская областьЛенинский Г/О


до МКАД: 2 км.
Класс дома: Эконом-класс
Технология: Монолит
 Квартирный контроль
Обновлено: 22.04.2021
Размер шрифта-+

Что Вам нужно знать о ЖК "Новобулатниково"

КАК ЭТО БЫЛО

История строительства ЖК «Новобулатниково» в поселке Измайлово сельского поселения Булатниковское Ленинского района МО началась в уже далеком 2010 году, когда его Застройщик, ООО «АСК «ФРИЗ» приняло участие в аукционе по продаже прав на заключение договора о развитии застроенной территории по этому адресу.

08.07.2014 года Компания получила разрешение на строительство, подразумевавшее начало строительно-монтажных работ в августе 2014 года. В проектной декларации от 14.07.2014 года говорилось о том, что срок получения разрешения на ввод в эксплуатацию первого из трех запланированных в Комплексе корпусов предполагается во втором квартале 2016 года. Но после первой декларации появилась вторая, третья и т.д. В редакции проектной декларации от 24.4.2017 года, прошедшей четырнадцать «!!!» изменений, окончание строительства приходилось уже на IV квартал 2017 года. С самого начала работа на стройплощадке то оживлялась, то замирала, впадая в состояние близкое к заморозке (может быть, Застройщику стоит поменять свое название?). В начале 2017 года здесь снова было замечено движение, в апреле первый корпус выглядел таким образом:

Тем не менее, уверенности в том, что 9-этажный монолитно-кирпичный дом с подземным паркингом на 100 автомобилей будет сдан в указанные в апрельской декларации сроки, у нас нет, тем более, что в офисе продаж уже озвучивалась новая дата – II квартал 2018 года. В октябре 2017 года эту дату закрепили документально в очередной редакции проектной декларации. Однако, весной 2018 года динамика строительства четко давала понять - эти сроки промежуточные. Февральское решение Московского Арбитражного Суда об прекращение дела о Банкротсве Застройщика позволило увидеть свет новой череде изменений в проетную декларацию. Последнее изменение сайта обещало сдать объект в IV квартале 2020 года, РВЭ было получено 28.01.2021.

КВАРТИРЫ

Застройщики порой пользуются особенностями монолитного домостроения по части всевозможных внутренних корректировок. Прелесть монолитов, строящихся по индивидуальным проектам, заключается, в частности, в том, что Застройщик может по своему усмотрению с учетом конъюнктуры рынка менять в них количество и соотношение квартир, что и произошло в первом корпусе данного ЖК. 

Если в самой первой проектной декларации 2014 года выпуска здесь должно было быть 195 квартир, из них 109 однокомнатных, 34 двухкомнатные и 52 трехкомнатные квартиры, то в версии апрельской декларации 2017 года квартир в Комплексе стало уже 216, из которых однокомнатных было 135, двухкомнатных 66, а трехкомнатных всего 15. По общему правилу, квартиры продаются без отделки и даже без обычной в таких случаях трассировки, обозначающей расположение стен, согласно проекту. Тем не менее, в разделе «ход строительства» на официальном сайте ЖК «Новобулатниково» Вы можете увидеть кое-где в квартирах выложенные из пеноблоков стены. Как нам объяснили в офисе продаж Комплекса, это было сделано «по просьбе людей, купивших здесь квартиры ранее». Если сроки и далее будут соблюдаться так, как это происходит здесь уже не первый год, покупатели будут вправе требовать Застройщика сделать в квартирах, как минимум, евроремонт. Что до самих квартир, то надо признать, что они здесь очень даже хороши, особенно, учитывая их метражи. Площадь 44 кв. м в однокомнатной квартире для данного ЖК является едва ли не стартовой:

Возможно, в 56-метровой однокомнатной квартире многовато места выделено под коридор, а форма 22-метровой гостиной понравится не всем, но площадь все равно останется впечатляющей:

Планировка такой 54-метровой квартиры показалась нам более рациональной, правда в ее метраж оказались включены две лоджии безо всяких коэффициентов:

Непонятно, каким боком эта квартира попала в список однокомнатных, но она там присутствует:

70 кв. м в этой «линейной» двухкомнатной квартире распределены следующим образом:

Двушка-великанша – 86 квадратов, включающих в себя две лоджии в «распашном» исполнении:

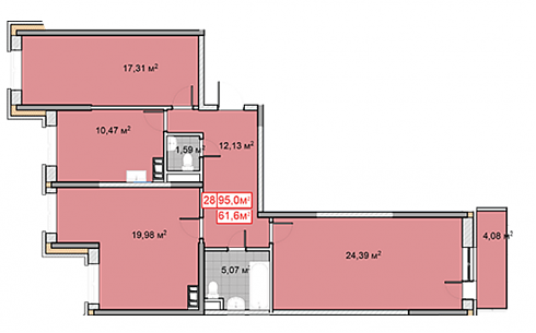
Так выглядит 95-метровая трехкомнатная квартира, планировка которой создана для тех людей, которые не склонны проводить много времени за приготовлением пищи:

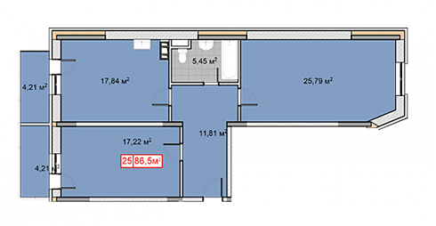
Эта 102-метровая трехкомнатная квартира предназначена только людям творческим:

Приз за самую грамотную планировку заслуживает такая трехкомнатная квартира с двумя большими санузлами и парой подсобных помещений:

ПОКУПКА КВАРТИРЫ

Офис продаж ЖК находится в поселке Измайлово, д. 14 недалеко от его строительной площадки. Продажи квартир осуществляются по ДДУ в соответствии с ФЗ 214. Забронировать квартиры сроком до семи дней Вы сможете бесплатно. В случае, если рассмотрение Вашей заявки на ипотеку затягивается, бронь будет также бесплатно продлена. Комплекс аккредитован Банком Возрождение. Зарегистрировать ДДУ Вы сможете как самостоятельно, так и воспользовавшись услугами ООО «АСК «ФРИЗ», заплатив в этом случае 35000 рублей. На сайте Комплекса ежемесячно обновляется информация об акциях, стимулирующих скорое принятие решения о покупке здесь квартиры. Если суммировать все возможные скидки, все это покажется весьма заманчивым. Учитывая, что стоимость машиноместа здесь просто запредельная для данного местоположения (от 750000 рублей за 12,5 кв. м), от предложения получить его в подарок или купить с 50% дисконтом будет трудно отказаться. Беспроцентная рассрочка тоже многим придется кстати.

ЗА
  • выгодное расположение
  • большие квартиры
  • подземный паркинг
ПРОТИВ
  • затягивание сроков строительства
РЕЗЮМЕ

Акции и скидки, это, конечно, хорошо и просто. А вот чтобы вернуть доверие людей, Застройщику придется сильно постараться – в конце концов, недостатка Новостроек в этом районе нет, и конкуренция присутствует серьезная, в трех-четырех км отсюда свои ЖК строят ПИКПСНГранельУрбан Групп и другие уважаемые Компании. Сам по себе Комплекс далеко не плох, да вот только этого мало – заявленные сроки приличные Застройщики соблюдать обязаны. Так что, по нашему мнению, для данного Комплекса наступает час-икс, еще один-два переноса, и пиши-пропало – черта с два здесь кто-нибудь что-нибудь купит.

Новостройки рядом с ЖК "Новобулатниково"

Квартирный контроль
  • Студия 
    Продано
    1 комн. 
    Продано
    2 комн. 
    Продано
    3 комн. 
    Продано

ЖК "Видный город"

Всего 24 корпуса. Построено 5. В работе 19 корпусов: 2020, 2021. Продажи не начались.
2.94 км
ЖК "Видный город" Квартирный контроль
Студия
Уточняется
1-комн
Уточняется
2-комн
Уточняется
3-комн
Уточняется
4-комн
Уточняется
  • Студия 
    Продано
    1 комн. 
    Продано
    2 комн. 
    Продано
    3 комн. 
    Продано
Класс жилья
Комфорт-класс

Компания

ЖК "Аннино Парк"

Объект сдан. Всё распродано.
3.29 км
ЖК "Аннино Парк" Квартирный контроль
  • Студия 
    Продано
    1 комн. 
    Продано
    2 комн. 
    Продано
    3 комн. 
    Продано
    4 комн. 
    Продано
Ближайшее метро
Класс жилья
Комфорт-класс

Компания

ЖК "Южная Битца"

Всего 11 корпусов. Построено 10. В работе 1 корпус: 2026. 
2.86 км
ЖК "Южная Битца" Квартирный контроль
  • Студия  от
    6 073 267 ₽
    от  25 м2
    1 комн.  от
    7 183 386 ₽
    от  35,9 м2
    2 комн.  от
    9 444 199 ₽
    от  42,8 м2
    3 комн.  от
    11 192 636 ₽
    от  70,3 м2
    4 комн.  от
    16 716 604 ₽
    от  84,7 м2
Класс жилья
Комфорт-класс

Компания

ЖК "Живописный"

В работе 4 корпуса: 2023, 2024. 
0.93 км
ЖК "Живописный" Квартирный контроль
  • Студия  от
    4 975 757 ₽
    от  27,9 м2
    1 комн.  от
    6 333 545 ₽
    от  36,4 м2
    2 комн.  от
    7 524 003 ₽
    от  43,6 м2
    3 комн.  от
    11 320 547 ₽
    от  66,1 м2
Класс жилья
Комфорт-класс

Компания

Апарт-комплекс "Residence 15" (Резиденс 15)

В работе 3 корпуса: 2024. 
3.32 км
Апарт-комплекс "Residence 15" (Резиденс 15) Квартирный контроль
  • Студия  от
    3 900 000 ₽
    от  28 м2
    1 комн.  от
    5 400 000 ₽
    от  43 м2
    2 комн.  от
    10 100 000 ₽
    от  75 м2
    3 комн.  от
    8 032 950 ₽
    от  80 м2

ЖК "1-й Южный" (Первый Южный)

В работе 5 корпусов: 2025 - 2027. 
2.77 км
ЖК "1-й Южный" (Первый Южный) Квартирный контроль
  • Студия 
    Продано
    1 комн.  от
    6 741 075 ₽
    от  33,8 м2
    2 комн.  от
    11 079 120 ₽
    от  52,3 м2
    3 комн.  от
    13 060 186 ₽
    от  62,8 м2
Класс жилья
Комфорт-класс

Компания

ЖК "Ютаново"

Всего 7 корпусов. Построено 4. В работе 3 корпуса: 2025. 
3.16 км
ЖК "Ютаново" Квартирный контроль
  • Студия  от
    8 179 946 ₽
    от  19,9 м2
    1 комн.  от
    10 350 640 ₽
    от  32,3 м2
    2 комн.  от
    13 618 867 ₽
    от  42,34 м2
    3 комн.  от
    18 987 691 ₽
    от  72,08 м2
Ближайшее метро
Класс жилья
Комфорт-класс

Компания

ЖК "Новобулатниково" на карте

Адрес: Московская область, Ленинский район, посёлок Измайлово, улица Турова
Квартирный контроль
Проверено 30-11-2022

Цены в ЖК "Новобулатниково"

1-комнатная
Уточнить наличие
54,1-54,1 м2
Продано

1-комнатные Квартиры 54,1-54,1 м2

Месяц / Год Площадь Стоимость Цена м2 Динамика цены м2
Апрель 2020 54,1-54,1 м2 4 350 000 - 4 500 000  ₽ ~81 944  ₽
Март 2020 54,1-54,1 м2 4 350 000 - 4 500 000  ₽ ~81 944  ₽  2.11%
Февраль 2020 56,1-56,1 м2 4 488 000 - 4 500 000  ₽ ~80 250  ₽
Январь 2020 56,1-56,1 м2 4 488 000 - 4 500 000  ₽ ~80 250  ₽
Декабрь 2019 56,1-56,1 м2 4 488 000 - 4 500 000  ₽ ~80 250  ₽
Ноябрь 2019 56,1-56,1 м2 4 488 000 - 4 500 000  ₽ ~80 250  ₽  21.83%
Август 2018 48-61,6 м2 3 133 000 - 4 047 000  ₽ ~65 872  ₽
Июль 2018 48-61,6 м2 3 133 000 - 4 047 000  ₽ ~65 872  ₽
Июнь 2018 48-61,6 м2 3 133 000 - 4 047 000  ₽ ~65 872  ₽  -14.08%
Май 2018 40-50 м2 2 900 000 - 4 000 000  ₽ ~76 667  ₽
Апрель 2018 40-50 м2 2 900 000 - 4 000 000  ₽ ~76 667  ₽
Март 2018 40-50 м2 2 900 000 - 4 000 000  ₽ ~76 667  ₽
Февраль 2018 40-50 м2 2 900 000 - 4 000 000  ₽ ~76 667  ₽  17.16%
Январь 2018 48-61 м2 3 133 000 - 4 000 000  ₽ ~65 440  ₽
Декабрь 2017 48-61 м2 3 133 000 - 4 000 000  ₽ ~65 440  ₽  -1.37%
Ноябрь 2017 43,4-61,8 м2 2 900 000 - 4 000 000  ₽ ~66 346  ₽
Октябрь 2017 43,4-61,8 м2 2 900 000 - 4 000 000  ₽ ~66 346  ₽
Сентябрь 2017 43,4-61,8 м2 2 900 000 - 4 000 000  ₽ ~66 346  ₽
Сентябрь 2017 43,4-61,8 м2 2 900 000 - 4 000 000  ₽ ~66 346  ₽  0.77%
Август 2017 43,4-61,8 м2 2 847 000 - 4 000 000  ₽ ~65 837  ₽  -14.68%
Июль 2017 41,4-62 м2 3 187 800 - 4 760 000  ₽ ~77 163  ₽
Июнь 2017 41,4-62 м2 3 187 800 - 4 760 000  ₽ ~77 163  ₽
Май 2017 41,4-62 м2 3 187 800 - 4 760 000  ₽ ~77 163  ₽  -2.83%
Апрель 2017 41-61,6 м2 3 100 000 - 5 000 000  ₽ ~79 412  ₽
Март 2017 41-61,6 м2 3 100 000 - 5 000 000  ₽ ~79 412  ₽  9.83%
Февраль 2017 41,5-61,8 м2 2 800 000 - 4 575 000  ₽ ~72 304  ₽
2-комнатная
Уточнить наличие
84,5-84,5 м2
Продано

2-комнатные Квартиры 84,5-84,5 м2

Месяц / Год Площадь Стоимость Цена м2 Динамика цены м2
Август 2020 84,5-84,5 м2 6 760 000 - 6 760 000  ₽ ~80 476  ₽
Июль 2020 84,5-84,5 м2 6 760 000 - 6 760 000  ₽ ~80 476  ₽  -1.17%
Апрель 2020 84,5-84,5 м2 6 760 000 - 6 920 000  ₽ ~81 429  ₽
Март 2020 84,5-84,5 м2 6 760 000 - 6 920 000  ₽ ~81 429  ₽  1.1%
Февраль 2020 77,6-86,5 м2 6 208 000 - 6 920 000  ₽ ~80 540  ₽
Январь 2020 77,6-86,5 м2 6 208 000 - 6 920 000  ₽ ~80 540  ₽
Декабрь 2019 77,6-86,5 м2 6 208 000 - 6 920 000  ₽ ~80 540  ₽
Ноябрь 2019 77,6-86,5 м2 6 208 000 - 6 920 000  ₽ ~80 540  ₽  23.05%
Август 2018 70,6-86,5 м2 4 589 000 - 5 622 000  ₽ ~65 455  ₽
Июль 2018 70,6-86,5 м2 4 589 000 - 5 622 000  ₽ ~65 455  ₽
Июнь 2018 70,6-86,5 м2 4 589 000 - 5 622 000  ₽ ~65 455  ₽  0.75%
Май 2018 71-86 м2 4 600 000 - 5 600 000  ₽ ~64 968  ₽
Апрель 2018 71-86 м2 4 600 000 - 5 600 000  ₽ ~64 968  ₽
Март 2018 71-86 м2 4 600 000 - 5 600 000  ₽ ~64 968  ₽
Февраль 2018 71-86 м2 4 600 000 - 5 600 000  ₽ ~64 968  ₽  -0.36%
Январь 2018 71-86 м2 4 615 000 - 5 622 000  ₽ ~65 204  ₽
Декабрь 2017 71-86 м2 4 615 000 - 5 622 000  ₽ ~65 204  ₽
Ноябрь 2017 69,4-86,5 м2 4 485 000 - 5 622 000  ₽ ~65 206  ₽
Октябрь 2017 69,4-86,5 м2 4 485 000 - 5 622 000  ₽ ~65 206  ₽
Сентябрь 2017 69,4-86,5 м2 4 485 000 - 5 622 000  ₽ ~65 206  ₽
Сентябрь 2017 69,4-86,5 м2 4 485 000 - 5 622 000  ₽ ~65 206  ₽
Август 2017 69,4-86,5 м2 4 485 000 - 5 622 000  ₽ ~65 206  ₽  -13.56%
Июль 2017 69,4-86,5 м2 5 205 000 - 6 487 500  ₽ ~75 435  ₽
Июнь 2017 69,4-86,5 м2 5 205 000 - 6 487 500  ₽ ~75 435  ₽
Май 2017 69,4-86,5 м2 5 205 000 - 6 487 500  ₽ ~75 435  ₽  -2.74%
Апрель 2017 70-86,5 м2 5 400 000 - 6 700 000  ₽ ~77 564  ₽
Март 2017 70-86,5 м2 5 400 000 - 6 700 000  ₽ ~77 564  ₽  18.74%
Февраль 2017 72,7-86,5 м2 4 000 000 - 6 321 000  ₽ ~65 323  ₽
3-комнатная
Уточнить наличие
79,4-79,4 м2
Продано

3-комнатные Квартиры 79,4-79,4 м2

Месяц / Год Площадь Стоимость Цена м2 Динамика цены м2
Август 2020 79,4-79,4 м2 6 352 000 - 6 352 000  ₽ ~80 405  ₽
Июль 2020 79,4-79,4 м2 6 352 000 - 6 352 000  ₽ ~80 405  ₽  -0.16%
Июнь 2020 79,4-93 м2 6 352 000 - 7 500 000  ₽ ~80 535  ₽
Май 2020 79,4-93 м2 6 352 000 - 7 500 000  ₽ ~80 535  ₽
Апрель 2020 79,4-93 м2 6 352 000 - 7 500 000  ₽ ~80 535  ₽
Март 2020 79,4-93 м2 6 352 000 - 7 500 000  ₽ ~80 535  ₽  23.4%
Январь 2018 95,5-95,5 м2 6 200 000 - 6 200 000  ₽ ~65 263  ₽
Декабрь 2017 95,5-95,5 м2 6 200 000 - 6 200 000  ₽ ~65 263  ₽  -11.07%
Июль 2017 95,5-95,5 м2 6 971 500 - 6 971 500  ₽ ~73 384  ₽
Июнь 2017 95,5-95,5 м2 6 971 500 - 6 971 500  ₽ ~73 384  ₽
Май 2017 95,5-95,5 м2 6 971 500 - 6 971 500  ₽ ~73 384  ₽  -1.99%
Апрель 2017 95,5-104,2 м2 7 100 000 - 7 800 000  ₽ ~74 874  ₽
Март 2017 95,5-104,2 м2 7 100 000 - 7 800 000  ₽ ~74 874  ₽  11.29%
Февраль 2017 95,5-104,2 м2 5 900 000 - 7 488 000  ₽ ~67 276  ₽
Последняя цена:
Застройщик АСК "Фриз"АСК "Фриз"
8 (499) 348-17-29

Сроки сдачи ЖК "Новобулатниково"

Сдан1
Кор. 1
Монолит 9 этажей
 
I кв. 2021
Сдан
9 фотографий

Ход строительства ЖК "Новобулатниково"  Декабрь 2019

Ход строительства ЖК Новобулатниково, вид с ул. Турова, фото - 1
ЖК Новобулатниково, вид с ул. Турова, фото - 1 Квартирный контроль
Ход строительства ЖК Новобулатниково, вид с ул. Турова, фото - 2
ЖК Новобулатниково, вид с ул. Турова, фото - 2 Квартирный контроль
Ход строительства ЖК Новобулатниково, вид с ул. Турова, фото - 3
ЖК Новобулатниково, вид с ул. Турова, фото - 3 Квартирный контроль
Ход строительства ЖК Новобулатниково, вид с ул. Турова, фото - 4
ЖК Новобулатниково, вид с ул. Турова, фото - 4 Квартирный контроль
Ход строительства ЖК Новобулатниково, вид с ул. Турова, фото - 5
ЖК Новобулатниково, вид с ул. Турова, фото - 5 Квартирный контроль
Ход строительства ЖК Новобулатниково, вид с ул. Турова, фото - 6
ЖК Новобулатниково, вид с ул. Турова, фото - 6 Квартирный контроль
Ход строительства ЖК Новобулатниково, вид с ул. Турова, фото - 7
ЖК Новобулатниково, вид с ул. Турова, фото - 7 Квартирный контроль
Ход строительства ЖК Новобулатниково, вид с ул. Турова, фото - 8
ЖК Новобулатниково, вид с ул. Турова, фото - 8 Квартирный контроль
Ход строительства ЖК Новобулатниково, вид с ул. Турова, фото - 9
ЖК Новобулатниково, вид с ул. Турова, фото - 9 Квартирный контроль

Документация ЖК "Новобулатниково"

  • Разрешение на строительство
    к. 1
    Дата: 08.07.2014
    1.3 MБ
    Проектная декларация
    к. 1
    Дата: 14.07.2014
    3.3 MБ
    Проектная декларация
    к. 1
    Дата: 31.07.2019
    Версия: 2
    3.7 MБ
    Проектная декларация
    к. 1
    Дата: 30.10.2019
    Версия: 3
    3.7 MБ
    Проектная декларация
    к. 1
    Дата: 21.11.2019
    Версия: 4
    152.9 Кб
    Разрешение на ввод в эксплуатацию
    к. 1
    Дата: 28.01.2021
    76.5 Кб

Обсуждение ЖК "Новобулатниково"

Комментарии для сайта Cackle
Последняя цена:
Застройщик АСК "Фриз"АСК "Фриз"
8 (499) 348-17-29