Поиск
Например:Бунинские луга
Регион
 Квартирный контрольМосква
 Квартирный контрольМосква
 Квартирный контрольНовая Москва
 Квартирный контрольПодмосковье
Округ, район, метро
Расположение
Количество комнат
Студия
1
2
3
4+
Стоимость
домлн.
Все параметры
Показать все новостройки
+Сбросить все фильтры

Квартирный контрольЖК "Измайловский 11"

Объект сдан. Всё распродано.
Последняя цена:
Застройщик ПИКПИК
8 (499) 348-17-29
МоскваВосточный АОИзмайлово

м. Измайловская
4 мин. на авто
м. Партизанская
4 мин. на авто


Класс дома: Комфорт-класс
Технология: Монолит
Этажность: 5 - 17
 Квартирный контроль
Обновлено: 13.12.2022
Размер шрифта-+

Что Вам нужно знать о ЖК "Измайловский 11"

КАК ЭТО ДЕЛАЕТСЯ

Появление на свет ЖК «Измайловский, 11» связано с довольно увлекательной, причем документально подтвержденной историей. ООО «Парк-Пресня», учредителем которого является ООО «ПИК-Развитие территорий», в 2012 году приобрело у Департамента земельных ресурсов города Москвы земельный участок с кадастровым номером 77:03:0005001:9775 по адресу ВАО Москвы, район Измайлово, Измайловский проезд, вл. 5а, 11. Приобрело, надо сказать, не задорого, а именно, менее чем за 10% от его кадастровой стоимости:

Вид пользования участком предполагал эксплуатацию находившегося на нем спортивного комплекса:

Кроме того, на покупателя был наложен ряд ограничений:

В ноябре 2017 года по результатам проведения публичных слушаний был одобрен проект внесения изменений в правила землепользования и застройки г. Москвы в отношении данной территории с такими вот рекомендациями,

в результате чего, у ПИКа появились основания для получения разрешения на строительство, в итоге полученное ООО «Парк-Пресня» в апреле 2018 года.

Ну что ж, если отбросить всю лирику на тему необходимости «восстановления историко-градостроительной или природной среды объектов культурного наследия», все происшедшее можно назвать, например, прекрасным примером прохождения административно-бюрократических барьеров. Действительно, для ПИКа невозможного мало.

О ПРОЕКТЕ

Первый взгляд на рендеры, опубликованные на официальном сайте ЖК «Измайловский, 11» способен вызвать слезы умиления – неужто ПИК, в кои-то веки разродился балконами да лоджиями…

Впрочем, туман развеялся довольно быстро – как говорится, не открывай роток на чужой кусок. Квартиры в первых трех 17-этажных секциях будут переданы переселенцам по программе реновации (договора долевого участия на 236 квартир были заключены ГК ПИК с Московским фондом реновации жилой застройки в ноябре 2018 года).

Как известно, остекленные лоджии и балконы являются обязательной частью проектирования жилья в таких случаях, поэтому презирающему балконы ПИКу пришлось напрячься, дабы соответствовать этим самым нормам. Более того, данные секции отличаются от прочих и своим конструктивом – если все остальное строится по классической монолитно-каркасной технологии с кирпичной облицовкой, то здесь застройщик применил свое излюбленное штампованное решение в виде монолитно-панельного мутанта под названием СЭМ-2. Впрочем, если верить менеджерам ПИКа, рассказывающим покупателям квартир в таких корпусах в других ЖК захватывающие истории о преимуществах заводских панелей перед обычными монолитами, то, выходит что компания отдает переселенцам то, что недоступно покупателям коммерческой части комплекса.

Итак, на участке размером 3,5 га в 24-секционном здании переменной этажности от 5 до 14 этажей, условно поделенном на три корпуса, находятся 870 квартир, 477 м/м в общем подземном паркинге и 48 коммерческих помещений на первых нежилых этажах.

Покупатели получат свои квартир в состоянии «черновой» отделки. В данном случае она ограничивается установкой металлической двери и выполнением стяжки, закрывающей проложенные трубы отопления. Межкомнатные перегородки, при этом, всего лишь намечены трассировкой по полу. Высота потолков составит 2,9 м, высота оконных проемов – 1, 8 м.

Если окна квартиры выходят во двор, то внешние блоки кондиционеров подлежат установке в навесные корзины. Для квартир, смотрящих окнами наружу, эти блоки будут установлены на технические балконы с прокладкой до квартир коммуникационных трасс – в этом случае хозяевам придется озаботиться покупкой недешевой сплит-системы. Те же рендеры демонстрируют наличие в ряде квартир т.н. французских балконов – песок, как мы знаем, является плохой заменой овсу, но это все же лучше, чем ничего.

Ввод в эксплуатацию состоялся в IV квартале 2020 года, процесс передачи ключей по ДДУ завершится не позднее 03.03.2021.

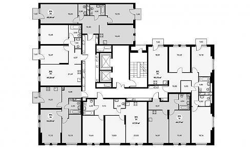
ПЛАНИРОВКИ

Оставив за скобками общагоподобные секции СЭМ-2, вознесем хвалу всемогущему ПИКу – всего в трех с половиной секциях количество квартир на лестничной клетке доходит до шести, что по текущим реалиям уже отправляет их, чуть ли не в бизнес-класс:

Четыре квартиры на этаже являются нормой для данного ЖК, пара секций, заполненных исключительно четырехкомнатными квартирами по две на этаже, претендуют на звание элитных:

О студиях в исполнении Застройщика №1 нельзя сказать решительно ничего нового – это все те же прямоугольники разной степени узости:

Однокомнатные квартиры в соответствии с текущим трендом, можно смело считать «евро-двушками»:

Двухкомнатных квартир с классической компоновкой здесь представлено крайне мало, в отличие от разнообразных «евро-трешек»:

Самые маленькие угловые трехкомнатные квартиры расположены в секции №6, а в целом, в комплексе преобладают многометровые распашонки:

СХЕМА ПОКУПКИ

С 2018 года ПИК внедрил весьма удобную систему оформления – покупатель может воспользоваться электронной регистрацией сделки. Для этого необходимо получить электронную цифровую подпись и в назначенный день прийти в указанный банк для открытия аккредитива. Данная опция доступна только резидентам РФ. Всем остальным покупателям будет предложена обычная схема с фиксированной оплатой сопровождения государственной регистрации договора участия в долевом строительстве в размере 20 000 рублей. Ипотечный кредит можно оформить в девяти банках:

ЗА
  • любые гарантии от ГК ПИК
  • парк Измайлово в пешей доступности
  • Серебряно-Виноградный пруд под окнами
  • небольшая этажность и, как следствие, не перенаселенность
  • подземный паркинг
  • выбор квартир и планировок
  • мало квартир на этаже
ПРОТИВ
  • до метро недалеко, но и не так близко

  • перспектива плотной застройки соседних участков (твое творение)

 

Новостройки рядом с ЖК "Измайловский 11"

Квартирный контроль

ЖК "Мой адрес На Амурской, 54"

Объект сдан. Всё распродано.
2.17 км
ЖК "Мой адрес На Амурской, 54" Квартирный контроль
  • 2 комн. 
    Продано
    3 комн. 
    Продано
    4 комн. 
    Продано
Ближайшее метро
Класс жилья
Эконом-класс

Компания

  • Студия 
    Продано
    1 комн. 
    Продано
    2 комн. 
    Продано
    3 комн. 
    Продано
    4 комн. 
    Продано
  • Студия 
    Продано
    1 комн. 
    Продано
    2 комн. 
    Продано
Ближайшее метро
Класс жилья
Комфорт-класс

Компания

ЖК «ИзМайЛовО»

Объект сдан. Всё распродано.
0.74 км
ЖК «ИзМайЛовО» Квартирный контроль
  • 1 комн. 
    Продано
    2 комн. 
    Продано
    3 комн. 
    Продано
    4 комн. 
    Продано
Ближайшее метро
Класс жилья
Бизнес-класс

Компания

ЖК "Измайловский 11"

Объект сдан. Всё распродано.
0 км
ЖК "Измайловский 11" Квартирный контроль
  • Студия 
    Продано
    1 комн. 
    Продано
    2 комн. 
    Продано
    3 комн. 
    Продано
    4 комн. 
    Продано
Ближайшее метро
Класс жилья
Комфорт-класс

Компания

ЖК "Амурский парк"

Всего 10 корпусов. Построено 5. В работе 5 корпусов: 2025. 
1.19 км
ЖК "Амурский парк" Квартирный контроль
  • Студия  от
    10 131 189 ₽
    от  20 м2
    1 комн.  от
    12 282 986 ₽
    от  32,3 м2
    2 комн.  от
    16 379 747 ₽
    от  48,7 м2
    3 комн.  от
    20 990 135 ₽
    от  85,5 м2
    4 комн. 
    Продано
Ближайшее метро
Класс жилья
Комфорт-класс

Компания

  • Студия  от
    7 611 404 ₽
    от  18,32 м2
    2 комн.  от
    12 108 104 ₽
    от  30,59 м2
    3 комн.  от
    18 176 128 ₽
    от  57,76 м2
Класс жилья
Бизнес-класс

Компания

ЖК "Метроном"

В работе 1 корпус: 2026. 
2.15 км
ЖК "Метроном" Квартирный контроль
  • Студия  от
    7 060 000 ₽
    от  16 м2
    1 комн.  от
    12 230 000 ₽
    от  35 м2
    2 комн.  от
    16 770 000 ₽
    от  56 м2
    3 комн.  от
    19 750 000 ₽
    от  69 м2
Класс жилья
Комфорт-класс

Компания

ЖК «1-й Измайловский» (Первый Измайловский)

В работе 2 корпуса: 2026. 
1.56 км
ЖК «1-й Измайловский» (Первый Измайловский) Квартирный контроль
  • Студия  от
    9 909 760 ₽
    от  21,2 м2
    1 комн.  от
    13 730 707 ₽
    от  35,2 м2
    2 комн.  от
    16 073 181 ₽
    от  44 м2
    3 комн.  от
    20 532 447 ₽
    от  54,1 м2
    4 комн.  от
    24 971 297 ₽
    от  85 м2
Ближайшее метро
Класс жилья
Комфорт-класс

Компания

ЖК «2-й Иртышский»

В работе 2 корпуса: 2027. 
2.01 км
ЖК «2-й Иртышский» Квартирный контроль
  • Студия  от
    6 914 540 ₽
    от  20,1 м2
    1 комн.  от
    9 690 376 ₽
    от  33,1 м2
    2 комн.  от
    14 789 603 ₽
    от  71,1 м2
    3 комн.  от
    18 236 723 ₽
    от  83,7 м2
Ближайшее метро
Класс жилья
Бизнес-класс

Компания

ЖК "Измайловский 11" на карте

Адрес: г. Москва, Измайловский проезд, д. 5Ак1
Квартирный контроль
Проверено 16-11-2022

Цены в ЖК "Измайловский 11"

Студия
Уточнить наличие
20,47-20,47 м2
Продано

Студии Квартиры 20,47-20,47 м2

Месяц / Год Площадь Стоимость Цена м2 Динамика цены м2
Май 2020 20,47-20,47 м2 5 301 730 - 5 301 730  ₽ ~265 087  ₽
Апрель 2020 20,47-20,47 м2 5 301 730 - 5 301 730  ₽ ~265 087  ₽  9.22%
Март 2020 20,47-25,18 м2 5 238 273 - 5 683 126  ₽ ~242 698  ₽
Февраль 2020 20,47-25,18 м2 5 238 273 - 5 683 126  ₽ ~242 698  ₽  4.51%
Январь 2020 20,47-25,18 м2 4 912 800 - 5 537 082  ₽ ~232 220  ₽
Декабрь 2019 20,47-25,18 м2 4 912 800 - 5 537 082  ₽ ~232 220  ₽
Ноябрь 2019 20,47-25,18 м2 4 912 800 - 5 537 082  ₽ ~232 220  ₽
Октябрь 2019 20,47-25,18 м2 4 912 800 - 5 537 082  ₽ ~232 220  ₽  -0.63%
Сентябрь 2019 20,47-25,18 м2 4 888 236 - 5 627 730  ₽ ~233 688  ₽
Август 2019 20,47-25,18 м2 4 888 236 - 5 627 730  ₽ ~233 688  ₽  0.09%
Июль 2019 20,47-25,18 м2 4 884 142 - 5 622 694  ₽ ~233 485  ₽
Июнь 2019 20,47-25,18 м2 4 884 142 - 5 622 694  ₽ ~233 485  ₽
Май 2019 20,47-25,18 м2 4 884 142 - 5 622 694  ₽ ~233 485  ₽  0.83%
Апрель 2019 20,47-25,18 м2 4 903 560 - 5 516 938  ₽ ~231 567  ₽
Март 2019 20,47-25,18 м2 4 903 560 - 5 516 938  ₽ ~231 567  ₽
Февраль 2019 20,47-25,18 м2 4 903 560 - 5 516 938  ₽ ~231 567  ₽  7.19%
Январь 2019 20,47-25,18 м2 4 519 435 - 5 202 188  ₽ ~216 036  ₽
Декабрь 2018 20,47-25,18 м2 4 519 435 - 5 202 188  ₽ ~216 036  ₽
Ноябрь 2018 20,47-25,18 м2 4 519 435 - 5 202 188  ₽ ~216 036  ₽  0.85%
Октябрь 2018 20,47-25,18 м2 4 353 969 - 5 285 282  ₽ ~214 206  ₽
Сентябрь 2018 20,47-25,18 м2 4 353 969 - 5 285 282  ₽ ~214 206  ₽
Август 2018 20,47-25,18 м2 4 353 969 - 5 285 282  ₽ ~214 206  ₽
Июль 2018 20,47-25,18 м2 4 353 969 - 5 285 282  ₽ ~214 206  ₽
1-комнатная
Уточнить наличие
38,9-38,9 м2
Продано

1-комнатные Квартиры 38,9-38,9 м2

Месяц / Год Площадь Стоимость Цена м2 Динамика цены м2
Август 2021 38,9-38,9 м2 14 976 500 - 14 976 500  ₽ ~394 118  ₽  48.58%
Август 2020 42,96-43,64 м2 10 911 840 - 11 634 424  ₽ ~265 250  ₽  7.35%
Июль 2020 38,46-43,64 м2 9 315 659 - 10 698 588  ₽ ~247 089  ₽
Июнь 2020 38,46-43,64 м2 9 315 659 - 10 698 588  ₽ ~247 089  ₽  13.24%
Май 2020 38,46-47,1 м2 8 193 800 - 10 352 580  ₽ ~218 193  ₽
Апрель 2020 38,46-47,1 м2 8 193 800 - 10 352 580  ₽ ~218 193  ₽  3.08%
Март 2020 36,18-47,1 м2 7 602 840 - 9 966 360  ₽ ~211 677  ₽
Февраль 2020 36,18-47,1 м2 7 602 840 - 9 966 360  ₽ ~211 677  ₽  3.43%
Январь 2020 35,69-47,1 м2 7 305 928 - 9 476 520  ₽ ~204 664  ₽
Декабрь 2019 35,69-47,1 м2 7 305 928 - 9 476 520  ₽ ~204 664  ₽
Ноябрь 2019 35,69-47,1 м2 7 305 928 - 9 476 520  ₽ ~204 664  ₽
Октябрь 2019 35,69-47,1 м2 7 305 928 - 9 476 520  ₽ ~204 664  ₽  -0.99%
Сентябрь 2019 35,69-47,1 м2 7 231 128 - 9 718 607  ₽ ~206 704  ₽
Август 2019 35,69-47,1 м2 7 231 128 - 9 718 607  ₽ ~206 704  ₽  0.69%
Июль 2019 35,69-47,1 м2 6 726 447 - 10 107 859  ₽ ~205 296  ₽
Июнь 2019 35,69-47,1 м2 6 726 447 - 10 107 859  ₽ ~205 296  ₽
Май 2019 35,69-47,1 м2 6 726 447 - 10 107 859  ₽ ~205 296  ₽  1.4%
Апрель 2019 35,69-47,1 м2 6 705 780 - 9 896 310  ₽ ~202 465  ₽
Март 2019 35,69-47,1 м2 6 705 780 - 9 896 310  ₽ ~202 465  ₽
Февраль 2019 35,69-47,1 м2 6 705 780 - 9 896 310  ₽ ~202 465  ₽  7.96%
Январь 2019 35,69-47,1 м2 6 307 440 - 9 071 264  ₽ ~187 545  ₽
Декабрь 2018 35,69-47,1 м2 6 307 440 - 9 071 264  ₽ ~187 545  ₽
Ноябрь 2018 35,69-47,1 м2 6 307 440 - 9 071 264  ₽ ~187 545  ₽  -0.23%
Октябрь 2018 35,69-47,1 м2 6 649 047 - 8 765 820  ₽ ~187 986  ₽
Сентябрь 2018 35,69-47,1 м2 6 649 047 - 8 765 820  ₽ ~187 986  ₽
Август 2018 35,69-47,1 м2 6 649 047 - 8 765 820  ₽ ~187 986  ₽
Июль 2018 35,69-47,1 м2 6 649 047 - 8 765 820  ₽ ~187 986  ₽
2-комнатная
Уточнить наличие
64,7-64,7 м2
Продано

2-комнатные Квартиры 64,7-64,7 м2

Месяц / Год Площадь Стоимость Цена м2 Динамика цены м2
Август 2021 64,7-64,7 м2 17 999 540 - 17 999 540  ₽ ~281 243  ₽  22.97%
Август 2020 54,04-72,81 м2 12 704 804 - 16 111 976  ₽ ~228 705  ₽  4.85%
Июль 2020 54,04-72,81 м2 12 037 470 - 15 446 420  ₽ ~218 126  ₽
Июнь 2020 54,04-72,81 м2 12 037 470 - 15 446 420  ₽ ~218 126  ₽  0.95%
Май 2020 54,04-73,3 м2 11 810 960 - 15 629 488  ₽ ~216 067  ₽
Апрель 2020 54,04-73,3 м2 11 810 960 - 15 629 488  ₽ ~216 067  ₽  3.54%
Март 2020 54,04-73,3 м2 11 259 144 - 15 243 648  ₽ ~208 683  ₽
Февраль 2020 54,04-73,3 м2 11 259 144 - 15 243 648  ₽ ~208 683  ₽  3.13%
Январь 2020 54,04-73,3 м2 10 680 573 - 15 018 080  ₽ ~202 352  ₽
Декабрь 2019 54,04-73,3 м2 10 680 573 - 15 018 080  ₽ ~202 352  ₽
Ноябрь 2019 54,04-73,3 м2 10 680 573 - 15 018 080  ₽ ~202 352  ₽
Октябрь 2019 54,04-73,3 м2 10 680 573 - 15 018 080  ₽ ~202 352  ₽  -0.75%
Сентябрь 2019 54,04-73,3 м2 10 874 883 - 15 018 088  ₽ ~203 882  ₽
Август 2019 54,04-73,3 м2 10 874 883 - 15 018 080  ₽ ~203 882  ₽  0.31%
Июль 2019 50,75-73,3 м2 10 053 575 - 14 946 848  ₽ ~203 255  ₽
Июнь 2019 50,75-73,3 м2 10 053 575 - 14 946 848  ₽ ~203 255  ₽
Май 2019 50,75-73,3 м2 10 053 575 - 14 946 848  ₽ ~203 255  ₽  3.91%
Апрель 2019 50,75-73,3 м2 9 546 080 - 14 513 520  ₽ ~195 607  ₽
Март 2019 50,75-73,3 м2 9 546 080 - 14 513 520  ₽ ~195 607  ₽
Февраль 2019 50,75-73,3 м2 9 546 080 - 14 513 520  ₽ ~195 607  ₽  6.9%
Январь 2019 51,41-72,81 м2 9 424 664 - 13 082 944  ₽ ~182 989  ₽
Декабрь 2018 51,41-72,81 м2 9 424 664 - 13 082 944  ₽ ~182 989  ₽
Ноябрь 2018 51,41-72,81 м2 9 424 664 - 13 082 944  ₽ ~182 989  ₽  4.8%
Октябрь 2018 54,04-72,81 м2 9 570 484 - 12 430 560  ₽ ~174 611  ₽
Сентябрь 2018 54,04-72,81 м2 9 570 484 - 12 430 560  ₽ ~174 611  ₽
Август 2018 54,04-72,81 м2 9 570 484 - 12 430 560  ₽ ~174 611  ₽
Июль 2018 54,04-72,81 м2 9 570 484 - 12 430 560  ₽ ~174 611  ₽
3-комнатная
Уточнить наличие
70,7-92,19 м2
Продано

3-комнатные Квартиры 70,7-92,19 м2

Месяц / Год Площадь Стоимость Цена м2 Динамика цены м2
Август 2020 70,7-92,19 м2 17 632 580 - 22 177 267  ₽ ~245 740  ₽  1.2%
Июль 2020 70,7-92,19 м2 16 614 500 - 22 722 016  ₽ ~242 818  ₽
Июнь 2020 70,7-92,19 м2 16 614 500 - 22 722 016  ₽ ~242 818  ₽  -0.76%
Май 2020 70,7-92,19 м2 15 999 410 - 23 639 998  ₽ ~244 688  ₽
Апрель 2020 70,7-92,19 м2 15 999 410 - 23 639 998  ₽ ~244 688  ₽  3.38%
Март 2020 70,7-92,19 м2 15 377 250 - 22 965 242  ₽ ~236 682  ₽
Февраль 2020 70,7-92,19 м2 15 377 250 - 22 965 242  ₽ ~236 682  ₽  4.98%
Январь 2020 70,7-92,19 м2 14 014 038 - 22 510 174  ₽ ~225 458  ₽
Декабрь 2019 70,7-92,19 м2 14 014 038 - 22 510 174  ₽ ~225 458  ₽
Ноябрь 2019 70,7-92,19 м2 14 014 038 - 22 510 174  ₽ ~225 458  ₽
Октябрь 2019 70,7-92,19 м2 14 014 038 - 22 510 174  ₽ ~225 458  ₽  2.27%
Сентябрь 2019 70,7-92,19 м2 13 204 800 - 22 510 174  ₽ ~220 463  ₽
Август 2019 70,7-92,19 м2 13 204 800 - 22 510 174  ₽ ~220 463  ₽  0.53%
Июль 2019 70,7-92,19 м2 13 031 880 - 22 494 482  ₽ ~219 299  ₽
Июнь 2019 70,7-92,19 м2 13 031 880 - 22 494 482  ₽ ~219 299  ₽
Май 2019 70,7-92,19 м2 13 031 880 - 22 494 482  ₽ ~219 299  ₽  3.05%
Апрель 2019 70,7-92,19 м2 12 970 860 - 21 503 160  ₽ ~212 803  ₽
Март 2019 70,7-92,19 м2 12 970 860 - 21 503 160  ₽ ~212 803  ₽
Февраль 2019 70,7-92,19 м2 12 970 860 - 21 503 160  ₽ ~212 803  ₽  6.59%
Январь 2019 70,7-92,19 м2 11 667 348 - 20 674 210  ₽ ~199 639  ₽
Декабрь 2018 70,7-92,19 м2 11 667 348 - 20 674 210  ₽ ~199 639  ₽
Ноябрь 2018 70,7-92,19 м2 11 667 348 - 20 674 210  ₽ ~199 639  ₽  15.09%
Октябрь 2018 70,84-92,19 м2 12 085 304 - 16 016 441  ₽ ~173 468  ₽
Сентябрь 2018 70,84-92,19 м2 12 085 304 - 16 016 441  ₽ ~173 468  ₽
Август 2018 70,84-92,19 м2 12 085 304 - 16 016 441  ₽ ~173 468  ₽
Июль 2018 70,84-92,19 м2 12 085 304 - 16 016 441  ₽ ~173 468  ₽
4-комнатная
Уточнить наличие
114,1-121,2 м2
Продано

4-комнатные Квартиры 114,1-121,2 м2

Месяц / Год Площадь Стоимость Цена м2 Динамика цены м2
Август 2021 114,1-121,2 м2 26 208 770 - 31 451 400  ₽ ~245 362  ₽  2.47%
Август 2020 104,62-121,23 м2 23 419 224 - 30 457 205  ₽ ~239 451  ₽  1.62%
Июль 2020 107,28-121,23 м2 23 269 032 - 30 457 205  ₽ ~235 641  ₽
Июнь 2020 107,28-121,23 м2 23 269 032 - 30 457 205  ₽ ~235 641  ₽  -1.69%
Май 2020 104,62-121,23 м2 22 957 876 - 30 974 425  ₽ ~239 699  ₽
Апрель 2020 104,62-121,23 м2 22 957 876 - 30 974 425  ₽ ~239 699  ₽  3.59%
Март 2020 104,62-121,23 м2 22 087 938 - 29 975 250  ₽ ~231 392  ₽
Февраль 2020 104,62-121,23 м2 22 087 938 - 29 975 250  ₽ ~231 392  ₽  4.38%
Январь 2020 104,42-121,23 м2 20 584 070 - 29 293 460  ₽ ~221 678  ₽
Декабрь 2019 104,42-121,23 м2 20 584 070 - 29 293 460  ₽ ~221 678  ₽
Ноябрь 2019 104,42-121,23 м2 20 584 070 - 29 293 460  ₽ ~221 678  ₽
Октябрь 2019 104,42-121,23 м2 20 584 070 - 29 293 460  ₽ ~221 678  ₽  5.13%
Сентябрь 2019 104,42-121,23 м2 19 359 468 - 28 082 695  ₽ ~210 854  ₽
Август 2019 104,42-121,23 м2 19 359 468 - 28 082 695  ₽ ~210 854  ₽  -1.91%
Июль 2019 104,62-121,23 м2 20 778 056 - 27 588 985  ₽ ~214 965  ₽
Июнь 2019 104,62-121,23 м2 20 778 056 - 27 588 985  ₽ ~214 965  ₽
Май 2019 104,62-121,23 м2 20 778 056 - 27 588 985  ₽ ~214 965  ₽  2.29%
Апрель 2019 104,62-121,23 м2 20 519 410 - 26 766 140  ₽ ~210 158  ₽
Март 2019 104,62-121,23 м2 20 519 410 - 26 766 140  ₽ ~210 158  ₽
Февраль 2019 104,62-121,23 м2 20 519 410 - 26 766 140  ₽ ~210 158  ₽  12.1%
Январь 2019 104,42-121,23 м2 18 022 892 - 24 159 456  ₽ ~187 477  ₽
Декабрь 2018 104,42-121,23 м2 18 022 892 - 24 159 456  ₽ ~187 477  ₽
Ноябрь 2018 104,42-121,23 м2 18 022 892 - 24 159 456  ₽ ~187 477  ₽  21.98%
Октябрь 2018 104,42-121,23 м2 15 464 602 - 19 117 971  ₽ ~153 700  ₽
Сентябрь 2018 104,42-121,23 м2 15 464 602 - 19 117 971  ₽ ~153 700  ₽
Август 2018 104,42-121,23 м2 15 464 602 - 19 117 971  ₽ ~153 700  ₽
Июль 2018 104,42-121,23 м2 15 464 602 - 19 117 971  ₽ ~153 700  ₽
Последняя цена:
Застройщик ПИКПИК
8 (499) 348-17-29

Сроки сдачи ЖК "Измайловский 11"

Сдан1
Кор. 5а
Монолит 5-17 этажей
 
IV кв. 2020
Сдан
11 фотографий

Ход строительства ЖК "Измайловский 11"  Декабрь 2019

Ход строительства ЖК Измайловский 11, корпус 5а, вид с ул. Советская, фото - 1
ЖК Измайловский 11, корпус 5а, вид с ул. Советская, фото - 1 Квартирный контроль
Ход строительства ЖК Измайловский 11, корпус 5а, вид с ул. Советская, фото - 2
ЖК Измайловский 11, корпус 5а, вид с ул. Советская, фото - 2 Квартирный контроль
Ход строительства ЖК Измайловский 11, корпус 5а, вид с ул. Советская, фото - 3
ЖК Измайловский 11, корпус 5а, вид с ул. Советская, фото - 3 Квартирный контроль
Ход строительства ЖК Измайловский 11, корпус 5а, вид с ул. Советская, фото - 4
ЖК Измайловский 11, корпус 5а, вид с ул. Советская, фото - 4 Квартирный контроль
Ход строительства ЖК Измайловский 11, корпус 5а, вид с ул. Советская, фото - 5
ЖК Измайловский 11, корпус 5а, вид с ул. Советская, фото - 5 Квартирный контроль
Ход строительства ЖК Измайловский 11, корпус 5а, вид с ул. Советская, фото - 6
ЖК Измайловский 11, корпус 5а, вид с ул. Советская, фото - 6 Квартирный контроль
Ход строительства ЖК Измайловский 11, корпус 5а, вид с Измайловского пр-да, фото - 7
ЖК Измайловский 11, корпус 5а, вид с Измайловского пр-да, фото - 7 Квартирный контроль
Ход строительства ЖК Измайловский 11, корпус 5а, вид с Измайловского пр-да, фото - 8
ЖК Измайловский 11, корпус 5а, вид с Измайловского пр-да, фото - 8 Квартирный контроль
Ход строительства ЖК Измайловский 11, корпус 5а, вид с Измайловского пр-да, фото - 9
ЖК Измайловский 11, корпус 5а, вид с Измайловского пр-да, фото - 9 Квартирный контроль
Ход строительства ЖК Измайловский 11, корпус 5а, вид с Измайловского пр-да, фото - 10
ЖК Измайловский 11, корпус 5а, вид с Измайловского пр-да, фото - 10 Квартирный контроль
Ход строительства ЖК Измайловский 11, корпус 5а, вид с Измайловского пр-да, фото - 11
ЖК Измайловский 11, корпус 5а, вид с Измайловского пр-да, фото - 11 Квартирный контроль

Документация ЖК "Измайловский 11"

  • Разрешение на строительство
    к. 5а
    Дата: 16.04.2018
    694.5 Кб
    Разрешение на строительство
    к. 5а
    Дата: 07.08.2019
    Версия: 2
    1.1 MБ
    Проектная декларация
    к. 5а
    Дата: 26.06.2018
    1.1 MБ
    Проектная декларация
    к. 5а
    Дата: 07.08.2019
    Версия: 2
    259.8 Кб
    Шаблон ДДУ
    к. 5а
    Дата: 28.10.2019
    258.6 Кб

Обсуждение ЖК "Измайловский 11"

Комментарии для сайта Cackle
Последняя цена:
Застройщик ПИКПИК
8 (499) 348-17-29