Поиск
Например:Бунинские луга
Регион
 Квартирный контрольМосква
 Квартирный контрольМосква
 Квартирный контрольНовая Москва
 Квартирный контрольПодмосковье
Округ, район, метро
Расположение
Количество комнат
Студия
1
2
3
4+
Стоимость
домлн.
Все параметры
Показать все новостройки
+Сбросить все фильтры

Квартирный контрольЖК "Счастье в Царицыно" (Меридиан-дом Лидер в Царицыно)

Объект сдан. Всё распродано.
Последняя цена:
Застройщик Группа ЭталонГруппа Эталон
8 (499) 348-17-29
МоскваЮжный АОЦарицыно

м. Кантемировская
16 мин. пешком
м. Царицыно
11 мин. пешком


Класс дома: Комфорт-класс
Технология: Монолит
Этажность: 10 - 16
 Квартирный контроль
Обновлено: 21.11.2019
Размер шрифта-+

Что Вам нужно знать о ЖК "Счастье в Царицыно" (Меридиан-дом Лидер в Царицыно)

РАСПОЛОЖЕНИЕ

Есть в районе Царицыно места, куда лучше не соваться, промзон в этой части Южного Административного Округа хоть отбавляй. В этом отношении ЖК «Меридиан-дом», строительство которого ведет девелоперская Компания Лидер-Инвест, откровенно повезло – он уютно устроился в обжитом жилом массиве в той части Кавказского бульвара, которая ближе всего находится к музею-заповеднику «Царицыно» вдалеке от серых «карточных» зон. Как и все точечные объекты застройщика, этот комплекс был пару раз переименован, превратившись осенью 2018 из «Лидера в Царицыно» в ЖК «Счастье в Царицыно».

Появление Южной рокады заметно облегчит жизнь автомобилистам, станция метро находится в шаговой доступности:

О ПРОЕКТЕ

Очередная снесенная с карты Москвы АТС занимала территорию 3 379 кв. м. К II кварталу 2019 года, когда окончилось строительство комплекса, она была облагорожена, обнесена оградой и стала охраняемой. Дом имеет переменную этажность от 10 до 16 этажей, построен по монолитной технологии и имеет вентилируемые фасады, облицованные длинномерными узкими композитными панелями.

На первом этаже - частный детский садик.

В подземном паркинге оборудованы 48 машиномест, большинство которых имеют площадь в районе 20 кв. м. Внутри жителей дома встречает 35-метровый вестибюль, консьерж, расположившийся в 18-метровой комнате с собственным санузлом и два лифта. В доме предусмотрено сооружение мусоропровода, а пользоваться им, или нет, решают сами собственники жилья.

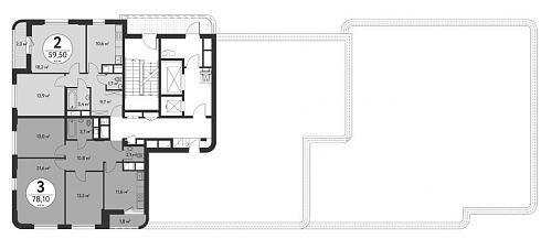
ПЛАНИРОВКИ

Будучи одноподъездным и односекционным, дом смотрится разноуровневым за счет того, что начиная с 10 по 16 этаж, его крыша поднимается к небу тремя ступенями.

Внешний эффект отразился на внутреннем содержимом: если на лестничной клетке с третьего по десятый этажи расположено по 10 квартир,

то с одиннадцатого по тринадцатый этаж их количество уменьшается вдвое,

а на последних трех этажах остается по две квартиры.

Именно эти варианты, согласно терминологии официального сайта ЖК «Счастье в Царицыно», называются «видовыми квартирами». Таким образом, в доме, в общем-то справедливо претендующем на место в комфорт-классе, на ровном месте образовывается реальный эксклюзив. Что касается представленных площадей, то им, пожалуй, удалось ненамного вырасти из штанишек эконом-класса. Планировки могут быть либо линейными, либо угловыми – распашных вариантов здесь не предусмотрено.

Однокомнатные. Самая большая отличается от самой маленькой наличием гардеробной комнаты, кухни едва дотягивают до 10 кв. м.

Двухкомнатные. Оба решения имеют право на жизнь: выбирая более интересное угловое расположение, придется смириться с небольшой потерей в метражах обоих санузлов и порадоваться увеличенной площадью лоджии.

Остановившись на «линейке», вы получите чуть большую общую площадь и нелишние 50 см на кухне:

Трехкомнатные. Здесь за «госстандарт» приняты 78 кв. м с двумя санузлами и семидверным холлом:

Свободная планировка в данном случае подразумевает отсутствие отделки, стены здесь только в «мокрых» зонах, металлическая дверь требует замены на что-то более приличное. Высота потолков до установки стяжки составляет 2,85 м.

ОФОРМЛЕНИЕ

Проект был аккредитован в банках:

К концу строительства практически все квартиры в доме были распроданы Застройщиком.

ЗА
  • Лидер Инвест
  • идеальное для ЮАО расположение
  • клубный дом на 111 квартир
  • «правильные цены»
  • подземный паркинг
ПРОТИВ
  • ограничения по метражу
  • места на парковке получат не все
РЕЗЮМЕ

Благодаря «АФК-Системе», МТС и МГТС формат клубных домов получил распространение, в том числе и в тех районах Москвы, которые, как казалось для него решительно не подходят. Идея правильная, реализация зрима, спрос велик – Лидер Инвест сделал выигрышную ставку.

Новостройки рядом с ЖК "Счастье в Царицыно" (Меридиан-дом Лидер в Царицыно)

Квартирный контроль

ЖК "Царицыно 2"

Объект сдан. Продажи не начались.
2.71 км
ЖК "Царицыно 2" Квартирный контроль
Студия
Уточняется
1-комн
Уточняется
2-комн
Уточняется
3-комн
Уточняется
4-комн
Уточняется
Ближайшее метро
Класс жилья
Комфорт-класс

Компания

ЖК "Домашний"

Объект сдан. Всё распродано.
3.07 км
ЖК "Домашний" Квартирный контроль
  • Студия 
    Продано
    1 комн. 
    Продано
    2 комн. 
    Продано
    3 комн. 
    Продано
    4 комн. 
    Продано
Ближайшее метро
Класс жилья
Комфорт-класс

Компания

  • Студия 
    Продано
    1 комн. 
    Продано
    2 комн. 
    Продано
    3 комн. 
    Продано
Класс жилья
Эконом-класс

Компания

ЖК "ГРИЛЬЯЖ"

Объект сдан. Всё распродано.
2.7 км
ЖК "ГРИЛЬЯЖ" Квартирный контроль
  • 1 комн. 
    Продано
    2 комн. 
    Продано
    3 комн. 
    Продано
Класс жилья
Комфорт-класс

Компания

ЖК "Каширка LIKE" (Каширка ЛАЙК)

Объект сдан. Продажи не начались.
1.67 км
ЖК "Каширка LIKE" (Каширка ЛАЙК) Квартирный контроль
Студия
Уточняется
1-комн
Уточняется
2-комн
Уточняется
3-комн
Уточняется
4-комн
Уточняется
Ближайшее метро
Класс жилья
Комфорт-класс

Компания

ЖК "WAVE" (Вэйв)

В работе 11 корпусов: 2026. 
2.77 км
ЖК "WAVE" (Вэйв) Квартирный контроль
  • Студия  от
    8 229 936 ₽
    от  21 м2
    1 комн.  от
    12 011 498 ₽
    от  31 м2
    2 комн.  от
    18 698 435 ₽
    от  51 м2
    3 комн.  от
    29 126 793 ₽
    от  70 м2
    4 комн.  от
    40 308 736 ₽
    от  102 м2
Ближайшее метро
Класс жилья
Бизнес-класс

Компания

ЖК "Кавказский бульвар 51"

Всего 6 корпусов. Построено 4. В работе 2 корпуса: 2025. 
1.64 км
ЖК "Кавказский бульвар 51" Квартирный контроль
  • Студия  от
    8 163 539 ₽
    от  19,8 м2
    1 комн.  от
    11 411 751 ₽
    от  32,3 м2
    2 комн.  от
    14 308 139 ₽
    от  48,4 м2
    3 комн.  от
    19 420 697 ₽
    от  74,8 м2
Ближайшее метро
Класс жилья
Комфорт-класс

Компания

ЖК «РУСИЧ-Кантемировский»

В работе 6 корпусов: 2025, 2026. 
1.48 км
ЖК «РУСИЧ-Кантемировский» Квартирный контроль
  • Студия  от
    6 238 000 ₽
    от  20 м2
    1 комн.  от
    8 370 000 ₽
    от  31 м2
    2 комн.  от
    10 101 000 ₽
    от  39 м2
    3 комн.  от
    12 979 500 ₽
    от  51 м2
Ближайшее метро
Класс жилья
Бизнес-класс

Компания

ЖК «Квартал Домашний»

В работе 2 корпуса: 2025, 2026. 
2.95 км
ЖК «Квартал Домашний» Квартирный контроль
  • Студия  от
    10 304 278 ₽
    от  22 м2
    1 комн.  от
    12 620 101 ₽
    от  31 м2
    2 комн.  от
    15 999 883 ₽
    от  41 м2
    3 комн.  от
    22 963 425 ₽
    от  72 м2
    4 комн. 
    Продано
Ближайшее метро
Класс жилья
Комфорт-класс

Компания

ЖК "Счастье в Царицыно" (Меридиан-дом Лидер в Царицыно) на карте

Адрес: г. Москва, Кавказский бульвар, 27к2
Квартирный контроль
Проверено 24-07-2019

Цены в ЖК "Счастье в Царицыно" (Меридиан-дом Лидер в Царицыно)

1-комнатная
Уточнить наличие
40,7-40,7 м2
Продано

1-комнатные Квартиры 40,7-40,7 м2

Месяц / Год Площадь Стоимость Цена м2 Динамика цены м2
Июнь 2019 40,7-40,7 м2 8 579 153 - 8 709 800  ₽ ~216 112  ₽
Май 2019 40,7-40,7 м2 8 579 153 - 8 709 800  ₽ ~216 112  ₽
Апрель 2019 40,7-40,7 м2 8 579 153 - 8 709 800  ₽ ~216 112  ₽
Март 2019 40,7-40,7 м2 8 579 153 - 8 709 800  ₽ ~216 112  ₽
Февраль 2019 40,7-40,7 м2 8 579 153 - 8 709 800  ₽ ~216 112  ₽  7.54%
Январь 2019 40,7-40,7 м2 7 936 500 - 8 140 000  ₽ ~200 956  ₽
Декабрь 2018 40,7-40,7 м2 7 936 500 - 8 140 000  ₽ ~200 956  ₽
Ноябрь 2018 40,7-40,7 м2 7 936 500 - 8 140 000  ₽ ~200 956  ₽
Октябрь 2018 40,7-40,7 м2 7 936 500 - 8 140 000  ₽ ~200 956  ₽  -3.61%
Сентябрь 2018 37,1-59,4 м2 6 768 000 - 13 246 200  ₽ ~208 481  ₽  8.06%
Август 2018 37,1-40,7 м2 6 715 100 - 8 140 000  ₽ ~192 923  ₽
Июль 2018 37,1-40,7 м2 6 715 100 - 8 140 000  ₽ ~192 923  ₽  5.25%
Июнь 2018 37,1-59,4 м2 6 370 070 - 11 226 600  ₽ ~183 299  ₽  0.23%
Май 2018 37,1-59,4 м2 6 418 320 - 11 137 500  ₽ ~182 873  ₽
Апрель 2018 37,1-59,4 м2 6 418 320 - 11 137 500  ₽ ~182 873  ₽
Март 2018 37,1-59,4 м2 6 418 320 - 11 137 500  ₽ ~182 873  ₽
Февраль 2018 37,1-59,4 м2 6 418 320 - 11 137 500  ₽ ~182 873  ₽  3.65%
Январь 2018 37,1-59,4 м2 6 392 000 - 10 545 400  ₽ ~176 431  ₽
Декабрь 2017 37,1-59,4 м2 6 392 000 - 10 545 400  ₽ ~176 431  ₽  0.61%
Ноябрь 2017 37,1-40,7 м2 5 750 500 - 7 752 520  ₽ ~175 364  ₽  -19.89%
Октябрь 2017 37-40 м2 5 750 500 - 11 104 770  ₽ ~218 900  ₽
Сентябрь 2017 37-40 м2 5 750 500 - 11 104 770  ₽ ~218 900  ₽  5.87%
Август 2017 37-40 м2 5 840 800 - 10 080 000  ₽ ~206 764  ₽
Июль 2017 37-40 м2 5 840 800 - 10 080 000  ₽ ~206 764  ₽  15.37%
Июнь 2017 37-40 м2 5 500 000 - 8 300 000  ₽ ~179 221  ₽
2-комнатная
Уточнить наличие
59,4-59,4 м2
Продано

2-комнатные Квартиры 59,4-59,4 м2

Месяц / Год Площадь Стоимость Цена м2 Динамика цены м2
Март 2019 59,4-59,4 м2 12 889 800 - 13 662 000  ₽ ~225 015  ₽
Февраль 2019 59,4-59,4 м2 12 889 800 - 13 662 000  ₽ ~225 015  ₽  1.97%
Январь 2019 59,4-59,5 м2 12 889 800 - 13 149 500  ₽ ~220 672  ₽
Декабрь 2018 59,4-59,5 м2 12 889 800 - 13 149 500  ₽ ~220 672  ₽
Ноябрь 2018 59,4-59,5 м2 12 889 800 - 13 149 500  ₽ ~220 672  ₽
Октябрь 2018 59,4-59,5 м2 12 889 800 - 13 149 500  ₽ ~220 672  ₽  -1.93%
Сентябрь 2018 59,4-59,5 м2 12 889 800 - 13 662 000  ₽ ~225 015  ₽  25.22%
Июнь 2018 59,4-61,65 м2 10 634 625 - 10 929 600  ₽ ~179 702  ₽  -3.37%
Май 2018 59,4-62,4 м2 10 929 600 - 11 572 750  ₽ ~185 970  ₽  1.61%
Апрель 2018 59,4-62,4 м2 10 572 975 - 11 572 750  ₽ ~183 023  ₽
Март 2018 59,4-62,4 м2 10 572 975 - 11 572 750  ₽ ~183 023  ₽
Февраль 2018 59,4-62,4 м2 10 572 975 - 11 572 750  ₽ ~183 023  ₽  1.77%
Январь 2018 59,4-62,4 м2 10 216 800 - 11 543 000  ₽ ~179 833  ₽
Декабрь 2017 59,4-62,4 м2 10 216 800 - 11 543 000  ₽ ~179 833  ₽  2.13%
Ноябрь 2017 59,4-62,4 м2 9 347 065 - 11 959 500  ₽ ~176 087  ₽
Октябрь 2017 59,4-62,4 м2 9 347 065 - 11 959 500  ₽ ~176 087  ₽
Сентябрь 2017 59,4-62,4 м2 9 347 065 - 11 959 500  ₽ ~176 087  ₽  -15.03%
Август 2017 59,4-62,4 м2 9 247 500 - 15 827 000  ₽ ~207 227  ₽
Июль 2017 59,4-62,4 м2 9 247 500 - 15 827 000  ₽ ~207 227  ₽  2.98%
Июнь 2017 59,4-62,4 м2 9 000 000 - 15 350 000  ₽ ~201 240  ₽
3-комнатная
Уточнить наличие
78-78 м2
Продано

3-комнатные Квартиры 78-78 м2

Месяц / Год Площадь Стоимость Цена м2 Динамика цены м2
Март 2019 78-78 м2 17 160 000 - 17 160 000  ₽ ~220 000  ₽
Февраль 2019 78-78 м2 17 160 000 - 17 160 000  ₽ ~220 000  ₽  -2.22%
Январь 2019 78-78 м2 17 160 000 - 17 940 000  ₽ ~225 000  ₽
Декабрь 2018 78-78 м2 17 160 000 - 17 940 000  ₽ ~225 000  ₽
Ноябрь 2018 78-78 м2 17 160 000 - 17 940 000  ₽ ~225 000  ₽
Октябрь 2018 78-78 м2 17 160 000 - 17 940 000  ₽ ~225 000  ₽
Сентябрь 2018 78-78 м2 17 160 000 - 17 940 000  ₽ ~225 000  ₽  20.71%
Апрель 2018 78-78 м2 14 305 200 - 14 773 200  ₽ ~186 400  ₽
Март 2018 78-78 м2 14 305 200 - 14 773 200  ₽ ~186 400  ₽
Февраль 2018 78-78 м2 14 305 200 - 14 773 200  ₽ ~186 400  ₽  -1.44%
Январь 2018 78-78,1 м2 14 274 000 - 15 229 500  ₽ ~189 125  ₽
Декабрь 2017 78-78,1 м2 14 274 000 - 15 229 500  ₽ ~189 125  ₽  1.07%
Ноябрь 2017 78-78,1 м2 13 416 000 - 15 776 200  ₽ ~187 129  ₽  -6.03%
Октябрь 2017 78-78 м2 15 288 000 - 15 776 200  ₽ ~199 129  ₽
Сентябрь 2017 78-78 м2 15 288 000 - 15 776 200  ₽ ~199 129  ₽  -19.11%
Август 2017 78-78 м2 17 628 000 - 20 774 600  ₽ ~246 171  ₽
Июль 2017 78-78 м2 17 628 000 - 20 774 600  ₽ ~246 171  ₽  -4.28%
Июнь 2017 78-78 м2 19 344 000 - 20 774 000  ₽ ~257 167  ₽
Последняя цена:
Застройщик Группа ЭталонГруппа Эталон
8 (499) 348-17-29

Сроки сдачи ЖК "Счастье в Царицыно" (Меридиан-дом Лидер в Царицыно)

Сдан1
Кор. 1
Монолит 10-16 этажей
 
II кв. 2019
Сдан
7 фотографий

Ход строительства ЖК "Счастье в Царицыно" (Меридиан-дом Лидер в Царицыно)  Август 2019

Ход строительства ЖК Счастье в Царицыно, вид с Кавказского бульв., фото 1
ЖК Счастье в Царицыно, вид с Кавказского бульв., фото 1 Квартирный контроль
Ход строительства ЖК Счастье в Царицыно, вид с Кавказского бульв., фото 2
ЖК Счастье в Царицыно, вид с Кавказского бульв., фото 2 Квартирный контроль
Ход строительства ЖК Счастье в Царицыно, вид с Кавказского бульв., фото 3
ЖК Счастье в Царицыно, вид с Кавказского бульв., фото 3 Квартирный контроль
Ход строительства ЖК Счастье в Царицыно, вид с Кавказского бульв., фото 4
ЖК Счастье в Царицыно, вид с Кавказского бульв., фото 4 Квартирный контроль
Ход строительства ЖК Счастье в Царицыно, вид с Кавказского бульв., фото 5
ЖК Счастье в Царицыно, вид с Кавказского бульв., фото 5 Квартирный контроль
Ход строительства ЖК Счастье в Царицыно, вид с Кавказского бульв., фото 6
ЖК Счастье в Царицыно, вид с Кавказского бульв., фото 6 Квартирный контроль
Ход строительства ЖК Счастье в Царицыно, вид с Кавказского бульв., фото 7
ЖК Счастье в Царицыно, вид с Кавказского бульв., фото 7 Квартирный контроль

Обсуждение ЖК "Счастье в Царицыно" (Меридиан-дом Лидер в Царицыно)

Последняя цена:
Застройщик Группа ЭталонГруппа Эталон
8 (499) 348-17-29