Поиск
Например:Бунинские луга
Регион
 Квартирный контрольМосква
 Квартирный контрольМосква
 Квартирный контрольНовая Москва
 Квартирный контрольПодмосковье
Округ, район, метро
Расположение
Количество комнат
Студия
1
2
3
4+
Стоимость
домлн.
Все параметры
Показать все новостройки
+Сбросить все фильтры

Квартирный контрольЖК "Счастье в Тушино" (Лидер в Тушино)

Объект сдан. Всё распродано.
Последняя цена:
Застройщик Группа ЭталонГруппа Эталон
8 (499) 348-17-29
МоскваСеверо-Западный АОСеверное Тушино

м. Сходненская
12 мин. пешком
м. Планерная
15 мин. пешком


Класс дома: Комфорт-класс
Технология: Монолит
 Квартирный контроль
Обновлено: 21.11.2019
Размер шрифта-+

Что Вам нужно знать о ЖК "Счастье в Тушино" (Лидер в Тушино)

РАСПОЛОЖЕНИЕ

Переименование своих жилых комплексов – обычное дело для Компании ЛИДЕР ИНВЕСТ, но в данном случае, оно не выглядит на 100% оправданным. Еще до того, как Застройщик приступил к сносу АТС на бульваре Яна Райниса в Северном Тушино, он уже вовсю строил другой свой ЖК «Дом на Сходненской» в полутора километрах от этого места на улице Фабрициуса в Южном Тушино. После отказа от названия ЖК «Дом на Райниса» и присвоения комплексу имени «Лидер в Тушино», покупатель имел дело с двумя идеологически схожими жилыми комплексами в одном большом Тушино, при этом еще и привязанными к одной и той же станции метро. На этом дело не закончилось, и в октябре 2018 года в рамках ребрендинга данная новостройка получила новое, и по всей видимости, последнее название ЖК «Счастье в Тушино». Комплекс расположен в глубине микрорайона, опутываемого нитями Проектируемых проездов. К бульвару Райниса он имеет скорее опосредованное отношение, находясь от него на почти 500 метровом расстоянии. Зелень здесь присутствует, вредных производств рядом нет, до метро можно дойти за 10 минут:

В пешей доступности находятся 4 школы, гимназия и 5 детских садов.

Более-менее свежие дома в округе найти можно, но все они будут панельными – в этом плане у лидеровского монолита соперников в микрорайоне нет.

О ПРОЕКТЕ

Двух подъездный 19-этажный дом строится по монолитно-каркасной технологии с заполнением наружных стен керамическими блоками и кирпичом. На официальном сайте ЖК «Лидер на Райниса» («Счастье в Тушино») Вам встретится диковинный термин «мармарок», который в реальности обозначает название одного из типов навесной вентилируемой фасадной системы, в которой в качестве защитного экрана используются мелкоштучные бетонные плитки с мраморной крошкой, весьма успешно имитирующие белый кирпич:

Оба подъезда обслуживаются двумя лифтами. Обычно Лидер устанавливает в своих домах OTIS, но может обратиться и к другому европейскому производителю. Судьбу мусоропроводов будут решать сами жители вместе с Управляющей Компанией – проектом их установка предусматривается. За исключением технического помещения, все 550 кв. м первого этажа, согласно проектной декларации, предназначены для размещения Детского Образовательного Учреждения, работающего на коммерческой основе. Однако, на сайте проекта говорится о том, что первый этаж предназначен и «для размещения магазинов и сервисных объектов», а ДОУ смогут посещать одновременно 30 малышей. Поэтому о первом этаже Комплекса можно смело говорить как о нежилом, но о том, что там в итоге появится, рассуждать пока бессмысленно.

Точечная застройка подразумевает наличие не слишком большой территории, тем не менее, те имеющиеся в распоряжении Застройщика 70 соток земли, включающие в себя непосредственно пятно застройки, будут благоустроены и озеленены. Кроме того, как можно наблюдать на ситуационном плане участка, здесь появится около двух десятков парковочных мест.

Это будет явно нелишним, учитывая то, что на 198 квартир приходится только 93 машиноместа в одноуровневом подземном паркинге, при площади м/м от 13,25 до 22,3 кв. м.

В подъездах выделено место для консьержа, который, кроме всего прочего, будет присматривать за мониторами видеонаблюдения.

В первой редакции проектной декларации от 24.04.2017 срок ввода Комплекса в эксплуатацию устанавливался в III квартале 2018 года. В последующих редакциях ПД он был перенесен на IV квартал 2019 и уже 27.12.2019 было получено РВЭ.

ПЛАНИРОВКИ

Квартиры будут передаваться покупателям без отделки. Высота потолков до проведения работ по устройству стяжки составит 2,95 м. Электричество, доведенное до внутриквартирного щитка, подразумевает максимальную нагрузку до 15 кВт для однокомнатных и до 20 кВт до двух- и трехкомнатных квартир. Радиаторы отопления подключаются горизонтальной подводкой, в квартиры заводится оптоволокно. Поставщиком соответствующих теле- и интернет услуг, вероятнее всего, будет объявлена МГТС. Окна остекляются двухкамерным профилем KBE, а балконы или лоджии, присутствующие в каждой квартире комплекса – алюминиевым однокамерным стеклопакетом. Внешние блоки кондиционеров выставляются в корзины, вывешенные на фасадах здания, в квартире их будет ровно столько, сколько в ней есть комнат:

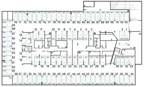
На стандартной лестничной клетке находятся по пять квартир:

Однокомнатные. В любой такой квартире предусмотрена небольшая гардеробная комната, кухни имеют весьма скромные площади, планировки выглядят классическими с некоторыми нюансами в самых больших 39-метровых вариантах:

Двухкомнатные. На планировках квартир площадью 57,15 кв. м красуется цифра «1», хотя метров и окон здесь хватит не только на «попсовую» студию, но и на полноценную двушку. Линейные планировки обыденны, но неудачными их назвать нельзя:

Самые интересные планировочные решения представлены во второй секции, самая большие двухкомнатные квартиры находятся в первой:

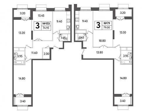
Трехкомнатные. Здесь Вас ждут исключительно «распашонки» с гостевым санузлом, двумя лоджиями и традиционно для данного ЖК небольшими кухнями:

СХЕМА ПОКУПКИ

До открытия офиса продаж на объекте, все вопросы решаются в офисе девелоперской компании АО «ЛИДЕР-ИНВЕСТ» по адресу г. Москва, пр-т Андропова, д. 18, корп. 9 (БЦ «Декарт»), 17 этаж, либо в офисе соседнего ЖК, который находится на ул. Фабрициуса, 18. 

Вам будет предложено заключить договор бронирования на неделю, стоимостью 35 000р (сумма вычитается из стоимости квартиры), в течение этого времени Вам нужно выйти на сделку. Застройщиком является ООО «Яна Райниса Плюс», с ним Вам и предстоит заключить договор долевого участия в строительстве на основании ФЗ-214. После подписания ДДУ покупатель открывает аккредитивный счет в МТС Банке, с которого деньги отправятся на счет Застройщика по факту прохождения государственной регистрации договора. Условия рассрочки оговариваются в индивидуальном порядке, минимальный взнос не может составлять менее 50% от стоимости квартиры. Ипотечный кредит выдают банки:

ЗА
  • Застройщик
  • «чистое» для Москвы место
  • транспортная доступность
  • точечная застройка и симпатичный проект
  • лоджии или балконы в каждой квартире
ПРОТИВ
  • дорогие м/м, которых на всех не хватит
РЕЗЮМЕ

Глядя на представленные здесь квартиры с их, в общем-то, небольшими метражами, не стоит сразу отправлять Комплекс в категорию низко бюджетного жилья. Если рассматривать «Счастье в Тушино» как единое целое, то совокупность имеющихся у него достоинств так и провоцирует на довольно громкое заявление: всем бы, да иметь вот такой эконом-класс. Что до цены, то она будет потихоньку подрастать – вряд ли квартиры в комплексе такого уровня должны продаваться дешевле, чем в соседних панельных 17-22-этажках, хотя на старте продаж все именно так и было.

Новостройки рядом с ЖК "Счастье в Тушино" (Лидер в Тушино)

Квартирный контроль
  • 1 комн. 
    Продано
    2 комн. 
    Продано
    3 комн. 
    Продано
Класс жилья
Комфорт-класс

Компания

ЖК "Дом на Садовой"

Объект сдан. Всё распродано.
2.65 км
ЖК "Дом на Садовой" Квартирный контроль
  • 1 комн. 
    Продано
    2 комн. 
    Продано
    3 комн. 
    Продано
Класс жилья
Эконом-класс

Компания

  • 1 комн. 
    Продано
    2 комн. 
    Продано
    3 комн. 
    Продано
    4 комн. 
    Продано
Класс жилья
Комфорт-класс

Компания

  • Студия 
    Продано
    1 комн. 
    Продано
    2 комн.  от
    44 000 000 ₽
    от  95 м2
    3 комн.  от
    53 190 000 ₽
    от  107 м2
    4 комн. 
    Продано
Ближайшее метро
Класс жилья
Бизнес-класс

Компания

Апарт-отель "Досфлота, 10"

Объект сдан. Всё распродано.
1.93 км
Апарт-отель "Досфлота, 10" Квартирный контроль
  • 1 комн. 
    Продано
Класс жилья
Бизнес-класс

Компания

ЖК "Sky Garden" (Скай Гарден)

В работе 3 корпуса: 2025, 2027. 
2.05 км
ЖК "Sky Garden" (Скай Гарден) Квартирный контроль
  • Студия  от
    12 099 840 ₽
    от  26.5 м2
    1 комн.  от
    13 378 971 ₽
    от  33,4 м2
    2 комн.  от
    18 082 739 ₽
    от  50,3 м2
    3 комн.  от
    20 418 134 ₽
    от  75,7 м2
    4 комн.  от
    27 252 889 ₽
    от  101,6 м2
Класс жилья
Бизнес-класс

Компания

ЖК «Мангазея на Речном»

В работе 2 корпуса: 2027. 
2.17 км
ЖК «Мангазея на Речном» Квартирный контроль
  • Студия  от
    14 600 000 ₽
    от  29 м2
    1 комн.  от
    17 200 000 ₽
    от  38 м2
    2 комн.  от
    24 500 000 ₽
    от  56 м2
    3 комн.  от
    41 600 000 ₽
    от  91 м2
Ближайшее метро
Класс жилья
Премиум-класс

Компания

  • Студия  от
    14 300 000 ₽
    от  29 м2
    1 комн.  от
    18 400 000 ₽
    от  36 м2
    2 комн.  от
    23 400 000 ₽
    от  59 м2
    3 комн.  от
    35 900 000 ₽
    от  92 м2
    4 комн.  от
    72 900 000 ₽
    от  135 м2
Ближайшее метро
Класс жилья
Бизнес-класс

Компания

ЖК "Счастье в Тушино" (Лидер в Тушино) на карте

Адрес: г. Москва, б-р. Яна Райниса, вл.4, корп.3
Квартирный контроль
Проверено 23-10-2019

Цены в ЖК "Счастье в Тушино" (Лидер в Тушино)

1-комнатная
Уточнить наличие
37,15-38,7 м2
Продано

1-комнатные Квартиры 37,15-38,7 м2

Месяц / Год Площадь Стоимость Цена м2 Динамика цены м2
Июнь 2019 37,15-38,7 м2 8 711 675 - 9 278 325  ₽ ~239 867  ₽
Май 2019 37,15-38,7 м2 8 711 675 - 9 278 325  ₽ ~239 867  ₽
Апрель 2019 37,15-38,7 м2 8 711 675 - 9 278 325  ₽ ~239 867  ₽  0.21%
Март 2019 37,2-38,7 м2 8 693 100 - 9 258 975  ₽ ~239 361  ₽
Февраль 2019 37,2-38,7 м2 8 693 100 - 9 258 975  ₽ ~239 361  ₽  11.3%
Январь 2019 37,2-39,2 м2 7 830 000 - 8 514 000  ₽ ~215 053  ₽
Декабрь 2018 37,2-39,2 м2 7 830 000 - 8 514 000  ₽ ~215 053  ₽
Ноябрь 2018 37,2-39,2 м2 7 830 000 - 8 514 000  ₽ ~215 053  ₽  0.17%
Октябрь 2018 37,2-39,2 м2 7 801 500 - 8 514 000  ₽ ~214 678  ₽  6.91%
Сентябрь 2018 37,15-39,15 м2 7 095 650 - 8 165 700  ₽ ~200 807  ₽
Август 2018 37,15-39,15 м2 7 095 650 - 8 165 700  ₽ ~200 807  ₽
Июль 2018 37,15-39,15 м2 7 095 650 - 8 165 700  ₽ ~200 807  ₽
Июнь 2018 37,15-39,15 м2 7 095 650 - 8 165 700  ₽ ~200 807  ₽
Май 2018 37,15-39,15 м2 7 095 650 - 8 165 700  ₽ ~200 807  ₽  1.48%
Апрель 2018 37,15-39,15 м2 6 872 750 - 8 165 700  ₽ ~197 874  ₽
Март 2018 37,15-39,15 м2 6 872 750 - 8 165 700  ₽ ~197 874  ₽
Февраль 2018 37,15-39,15 м2 6 872 750 - 8 165 700  ₽ ~197 874  ₽  4.73%
Январь 2018 37,15-39,15 м2 6 236 395 - 8 123 130  ₽ ~188 941  ₽
Декабрь 2017 37,15-39,15 м2 6 236 395 - 8 123 130  ₽ ~188 941  ₽  0.28%
Ноябрь 2017 37,15-39,15 м2 6 216 381 - 8 102 851  ₽ ~188 411  ₽
Октябрь 2017 37,15-39,15 м2 6 216 381 - 8 102 851  ₽ ~188 411  ₽
Сентябрь 2017 37,15-39,15 м2 6 216 381 - 8 102 851  ₽ ~188 411  ₽  -2.58%
Август 2017 38-39 м2 6 068 250 - 8 823 600  ₽ ~193 401  ₽
Июль 2017 38-39 м2 6 068 250 - 8 823 600  ₽ ~193 401  ₽  -3.81%
Июнь 2017 37,15-38,7 м2 5 869 000 - 9 210 000  ₽ ~201 053  ₽
2-комнатная
Уточнить наличие
58,5-58,5 м2
Продано

2-комнатные Квартиры 58,5-58,5 м2

Месяц / Год Площадь Стоимость Цена м2 Динамика цены м2
Сентябрь 2019 58,5-58,5 м2 13 662 090 - 13 662 090  ₽ ~235 553  ₽
Август 2019 58,5-58,5 м2 13 662 090 - 13 662 090  ₽ ~235 553  ₽
Июль 2019 58,5-58,5 м2 13 662 090 - 13 662 090  ₽ ~235 553  ₽  3%
Июнь 2019 58,5-62,4 м2 13 662 090 - 13 781 040  ₽ ~228 693  ₽
Май 2019 58,5-62,4 м2 13 662 090 - 13 781 040  ₽ ~228 693  ₽
Апрель 2019 58,5-62,4 м2 13 662 090 - 13 781 040  ₽ ~228 693  ₽  0.35%
Март 2019 57,6-62,4 м2 13 422 240 - 13 696 020  ₽ ~227 885  ₽
Февраль 2019 57,6-62,4 м2 13 422 240 - 13 696 020  ₽ ~227 885  ₽  12.51%
Январь 2019 57,5-62,4 м2 11 436 750 - 12 667 200  ₽ ~202 554  ₽
Декабрь 2018 57,5-62,4 м2 11 436 750 - 12 667 200  ₽ ~202 554  ₽
Ноябрь 2018 57,5-62,4 м2 11 436 750 - 12 667 200  ₽ ~202 554  ₽  -1%
Октябрь 2018 57,6-62,4 м2 11 992 500 - 12 355 200  ₽ ~204 603  ₽  6.21%
Сентябрь 2018 57,15-62,4 м2 10 819 400 - 12 105 600  ₽ ~192 647  ₽
Август 2018 57,15-62,4 м2 10 819 400 - 12 105 600  ₽ ~192 647  ₽
Июль 2018 57,15-62,4 м2 10 819 400 - 12 105 600  ₽ ~192 647  ₽  2.02%
Июнь 2018 57,15-62,4 м2 10 413 000 - 12 058 650  ₽ ~188 837  ₽  0.24%
Май 2018 57,15-62,4 м2 10 359 000 - 12 058 650  ₽ ~188 384  ₽  -0.49%
Апрель 2018 57,15-62,4 м2 10 359 000 - 12 168 000  ₽ ~189 303  ₽
Март 2018 57,15-62,4 м2 10 359 000 - 12 168 000  ₽ ~189 303  ₽
Февраль 2018 57,15-62,4 м2 10 359 000 - 12 168 000  ₽ ~189 303  ₽  5.61%
Январь 2018 57,15-62,4 м2 9 193 600 - 12 136 800  ₽ ~179 247  ₽
Декабрь 2017 57,15-62,4 м2 9 193 600 - 12 136 800  ₽ ~179 247  ₽  0.17%
Ноябрь 2017 57,15-62,4 м2 9 193 600 - 12 100 234  ₽ ~178 940  ₽  -1.22%
Октябрь 2017 57,15-62,4 м2 9 457 582 - 12 100 234  ₽ ~181 158  ₽
Сентябрь 2017 57,15-62,4 м2 9 457 582 - 12 100 234  ₽ ~181 158  ₽  -3.91%
Август 2017 57-62 м2 9 144 000 - 13 291 200  ₽ ~188 531  ₽
Июль 2017 57-62 м2 9 144 000 - 13 291 200  ₽ ~188 531  ₽  -3.12%
Июнь 2017 55-57 м2 8 632 500 - 13 162 500  ₽ ~194 598  ₽
3-комнатная
Уточнить наличие
75-75 м2
Продано

3-комнатные Квартиры 75-75 м2

Месяц / Год Площадь Стоимость Цена м2 Динамика цены м2
Сентябрь 2019 75-75 м2 17 811 867 - 17 811 867  ₽ ~237 492  ₽
Август 2019 75-75 м2 17 811 867 - 17 811 867  ₽ ~237 492  ₽
Июль 2019 75-75 м2 17 811 867 - 17 811 867  ₽ ~237 492  ₽  -0.01%
Июнь 2019 74,95-74,95 м2 17 339 683 - 17 811 868  ₽ ~237 510  ₽
Май 2019 74,95-74,95 м2 17 339 683 - 17 811 868  ₽ ~237 510  ₽
Апрель 2019 74,95-74,95 м2 17 339 683 - 17 811 868  ₽ ~237 510  ₽  2.92%
Март 2019 75-79 м2 17 302 208 - 18 237 150  ₽ ~230 775  ₽
Февраль 2019 75-79 м2 17 302 208 - 18 237 150  ₽ ~230 775  ₽  5.11%
Январь 2019 75-79 м2 16 114 250 - 17 696 000  ₽ ~219 547  ₽
Декабрь 2018 75-79 м2 16 114 250 - 17 696 000  ₽ ~219 547  ₽
Ноябрь 2018 75-79 м2 16 114 250 - 17 696 000  ₽ ~219 547  ₽  1.41%
Октябрь 2018 75-79 м2 16 039 300 - 17 301 000  ₽ ~216 495  ₽  2.16%
Сентябрь 2018 74,95-79 м2 15 439 700 - 16 985 000  ₽ ~211 926  ₽
Август 2018 74,95-79 м2 15 439 700 - 16 985 000  ₽ ~211 926  ₽
Июль 2018 74,95-79 м2 15 439 700 - 16 985 000  ₽ ~211 926  ₽  4.35%
Июнь 2018 74,95-79 м2 14 877 575 - 16 195 000  ₽ ~203 089  ₽  -0.88%
Май 2018 74,95-79 м2 14 877 575 - 16 471 500  ₽ ~204 896  ₽  3.59%
Апрель 2018 74,95-79 м2 13 790 800 - 16 471 500  ₽ ~197 793  ₽
Март 2018 74,95-79 м2 13 790 800 - 16 471 500  ₽ ~197 793  ₽
Февраль 2018 74,95-79 м2 13 790 800 - 16 471 500  ₽ ~197 793  ₽  0.58%
Январь 2018 74,95-79 м2 13 648 395 - 16 439 900  ₽ ~196 656  ₽
Декабрь 2017 74,95-79 м2 13 648 395 - 16 439 900  ₽ ~196 656  ₽  0.29%
Ноябрь 2017 74,95-79 м2 13 606 348 - 16 394 475  ₽ ~196 084  ₽  2.36%
Октябрь 2017 74,95-79 м2 12 915 315 - 16 394 475  ₽ ~191 567  ₽
Сентябрь 2017 74,95-79 м2 12 915 315 - 16 394 475  ₽ ~191 567  ₽  2.72%
Август 2017 79-79 м2 12 482 000 - 16 985 000  ₽ ~186 500  ₽
Июль 2017 79-79 м2 12 482 000 - 16 985 000  ₽ ~186 500  ₽  -3.5%
Июнь 2017 74,95-79 м2 12 482 000 - 17 088 600  ₽ ~193 272  ₽

Второй обзор ЖК Счастье в Тушино. Репортаж. Видео

26.11.2018
21 мин.
 Квартирный контроль
Последняя цена:
Застройщик Группа ЭталонГруппа Эталон
8 (499) 348-17-29

Сроки сдачи ЖК "Счастье в Тушино" (Лидер в Тушино)

Сдан1
Кор. 1
Монолит 19 этажей
 
IV кв. 2019
Сдан
8 фотографий

Ход строительства ЖК "Счастье в Тушино" (Лидер в Тушино)  Октябрь 2019

Ход строительства ЖК Счастье в Тушино, вид на строительство с Проектируемого пр-да №6224, фото 1
ЖК Счастье в Тушино, вид на строительство с Проектируемого пр-да №6224, фото 1 Квартирный контроль
Ход строительства ЖК Счастье в Тушино, вид на строительство с Проектируемого пр-да №6224, фото 2
ЖК Счастье в Тушино, вид на строительство с Проектируемого пр-да №6224, фото 2 Квартирный контроль
Ход строительства ЖК Счастье в Тушино, вид на строительство с Проектируемого пр-да №6224, фото 3
ЖК Счастье в Тушино, вид на строительство с Проектируемого пр-да №6224, фото 3 Квартирный контроль
Ход строительства ЖК Счастье в Тушино, вид на строительство с Проектируемого пр-да №6224, фото 4
ЖК Счастье в Тушино, вид на строительство с Проектируемого пр-да №6224, фото 4 Квартирный контроль
Ход строительства ЖК Счастье в Тушино, вид на строительство с Проектируемого пр-да №6224, фото 5
ЖК Счастье в Тушино, вид на строительство с Проектируемого пр-да №6224, фото 5 Квартирный контроль
Ход строительства ЖК Счастье в Тушино, вид на строительство с Проектируемого пр-да №6224, фото 6
ЖК Счастье в Тушино, вид на строительство с Проектируемого пр-да №6224, фото 6 Квартирный контроль
Ход строительства ЖК Счастье в Тушино, вид на строительство с Проектируемого пр-да №6224, фото 7
ЖК Счастье в Тушино, вид на строительство с Проектируемого пр-да №6224, фото 7 Квартирный контроль
Ход строительства ЖК Счастье в Тушино, вид на строительство с Проектируемого пр-да №6224, фото 8
ЖК Счастье в Тушино, вид на строительство с Проектируемого пр-да №6224, фото 8 Квартирный контроль

Документация ЖК "Счастье в Тушино" (Лидер в Тушино)

  • Разрешение на строительство
    к. 1
    Дата: 15.03.2017
    1.1 MБ
    Проектная декларация
    к. 1
    Дата: 24.04.2017
    240.2 Кб
    Проектная декларация
    к. 1
    Дата: 18.09.2019
    Версия: 2
    322.2 Кб
    Проектная декларация
    к. 1
    Дата: 09.10.2019
    Версия: 3
    252.6 Кб
    Разрешение на ввод в эксплуатацию
    к. 1
    Дата: 27.12.2019
    1.7 MБ

Обсуждение ЖК "Счастье в Тушино" (Лидер в Тушино)

Комментарии для сайта Cackle
Последняя цена:
Застройщик Группа ЭталонГруппа Эталон
8 (499) 348-17-29