Модный? Модифицированный? Модальный? Модернистский? Чтобы понять, какое из определений больше подходит для нового жилого комплекса «MOD», что строится в Москве в районе Марьиной Рощи, нужно просто взглянут на рендеры новостройки. И сразу станет ясно, что ключевое слово здесь «модернизм», художественное течение в искусстве (и в архитектуре в том числе), основанное на стремлении искать новые формы в процессе развития старых.
Решения для внешнего облика жилых корпусов специалисты архитектурного бюро KLEINEWELT ARCHITEKTEN нашли на базе минималистического подхода. Выглядеть все будет очень красиво, это точно! Но удобно ли жить в «высотках», пусть даже премиум-класса, втиснутых в существующую жилую застройку? Давайте поедем на место строительства и все узнаем.
Как проехать
Адрес новостройки Москва, Северо-Восточный административный округ, муниципальный район Марьина роща, 4-я улица Марьиной Рощи, владение 12/1.
Чтобы проехать на автомобиле от Охотного ряда до ЖК по Ленинградскому проспекту, Бутырскому и Сущевскому валам будет достаточно 20 минут, расстояние составляет около 9 километров.
Примерно столько же времени придется потратить, чтобы добраться домой от 94 километра МКАД, хотя в километрах расстояние немного больше.
Жителям комплекса будет удобно пользоваться метро. Станция «Марьина Роща» расположена в 7 минутах ходьбы от дома. Название улиц, по которым нужно двигаться, запомнить нетрудно - 3-й проезд Марьиной Рощи, 4-я улица Марьиной Рощи.
Что строят
На земельном участке площадью 2,45 гектара возводится по монолитной технологии многофункциональный жилой комплекс премиум-класса. В состав комплекса входят:
• пять жилых корпусов высотой от 9 до 55 этажей
• двухуровневая подземная автостоянка
• административное здание со встроенным кафе
• начальная школа на 253 места
• детский сад на 110 мест
Намечено два этапа реализации проекта.
• Первый этап: корпуса 2, 3, 4, 5, 7
• Второй этап: школа и детский сад
Жилым корпусам даже даны имена собственные, взятые у великих писателей - модернистов:
• Томас Манн (корпус M, башня высотой 55 этажей)
• Теодор Драйзер (корпус D, башня высотой 55 этажей)
• Альбер Камю (корпус С, башня высотой 44 этажа)
• Гертруда Стайн (корпус S, клубный дом высотой 9 этажей)
• Айн Рэнд (корпус R, клубный дом высотой 9 этажей)
Фасады зданий на первых этажах отделают натуральным камнем, а выше - пластинами из анодированного алюминия, окрашенными под золото и медь. Вместо стен в квартирах установят панорамные окна в пол с французскими балконами до 21 этажа. При высоте потолков до 3,24 метра в клубных домах и до 4,8 метра в башнях такая технология обеспечит высокую освещенность и широту внешнего обзора в квартирах. Класс энергоэффективности зданий B+ (повышенный).
Лобби с высотой потолков до 7 метров оформят и оборудуют в лучших традициях современного дизайна. Стены из натурального камня, круглосуточная стойка ресепшен, настенные водопады, уютные зоны для отдыха и работы. Для гостей - санузел, для домашних любимцев - лапомойка, для мамочек - колясочная. И для всех - пункты зарядки гаджетов и автоматы выдачи кофе.
Для эстетов выделено особое место - джаз-гостиная с библиотекой. Здесь можно будет посидеть у камина с книгой в руках и послушать игру знакомого пианиста. А может быть, и самому поиграть, приобретая тем самым симпатии соседей.
Выходы из подъездов запроектированы на уровне земли на две стороны. В организации пространства предусмотрены потребности маломобильных граждан. Вход в здание - по системе распознавания лиц и отпечаткам пальцев.
Жилые корпуса односекционные с общим стилобатом. В башнях D и M на одном этаже от 10 до 17 квартир, условно разделенных на две независимые зоны. В каждом подъезде установят по 6 скоростных лифтов, способных спускаться на подземные этажи.
Хранение машин обеспечено в двухуровневом подземном паркинге, рассчитанном на 739 машиномест площадью 13,25 кв.м. каждое и 22 мотоместа. Также в подземной части комплекса расположатся 433 кладовые площадью от 1,28 до 14,18 кв.м. каждая. Предусмотрены зарядные станции для электромобилей, посты мойки шин и подкачки колес, помещения для хранения велосипедов и специальные тележки для использования при разгрузке автомобилей. Въезд на парковку через систему распознавания номера машины.
В зданиях установят самые современные инженерные системы, способные обеспечить максимальную безопасность и комфорт проживания. Круглосуточное видеонаблюдение за дворовой территорией и внутренним пространством зданий гарантируют отсутствие на вашей территории незваных гостей. Естественно, на всей территории бесплатный вай-фай, а в квартирах - система «Умный дом», которую настроят по вашим потребностям и финансовым возможностям.
Благоустройство дворовой территории, сформированное высокопрофессиональной командой бюро Playground, создаст ощущение выхода в парк прямо во дворе дома. Мост на зеркальном основании со смотровой площадкой, три искусственных водоема, уличные столы для настольных игр и уютные уголки с уличной мебелью в тени зеленых насаждений - все это к вашим услугам в любое время суток.
Квартиры продаются с предчистовой отделкой в стиле «вайт бокс». Зайдя в новую квартиру, собственник обнаружит:
В таблице ниже приведены технические данные на объекты первой очереди. Поскольку разрешение на строительство выдано на всю группу домов, данные приводятся суммарно.
Таблица 1.
|
№№ корпуса (секции) |
Кол-во этажей |
Общая площ. застр. (кв. м.) |
Кол.секц.
|
Общее кол-во квартир/машиномест/кладовых/комм. пом. |
Дата выдачи разр. на стр-во |
Окончание срока действия разр. на стр-во |
Предполагаемая дата введения в эксплуатац. |
|
2, 3, 4, 5, 7 |
1-2-3-9-44-55+2 подз |
6351 |
5 |
2104/739/433/62 |
19.03.2021 г. |
19.03.2025 г. |
4 квартал 2024 г. |
В настоящее время на объекте ведутся работы по устройству фундамента. Выдача ключей запланирована на 01.09.2025 г.
Кто строит
Строительство на земельном участке с кадастровым номером 77:02:0000000:2810 ведет ООО «Специализированный застройщик «Роща» (коммерческое обозначение «MOD»). Компания организована в январе 2019 года и за последние три года не вела никакого жилищного строительства. Земля находится у застройщика в аренде.
По границам участка расположены:
• с севера – незастроенная территория
• с юга – существующая жилая застройка
• с запада – 4-я улица Марьиной Рощи
• с востока – незастроенная территория с перспективой развития в жилую застройку.
Учредителями являются ООО «Вектор» и ООО «МС-проект».
Девелопер проекта - крупнейшая строительная компания России MR Group (Менеджмент Риэлти Групп). Компания работает на российском рынке с 2003 года и завоевала безупречную деловую репутацию. Достаточно сказать, что четыре жилых комплекса MR Group («MOD», «Hide», «SLAVA» и «Filicity») вошли в рейтинг журнала Forbes в рамках премии URBAN AWARDS, причем «MOD» стал лучшим в премиум-классе.
По данным проектной декларации, опубликованной в мае 2021 года, генеральным подрядчиком строительства выступает ООО «Альфа Строй». Однако в декабре 2021 года на сайте новостройки было сообщено, что по результатам тендера генеральным подрядчиком выбрана компания Acons Group.
Сайт
Сайт новостройки https://www.mr-group.ru/projects/zhk-mod/ детально знакомит посетителя со всеми особенностями проекта.
Экскурсия начинается с главного - выбора квартиры. Для этого на сайте предусмотрен удобный механизм, позволяющий выбирать квартиры по цене, площади, количеству спален, корпусу и этажу.
А если картинка понравилась - можно прямо с сайта оформить ее бронирование.
Подробно описаны преимущества комплекса - транспорт, инфраструктура, благоустройство, общественные пространства внутри зданий.
Есть описание отделки, расклад возможностей ипотечного кредитования, фотографии с места строительства и новости проекта.
Среди материалов, выложенных на сайте, можно найти красочный буклет с описанием жилого комплекса и альбом «Гид по району» с описанием исторических мест, соседствующих с проектом.
Документация по проекту размещена на сайте наш.дом.рф https://наш.дом.рф/сервисы/каталог-новостроек/объект/40279.
Дополнительную Информацию о новостройке можно также найти в социальных сетях Фэйсбук и Инстаграм https://www.facebook.com/zhkmod/ , https://www.instagram.com/zhk_mod/.
А также на сайте агентства недвижимости полного цикла «Бест Новострой», https://best-novostroy.ru/novostroyki_moskva/svao/zhk_mod/ ,которое занимается реализацией жилого фонда новостройки.
Офис продаж
Двухэтажное здание офиса продаж расположено прямо на строительной площадке, так что из окон второго этажа видна вся картина строительства.
Приветливый менеджер на ресепшен и высокопрофессиональный «продажник» в прекрасно оборудованном кабинете для приема посетителей, - все в фирменном стиле компании MR Group.
Выразительный макет новостройки усиливает позитивное впечатление от посещения офиса продаж.
Сколько стоит
В таблице № 2 представлены цены на квартиры в ЖК «Мод».
Таблица 2.
|
Тип квартиры |
Площадь (кв. м) |
Стоимость квартиры (руб.) |
Стоимость одного квадратного метра (руб.) |
|
Однокомнатная |
39,85 - 43,7 |
17 115 575 - 19 815 490 |
429 500-453 444 |
|
Двухкомнатная |
63,73 - 83,3 |
24 376 725 - 43 607 550 |
382 500-523 500 |
|
Трехкомнатная |
82,97 - 108,83 |
28 002 375 - 37 878 810 |
337 500-348 055 |
|
Четырехкомнатная |
111,08 - 112,09 |
40 820 900 - 42 313 975 |
367 491-377 500 |
Средняя цена квадратного метра в новостройке составляет 402 436 рублей.
Сравним цены на двухкомнатные квартиры с отделкой и без в строящихся жилых комплексах премиум-класса в Москве.
Таблица 3.
|
Название ЖК |
Ближайшая станция метро |
Площадь квартир (кв. м.) |
Стоимость квартир (руб.) |
Стоимость одного кв.м. (руб.) |
Отделка |
Срок сдачи |
|
«Третьяковская» |
101,0 |
148 000 000 |
1 465 346 |
Нет |
2 квартал 2024 г. |
|
|
«Виктори Парк Резиденс» |
«Парк Победы» |
65,43 |
57 474 657 |
878 414 |
Есть |
4 квартал 2023 г. |
|
«ЦСК» |
47,4 |
31 287 605 |
660 076 |
Есть |
4 квартал 2022 г. |
|
|
«Река» |
«Мичуринский проспект» |
93,3 |
58 862 970 |
630 900 |
Есть |
3 квартал 2024 г. |
|
«Диалог» |
«Комсомольская» |
66,6 |
40 141 152 |
602 720 |
Нет |
3 квартал 2022 г. |
|
«Хай Лайф» |
«Павелецкая» |
56,0 |
31 590 272 |
564 112 |
Есть |
1 квартал 2025 г. |
|
«МОД» |
«Марьина Роща» |
83,3 |
43 607 550 |
523 500 |
Есть |
4 квартал 2024 г. |
|
«Октябрьское поле» |
59,8 |
27 807 000 |
465 000 |
Нет |
1 квартал 2024 г. |
|
|
«Спартак» |
80,0 |
31 400 000 |
392 500 |
Нет |
3 квартал 2024 г. |
В рейтинге наш проект занимает далеко не первое место.
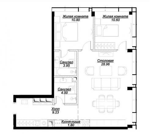
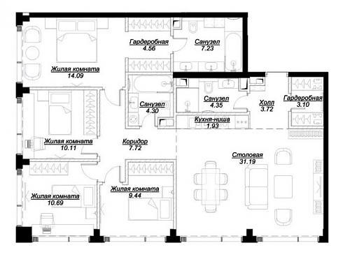
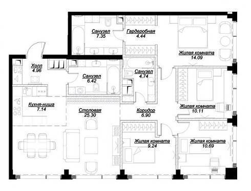
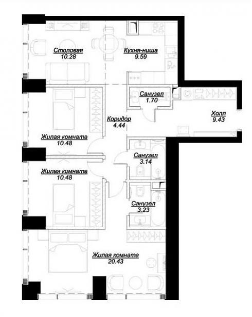
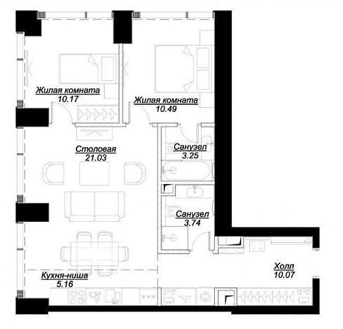
Планировки
В продаже находятся квартиры в корпусах №№ 3 (M) и 7 (D). Это 55-этажные башни, в которых можно найти как однокомнатные квартиры площадью от 40 кв.м., так и двухэтажные пентхаусы на верхних этажах площадью до 112 кв.м. Планировки авторские, их создавали в студии дизайна Leyla Uluhanli. Есть в комплексе и апартаменты в количестве 44 штуки.
Однокомнатные квартиры классического формата располагают входной зоной площадью от 4,15 до 4,21 кв.м., совмещенным санузлом площадью от 4,15 до 6,65 кв.м., кухней-столовой площадью от 15,23 до 17,43 кв.м. и спальней площадью от 13,24 до 15,5 кв.м. В некоторых вариантах планировок встречается гардеробная площадью 3,12 кв.м.
Двухкомнатные квартиры располагают входной зоной площадью от 9,23 до 11,85 кв.м., двумя или тремя санузлами с площадью помещений от 1,67 до 4,0 кв.м., кухнями-столовыми площадью от 26,29 до 30,76 кв.м. и двумя спальнями площадью от 10,6 до 23,16 кв.м. Одна из спален обязательно имеет обособленный выход в санузел (мастер-спальня). Угловые комнаты благодаря панорамному остеклению имеют максимальную освещенность.
Трехкомнатные квартиры оснащены входной зоной площадью от 9,43 до 9,8 кв.м., тремя санузлами с площадью помещений от 1,56 до 6,61 кв.м., кухней-столовой площадью от 19,97 до 33,42 кв.м., тремя спальнями площадью от 10,48 до 20,54 кв.м. Одна из спален имеет собственный санузел. Ощущение простора дополняют внутренние коридоры площадью от 3,87 до 5,63 кв.м.
Четырехкомнатные квартиры спроектированы с максимальным комфортом. Входные зоны площадью от 3,72 до 4,96 кв.м. дополнены внутренними коридорами площадью от 6,9 до 7,72 кв.м. Три санузла с площадью помещений от 4,3 до 7,35 кв.м., кухня-столовая площадью от 32,7 до 33,12 кв.м., четыре спальни площадью от 9,24 до 14,09 кв.м. Имеются квартиры с одной или двумя гардеробными площадью от 3,1 до 4,56 кв.м. Обязательно одна из спален интегрирована с санузлом.
Как купить
Законодательной основой процесса продаж является федеральный закон № 214-ФЗ. В соответствии с этим законом при заключении сделки составляется договор долевого участия, который регистрируется в Росреестре за счет продавца. Покупатель обязан открыть сначала аккредитивный счет в любом банке, положить туда денежные средства, равные стоимости квартиры, а затем, после регистрации договора долевого участия, перевести их на специальный закрытый счет эскроу в Альфа- Банке.
Покупателям доступна услуга бронирования. Устная бронь выбранной квартиры на одни сутки предоставляется бесплатно. При 100% оплате бронь предоставляется на 14 дней, при ипотеке - на 21 день, но за это придется заплатить 1,5 % стоимости квартиры.
Желающим воспользоваться ипотекой девелопер готов помочь найти кредит на выгодных условиях в одном из банков-партнеров.
Инфраструктура
Район Марьиной Рощи - комфортная территория Старой Москвы, где есть все необходимое для жизни.
Место, где строятся небоскребы, пока что представляет из себя уютные кварталы из пятиэтажек.
И хотя пока что новый ЖК стоит как бы в отдалении от имеющейся инфраструктуры, в будущем ситуация изменится - в непосредственной близости появится деловой центр Российских железных дорог, в котором значительное место будет отведено торговым и развлекательным структурам.
Транспорт работает исправно, образовательные учреждения тоже. Со временем на территории ЖК появятся собственная школа и детский сад.
В шаговой доступности появится новая станция метро «Шереметевская», которая войдет с состав Большой кольцевой линии.
Спорткомплекс уже есть, далеко ходить не придется.
Неподалеку много мест, где можно с пользой потратить время и деньги. Например, торговый центр «Райкин Плаза».
Резюме
Преимуществами комплекса являются:
• Московская прописка
• Современная архитектура
• Большой выбор планировок
• Собственный паркинг
• Образовательные учреждения на территории
• Квартиры с отделкой
• Удобное расположение
• Хорошие видовые характеристики
• Высокий уровень безопасности
• Инвестиционная привлекательность
Добавим еще, что собственники квартир в «MOD» автоматически становятся членами приватного клуба, получают право посещать закрытые мероприятия и пользоваться солидными скидками в солидных магазинах.
А вот недостатков не обнаружено. Если не считать «тесноты», которая неизбежно возникает на обжитых московских территориях, где ведется точечная застройка. Где рядом с уютными пяти-, семи и шестнадцатиэтажками вырастают модернистические небоскребы - пятидесятиэтажки.
Об этом пишут пользователи Интернета. Но, как мы видим, преимуществ у данного проекта неизмеримо больше. Значит, и интерес покупателей к нему будет высоким.
Автор: Андрей Петров
Специально для Квартирного контроля

Обсуждение ЖК «MOD»: новый облик старой Москвы