ЖК «Гоголь Парк» возводится на границе с московским районом Косино, но территориально он относится к г.о. Люберцы. Комплекс будет состоять из одного 25-этажного 4-секционного монолитного дома. Ввод в эксплуатацию запланирован на конец 2020 года.
Предварительная разведка
Официальный сайт ЖК «Гоголь Парк» http://gogolpark.ru/ дает потенциальному покупателю вполне внятное представление об объекте. Тут есть описание дома, визуализации, проектная документация, фото со стройплощадки и возможность подобрать квартиру. Выбрать жилье можно либо на генплане, либо через инструмент подбора по параметрам.
Там результаты отображаются либо в виде шахматки, либо в виде таблицы. Клик по квартире приводит нас на страничку с планировкой и основными параметрами.
Не очень удобно, что нельзя каждый вариант из таблицы открыть в отдельной вкладке. Приходится после каждого просмотра квартиры возвращаться к выбору параметров, который при этом сбрасывает все настройки.
Поэтому для выбора все же удобнее пользоваться шахматкой – она позволяет открывать несколько планировок в отдельных окнах. Однако сам скрипт шаматки довольно «тяжелый» и подгружается, простите за каламбур, «со скрипом» – ждать приходится чуть ли не минуту.
Итак, ЖК «Гоголь Парк» в цифрах:
Секций – 4, этажей – 25. Квартир – 713, нежилых помещений – 191, включая 180 кладовых. Первые этажи будут отданы под коммерческие помещения.
РВЭ – IV квартал 2020 года.
Подземного паркинга не предусмотрено, зато планируется обустроить парковочные площадки – платные (355 м/м) и бесплатные (170 м/м) – в окрестностях Комплекса.
Участок с кадастровым номером 50:22:0010105:13243 площадью 15 725 кв. м принадлежит Застройщику на правах аренды. Договор аренды с правом выкупа заключен 27.10.2017 и будет действовать до 31.12.2020.
Застройщик – зарегистрированное в 2015 году АО «Открытые мастерские». Компания входит в Группу Компаний «Основа» – финансово-производственный Холдинг, который был образован 2016 году бывшими акционерами ГК «Мортон». На конец лета 2018 года в портфолио Группы компаний было четыре объекта.
Разведка боем
Обычно в начале своей «разведки» я рассказываю о транспортной доступности Новостройки. Но сейчас случай особый. Сдать в эксплуатацию ЖК «Гоголь Парк» планируется в 2020 году, к этому времени транспортная ситуация микрорайона очень сильно изменится.
Сейчас до Комплекса можно добраться двумя способами. На личном транспорте от МКАД или Вешняков доехать можно по Косинскому шоссе минут за пять-семь (в часы пик можно постоять в небольшой пробке максимум минут 10, трасса широкая и заторов тут практически не бывает). Вообще от Кольцевой до Новостройки – менее 4 км.
Второй способ – общественный транспорт, от ст. м. Выхино ходят автобусы, которые «долетят» до ЖК «Гоголь Парк» минут за десять.
Но к моменту заселения Комплекса ситуация с общественным транспортом в корне изменится. Буквально на рубеже 2018-2019 годов планируется открыть станцию метро «Лухмановская» Кожуховской (другое название – Некрасовской) ветки. Станция будет находиться метрах в трехстах от новостройки. Таким образом, от пересадки на автобус можно будет отказаться.
Вообще, вместе с ростом московского метрополитена обычно меняется и облик территорий, примыкающих к станциям подземки. Точно так же произошло и с данным районом. Пустыри и ряды гаражных комплексов, автомоек и шиномонтажных мастерских постепенно начинают сменяться новостройками.
Часть территорий активно застраивается, на пустыре вырос ЖК «Люберецкий», идет рекультивация довольно большой горы (бывшей ранее полигоном ТБО), на ней планируется открыть ландшафтный парк.
И вот пришло время появления новых жилых домов в «царстве» гаражей и автомоек. Одним из таких домов и должен стать ЖК «Гоголь парк». По сути, это самая что ни на есть точечная застройка – отличие в том, что своим «соседям» она мешать точно не будет, поскольку в соседях у нее – гаражные кооперативы и автомастерские.
В конце лета 2018 года окрестности будущей новостройки все еще выглядят не слишком презентабельно.
А вот как эти окрестности выглядит сверху. Как видим, большинство гаражей «притаились» под деревьями, и промзона не выглядит такой уж серой.
Вид из окна одной из соседних высоток. Монолитный каркас ЖК «Гоголь Парк» на заднем плане.
Впрочем, буквально в полукилометре начинается «цивилизация». К юго-западу от Комплекса – давно заселенный и продолжающий активно развиваться район Люберец. К югу – ЖК «Люберецкий», который со временем обещает «обрасти» неплохой инфраструктурой. А на северо-западе – тоже давно заселенный район Косино. Но обо всем по порядку.
До жилого района Северных Люберец от Новостройки можно дойти минут за пять.
Совсем недавно эта местность была представлена, главным образом, домами середины и конца прошлого века. В начале двухтысячных тут начались массовые сносы ветхого жилья, и район стал застраиваться современными домами. Вместе с изменением архитектурного облика начала появляться и инфраструктура: множество сетевых магазинов, аптек, торговые центры разных размеров.
Основным же центром притяжения района считаются Наташинские пруды с одноименным парком.
Он тоже был в последние годы облагорожен, были проложены дорожки, установлены фонари, скамейки, оборудованы детские и спортивные площадки, есть даже довольно большой детский парк развлечений с каруселями, батутами и другими аттракционами.
От ЖК «Гоголь Парк» до прудов – около километра.
А вот социальная инфраструктура района, в целом, не очень богатая. Есть две поликлиники – взрослая и детская, три школы и три детских сада – в радиусе километра от Новостройки.
Есть детский сад и на территории ЖК «Люберецкий», до него примерно 500 метров по прямой. Также в границах «Люберецкого» планируется построить школу (она будет готова примерно в те же сроки, когда достроят ЖК «Гоголь Парк»).
Район Косино находится чуть дальше от ЖК «Гоголь Парк», но там вполне достаточное число школ и детских садиков. Кроме того, в Косино множество небольших торговых центров и один крупный – с гипермаркетами О’КЕЙ и Леруа Мерлен.
На границе Косино и Люберец, кстати, и будет расположена ст. м. «Лухмановская».
Но вернемся к самой Новостройке. В последних числах августа было возведено уже 3-4 этажа.
Офис продаж расположен возле стройплощадки и автозаправочного комплекса.
В офисе вы можете посмотреть на макет будущего Комплекса, получить консультацию менеджера и буклеты. Кстати, поэтажных планов мне в буклете обнаружить не удалось, хотя на столе у менеджера они были.
Менеджер, кстати, сказала мне, что автозаправки возле дома не будет – она «доживает» последние месяцы. Вместо нее на этом месте появится зеленая зона. Дорога, которая проходит мимо офиса продаж и стройплощадки, тоже прекратит свое существование. Зато новый статус получит Косинское шоссе, которое превратится в часть федеральной трассы Москва – Ногинск – Нижний Новгород – Казань.
На пустыре напротив Новостройки, скорее всего, появятся парк и/или торговый центр.
Часть территорий нынешних гаражных комплексов будет занято наземными паркингами для жителей дома. Паркинги возле дома (170 машиномест) будут бесплатными, чуть поодаль расположатся охраняемые парковки (общей сложностью на 355 м/м). Въезд в ЖК «Гоголь Парк» собираются сделать закрытым (через шлагбаум), так что «чужакам» на парковку будет не пробраться.
Теперь несколько слов о самом доме. Он строится по монолитной технологии, вентилируемые фасады будут облицованы фиброцементными панелями и клинкерной плиткой. Входные группы будут находиться на уровне земли, в подъездах обещают оборудовать просторные колясочные и лобби для гостей. А вот мест для консьержей не предусмотрено: вместо них планируется оснастить каждый подъезд камерами видеонаблюдения.
Что предлагают
Жилье в комплексе будет сдаваться покупателю без отделки, в так называемой «свободной» планировке. Из внутренних работ будет выполнена установка радиаторов, разводка электрики до щитка, разводка сантехники до стояка. Входная дверь – металлическая, под замену. Также выполняется остекление, на лоджиях оно будет панорамным. Окна в квартирах планируется сделать большими, с высотой подоконников на уровне 67 см. Высота потолка от чернового пола – 2.85 м.
Цены на квартиры в ЖК «Гоголь Парк» в конце августа 2018 года*.
|
Квартира |
Площадь, кв. м |
Цена, млн руб. |
||
|
От |
До |
От |
До |
|
|
Студия |
19,95 |
28,30 |
1,84 |
3,10 |
|
1-к |
38,20 |
47,34 |
3,82 |
4,29 |
|
2-к |
44,55 |
68,41 |
4,25 |
5,89 |
|
3-к |
65,28 |
83,40 |
5,21 |
7,25 |
|
4-к |
110,55 |
112,02 |
7,50 |
8,54 |
Замечу, что в число двухкомнатных Застройщик также относит и «евро-двушки». То же – с трех- и четырехкомнатными квартирами. Из-за этого может возникнуть некоторая путаница.
Но начнем по порядку.
Студий на момент моего визита в офис продаж было два практически идентичных варианта (помним, что межкомнатных перегородок в квартире изначально нет):
Были еще три необычные студии, с квадратной комнатной с двумя окнами – все они забронированы, но, возможно, такие варианты еще поступят в продажу, так что упомяну их тут.
Однушки – без особого разнообразия (помним, что пока Застройщик «придерживает» ряд однокомнатных квартир, вероятнее всего, в продажу они выйдут осенью). Есть, впрочем, интересные планировки с большой лоджией.
Однокомнатные и евро-двушки порой имеют одинаковые планировки (квартира слева в таблице вариантов может оказаться и однокомнатной, и евро-двухкомнатной).
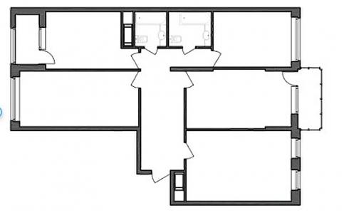
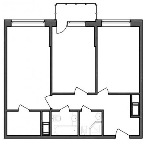
В целом же двушек довольно много, включая довольно интересные варианты – с угловыми окнами.
Трехкомнатных тоже вполне приличный выбор.
В списке вариантов есть также одна четырехкомнатная квартира.
Кроме квартир, продаются также кладовые помещения на минус первом этаже – по цене от 48 тысяч рублей за квадрат.
Как купить
Купить квартиру в ЖК «Гоголь Парк» можно следующим образом. Устное бронирование бесплатно и действует три дня, при этом цена на квартиру не фиксируется. За оформление ДДУ и права собственности на квартиру покупателю придется доплатить 40 тысяч рублей. Если вы планируете купить также и кладовку, то на нее составляется отдельный Договор долевого участия, оформление которого будет стоит еще 40 тысяч. После подписания Договора покупатель должен открыть аккредитивный счет в сбербанке и перевести на него сумму за квартиру.
После регистрации ДДУ в рег. палате (в случае электронной регистрации этот процесс займет около 3 дней, в случае традиционной «бумажной» – около 3 недель) в течение 3 рабочих дней деньги с аккредитива должны перейти на счет Застройщика.
Ипотека возможна в следующих банках:
Существует также возможность рассрочки.
Вариант беспроцентной рассрочки: при первоначальном взносе от 50% выплаты в течение полугода, при взносе 70% – в течение года.
Есть также рассрочка с начислением процента на остаток. При взносе от 30% она дается на полгода с начислением 1%, либо на полтора года с начислением 2% на остаток. При увеличении первоначального взноса процентная ставка может снизиться – в зависимости от длительности рассрочки.
Для сравнения
|
ЖК |
Площадь, кв. м |
Цена, млн руб. |
Срок сдачи |
Материал |
Отделка |
|
Гоголь Парк |
60,99 |
5,28 |
IV квартал 2020 |
Монолит |
Нет |
|
Люберецкий |
62,10 |
5,72 |
II квартал 2020 |
Монолит |
Есть |
|
Люберцы 2018 |
61,30 |
5,50 |
IV квартал 2018 |
Монолит |
Есть |
|
Влюберцы |
70.50 |
6.70 |
I квартал 2021 |
Монолит |
Нет |
|
Люберцы Парк |
56,4 |
5,22 |
IV квартал 2020 |
Монолит-панель |
Есть
|
Что говорят
Поскольку продажи стартовали буквально пару месяцев назад, отзывов о ЖК «Гоголь Парк» пока не очень много. Обсуждения в Сети касаются, главным образом, трех тем. Первая: кто Застройщик, как он связан с ГК «Мортон» и можно ли ему доверять. Вторая: цены на квартиры. Третья: темпы строительства. И если по первым двум пунктам каждый должен составить свое собственное мнение, то информацию по третьей теме можно изучить с помощью Интернета.
Что касается непосредственно отзывов о Новостройке, то они, в массе своей, неплохие.
И в заключение
У ЖК «Гоголь Парк» есть, пожалуй, один существенный минус: виды из окон трудно будет назвать живописными. Вокруг – гаражные комплексы, дороги, поодаль – многоэтажные жилые кварталы. Впрочем, вероятно, после открытия ст. м. «Лухмановская» на месте гаражей появятся дома или торговые центры, ведь территории вблизи станций подземки – это «лакомый кусок» для девелоперов. Условно к минусам также можно отнести отсутствие подземного паркинга и «собственного» детского сада на территории Комплекса.
Плюсов же, мне кажется, довольно много. Во-первых, к моменту сдачи дома в эксплуатацию совсем рядом будет метро. Во-вторых, автомобильная транспортная доступность очень даже неплохая, ведь от МКАД к Комплексу ведет новое широкое Косинское шоссе. В-третьих, в квартирах будет светло, благодаря большим окнам и панорамному остеклению лоджий.
Судя по темпам продаж, цены на жилье в ЖК «Гоголь Парк» многим кажутся вполне приемлемыми. В целом они немного выше, чем у соседей – но за близость к метро, безусловно, приходится платить.
Автор: Мария Борискина
Специально для Квартирного контроля

Обсуждение ЖК «Гоголь Парк» – «точечная» застройка, которая никому не помешает