Москва – грандиозный мегаполис, и вполне естественно, что жилищные проекты, рождающиеся в огромном городе, тоже становятся яркими и масштабными. К таким проектам можно смело отнести многофункциональный жилой комплекс «CityBay», вырастающий на Волоколамском шоссе в Северо-Западном округе столицы. 11 гектаров земли, из которых 5 гектаров отведено од благоустройство – разве это не масштаб? А 10 корпусов высотой до 53 этажей, отражающихся в водах канала имени Москвы – разве это не яркая картина? Имена собственные корпусов, соответствующие названиям четырех мировых океанов, как и название ЖК (его можно перевести как «городская бухта»), также подчеркивают амбициозность проекта.
Как проехать
Новостройка расположена по адресу Москва, Северо-западный административный округ, район Покровское-Стрешнево, Волоколамское шоссе, строение 93 - 97.Проехать к ней нетрудно, поскольку рядом пролегают такие крупнейшие городские автомагистрали как, МКАД и Волоколамское шоссе.
Если свернуть с МКАД на 68 километре, через 3 минуты, окажетесь на территории ЖК.
Если начать движение где-нибудь в центре Москвы, например у метро «Охотный ряд», то на дорогу (18 километров) уйдет примерно полчаса.
Между станцией метро «Тушинская» и ЖК расстояние всего 3 километра, или 4 остановки на автобусе (причем удобных маршрутов очень много).
Платформа «Трикотажная» МЦД-2 расположена в 300 метрах от ЖК.
Что строят
На берегу Спасского затона построят 10 корпусов бизнес-класса переменной этажности, от 1 до 53 этажей. Окончание всех работ намечено на 2027 год. Строительство разбито на 4 очереди, каждой из которых присвоено название одного из мировых океанов.
• Первая - Индийский
• Вторая - Атлантический
• Третья - Северный Ледовитый
• Четвертая - Тихий
Технология строительства – железобетонный монолит с сертифицированным навесным вентилируемым фасадом, отделанным клинкерным кирпичом. В отделке фасадов также применят архитектурный бетон и стемалит. Класс энергоэффективности А (очень высокий) и В (высокий).
Конструктивная схема – каркасно-стеновая, несущие конструкции из монолитного железобетона; лестнично-лифтовые узлы в качестве ядер жесткости.
Фасады, отличительной чертой которых является сочетание алюминия и стекла, разработаны в московском архитектурном бюро «Арт-группа «Камень». А дизайном входных групп занимался известный испанский архитектор ХаймеБериестайн.
В конструкциях зданий используются самые современные материалы и компоненты. Утеплитель фирмы Роквул, стекла с защитой от ультрафиолета фирмы Гардиан, лифты фирмы Шиндлер, фурнитура оконных конструкций от фирмы Рото и тому подобное.
Оконные конструкции обеспечивают полную тепло- и шумоизоляцию, а их панорамное решение – высокую освещенность квартир. Для внешних блоков кондиционеров предусмотрено место в скрытом от внешнего взгляда пространстве на этажах. При установке кондиционеров владельцам не придется штрабить стены, они просто используют проложенные для этих целей строителями кабель-каналы. В некоторых корпусах предусмотрены открывающиеся части панорамных окон, создающие эффект французских балконов и имитирующие наличие балконов, которых конструкцией зданий в принципе не предусмотрено.
Во входных группах запроектирован набор сервисов, характерный для пятизвездочных отелей. Высокие, до 6,5 метров потолки, круглосуточный ресепшен, колясочные, лапомойки, санузел. Плюс бесплатный вай-фай и оригинальные арт-объекты. Вход и выход на две стороны здания предусматривает удобство для маломобильных групп граждан.
Благоустройство общественных пространств продумывали в ландшафтной компании «Артеза». Здесь и взрослые деревья на эксплуатируемых крышах подземного паркинга и торгового комплекса на первом этаже, и сухие фонтаны, и прогулочная зона вдоль набережной Москвы-реки.
На первых этажах разместятся коммерческие структуры, причем выбор их специфики проводился на уровне проектирования. Так, в проекте зафиксированы:
• зоомагазин
• блок помещений бытового обслуживания
• аптека
• блок управляющей компании
• курсы дополнительного образования детей
• магазин товаров для детей
• магазин непродовольственных товаров
• школа английского языка
• продовольственные магазины
• салоны красоты
• ресторан
• кафе (пять штук)
• магазин канцтоваров
• студия танцев
• спортивные залы
• банк
• салон связи
• пиццерия
• детский образовательный центр
• пекарня
Автотранспорт жители комплекса смогут хранить в двухэтажной подземной парковке, расположенной в стилобатной части зданий. Количество машиноместв кварталах первой и второй очереди приближается к 1000. Площадь машиномест от 13 до 23 кв.м., стоимость от 1,7 до 4,5 миллионов рублей. В подземной части зданий разместятся также помещения для хранения личных вещей площадью от 5 до 15 кв.м. и места для хранения велосипедов. Въезд в подземные помещения организуют с помощью системы распознавания номеров. Спуститься в паркинг можно будет на лифте с любого этажа.
В каждой секции установят от 2 до 4 лифтов, на одном этаже запроектировано от 5 до 8 квартир.
Безопасность и комфорт жителей обеспечат современные инженерные системы.
Балансируя между ценой и качеством жилья, застройщик продает квартиры с предчистовой отделкой (формат «вайт бокс» («белая коробка»). Высота потолков в квартирах от 2,85 до 3,1 метра.
В таблице ниже приведены некоторые технические характеристики корпусов первой и второй очереди.
Таблица 1.
|
№№ корп. |
Кол-во этажей |
Общая площ. застр. (кв. м.) |
Кол.секц.
|
Общее кол-во квартир/ машином. /кладов. |
Дата выдачи разр. на стр-во |
Окончание срока действия разр. на стр-во |
Предполагаемая дата введения в эксплуатац. |
|
2, 3, 5, 4, 7, 8 |
1-11-12-13-19-20-21-28-29-52-53- |
8780 |
1-2 |
1597/710/320 |
05.06.2020 г. |
05.03.2024 г. |
4 квартал 2022 г. |
|
1,6 |
54+1-2-3 подз.
|
4 квартал 2023 г. |
|||||
|
1, 2 |
1-53+2 подз |
2796 |
1 |
954/252/57 |
20.10.2022 г. |
20.10.2025 г. |
1 квартал 2025 г. |
В настоящее время корпуса первой очереди полностью построены, корпуса №№ 1 и 2 второй очереди на стадии возведения 4 -5 этажей. Строительство корпуса № 3 второй очереди еще не началось. Выдача ключей в корпусах первой очереди намечена на 30.06.2023 года, в корпусах второй очереди на 30.09.2025 года.
Кто строит
Строительство ведет АО «Специализированный застройщик «Транспортно-пересадочный узел «Лесопарковая». Земельные участки с кадастровыми номерами 77:08:0005010:1538 и 77:08:0005010:1534 принадлежат застройщику на праве собственности. Компания создана в 2014 году и за три года перед подачей проектной декларации на строительство данного ЖК не вела никакого другого жилищного строительства.
Учредитель компании ООО «Покровское-Девелопмент».
Эти структуры входят в состав компании MR Group, крупнейшего российского девелопера, входящего в десятку лучших в России.
В 2022 году MR Group заняла третье место в столице по объемам строительства. В настоящее время в портфеле компании 10 проектов, среди которых ЖК «МОД», «Слава», «Фэймас», «Симфония 34», «Метрополия», «Павелецкая Сити», «Фили Сити».
Компания с безупречной репутацией, но по данным сайта нащ.дом.рф имели место нарушения сроков строительства.
Генеральный подрядчик - компания СУ-10.
Надо отметить, что на строительной площадке пришлось проводить значительные подготовительные работы, связанные со сносом зданий, ранее принадлежавших Национальному центру лазерных систем и комплексов «Астрофизика» и крупнейшим дилерским центрам по продаже иностранных автомобилей.
Сайт
На официальном сайте новостройки https://www.mr-group.ru/projects/zhk-citybay/ размещена актуальная информация об объекте.
На страницах сайта развернут показ расположения, окружения и внешнего вида новостройки.
Уделено достаточно внимания благоустройству дворов и инженерным решениям проекта.
Сайт оснащен удобным механизмом поиска квартир по параметрам: цене, площади, планировке и корпусу.
Имеется генплан в нескольких проекциях, с помощью веб-камер, работающих в реальном времени, представлен видеоотчет о ходе строительства.
Описаны способы покупки, есть возможность познакомиться с рекламными материалами в виде буклетов, выложены новостные материалы.
Доступна и техническая документация, но она размещена не на официальном сайте новостройки, а на сайте наш.дом.рф https://наш.дом.рф/сервисы/каталог-новостроек/объект/36249. Причем на этом сайте представлена документация только по корпусам первой очереди. А данные по второй очереди следует искать на стороннем сайте https://www.metrium.ru/novostroyki/novostroyki-moskvy/zhk-city-bay/documents/.
Сколько стоит
Цены на квартиры в новостройке приведены в таблице ниже.
Таблица 2.
|
Тип квартир |
Площадь (кв. м.) |
Стоимость квартир(руб.) |
Стоимость одного квадратного метра (руб.) |
|
Студия |
21,2 - 28,57 |
9 463 510 – 11 618 521 |
446 392-406 668 |
|
Однокомнатная |
36,8 – 48,44 |
13 241 376 – 17 294 709 |
359 820-357 034 |
|
Двухкомнатная |
52,3 – 70,58 |
15 664 791 – 24 639 872 |
299 518-349 105 |
|
Трехкомнатная |
73,7 – 91,13 |
25 183 779 – 28 955 005 |
341 707-317 733 |
|
Четырехкомнатная |
108,8 – 117,79 |
31 115 937 – 33 679 736 |
285 992-285 930 |
В среднем квадратный метр в новостройке стоит 344 990 рублей. Отметим, что полтора года назад этот показатель составлял 250 267рублей.
В таблице ниже показана стоимость квадратного метра в двухкомнатных квартирах в строящихся домах класса «бизнес» и выше у конкурентов с отделкой и без.
Таблица 3.
|
Название ЖК |
Ближайшая станция метро |
Площадь квартир (кв. м.) |
Стоимость квартир (руб.) |
Стоимость одного кв.м. (руб.) |
Отделка |
Срок сдачи |
|
«Левел Мичуринский» |
«Мичуринский проспект» |
35,3 |
13 931 055 |
394 647 |
Нет |
3 квартал 2024 г. |
|
«Шагал» |
«Технопарк» |
75,8 |
25 932 495 |
342 117 |
Нет |
2 квартал 2024 г. |
|
«Багратионовская» |
61,4 |
19 655 230 |
320 118 |
Есть |
2 квартал 2024 г. |
|
|
«Мичуринский проспект» |
53,71 |
16 134 708 |
300 404 |
Есть |
1 квартал 2024 г. |
|
|
«Сити Бэй» |
«Тушино» |
52,3 |
15 664 791 |
299 518 |
Есть |
4 квартал 2023 |
|
«Водный стадион» |
45,3 |
12 574 464 |
277 582 |
Есть |
3 квартал 2023 |
Видно, что «жилой квартал в городской бухте» явно не стремится к лидерству в стоимости квадратного метра.
Что продают
В продаже квартиры в 10 корпусах площадью от 21 до 117 кв.м. По типу это студии, одно-, двух-, трех- и четырехкомнатные квартиры.
План 2 этажа корпуса 1 первой очереди
План 3 - 19 этажа корпуса 2 первой очереди
План 7 этажа корпуса 2 второй очереди
План11 этажа корпуса 3 первой очереди
План 14 - 20 этажа корпуса 5 первой очереди
План 36 этажа корпуса 1 второй очереди
Планировка студии 21,2
Планировка студии 24,1
Планировка студии 28,57
Скромные по размерам студии располагают входной зоной площадью от 2,1 до 5,1 кв.м., совмещенным санузлом площадью от 2,5 до 3,8 кв.м. и универсальным помещением площадью от 15,4 до 19,7 кв.м.
Планировка однокомнатной квартиры 36,8
Планировка однокомнатной квартиры 43,04
Планировка однокомнатной квартиры 48,44
В однокомнатных квартирах запроектированы входная зона площадью от 3,5 до 4,6 кв.м., один совмещенный или два санузла с площадью помещений от 1,7 до 5,8 кв.м., кухня площадью от 17,2 до 20,2 кв.м. и спальня площадью от 9,9 до 17,2 кв.м. Один из санузлов может находиться в спальне.
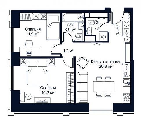
Планировка двухкомнатной квартиры 52,3
Планировка двухкомнатной квартиры 61,29
Планировка двухкомнатной квартиры 70,58
Двухкомнатные квартиры «собраны» из входной зоны площадью от 3,3 до 15,5 кв.м. (с учетом внутреннего коридора), двух санузлов с площадью помещений от 1,4 до 5,0 кв.м., кухни площадью от 16,1 до 22,4 кв.м. и двух спален площадью от 10,5 до 16,2 кв.м. В некоторых спальнях имеется собственный санузел. По расположению комнат квартиры могут быть как односторонними, так и угловыми, в некоторых случаях встречается молированое (изогнутое) стекло.
Планировка трехкомнатной квартиры 73,7
Планировка трехкомнатной квартиры 83,18
Планировка трехкомнатной квартиры 91,13
Трехкомнатные квартиры располагают входной зоной площадью от 5,3 до 7,1 кв.м. (с учетом внутренних коридоров площадь входной зоны может увеличиться на 6 – 7 кв.м.), двумя или тремя санузлами с площадью помещений от 2,0 до 4,8 кв.м., кухней площадью от 16,3 до 22,3 кв.м. и тремя спальнями площадью от 11,0 до 15,0 кв.м. Одна или две спальни включают в себя санузел, встречается гардеробная площадью от 2,5 до 3,0 кв.м. и постирочная площадью 1,8 кв.м. По расположению комнат квартиры могут быть угловыми и распашными.
Планировка четырехкомнатной квартиры 108,8
Планировка четырехкомнатной квартиры 111,79
Планировка четырехкомнатной квартиры 117,79
Просторные четырехкомнатные квартиры предоставляют владельцу входную зону от 7,7 до 8,0 кв.м., которая с учетом внутренних коридоров может увеличиться до 12,0 кв.м., четыре санузла с площадью помещений от 2,0 до 5,7 кв.м., кухню площадью от 19,3 до 30,3 кв.м. и четыре спальни площадью от 11,0 до 19,1 кв.м. Встречается гардеробная площадью 2,5 кв.м. и постирочная площадью от 2,2 до 3,0 кв.м. В квартирах на втором этаже может быть терраса на эксплуатируемой кровле помещений первого этажа площадью 8,4 кв.м. Часть санузлов включена в помещения спальных комнат. Расположение комнат распашное, в некоторых помещениях по два окна.
Офис продаж
Офис продаж, двухэтажное здание с панорамным остеклением, примыкает к строительной площадке. Гостей встречает приветливая девушка на ресепшен, беседы с менеджерами по продажам проходят в одной из двенадцати комфортабельных переговорных.
Рассказ специалиста иллюстрируется с помощью компьютера или плазменной телевизионной панели, в дело идут красочные рекламные альбомы.
Часть неспешной обстоятельной беседы проходит у макета новостройки.
В скором времени на втором этаже заработает шоу-рум. А пока можно из окон офиса продаж наблюдать за работой на строительной площадке.
На площадке перед офисом продаж устроена выставка фасадов, а рекламу новостройки можно увидеть даже в метро.
Как купить
Квартиры продаются с использованием аккредитивных счетов и счетов эскроу, как того требует федеральный закон 214-ФЗ. Счета открываются в банке ДОМ.РФ. Застройщик и покупатель заключают договор долевого участия и денежные средства помещаются на аккредитивный счет. А затем, после регистрации договора в Росреестре, деньги переводятся на счет эскроу. Все расходы по регистрации договора застройщик берет на себя. Покупатель потратится разве что на открытие аккредитивного счета и нотариально заверенное согласие супруга или супруги на покупку, всего не более 5 000 рублей.
Покупателям доступно бронирование выбранной квартиры сроком до 10 дней. Цена этого сервиса – 1,5% от суммы договора, причем это фактически аванс, поскольку впоследствии эти деньги будут учтены при окончательном расчете.
Можно рассчитывать на скидку в размере от 2 до 3%, в зависимости от вида платежа и сроков выхода на сделку.
Ипотечный кредит может быть выгодным, если покупатель прибегнет к услугам специалистов застройщика. Например, в банке ДОМ.РФ можно получить кредит с начальной ставкой 0,1%.
Инфраструктура
Если заглянуть в будущее, то станет ясно, что ЖК обладает совершенной инфраструктурой. Все свое, в шаговой доступности. Будет даже собственная муниципальная школа на 815 мест (правда, в документах новостройки договора о передаче какого-либо образовательного учреждения муниципалитету нет).
На начальном этапе новоселы смогут пользоваться инфраструктурой района Покровское-Стрешнево, которая достаточно развита. Однако, не вся она расположена в шаговой доступности. Зато на автомобиле можно легко достигнуть таких крупных культурных и торговых центров, как концертный зал «Крокус Сити Холл», «Вегас» и «Твой Дом».
Автомобилистам доступны крупнейшие московские парки «Покровское - Стрешнево», «Митино», «Серебряный бор» и «Сходненский ковш», «Братцево». Спортсменам будет интересно осваивать водные виды спорта на Москва-реке и заниматься футболом на стадионе «Открытие Арена». Есть неподалеку и духовный центр – православный храм в честь Преображения Господня.
Резюме
В качестве плюсов ЖК CityBay можно отметить следующее:
• Хорошая транспортная доступность для автомобилистов
• Достойная архитектура,
• Совершенная инженерия
• Надежный застройщик
• Московская прописка
Но есть и недостатки. Часть из них связана с расположением объекта в непосредственной близости от крупных транспортных артерий – Пятницкого шоссе и МКАДа. Мощный транспортный поток неизбежно будет создавать экологическое неблагополучие. Метро отнюдь не близко, а большинство инфраструктурных объектов «отрезано» Волоколамским шоссе.
Еще один аспект – высокая плотность населения. Даже в благоустроенных дворах может быть тесно, если вы живете в домах высотой 53 этажа. Это отмечают пользователи Интернета.
Автор: Андрей Петров
Специально для Квартирного контроля

Обсуждение ЖК «City Bay»: новое лицо мегаполиса