К строительству ЖК «Стеллар Сити» группа компаний «Ташир» в лице ООО «Специализированный застройщик "БАСТИОН"» приступила в марте 2019 года. Несмотря на то, что комплекс расположен у внешней границы МКАД, он находится на территории, административно относящейся к Можайскому району ЗАО Москвы. Автомобильная доступность ЖК обнадеживает настолько же, насколько и разочаровывающей выглядит любая остальная – до ближайших станций метро придется добираться исключительно общественным транспортом, причем путь до ближайших станций займет 32-34 минуты:
или 52 минуты, если нужна Солнцевская линия метрополитена:
На земельном участке площадью 16,187 га к 2024 году появятся 7 жилых корпусов со следующими характеристиками и датами их ввода в эксплуатацию:
к.1: 15 этажей (2 секции), 478 квартир, 135 машиномест, в большинстве своем зависимых, 4 коммерческих помещения, РВЭ получено 30.11.2021.
к.2: 14 этажей (2 секции), 474 квартиры, 161 машиноместо, 6 коммерческих помещений, РВЭ получено 30.11.2021.
к.3: 13 этажей (2 секции), 479 квартир, 180 машиномест, 2 коммерческих помещения, получение РВЭ ожидается в II квартале 2023 года.
к.4: 12 этажей (4 секции), 848 квартир, 289 машиномест, 5 коммерческих помещений, получение РВЭ ожидается в IV квартале 2023 года.
к.5: 12 этажей (2 секции), 464 квартир, 131 машиноместо, 2 коммерческих помещения, получение РВЭ ожидается в IV квартале 2024 года.
к.6: 12 этажей (4 секции), 648 квартир, 354 машиноместа, 5 коммерческих помещений, получение РВЭ ожидается в IV квартале 2024 года.
к.7: 16 этажей (1 секция), 105 квартир, 3 коммерческих помещения, получение РВЭ ожидается в IV квартале 2024 года.
Строительство идет по монолитно-каркасной технологии, навесные вентилируемые фасады будут облицованы керамогранитными плитами:
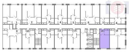
Вектор развития в этом направлении был заложен в поступившим первым в продажу корпусе №1, из поэтажных планов которого сразу стало понятно, что проектировщики ГК Ташир не имеют ничего против размещения на отдельно взятой лестничной клетке немалого количества квартир. Положение выправляет относительно небольшая этажность корпусов Stellar City и внушительное количество лифтов, обслуживающих их секции: в первой секции корпуса №1 при 17 квартирах лифтов будет три,
во второй секции, на этажах которой находится по 15 квартир, лифтов будет четыре:
Учитывая то, что речь идет о высокотехнологичных грузопассажирских машинах от фирмы KONE, время ожидания лифтов должно быть сведено к минимуму.
Студии, весьма похожие по метражу, имеют только одно существенное различие, заключающееся в наличии в окне одной открывающейся створки, превращающей его в некое подобие французского балкона (эти псевдобалконы есть во многих, но не во всех квартирах комплекса):
Официальный сайт ЖК «Стеллар Сити» предлагает покупателю рассмотреть, как классическую, так и студийную планировку однокомнатных квартир, при этом разбивка по внутриквартирным метражам почему-то оказывается недоступной в принципе:
В 50-метровых евро-двушках можно получить отдельную гардеробную комнату, которая останется недоступной в подобных квартирах меньшего метража:
Расположение несущих стен обрекает на евро-планировку и большие двухкомнатные квартиры, хотя именно такие смелые решения способны привлечь особое внимание части покупательской аудитории ЖК:
Трехкомнатные квартиры с тремя изолированными спальнями Ташир счел пережитком прошлого, считая угловые евро-трешки их достойными наследниками:
Квартиры будут передаваться покупателям в свободной планировке без межкомнатных перегородок с высотой потолков 3,1 м и не требующей замены металлической дверью. Если того пожелает покупатель, с ним будет заключено дополнительное соглашение на выполнение предчистовой отделки WHITE BOX, к которой застройщик приступит после получения разрешения на ввод в эксплуатацию.
Временный офис продаж ГК «Ташир» находится на пересечении МКАД и Сколковского шоссе.
Обязательный договор бронирования стоимостью 25 000 рублей позволит зафиксировать цену квартиры на один месяц. Подписав этот документ, покупатель получит негласное право на бесплатное сопровождение государственной регистрации договора участия в долевом строительстве. В течение трех дней после подписания ДДУ покупателю следует открыть аккредитивный счет в указанном застройщиком банке. После появления в Росреестре данных о прохождении регистрации ДДУ деньги отправятся на соответствующий эскроу-счет.
Ипотечный кредит можно получить в банках:










| Месяц / Год | Площадь | Стоимость | Цена м2 | Динамика цены м2 |
|---|---|---|---|---|
| Июнь 2023 | 29,9-31,5 м2 | 6 963 509 - 8 995 865 ₽ | ~265 990 ₽ | -10.75% |
| Март 2023 | 29,9-31,5 м2 | 7 802 250 - 10 079 400 ₽ | ~298 028 ₽ | |
| Февраль 2023 | 29,9-31,5 м2 | 7 802 250 - 10 079 400 ₽ | ~298 028 ₽ | |
| Январь 2023 | 29,9-31,5 м2 | 7 802 250 - 10 079 400 ₽ | ~298 028 ₽ | |
| Декабрь 2022 | 29,9-31,5 м2 | 7 802 250 - 10 079 400 ₽ | ~298 028 ₽ | 0.66% |
| Ноябрь 2022 | 29,9-31,5 м2 | 7 684 300 - 10 079 400 ₽ | ~296 062 ₽ | |
| Октябрь 2022 | 29,9-31,5 м2 | 7 684 300 - 10 079 400 ₽ | ~296 062 ₽ | -1.75% |
| Август 2022 | 29,9-31,5 м2 | 8 000 000 - 10 079 400 ₽ | ~301 323 ₽ | |
| Июль 2022 | 29,9-31,5 м2 | 8 000 000 - 10 079 400 ₽ | ~301 323 ₽ | |
| Июнь 2022 | 29,9-31,5 м2 | 8 000 000 - 10 079 400 ₽ | ~301 323 ₽ | |
| Май 2022 | 29,9-31,5 м2 | 8 000 000 - 10 079 400 ₽ | ~301 323 ₽ | |
| Апрель 2022 | 29,9-31,5 м2 | 8 000 000 - 10 079 400 ₽ | ~301 323 ₽ | 1.59% |
| Март 2022 | 29,9-31,5 м2 | 7 968 350 - 9 828 200 ₽ | ~296 609 ₽ | 4.6% |
| Февраль 2022 | 29,9-31,5 м2 | 7 500 000 - 9 514 200 ₽ | ~283 570 ₽ | |
| Январь 2022 | 29,9-31,5 м2 | 7 499 250 - 9 514 200 ₽ | ~283 558 ₽ | 11.34% |
| Декабрь 2021 | 29,9-31,5 м2 | 7 000 000 - 8 280 480 ₽ | ~254 675 ₽ | -1.73% |
| Ноябрь 2021 | 29,5-31,5 м2 | 7 268 800 - 8 280 480 ₽ | ~259 155 ₽ | 2.54% |
| Октябрь 2021 | 29,5-31,5 м2 | 7 000 000 - 8 164 000 ₽ | ~252 733 ₽ | -1.55% |
| Сентябрь 2021 | 29,5-31,5 м2 | 7 238 000 - 8 164 000 ₽ | ~256 700 ₽ | 0.49% |
| Август 2021 | 29,5-31,5 м2 | 7 115 400 - 8 211 100 ₽ | ~255 442 ₽ | 67.52% |
| Февраль 2020 | 30,6-31 м2 | 4 620 600 - 4 681 000 ₽ | ~152 485 ₽ | |
| Январь 2020 | 30,6-31 м2 | 4 620 600 - 4 681 000 ₽ | ~152 485 ₽ | 13.47% |
| Декабрь 2019 | 30,6-31,2 м2 | 3 673 500 - 4 524 000 ₽ | ~134 385 ₽ | |
| Ноябрь 2019 | 30,6-31,2 м2 | 3 673 500 - 4 524 000 ₽ | ~134 385 ₽ | |
| Октябрь 2019 | 30,6-31,2 м2 | 3 673 500 - 4 524 000 ₽ | ~134 385 ₽ | 2.73% |
| Сентябрь 2019 | 30,6-31,2 м2 | 3 500 000 - 4 479 500 ₽ | ~130 811 ₽ | 7.37% |
| Август 2019 | 30,6-31,2 м2 | 3 014 100 - 4 417 920 ₽ | ~121 836 ₽ | |
| Июль 2019 | 30,6-31,2 м2 | 3 014 100 - 4 417 920 ₽ | ~121 836 ₽ |
| Месяц / Год | Площадь | Стоимость | Цена м2 | Динамика цены м2 |
|---|---|---|---|---|
| Июнь 2023 | 39,9-40,4 м2 | 10 074 750 - 12 625 000 ₽ | ~287 339 ₽ | -4.52% |
| Март 2023 | 39,9-40,4 м2 | 11 150 400 - 12 625 000 ₽ | ~300 954 ₽ | 4.74% |
| Февраль 2023 | 39,9-40,4 м2 | 10 074 750 - 12 625 000 ₽ | ~287 339 ₽ | |
| Январь 2023 | 39,9-40,4 м2 | 10 074 750 - 12 625 000 ₽ | ~287 339 ₽ | -4.52% |
| Декабрь 2022 | 39,9-40,4 м2 | 11 150 400 - 12 625 000 ₽ | ~300 954 ₽ | 4.74% |
| Ноябрь 2022 | 39,9-40,4 м2 | 10 074 750 - 12 625 000 ₽ | ~287 339 ₽ | |
| Октябрь 2022 | 39,9-40,4 м2 | 10 074 750 - 12 625 000 ₽ | ~287 339 ₽ | |
| Август 2022 | 39,9-40,4 м2 | 10 074 750 - 12 625 000 ₽ | ~287 339 ₽ | |
| Июль 2022 | 39,9-40,4 м2 | 10 074 750 - 12 625 000 ₽ | ~287 339 ₽ | |
| Июнь 2022 | 39,9-40,4 м2 | 10 074 750 - 12 625 000 ₽ | ~287 339 ₽ | |
| Май 2022 | 39,9-40,4 м2 | 10 074 750 - 12 625 000 ₽ | ~287 339 ₽ | |
| Апрель 2022 | 39,9-40,4 м2 | 10 074 750 - 12 625 000 ₽ | ~287 339 ₽ | 2.73% |
| Март 2022 | 39,9-40,4 м2 | 9 775 500 - 12 322 000 ₽ | ~279 715 ₽ | 2.35% |
| Февраль 2022 | 39,9-48 м2 | 9 376 500 - 14 400 000 ₽ | ~273 293 ₽ | |
| Январь 2022 | 39,9-48 м2 | 9 376 500 - 14 400 000 ₽ | ~273 293 ₽ | 0.68% |
| Декабрь 2021 | 39,9-48 м2 | 9 216 900 - 14 400 000 ₽ | ~271 459 ₽ | 24.38% |
| Ноябрь 2021 | 39,9-40,4 м2 | 7 000 000 - 10 241 400 ₽ | ~218 246 ₽ | -11.03% |
| Октябрь 2021 | 39,9-40,4 м2 | 9 177 000 - 10 201 000 ₽ | ~245 291 ₽ | 12.66% |
| Сентябрь 2021 | 39,9-40,4 м2 | 7 000 000 - 10 201 000 ₽ | ~217 734 ₽ | |
| Август 2021 | 39,9-40,4 м2 | 7 000 000 - 10 201 000 ₽ | ~217 734 ₽ | 11.14% |
| Август 2020 | 40,4-40,8 м2 | 7 696 200 - 7 976 400 ₽ | ~195 908 ₽ | |
| Июль 2020 | 40-40,8 м2 | 7 696 200 - 7 976 400 ₽ | ~195 908 ₽ | 12.17% |
| Июнь 2020 | 40-47,5 м2 | 6 976 800 - 8 217 500 ₽ | ~174 647 ₽ | |
| Май 2020 | 40-47,5 м2 | 6 976 800 - 8 217 500 ₽ | ~174 647 ₽ | |
| Апрель 2020 | 40-47,5 м2 | 6 976 800 - 8 217 500 ₽ | ~174 647 ₽ | 6.55% |
| Март 2020 | 40-47,5 м2 | 6 280 000 - 7 980 000 ₽ | ~163 908 ₽ | 15.1% |
| Февраль 2020 | 40-47,5 м2 | 5 240 000 - 7 148 750 ₽ | ~142 399 ₽ | |
| Январь 2020 | 40-47,5 м2 | 5 240 000 - 7 148 750 ₽ | ~142 399 ₽ | 11.85% |
| Декабрь 2019 | 40-48 м2 | 4 580 000 - 6 624 000 ₽ | ~127 318 ₽ | |
| Ноябрь 2019 | 40-48 м2 | 4 580 000 - 6 624 000 ₽ | ~127 318 ₽ | |
| Октябрь 2019 | 40-48 м2 | 4 580 000 - 6 624 000 ₽ | ~127 318 ₽ | 3.02% |
| Сентябрь 2019 | 40-48 м2 | 4 275 840 - 6 600 000 ₽ | ~123 589 ₽ | 3.96% |
| Август 2019 | 40-48 м2 | 3 991 520 - 6 470 400 ₽ | ~118 885 ₽ | |
| Июль 2019 | 40-48 м2 | 3 991 520 - 6 470 400 ₽ | ~118 885 ₽ |
| Месяц / Год | Площадь | Стоимость | Цена м2 | Динамика цены м2 |
|---|---|---|---|---|
| Июнь 2023 | 40,4-61,4 м2 | 10 225 800 - 16 731 500 ₽ | ~266 904 ₽ | |
| Март 2023 | 40,4-61,4 м2 | 10 225 800 - 16 731 500 ₽ | ~266 904 ₽ | 0.12% |
| Февраль 2023 | 40,4-61,4 м2 | 10 194 450 - 16 731 500 ₽ | ~266 594 ₽ | |
| Январь 2023 | 40,4-61,4 м2 | 10 194 450 - 16 731 500 ₽ | ~266 594 ₽ | |
| Декабрь 2022 | 40,4-61,4 м2 | 10 194 450 - 16 731 500 ₽ | ~266 594 ₽ | |
| Ноябрь 2022 | 40,4-61,4 м2 | 10 194 450 - 16 731 500 ₽ | ~266 594 ₽ | |
| Октябрь 2022 | 40,4-61,4 м2 | 10 194 450 - 16 731 500 ₽ | ~266 594 ₽ | -0.12% |
| Август 2022 | 40,4-61,4 м2 | 10 225 800 - 16 731 500 ₽ | ~266 904 ₽ | -3.45% |
| Июль 2022 | 40,4-61,4 м2 | 11 190 400 - 16 731 500 ₽ | ~276 454 ₽ | 0.72% |
| Июнь 2022 | 40,4-61,4 м2 | 10 991 700 - 16 731 500 ₽ | ~274 487 ₽ | |
| Май 2022 | 40,4-61,4 м2 | 10 991 700 - 16 731 500 ₽ | ~274 487 ₽ | |
| Апрель 2022 | 40,4-61,4 м2 | 10 991 700 - 16 731 500 ₽ | ~274 487 ₽ | -0.44% |
| Март 2022 | 40,4-61,4 м2 | 11 573 500 - 16 271 000 ₽ | ~275 688 ₽ | 11.31% |
| Февраль 2022 | 39,1-61,4 м2 | 9 110 300 - 15 657 000 ₽ | ~247 673 ₽ | |
| Январь 2022 | 39,1-61,4 м2 | 9 110 300 - 15 657 000 ₽ | ~247 673 ₽ | -0.12% |
| Декабрь 2021 | 39,1-61,4 м2 | 9 385 732 - 15 411 400 ₽ | ~247 971 ₽ | 1.03% |
| Ноябрь 2021 | 39,1-61,4 м2 | 9 132 196 - 15 411 400 ₽ | ~245 436 ₽ | 0.41% |
| Октябрь 2021 | 39,1-61,4 м2 | 9 093 096 - 15 350 000 ₽ | ~244 431 ₽ | |
| Сентябрь 2021 | 39,1-61,4 м2 | 9 093 096 - 15 350 000 ₽ | ~244 431 ₽ | |
| Август 2021 | 39,1-61,4 м2 | 9 093 096 - 15 350 000 ₽ | ~244 431 ₽ | 28.94% |
| Август 2020 | 45,7-69,9 м2 | 8 888 650 - 12 721 800 ₽ | ~189 565 ₽ | |
| Июль 2020 | 45,7-69,9 м2 | 8 888 650 - 12 721 800 ₽ | ~189 565 ₽ | 5.77% |
| Июнь 2020 | 45,7-69,9 м2 | 8 408 800 - 12 022 800 ₽ | ~179 225 ₽ | 2.88% |
| Май 2020 | 45,3-69,9 м2 | 7 836 900 - 12 022 800 ₽ | ~174 208 ₽ | -2.8% |
| Апрель 2020 | 45,7-69,9 м2 | 8 408 800 - 12 022 800 ₽ | ~179 225 ₽ | 6.71% |
| Март 2020 | 45,3-69,9 м2 | 7 403 400 - 11 743 200 ₽ | ~167 953 ₽ | 21.98% |
| Февраль 2020 | 45,3-69,9 м2 | 6 015 500 - 9 681 150 ₽ | ~137 690 ₽ | |
| Январь 2020 | 45,3-69,9 м2 | 6 015 500 - 9 681 150 ₽ | ~137 690 ₽ | 10.03% |
| Декабрь 2019 | 45,3-70,8 м2 | 5 186 850 - 9 204 000 ₽ | ~125 138 ₽ | |
| Ноябрь 2019 | 45,3-70,8 м2 | 5 186 850 - 9 204 000 ₽ | ~125 138 ₽ | |
| Октябрь 2019 | 45,3-70,8 м2 | 5 186 850 - 9 204 000 ₽ | ~125 138 ₽ | 3.12% |
| Сентябрь 2019 | 45,3-70,8 м2 | 4 857 800 - 9 097 800 ₽ | ~121 353 ₽ | 0.89% |
| Август 2019 | 45,3-70,8 м2 | 4 585 400 - 9 246 480 ₽ | ~120 277 ₽ | |
| Июль 2019 | 45,3-70,8 м2 | 4 585 400 - 9 246 480 ₽ | ~120 277 ₽ |
| Месяц / Год | Площадь | Стоимость | Цена м2 | Динамика цены м2 |
|---|---|---|---|---|
| Июнь 2023 | 77,5-79,3 м2 | 19 340 100 - 23 115 950 ₽ | ~272 154 ₽ | |
| Март 2023 | 77,5-79,3 м2 | 19 340 100 - 23 115 950 ₽ | ~272 154 ₽ | |
| Февраль 2023 | 77,5-79,3 м2 | 19 340 100 - 23 115 950 ₽ | ~272 154 ₽ | |
| Январь 2023 | 77,5-79,3 м2 | 19 340 100 - 23 115 950 ₽ | ~272 154 ₽ | |
| Декабрь 2022 | 77,5-79,3 м2 | 19 340 100 - 23 115 950 ₽ | ~272 154 ₽ | |
| Ноябрь 2022 | 77,5-79,3 м2 | 19 340 100 - 23 115 950 ₽ | ~272 154 ₽ | |
| Октябрь 2022 | 77,5-79,3 м2 | 19 340 100 - 23 115 950 ₽ | ~272 154 ₽ | |
| Август 2022 | 77,5-79,3 м2 | 19 340 100 - 23 115 950 ₽ | ~272 154 ₽ | 0.48% |
| Июль 2022 | 77,5-79,3 м2 | 19 340 100 - 22 912 100 ₽ | ~270 847 ₽ | |
| Июнь 2022 | 77,5-79,3 м2 | 19 340 100 - 22 912 100 ₽ | ~270 847 ₽ | |
| Май 2022 | 77,5-79,3 м2 | 19 340 100 - 22 912 100 ₽ | ~270 847 ₽ | -0.48% |
| Апрель 2022 | 77,5-79,3 м2 | 19 340 100 - 23 115 950 ₽ | ~272 154 ₽ | 2.77% |
| Март 2022 | 77,5-79,3 м2 | 18 792 000 - 22 521 200 ₽ | ~264 828 ₽ | 0.41% |
| Февраль 2022 | 78,3-79,3 м2 | 17 617 500 - 23 790 000 ₽ | ~263 742 ₽ | |
| Январь 2022 | 78,3-79,3 м2 | 17 617 500 - 23 790 000 ₽ | ~263 742 ₽ | 0.76% |
| Декабрь 2021 | 78,3-79,3 м2 | 17 304 300 - 23 790 000 ₽ | ~261 747 ₽ | 3.9% |
| Ноябрь 2021 | 76,9-79,3 м2 | 17 304 300 - 21 743 743 ₽ | ~251 923 ₽ | 0.41% |
| Октябрь 2021 | 76,9-79,3 м2 | 17 226 000 - 21 664 443 ₽ | ~250 906 ₽ | |
| Сентябрь 2021 | 76,9-79,3 м2 | 17 226 000 - 21 664 443 ₽ | ~250 906 ₽ | |
| Август 2021 | 76,9-79,3 м2 | 17 226 000 - 21 664 443 ₽ | ~250 906 ₽ | 39.97% |
| Август 2020 | 77-78,6 м2 | 12 654 600 - 15 130 500 ₽ | ~179 259 ₽ | |
| Июль 2020 | 77-78,6 м2 | 12 654 600 - 15 130 500 ₽ | ~179 259 ₽ | 3.73% |
| Июнь 2020 | 77-78,6 м2 | 12 480 000 - 14 305 200 ₽ | ~172 808 ₽ | |
| Май 2020 | 77-78,6 м2 | 12 480 000 - 14 305 200 ₽ | ~172 808 ₽ | |
| Апрель 2020 | 77-78,6 м2 | 12 480 000 - 14 305 200 ₽ | ~172 808 ₽ | 18.03% |
| Март 2020 | 77-78,6 м2 | 9 589 200 - 13 104 000 ₽ | ~146 408 ₽ | 16.56% |
| Февраль 2020 | 77-78,7 м2 | 8 229 000 - 11 239 800 ₽ | ~125 605 ₽ | |
| Январь 2020 | 77-78,7 м2 | 8 229 000 - 11 239 800 ₽ | ~125 605 ₽ | 6.5% |
| Декабрь 2019 | 76,9-79,8 м2 | 7 892 500 - 10 388 300 ₽ | ~117 941 ₽ | |
| Ноябрь 2019 | 76,9-79,8 м2 | 7 892 500 - 10 388 300 ₽ | ~117 941 ₽ | |
| Октябрь 2019 | 76,9-79,8 м2 | 7 892 500 - 10 388 300 ₽ | ~117 941 ₽ | 1.14% |
| Сентябрь 2019 | 76,9-79,6 м2 | 7 766 900 - 10 308 200 ₽ | ~116 614 ₽ | 6.06% |
| Август 2019 | 76,9-79,6 м2 | 6 921 000 - 10 121 760 ₽ | ~109 953 ₽ | |
| Июль 2019 | 76,9-79,6 м2 | 6 921 000 - 10 121 760 ₽ | ~109 953 ₽ |
| Месяц / Год | Площадь | Стоимость | Цена м2 | Динамика цены м2 |
|---|---|---|---|---|
| Июнь 2023 | 114-114,7 м2 | 31 122 000 - 33 836 500 ₽ | ~284 906 ₽ | |
| Март 2023 | 114-114,7 м2 | 31 122 000 - 33 836 500 ₽ | ~284 906 ₽ | |
| Февраль 2023 | 114-114,7 м2 | 31 122 000 - 33 836 500 ₽ | ~284 906 ₽ | |
| Январь 2023 | 114-114,7 м2 | 31 122 000 - 33 836 500 ₽ | ~284 906 ₽ | |
| Декабрь 2022 | 114-114,7 м2 | 31 122 000 - 33 836 500 ₽ | ~284 906 ₽ | |
| Ноябрь 2022 | 114-114,7 м2 | 31 122 000 - 33 836 500 ₽ | ~284 906 ₽ | |
| Октябрь 2022 | 114-114,7 м2 | 31 122 000 - 33 836 500 ₽ | ~284 906 ₽ | |
| Август 2022 | 114-114,7 м2 | 31 122 000 - 33 836 500 ₽ | ~284 906 ₽ | |
| Июль 2022 | 114-114,7 м2 | 31 122 000 - 33 836 500 ₽ | ~284 906 ₽ | |
| Июнь 2022 | 114-114,7 м2 | 31 122 000 - 33 836 500 ₽ | ~284 906 ₽ | |
| Май 2022 | 114-114,7 м2 | 31 122 000 - 33 836 500 ₽ | ~284 906 ₽ | |
| Апрель 2022 | 114-114,7 м2 | 31 122 000 - 33 836 500 ₽ | ~284 906 ₽ | 2.9% |
| Март 2022 | 114-114,7 м2 | 30 210 000 - 32 918 900 ₽ | ~276 881 ₽ | 3.76% |
| Февраль 2022 | 114-114,7 м2 | 29 070 000 - 31 771 900 ₽ | ~266 850 ₽ | |
| Январь 2022 | 114-114,7 м2 | 29 070 000 - 31 771 900 ₽ | ~266 850 ₽ | -0.3% |
| Декабрь 2021 | 114-114,7 м2 | 29 161 200 - 31 863 660 ₽ | ~267 653 ₽ | |
| Ноябрь 2021 | 114-114,7 м2 | 29 161 200 - 31 863 660 ₽ | ~267 653 ₽ | 2.22% |
| Октябрь 2021 | 114-114,7 м2 | 28 500 000 - 31 198 400 ₽ | ~261 835 ₽ | |
| Сентябрь 2021 | 114-114,7 м2 | 28 500 000 - 31 198 400 ₽ | ~261 835 ₽ | -0.29% |
| Август 2021 | 114-114,7 м2 | 28 500 000 - 31 370 450 ₽ | ~262 590 ₽ |
Обсуждение ЖК "Stellar City" (ЖК Стеллар Сити в Сколково)