ЖК «Призма» находится в 300 метрах от Ленинского проспекта, но именно с этой магистралью комплекс ассоциируется в умах большинства потенциальных покупателей (не вполне понятно, чем им не угодила улица Обручева). Комплекс состоит из одного корпуса весьма оригинальной геометрической формы, что отчасти объясняет мотивацию компании «Флэт и Ко», выведшей его на рынок как отдельный проект вне строящегося здесь же Квартала 38А.
Не следует забывать также о том, что и квартиры здесь стоят подороже, да и сам дом позиционируется на полкласса выше, чем соседние корпуса.
При росте в 23 этажа, в «Призме» разместилось 165 квартир и 300 машиномест в четырехуровневом подземном паркинге. На первом этаже появятся инфраструктурные объекты, на благоустроенной территории будут обустроены спортивные и детские площадки:
Интерьер входных групп и мест общего пользования выглядит также необычно, как и фасады здания (о том, является ли изображенные на рендерах человек играющим консьержем или гастролирующем пианистом, официальный сайт ЖК «Призма», не сообщает):
Застройщик комплекса, ООО «Ремстройтрест» планирует получить разрешение на ввод в эксплуатацию в III квартале 2022 года.
На этажах со второго по седьмой в ЖК «Призма» расположено по 8 квартир,
с восьмого по двадцать второй квартир на лестничной клетке станет на одну меньше:
Казалось бы, на последний этаж так и просятся огромные пентхаусы, но нет, застройщик сумел здесь всех по-настоящему удивить, а заодно и нехило подзаработать:
Однокомнатных квартир в «Призме» нет, помимо отряда «верхних» двушек», на других этажах встречаются два типа двухкомнатных квартир и один евро-вариант:
В трехкомнатных квартирах дома изредка попадаются параллельные друг другу стены, но в основном бал здесь правит занимательная геометрия:
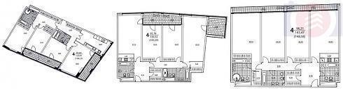
Четырехкомнатные квартиры в большей степени тяготеют к классическим формам:
1. Собственники получат квартиры в свободной планировке, положение межкомнатных перегородок укажет трассировка в один блок.
2. Межквартирные стены будут двух типов – монолитные и газобетонные.
3. Высота потолков до ремонта составит 2,85 м.
4. Металлическая входная дверь должны быть весьма качественной.
5. В квартирах, расположенных ниже 23 этажа иногда встречается панорамное остекление с выходом на узкую террасу.
6. На 22-23 этажах в ряде квартир есть опция, совершенно не подходящая людям слабонервным – имеющиеся в них балкончики, практически, висят в воздухе. Времяпровождение, сидя на такой высоте в прозрачном аквариуме, и имея при этом под собой 30 см железобетона, представляется тем еще удовольствием, но кому-то понравится наверняка:
Офис продаж «Флэт и Ко», работающий ежедневно с 11:00 до 19: 00, находится напротив стройплощадки Квартала 38А.
Продажи идут по переуступке прав требования по договору участия в долевом строительстве. При покупке с использованием 100% формы оплаты покупатель после подписания договора должен будет открыть аккредитивный счет в банке «Возрождение». При покупке в ипотеку аккредитив открывается в банке, выдавшем кредит. Комплекс аккредитован в банках:










| Месяц / Год | Площадь | Стоимость | Цена м2 | Динамика цены м2 |
|---|---|---|---|---|
| Январь 2020 | 61,39-61,39 м2 | 27 726 890 - 27 726 890 ₽ | ~454 539 ₽ | |
| Декабрь 2019 | 61,39-61,39 м2 | 27 726 890 - 27 726 890 ₽ | ~454 539 ₽ | |
| Ноябрь 2019 | 61,39-61,39 м2 | 27 726 890 - 27 726 890 ₽ | ~454 539 ₽ | |
| Октябрь 2019 | 61,39-61,39 м2 | 27 726 890 - 27 726 890 ₽ | ~454 539 ₽ | |
| Сентябрь 2019 | 61,39-61,39 м2 | 27 726 890 - 27 726 890 ₽ | ~454 539 ₽ | -5.22% |
| Август 2019 | 61,39-61,39 м2 | 27 726 890 - 30 782 800 ₽ | ~479 588 ₽ | |
| Июль 2019 | 61,39-61,39 м2 | 27 726 890 - 30 782 800 ₽ | ~479 588 ₽ |
| Месяц / Год | Площадь | Стоимость | Цена м2 | Динамика цены м2 |
|---|---|---|---|---|
| Декабрь 2021 | 62,98-81,73 м2 | 27 712 300 - 40 383 600 ₽ | ~476 195 ₽ | 25.95% |
| Август 2020 | 60,52-78,54 м2 | 15 220 000 - 36 953 800 ₽ | ~378 071 ₽ | 8.7% |
| Июль 2020 | 60,52-90,2 м2 | 15 220 000 - 36 953 800 ₽ | ~347 825 ₽ | 2.67% |
| Июнь 2020 | 60,52-94,3 м2 | 15 220 000 - 36 953 800 ₽ | ~338 791 ₽ | |
| Май 2020 | 60,52-94,3 м2 | 15 220 000 - 36 953 800 ₽ | ~338 791 ₽ | |
| Апрель 2020 | 60,52-94,3 м2 | 15 220 000 - 36 953 800 ₽ | ~338 791 ₽ | |
| Март 2020 | 60,52-94,3 м2 | 15 220 000 - 36 953 800 ₽ | ~338 791 ₽ | |
| Февраль 2020 | 60,52-94,3 м2 | 15 220 000 - 36 953 800 ₽ | ~338 791 ₽ | -8.2% |
| Январь 2020 | 60,52-94,3 м2 | 15 220 000 - 41 616 340 ₽ | ~369 067 ₽ | |
| Декабрь 2019 | 60,52-94,3 м2 | 15 220 000 - 41 616 340 ₽ | ~369 067 ₽ | |
| Ноябрь 2019 | 60,52-94,3 м2 | 15 220 000 - 41 616 340 ₽ | ~369 067 ₽ | 1.98% |
| Октябрь 2019 | 60,52-94,3 м2 | 14 118 070 - 41 616 340 ₽ | ~361 912 ₽ | |
| Сентябрь 2019 | 60,52-94,3 м2 | 14 118 070 - 41 616 340 ₽ | ~361 912 ₽ | -7.54% |
| Август 2019 | 60,52-94,3 м2 | 14 118 070 - 46 160 600 ₽ | ~391 420 ₽ | 0.09% |
| Июль 2019 | 60,52-94,3 м2 | 14 062 540 - 46 160 600 ₽ | ~391 059 ₽ |
| Месяц / Год | Площадь | Стоимость | Цена м2 | Динамика цены м2 |
|---|---|---|---|---|
| Декабрь 2021 | 108,43-129,3 м2 | 34 372 310 - 42 967 600 ₽ | ~326 329 ₽ | 40.11% |
| Август 2020 | 114,94-132,7 м2 | 25 058 120 - 32 235 700 ₽ | ~232 902 ₽ | 0.34% |
| Июль 2020 | 113,86-132,7 м2 | 24 633 760 - 32 235 700 ₽ | ~232 120 ₽ | |
| Июнь 2020 | 113,86-132,7 м2 | 24 633 760 - 32 235 700 ₽ | ~232 120 ₽ | |
| Май 2020 | 113,86-132,7 м2 | 24 633 760 - 32 235 700 ₽ | ~232 120 ₽ | |
| Апрель 2020 | 113,86-132,7 м2 | 24 633 760 - 32 235 700 ₽ | ~232 120 ₽ | |
| Март 2020 | 113,86-132,7 м2 | 24 633 760 - 32 235 700 ₽ | ~232 120 ₽ | -0.6% |
| Февраль 2020 | 92,75-132,7 м2 | 20 074 000 - 32 235 700 ₽ | ~233 525 ₽ | |
| Январь 2020 | 92,75-132,7 м2 | 20 074 000 - 32 235 700 ₽ | ~233 525 ₽ | |
| Декабрь 2019 | 92,75-132,7 м2 | 20 074 000 - 32 235 700 ₽ | ~233 525 ₽ | |
| Ноябрь 2019 | 92,75-132,7 м2 | 20 074 000 - 32 235 700 ₽ | ~233 525 ₽ | |
| Октябрь 2019 | 92,75-132,7 м2 | 20 074 000 - 32 235 700 ₽ | ~233 525 ₽ | |
| Сентябрь 2019 | 92,75-132,7 м2 | 20 074 000 - 32 235 700 ₽ | ~233 525 ₽ | -6.26% |
| Август 2019 | 92,75-132,7 м2 | 20 074 000 - 35 726 800 ₽ | ~249 111 ₽ | |
| Июль 2019 | 92,75-132,7 м2 | 20 074 000 - 35 726 800 ₽ | ~249 111 ₽ |
| Месяц / Год | Площадь | Стоимость | Цена м2 | Динамика цены м2 |
|---|---|---|---|---|
| Декабрь 2021 | 127,07-153,26 м2 | 38 329 940 - 46 770 520 ₽ | ~303 930 ₽ | 33.24% |
| Август 2020 | 122,23-164,23 м2 | 28 413 600 - 36 827 520 ₽ | ~228 116 ₽ | -2.08% |
| Июль 2020 | 122,23-164,23 м2 | 28 413 600 - 38 211 380 ₽ | ~232 954 ₽ | |
| Июнь 2020 | 122,23-164,23 м2 | 28 413 600 - 38 211 380 ₽ | ~232 954 ₽ | |
| Май 2020 | 122,23-164,23 м2 | 28 413 600 - 38 211 380 ₽ | ~232 954 ₽ | |
| Апрель 2020 | 122,23-164,23 м2 | 28 413 600 - 38 211 380 ₽ | ~232 954 ₽ | |
| Март 2020 | 122,23-164,23 м2 | 28 413 600 - 38 211 380 ₽ | ~232 954 ₽ | 0.41% |
| Февраль 2020 | 122,23-164,23 м2 | 28 143 600 - 38 211 380 ₽ | ~232 010 ₽ | -0.94% |
| Январь 2020 | 119,28-164,23 м2 | 28 070 800 - 38 211 380 ₽ | ~234 213 ₽ | |
| Декабрь 2019 | 119,28-164,23 м2 | 28 070 800 - 38 211 380 ₽ | ~234 213 ₽ | |
| Ноябрь 2019 | 119,28-164,23 м2 | 28 070 800 - 38 211 380 ₽ | ~234 213 ₽ | |
| Октябрь 2019 | 119,28-164,23 м2 | 28 070 800 - 38 211 380 ₽ | ~234 213 ₽ | |
| Сентябрь 2019 | 119,28-164,23 м2 | 28 070 800 - 38 211 380 ₽ | ~234 213 ₽ | -5.92% |
| Август 2019 | 119,28-164,23 м2 | 28 070 800 - 42 383 960 ₽ | ~248 957 ₽ | |
| Июль 2019 | 119,28-164,23 м2 | 28 070 800 - 42 383 960 ₽ | ~248 957 ₽ |
Обсуждение ЖК "PRIZMA" (Призма)