Поселившись вблизи федеральной автомобильной трассы, трудно рассчитывать на экологический комфорт. Но если сама ваша квартира будет построена качественно и с учетом современных тенденций в архитектуре и домовой инженерии, возможно, экологические неудобства (а где в Москве их нет?) отступят на второй план. А если неподалеку еще и железнодорожная магистраль (и не просто «железка», а Второй Московский центральный диаметр), то приобретение квартиры в таком месте точно можно считать удачным. А что там с инфраструктурой, с ценой, со сроками? Давайте побываем на месте строительства и увидим все собственными глазами.
Как проехать
Строительство ведется по адресу Москва, Юго-Западный административный округ, район Южное Бутово, Варшавское шоссе, 1-й планировочный комплекс промзоны «Бутово».
На автомобиле доехать от МКАДа (съезд 33 километра) можно за 10 минут (расстояние 7 километров).
На электричке от Курского вокзала до станции Щербинка поезд идет около 50 минут. А там 20 минут пешком – и вы дома. Можно сесть на электричку, доехав на метро до станции «Царицыно».
Есть и автобусное сообщение, как по Варшавскому шоссе, на которое смотрят окна ЖК, так и от железнодорожной станции. На автобусе можно за 29 – 30 минут доехать до станции метро «Бульвар Дмитрия Донского».
В настоящее время ведется строительство транспортно-пересадочного узла «Щербинка».
Что строят
Планом застройки предусмотрено строительство в бывшей промзоне «Южное Бутово» 50 многоквартирных домов. Кроме того, запланировано строительство трех детских садов (всего 550 мест), двух школ (500 и 600 мест) и поликлиники. Все это, заметим, в бывшей промзоне «Южное Бутово», реновация которой стала целью московских властей.
Общая площадь проекта 63,3 гектара, технология строительства - панельное домостроение. Класс новостройки «комфторт», класс энергоэффективности А (очень высокий).
О начале строительства было объявлено в ноябре 2021 года. В настоящее время сданы в эксплуатацию корпуса первой очереди, №№ 1.1, 1.2 и 1.3.ведется строительство корпусов второй и третьей очереди.
Стены зданий собраны из трехслойных панелей толщиной 270 миллиметров, утеплены хэкструдированным пенополистиролом. Фасады отделают керамической плиткой теплых тонов. Этот процесс проходит прямо на собственных заводах застройщика, так что на стройплощадку панели попадают уже с отделкой и остеклением. В квартирах запроектированы балконы, под каждым окном установят корзины для внешних блоков кондиционеров.
Сквозные подъезды с витражным остеклением расположены на уровне земли с учетом потребностей маломобильных граждан.
Дома многосекционные, от 1 до 3секций. Количество этажей от 11 до 17, в одной секции на этаже от 5 до 14 квартир. В каждой секции установят 1 или 2 скоростных бесшумных лифта, предусматривающие, в том числе, возможность перевозки пожарных подразделений.
На первых этажах запроектированы коммерческие помещения площадью от 78 до 266кв.м. Здесь развернут свою деятельность разнообразные предприятия торговли и сферы услуг, создавая дополнительный комфорт жителям комплекса.
А в подвальном помещении запроектированы кладовые площадью от 3 до 6,2 кв.м. Подземной автопарковки не будет, хранить машины можно будет только на открытых стоянках на территории. Количество мест рассчитано по нормативам, а это значит, что на всех не хватит.
Двор без доступа автомашин (за исключением спецтранспорта), с продуманным зонированием для удовлетворения потребностей жителей в занятиях спортом, спокойном отдыхе и игровых площадках для детей. Пешеходный променад, пруды, игровые площадки в формате PlayHub – все для комфорта счастливых собственников. Можно по двору и на самокате покататься, но только с малой скоростью, не более 15 километров в час.
Высота потолков в квартирах от 2,62 до 2,75 метра. Квартиры продаются с чистовой отделкой. То есть, на полу будет уложен ламинат и керамогранит, на стены поклеены обои под покраску, устроен натяжной потолок и разведена электрика и сантехника. Установлены металлические входные двери и деревянные межкомнатные.
Инженерные системы обеспечат контроль доступа в здания и во двор, видеокамеры настроят на работу в круглосуточном режиме.
В таблице приведены некоторые технические данные по строящимся корпусам:
Таблица 1.
|
№№ корп. |
Кол-во этажей |
Общая площ. застр. (кв. м.) |
Кол.секц.
|
Общее кол-во квартир/ кладовых/офисных пом. |
Дата выдачи разр. на стр-во |
Окончание срока действия разр. на стр-во |
Предполагаемая дата введения в эксплуатац. |
|
1.1 |
2-10-17+1 подз. |
2781 |
4 |
464/208/14 |
25.10.2021 г. |
25.10.2024 г. |
Введены в эксплуатацию 04.08.2023 г. |
|
1.2 |
2-10-17+1 подз. |
3311 |
4 |
448/208/18 |
|||
|
1.3 |
2-9+1 подз. |
778 |
1 |
48/52/7 |
|||
|
2.1 |
1-9-12+1 подз |
2488 |
3 |
328/150/15 |
19.10.2022 г. |
19.10.2025 г. |
4 квартал 2024 г. |
|
2.2 |
1-17+1 подз |
847 |
1 |
192/52/4 |
4 квартал 2024 г. |
||
|
2.3 |
1-9-17+1 подз |
2189 |
2 |
253/105/7 |
16.12.2022 г. |
13.12.2024 г. |
4 квартал 2024 г |
|
2.4 |
9+1 подз |
817 |
1 |
112/40/6 |
19.10.2022 г. |
19.10.2025 г. |
4 квартал 2024 г |
|
3.1 |
1-11-17+1 подз |
1830 |
3 |
276/67/10 |
29.08.2023 г. |
29.08.2025 г. |
3 квартал 2025 г. |
|
3.2 |
1-11-17+1 подз |
3143 |
3 |
356/109 |
3 квартал 2025 г. |
Корпуса 1.1, 1.2 и 1.3 сданы в эксплуатацию.
Передать ключи собственникам квартир застройщик планирует:
• в корпусах 2.1, 2.2 и 2.4 - 30.01.2025 года.
• в корпусе 2.3 - 28.02.2025 года
• в корпусах 3.1 и 3.2 - 30.11.2025 года
Кто строит
Строительство ведет ООО «Специализированный застройщик «Териберский Берег», земельный участок с кадастровым номером 77:06:0012017:1000 принадлежит застройщику на праве аренды. Компания создана в ноябре 2003 года. В трехлетний период до подачи проектной декларации она вела строительство ЖК «Калипсо-3».
Участок ограничен:
• с севера – территорией бульвара
• с запада – территорией перспективной застройки жилого комплекса
• с востока - проектируемым проездом
• с юга – территорией последующей застройки жилого комплекса
Земельный участок расположен в границах зоны ограничения строительства по высоте аэродрома Остафьево. Часть земельного участка расположена в границах зоны сильного подтопления.
Учредитель компании застройщика ООО «ПИК-ИНВЕСТПРОЕКТ». Данная компания входит в состав строительного холдинга «ПИК». Это крупнейший девелопер московского региона и других регионов России, одна из системообразующих строительных структур страны.
Название ПИК на слуху у потенциальных дольщиков в сфере жилищного строительства, компания имеет высокую деловую репутацию. Но наряду с достижениями и успехами есть в ее деятельности и просчеты. В частности, допускались срывы объявленных сроков сдачи объектов в эксплуатацию.
Генеральный подрядчик ООО «ГлобалСтройТех».
Сайт
Основная информация о комплексе доступна на официальном сайте https://www.pik.ru/nluga.
В поле зрения пользователя оказываются:
• Генеральный план
• Описание инфраструктурных объектов
• Способы покупки
• Ход строительства
• Новости
• Документация
А самое главное – удобный механизм выбора квартир по параметрам. Причем при выборе доступны такие детали, как виртуальный тур по квартире с возможностью определить реальные размеры деталей, вид из окон, место квартиры на этаже и на генеральном плане.
Дополнительную информацию можно получить, зайдя на сайт наш.дом.рф.
https://наш.дом.рф/сервисы/каталог-новостроек/объект/43312
https://наш.дом.рф/сервисы/проверка_новостроек/48548
а также в социальных сетях
https://t.me/nikolskiyeluga
https://vk.com/nikolskiyeluga?ysclid=lnum9j3q23565752988
Офис продаж
На объекте отсутствует, все операции по выбору квартиры, ее бронированию и оплате можно провести удаленно в сети Интернет.
Сколько стоит
Таблица 2.
|
Тип квартиры |
Площадь (кв. м) |
Стоимость квартиры (руб.) |
Стоимость одного квадратного метра (руб.) |
|
Студия |
19,8 – 25,7 |
5 601 420 – 6 974 980 |
282 900-271 400 |
|
Однокомнатная |
36,3 – 46,8 |
8 120 310 – 8 962 200 |
223 700-191 500 |
|
Двухкомнатная |
50,4 – 69,6 |
10 604 160 – 12 618 480 |
210 400-181 300 |
|
Трехкомнатная |
60,3 – 87,6 |
13 574 560 – 16 065 840 |
225 117-183 400 |
Средняя стоимость квадратного метра в новостройке составляет 221 215 рублей. Отметим, что полтора года назад он стоил 192 813 рублей.
Сравним цены на двухкомнатные квартиры с отделкой в строящихся домах комфорт - класса в Москве.
Таблица 3.
|
Название ЖК |
Станция метро |
Площадь квартир (кв. м.) |
Стоимость квартир (руб.) |
Стоимость одного кв.м. (руб.) |
Отделка |
Срок сдачи |
|
«Авиамоторная» |
52,4 |
20 598 440 |
393 100 |
Есть |
1 квартал 2025 г. |
|
|
«Первый Дубровский» |
«Волгоградский проспект» |
54,0 |
18 840 600 |
348 900 |
Есть |
2 квартал 2025 г. |
|
«Нижегородская» |
58,63 |
19 553 105 |
333 500 |
Есть |
4 квартал 2024 г. |
|
|
«Второй Нагатинский» |
«Коломенская» |
50,1 |
16 598 130 |
331 300 |
Есть |
2 квартал 2025 г. |
|
«Окская» |
51,07 |
16 454 754 |
322 200 |
Есть |
4 квартал 2024 г. |
|
|
«Кантемировская»» |
53,9 |
15 943 620 |
295 800 |
Есть |
3 квартал 2025 г. |
|
|
«Братиславская» |
50,8 |
12 814 401 |
252 252 |
Есть |
4 квартал 2025 г. |
|
|
«Бунинская аллея» |
51,7 |
12 941 918 |
250 327 |
Нет |
2 квартал 2025 г. |
|
|
«Никольские луга» |
«Улица Скобелевская» |
50,4 |
10 604 160 |
210 400 |
Есть |
3 квартал 2025 г. |
В данном рейтинге «Никольские луга» занимают место в самом конце списка.
Что продают
В продаже квартиры-студии, одно-, двух- и трехкомнатные квартиры площадью от 19,8 до 87,8 кв.м. в корпусах №№ 2.1 ,2.2, 2.3, 2.4, 3.1 и 3.2.
План 12 этажа секции 1 корпуса 1.1.
План 2 этажа секции 1 корпуса 1.3.
План 17 этажа секции 4 корпуса 1.2.
План 8 этажа корпуса 2.1
План 8 этажа корпуса 3.2
План 8 этажа корпуса 3.1
План 9 этажа корпуса 2.2
План 9 этажа корпуса 2.3
План 9 этажа корпуса 2.4
Планировка студии 19,8
Планировка студии 22,0
Планировка студии 25,7
В студиях запроектирована входная зона площадью от 2,5 до 4,2 кв.м., совмещенный санузел с душевой кабиной площадью 2,5 кв.м. и общее помещение площадью от 14,8 до 19,0 кв.м.
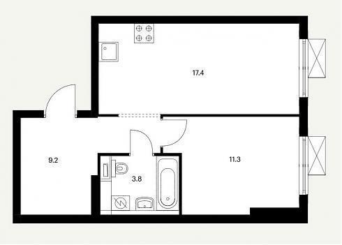
Планировка однокомнатной квартиры 36,3
Планировка однокомнатной квартиры 41,7
Планировка однокомнатной квартиры 46,8
Однокомнатные квартиры располагают входной зоной площадью от 3,7 до 9,2 кв.м., совмещенным санузлом площадью 3,8 кв.м., кухней площадью от 17,4 до 18,4 кв.м. и спальней площадью от 10,6 до 15,4 кв.м. Встречается гардеробная площадью 4,7 кв.м.
Планировка двухкомнатной квартиры 50,4
Планировка двухкомнатной квартиры 61,5
Планировка двухкомнатной квартиры 69,6
В двухкомнатных квартирах находим входную зону площадью от 3,0 до 4,6 кв.м., два санузла с площадью помещений от 1,4 до 3,8 кв.м. Кухня площадью от 16,5 до 22,1 кв.м., спальни площадью 10,6 до 13,3 кв.м. Встречаются кладовые площадью 4,6 кв.м. В некоторых помещениях может быть два окна, расположение окон угловое и двухстороннее.
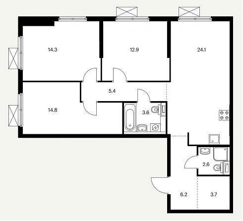
Планировка трехкомнатной квартиры 60,3
Планировка трехкомнатной квартиры 67,6
Планировка трехкомнатной квартиры 70,2
Трехкомнатные квартиры располагают входной зоной площадью от 4,3 до 8,5 кв.м., внутренними коридорами площадью от 2,1 до 5,5 кв.м., двумя санузлами площадью от 3,1 до 3,6 кв.м., кухнями площадью от 24,1 до 22,8 в классической планировке или кухней-гостиной площадью 24,4 кв.м. в евро-стандарте. Две или три спальни площадью от 10,3 до 14,8 кв.м. а также балкон площадью 1,6 кв.м. Расположение комнат угловое, есть помещения с двумя окнами.
Как купить
Чтобы купить квартиру, необходимо заключить с застройщиком договор долевого участия в строительстве, условия сделки прописаны в федеральном законе № 214-ФЗ. Покупатель размещает свои денежные средства на специальном счете эскроу и после регистрации ДДУ в Росреестре становится полноправным собственником жилья. А вот застройщик получит право распоряжаться средствами дольщика только после сдачи дома в эксплуатацию. Такая форма расчетов гарантирует право дольщика либо на получение квартиры, либо на возврат денежных средств. Правда, последнее в условиях инфляции вряд ли можно назвать гарантией…
Если покупателю необходимы заемные средства, то у застройщика есть целая линейка различных ипотечных кредитов. Ниже приводятся некоторые из них.
• «Ипотека 1%» (под господдержку или семейную ипотеку).
• «Семейная ипотека 4,8%» (условие – рождение ребенка после 1 января 2018 года).
• «Ипотека 6,8%» (с фиксированной ставкой на весь период)
Сумма кредита в Москве и Подмосковье - до 30 миллионов рублей. Но учтите, что срок действия данных условий истекает 31 октября.
А также доступны такие варианты ипотеки:
• Готовое 11%
• IT-ипотека
• ПИК-Ипотека 6,8%
• Ипотека 3,8% для IT
• Семейная ПИК-Ипотека 4,8%
• ПИК-Ипотека для IT 3,8%
Есть и рассрочка, на 3 и 6 месяцев. Рассрочка платная, остаток кредита в зависимости от условий будет ежемесячно дорожать на 3 или 4%.Можно забронировать квартиру, стоимость 5000 рублей на 10 календарных дней.
Если покупатель будет регистрировать свой договор с застройщиком через его структуру, это обойдется в 10 000 рублей. А если будет регистрировать сам через МФЦ – то бесплатно.
Инфраструктура
В ухоженном и обустроенном московском поселке вряд ли возникнут проблемы с инфраструктурой. В шаговой доступности магазины, школы, детские сады и поликлиники. И храм неподалеку.
Не говоря уже о том, что на территории ЖК будет много собственных инфраструктурных объектов.
Много магазинчиков на территории станции, за более солидными покупками добро пожаловать в ТЦ «Бутово-Молл».
Транспортная доступность хорошая, хотя метро и далеко. А вот МЦД намного ближе. Удобный выезд на Варшавское шоссе, откуда можно добраться хоть до Кремля, хоть до аэропорта Домодедово.
Можно отметить соседство с зелеными зонами Бутовский лесопарк и парк «Южное Бутово», а также с культурным центром, музеем-усадьбой «Русский Парнас» в деревне Остафьево.
Резюме
Итак, что мы имеем с точки зрения привлекательности новостройки.
• Известный застройщик
• Достаточная инфраструктура
• Прописка в Москве
• Федеральная трасса рядом
• Близость парковых зон
• Невысокая цена квадратного метра
Недостатки такие:
• Варшавское шоссе в 200 метрах от окон комплекса
• Отсутствие метро в шаговой доступности
• Отсутствие подземного паркинга
Об этих недостатках проекта пишут пользователи Интернета.
Тем не менее, жить в новом доме на новом месте всегда является преимуществом. Выбирайте новое. Ведь плюсы есть, и их немало.
Автор: Андрей Петров
Специально для Квартирного контроля

Обсуждение ЖК «Никольские луга»: новая жизнь на новом месте