Поиск
Например:Бунинские луга
Регион
 Квартирный контрольМосква
 Квартирный контрольМосква
 Квартирный контрольНовая Москва
 Квартирный контрольПодмосковье
Округ, район, метро
Расположение
Количество комнат
Студия
1
2
3
4+
Стоимость
домлн.
Все параметры
Показать все новостройки
+Сбросить все фильтры

Квартирный контрольЖК "Ильменский 17"

Объект сдан.
Квартиры:
15 120 00015 120 000 ₽
331 216 ₽/м2  6.46 %
Застройщик ПИКПИК
8 (499) 348-17-29
МоскваСеверный АОЗападное Дегунино


до МКАД: 12 км.
Класс дома: Комфорт-класс
Технология: Панель
Этажность: 23
 Квартирный контроль
Обновлено: 16.05.2023
Размер шрифта-+

Что Вам нужно знать о ЖК "Ильменский 17"

О проекте

Старт продаж в ЖК «Ильменский» состоялся через год с небольшим после того, как ГК ПИК сообщила о намерении построить около 160 000 кв. м жилья в районе Западное Дегунино САО Москвы. Комплекс строится на земельном участке площадью 41 079 кв. м, соответствующее разрешение было получено 11.04.2019. Согласно этому документу, здесь должно быть построено шесть 23-этажных корпусов башенного типа.

Корпуса принадлежат к индустриальной панельной серии ПИК-3, той самой, в которой и близко нет балконов и лоджий.

к.1: 291 квартира, 53 кладовых.
к.2: 264 квартиры, 51 кладовая.

Разрешения на ввод в эксплуатацию получено в III квартале 2021 года, собственники должны получить ключи от своих квартир до 31.12.2021. Одновременно с этими корпусами ПИК планирует построить муниципальный детский садик на 175 мест. Также в планах компании есть строительство двух многоуровневых паркингов.

к.3: 292 квартиры, 55 кладовых.
к.4: 264 квартиры, 50 кладовых.
к.5: 286 квартир, 51 кладовая.

Разрешения на ввод в эксплуатацию получено в III квартале 2021 года, собственники должны получить ключи от своих квартир до 30.05.2022.

к.6: 220 квартир, 38 кладовых.

Разрешения на ввод в эксплуатацию получено в IV квартале 2021 года, собственники должны получить ключи от своих квартир до 31.12.2022.

Расположение

Официальный сайт ЖК «Ильменский, 17», как опытный гипнотизёр, уверенно внушает потенциальным покупателям квартир мысль о том, что комплекс находится сплошь в окружении лесопарковых зон и водных массивов. Да откроются глаза Ваши – Западное Дегунино является одним из самых комфортных для проживания районов Москвы. То, что Маркетологам ПИКа приврать так же легко, как чихнуть, становится ясно сразу – до станции метро «Селигерская» они предлагают, скорее, пробежать, нежели пройтись. Восемь минут пешком это нормально, но зачем же превращать их в пять?

Допустим, что упомянутый на сайте ПИКа Парк им. Святослава Федорова действительно «окружает» комплекс, находясь от него на расстоянии чуть больше километра. Но как в «окружение» попали Ангарские пруды (2,7 км), Парк Вагоноремонт (3,6 км) и стадион Молния (3,7 км), совершенно не укладывается в голове. Лапша на ушах начинает активно закипать, если посмотреть, где находится Грачевский парк, также вошедший в окружение «Ильменского, 17».

Ну а верхом маркетологического словоблудия оказывается история про Головинские пруды, ибо прогулка в их направлении займет около часа. Зато по дороге можно будет полюбоваться летящим через СВХ автомобильным потоком, а заодно и внимательно принюхаться, проходя мимо цехов химического завода «Аурат».

Правда же заключается в следующем – ЖК «Ильменский, 17» расположен на краю промзоны, в непосредственной близости промышленных предприятий нет, метро «Селигерская» действительно рядом, в шаговой доступности находится одна школа, детские сады и детская же поликлиника стоят чуть подальше, магазинов вблизи пока не слишком много (в этом плане должна помочь инфраструктура первых этажей комплекса).

Типовые планировки

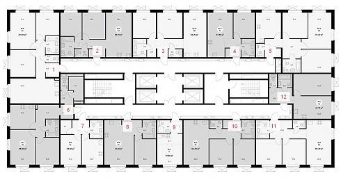
На лицо ужасными панели ПИК 3, конечно, не назовешь, и на то есть простая причина – «своего» лица они попросту не имеют. Появись они где-нибудь, к примеру, в Зимбабве, возможно, тамошние аборигены были бы в полном восторге. Но для Москвы все это смотрится как минимум примитивно, если воздержаться от употребления более крепкого словца. А вот в чем ПИКу-3 не откажешь, так это в том, что примененные здесь планировочные решения были и остаются одними из лучших в сегменте московских новостроек эконом-класса. Про количество квартир на этажах этого не сказать, но, по крайней мере, наличие четырех лифтов (обещан OTIS) делает эти подобия общежитий более-менее комфортными. На стандартном этаже может размещаться 13 квартир (как, например, в корпусе №1):

или 12 квартир (как в корпусе №12):

При выборе студий разгуляться не получится – к рассмотрению предлагается один единственный вариант:

Однокомнатные квартиры по своим показателям оказываются максимально приближенными к евро-двушкам:

Большинство двухкомнатных квартир комплекса являют собой отличные образцы евро-трешек. Но своя, с позволения сказать, вишенка на торте, здесь все же нашлась – самые большие двушки не могут похвастаться наличием кухни-гостиной, но имеют интересный закуток, куда, при случае можно и кучу всякой всячины пристроить, и надоедливую тещу поселить:

Площадь трешек держится в рамках эконом-класса, при этом один из двух представленных вариантов смело может именоваться евро-четырехкомнатный квартирой:

Все квартиры в комплексе будут передаваться собственникам в отремонтированном виде со стандартной ПИКовской отделкой.

Схема покупки

Офис продаж, расположенный рядом со стройплощадкой «Ильменского, 17», открыт ежедневно с 9:00 до 21:00.

В качестве застройщика здесь выступает ООО «Специализированный застройщик «М.Строй». Договор участия в долевом строительстве Вы подпишите именно с ним, но Ваши денежки он получит только после получения разрешения на ввод в эксплуатацию того корпуса, в котором Вы купили себе квартиру. После подписания договора Вы откроете аккредитив в банке ВТБ, а деньги, которые Вы туда положите, будут переведены на эскроу-свет в этом же банке по факту прохождения регистрации ДДУ.

В получении ипотечного кредита Вам помогут менеджеры ГК ПИК – заполнив единую анкету, Вы получите предложения от банков:

За

  • старина ПИК под монастырь не подведет
  • метро в пешей доступности
  • свой детский садик
  • продуманные планировки евро-формата
  • какая-никакая, но все же отделка
  • лучшие в сравнении с соседними новостройками цены в районе

Против

  • так себе район

 

Новостройки рядом с ЖК "Ильменский 17"

Квартирный контроль

ЖК "Дуэт"

Объект сдан. Всё распродано.
0.54 км
ЖК "Дуэт" Квартирный контроль
  • 1 комн. 
    Продано
    2 комн. 
    Продано
    3 комн. 
    Продано
Класс жилья
Бизнес-класс

Компания

ЖК "Любовь и голуби"

Всего 3 корпуса. Построено 1. В работе 2 корпуса: 2022. 
0.43 км
ЖК "Любовь и голуби" Квартирный контроль
  • Студия 
    Продано
    1 комн. 
    Продано
    2 комн.  от
    14 444 000 ₽
    от  63,11 м2
    3 комн. 
    Продано
  • 1 комн. 
    Продано
    2 комн. 
    Продано
    3 комн. 
    Продано
    4 комн. 
    Продано
Класс жилья
Бизнес-класс

Компания

ЖК "Селигер Сити"

Всего 11 корпусов. Построено 8. В работе 3 корпуса: 2026. 
0.24 км
ЖК "Селигер Сити" Квартирный контроль
  • Студия  от
    11 881 029 ₽
    от  25,1 м2
    1 комн.  от
    17 177 802 ₽
    от  35,6 м2
    2 комн.  от
    23 765 138 ₽
    от  58,2 м2
    3 комн.  от
    30 512 084 ₽
    от  87,8 м2
Класс жилья
Комфорт-класс

Компания

ЖК "Тринити"

Объект сдан. Всё распродано.
1.12 км
ЖК "Тринити" Квартирный контроль
  • Студия 
    Продано
    1 комн. 
    Продано
    2 комн. 
    Продано
    3 комн. 
    Продано
Класс жилья
Комфорт-класс

Компания

ЖК "Тринити-2"

Всего 1 корпус. Построено 1. 
1.27 км
ЖК "Тринити-2" Квартирный контроль
  • Студия  от
    9 161 868 ₽
    от  23 м2
    1 комн. 
    Продано
    2 комн.  от
    19 821 352 ₽
    от  40 м2
    3 комн.  от
    28 975 422 ₽
    от  99 м2
    4 комн.  от
    29 504 877 ₽
    от  86,1 м2
Класс жилья
Комфорт-класс

Компания

ЖК "KINETIK" (Кинетик)

В работе 2 корпуса: 2024. 
1.04 км
ЖК "KINETIK" (Кинетик) Квартирный контроль
  • Студия  от
    8 600 000 ₽
    от  31,85 м2
    1 комн.  от
    11 200 000 ₽
    от  36,73 м2
    2 комн.  от
    11 600 000 ₽
    от  37,6 м2
    3 комн.  от
    16 200 000 ₽
    от  53,55 м2
    4 комн.  от
    21 500 000 ₽
    от  69 м2
Класс жилья
Бизнес-класс

Компания

ЖК "Дмитровское Небо"

В работе 3 корпуса: 2025. 
0.68 км
ЖК "Дмитровское Небо" Квартирный контроль
  • Студия  от
    9 960 617 ₽
    от  19,8 м2
    1 комн.  от
    15 869 255 ₽
    от  34,3 м2
    2 комн.  от
    19 843 596 ₽
    от  54,4 м2
    3 комн.  от
    28 388 640 ₽
    от  69,8 м2
Класс жилья
Комфорт-класс

Компания

ЖК Level Селигерская

В работе 3 корпуса: 2024. 
0.38 км
ЖК Level Селигерская Квартирный контроль
  • 1 комн.  от
    7 013 489 ₽
    от  17 м2
    2 комн.  от
    11 066 944 ₽
    от  33 м2
    3 комн.  от
    15 990 728 ₽
    от  54 м2
    4 комн.  от
    24 026 200 ₽
    от  92 м2
Класс жилья
Комфорт-класс

Компания

ЖК Свет

Продажи не начались.
0.48 км
ЖК Свет Квартирный контроль
Студия
Уточняется
1-комн
Уточняется
2-комн
Уточняется
3-комн
Уточняется
4-комн
Уточняется
Класс жилья
Бизнес-класс

Компания

ЖК "Ильменский 17" на карте

Адрес: г. Москва, Ильменский проезд, 17к1
Квартирный контроль
Проверено 16-05-2023

Цены в ЖК "Ильменский 17"

Студия
Уточнить наличие
19,6-19,6 м2
Продано

Студии Квартиры 19,6-19,6 м2

Месяц / Год Площадь Стоимость Цена м2 Динамика цены м2
Ноябрь 2022 19,6-19,6 м2 8 787 072 - 8 787 072  ₽ ~462 477  ₽  -5.77%
Сентябрь 2022 19,5-19,7 м2 9 268 350 - 9 382 716  ₽ ~490 818  ₽  0.84%
Июль 2022 19,4-19,6 м2 8 856 100 - 9 640 109  ₽ ~486 742  ₽  -1.1%
Июнь 2022 19,5-19,7 м2 8 894 139 - 9 807 316  ₽ ~492 144  ₽  1.2%
Май 2022 19,5-19,5 м2 9 203 473 - 9 276 696  ₽ ~486 320  ₽  -2.31%
Апрель 2022 19,5-19,7 м2 9 106 500 - 9 810 895  ₽ ~497 826  ₽  7.29%
Март 2022 19,5-19,5 м2 8 815 716 - 8 815 716  ₽ ~463 985  ₽  -1.88%
Февраль 2022 19,5-19,7 м2 7 836 192 - 10 132 892  ₽ ~472 871  ₽  11.22%
Январь 2022 19,4-19,6 м2 7 677 150 - 8 478 600  ₽ ~425 151  ₽  -5.65%
Декабрь 2021 19,7-19,8 м2 7 759 620 - 9 363 410  ₽ ~450 606  ₽  0.05%
Ноябрь 2021 19,6-19,8 м2 7 745 760 - 9 368 800  ₽ ~450 383  ₽  2.54%
Октябрь 2021 19,6-19,8 м2 7 555 680 - 9 134 890  ₽ ~439 226  ₽  2.45%
Сентябрь 2021 19,8-19,8 м2 7 274 520 - 9 016 920  ₽ ~428 722  ₽  -1.54%
Август 2021 19,8-19,8 м2 7 559 640 - 8 987 220  ₽ ~435 444  ₽  43.99%
Август 2020 19,8-19,8 м2 5 536 080 - 5 955 840  ₽ ~302 419  ₽  8.61%
Июль 2020 19,8-19,8 м2 5 092 560 - 5 488 560  ₽ ~278 451  ₽  24.59%
Июнь 2020 19,8-31,1 м2 4 811 400 - 6 363 060  ₽ ~223 489  ₽
Май 2020 19,8-31,1 м2 4 811 400 - 6 363 060  ₽ ~223 489  ₽
Апрель 2020 19,8-31,1 м2 4 811 400 - 6 363 060  ₽ ~223 489  ₽  4.54%
Март 2020 19,8-31,1 м2 4 643 290 - 6 045 840  ₽ ~213 783  ₽
Февраль 2020 19,8-31,1 м2 4 643 290 - 6 045 840  ₽ ~213 783  ₽  -12.63%
Январь 2020 19,8-19,8 м2 4 435 200 - 4 862 880  ₽ ~244 686  ₽
Декабрь 2019 19,8-19,8 м2 4 435 200 - 4 862 880  ₽ ~244 686  ₽
Ноябрь 2019 19,8-19,8 м2 4 435 200 - 4 862 880  ₽ ~244 686  ₽  3.62%
Октябрь 2019 19,8-19,8 м2 4 387 680 - 4 585 680  ₽ ~236 141  ₽
Сентябрь 2019 19,8-19,8 м2 4 387 680 - 4 585 680  ₽ ~236 141  ₽
1-комнатная
Уточнить наличие
42-42 м2
от 15 120 000 ₽
~ 360 000  ₽  -2.48%
динамика цен

1-комнатные Квартиры 42-42 м2

Месяц / Год Площадь Стоимость Цена м2 Динамика цены м2
Март 2023 33,1-42 м2 12 567 408 - 15 120 000  ₽ ~369 165  ₽  10.76%
Январь 2023 40,7-41,8 м2 12 360 864 - 14 636 371  ₽ ~333 299  ₽  -1.47%
Декабрь 2022 40,7-41,8 м2 12 360 864 - 15 040 512  ₽ ~338 289  ₽  -7.19%
Ноябрь 2022 40,7-41,8 м2 14 636 371 - 14 887 488  ₽ ~364 492  ₽  -4.67%
Сентябрь 2022 33,1-41,8 м2 12 618 382 - 15 675 000  ₽ ~382 343  ₽  -8.55%
Август 2022 38,6-40,8 м2 15 157 272 - 17 453 023  ₽ ~418 081  ₽  10.95%
Июль 2022 38,6-42 м2 13 336 300 - 16 810 549  ₽ ~376 836  ₽  -5.44%
Июнь 2022 40,7-41,6 м2 15 482 264 - 16 797 467  ₽ ~398 515  ₽  2.88%
Май 2022 37,1-41,7 м2 15 078 720 - 15 135 494  ₽ ~387 362  ₽  0.69%
Апрель 2022 35,3-41,9 м2 13 417 530 - 15 819 520  ₽ ~384 698  ₽  1.15%
Март 2022 32,9-41,8 м2 12 500 157 - 15 262 700  ₽ ~380 313  ₽  2.56%
Февраль 2022 35,3-40,7 м2 12 385 824 - 15 426 081  ₽ ~370 825  ₽  12.11%
Январь 2022 35,3-40,7 м2 11 792 550 - 13 015 860  ₽ ~330 779  ₽  -3.95%
Декабрь 2021 33,6-42 м2 11 534 880 - 14 292 600  ₽ ~344 366  ₽  -2.66%
Ноябрь 2021 32,9-42,1 м2 11 424 000 - 14 754 600  ₽ ~353 765  ₽  2.52%
Октябрь 2021 32,9-42,1 м2 10 972 650 - 14 561 400  ₽ ~345 055  ₽  5.61%
Сентябрь 2021 33,6-42,2 м2 10 258 080 - 14 246 640  ₽ ~326 730  ₽  -0.07%
Август 2021 33,6-42,2 м2 10 338 720 - 14 183 490  ₽ ~326 963  ₽  44.31%
Август 2020 33,6-42,2 м2 7 677 600 - 9 315 320  ₽ ~226 572  ₽  5.32%
Июль 2020 33,6-42,2 м2 7 284 480 - 8 849 760  ₽ ~215 123  ₽  4.09%
Июнь 2020 33,6-42,2 м2 6 938 400 - 8 561 360  ₽ ~206 663  ₽
Май 2020 33,6-42,2 м2 6 938 400 - 8 561 360  ₽ ~206 663  ₽
Апрель 2020 33,6-42,2 м2 6 938 400 - 8 561 360  ₽ ~206 663  ₽  4.46%
Март 2020 33,6-42,2 м2 6 696 480 - 8 141 120  ₽ ~197 835  ₽
Февраль 2020 33,6-42,2 м2 6 696 480 - 8 141 120  ₽ ~197 835  ₽  4.2%
Январь 2020 33,6-42,2 м2 6 345 500 - 7 893 920  ₽ ~189 859  ₽
Декабрь 2019 33,6-42,2 м2 6 345 500 - 7 893 920  ₽ ~189 859  ₽
Ноябрь 2019 33,6-42,2 м2 6 345 500 - 7 893 920  ₽ ~189 859  ₽  -1.28%
Октябрь 2019 33,6-42,2 м2 6 498 240 - 7 925 160  ₽ ~192 312  ₽
Сентябрь 2019 33,6-42,2 м2 6 498 240 - 7 925 160  ₽ ~192 312  ₽
2-комнатная
Уточнить наличие
39,7-66,8 м2
Продано

2-комнатные Квартиры 39,7-66,8 м2

Месяц / Год Площадь Стоимость Цена м2 Динамика цены м2
Январь 2023 39,7-66,8 м2 18 627 571 - 18 656 496  ₽ ~355 086  ₽  17.92%
Декабрь 2022 39,7-66,8 м2 12 958 080 - 18 658 924  ₽ ~301 114  ₽
Ноябрь 2022 39,7-66,8 м2 12 958 080 - 18 658 924  ₽ ~301 114  ₽  9.75%
Октябрь 2022 66,7-66,8 м2 17 750 630 - 18 466 828  ₽ ~274 375  ₽  -7.25%
Сентябрь 2022 55,9-66,9 м2 16 653 728 - 19 141 869  ₽ ~295 831  ₽  -3.99%
Август 2022 64,2-66,9 м2 18 753 505 - 21 304 356  ₽ ~308 137  ₽  -0.33%
Июль 2022 64,2-66,9 м2 18 823 637 - 21 366 576  ₽ ~309 155  ₽  -6.91%
Июнь 2022 51,8-66,9 м2 17 054 702 - 21 800 998  ₽ ~332 100  ₽  -0.03%
Май 2022 51,8-66,9 м2 17 500 371 - 21 365 859  ₽ ~332 190  ₽  -1.49%
Апрель 2022 47,2-66,9 м2 16 899 960 - 21 206 650  ₽ ~337 227  ₽  5.07%
Март 2022 47-66,8 м2 15 669 612 - 20 599 315  ₽ ~320 964  ₽  4.01%
Февраль 2022 47-66,8 м2 13 928 544 - 20 942 240  ₽ ~308 591  ₽  12.17%
Январь 2022 47-66,8 м2 13 930 800 - 17 156 160  ₽ ~275 106  ₽  -0.41%
Декабрь 2021 47,5-68,1 м2 14 145 500 - 17 621 400  ₽ ~276 234  ₽  -2.83%
Ноябрь 2021 47,5-68,1 м2 14 326 000 - 18 366 800  ₽ ~284 285  ₽  6.22%
Октябрь 2021 47,5-68,1 м2 13 528 000 - 17 249 730  ₽ ~267 632  ₽  3.41%
Сентябрь 2021 40,2-68,1 м2 11 163 540 - 16 786 650  ₽ ~258 798  ₽  0.29%
Август 2021 40,2-68,1 м2 11 103 240 - 16 766 220  ₽ ~258 051  ₽  33%
Август 2020 39,2-68,1 м2 8 309 340 - 12 450 880  ₽ ~194 021  ₽  4.68%
Июль 2020 39,2-68,1 м2 7 847 040 - 11 985 120  ₽ ~185 347  ₽  -0.92%
Июнь 2020 39,2-65,6 м2 7 949 760 - 11 506 240  ₽ ~187 077  ₽
Май 2020 39,2-65,6 м2 7 949 760 - 11 506 240  ₽ ~187 077  ₽
Апрель 2020 39,2-65,6 м2 7 949 760 - 11 506 240  ₽ ~187 077  ₽  6.34%
Март 2020 39,2-65,6 м2 7 530 320 - 10 764 960  ₽ ~175 916  ₽
Февраль 2020 39,2-65,6 м2 7 530 320 - 10 764 960  ₽ ~175 916  ₽  8.85%
Январь 2020 55,6-65,6 м2 8 688 060 - 10 705 920  ₽ ~161 617  ₽
Декабрь 2019 55,6-65,6 м2 8 688 060 - 10 705 920  ₽ ~161 617  ₽
Ноябрь 2019 55,6-65,6 м2 8 688 060 - 10 705 920  ₽ ~161 617  ₽  -3.07%
Октябрь 2019 55,6-65,6 м2 9 301 380 - 10 705 920  ₽ ~166 728  ₽
Сентябрь 2019 55,6-65,6 м2 9 301 380 - 10 705 920  ₽ ~166 728  ₽
3-комнатная
Уточнить наличие
71,7-71,7 м2
Продано

3-комнатные Квартиры 71,7-71,7 м2

Месяц / Год Площадь Стоимость Цена м2 Динамика цены м2
Март 2023 71,7-71,7 м2 19 617 120 - 19 617 120  ₽ ~276 297  ₽  -2.98%
Январь 2023 71,7-71,7 м2 19 617 120 - 20 821 680  ₽ ~284 780  ₽  3.07%
Декабрь 2022 71,7-71,7 м2 19 617 120 - 19 617 120  ₽ ~276 297  ₽  -2.98%
Ноябрь 2022 71,7-71,7 м2 19 617 120 - 20 821 680  ₽ ~284 780  ₽  4.17%
Октябрь 2022 71,7-71,7 м2 19 410 624 - 19 410 624  ₽ ~273 389  ₽  -1.57%
Сентябрь 2022 71,6-77,9 м2 19 815 012 - 21 293 440  ₽ ~277 760  ₽  -13.74%
Август 2022 71,6-78,2 м2 22 951 159 - 25 025 859  ₽ ~321 993  ₽  3.22%
Июль 2022 71,6-78,2 м2 21 068 400 - 25 412 131  ₽ ~311 950  ₽  3.3%
Июнь 2022 71,3-78,2 м2 20 069 480 - 24 925 106  ₽ ~301 977  ₽  -0.84%
Май 2022 71,3-78,2 м2 20 850 309 - 24 523 214  ₽ ~304 520  ₽  1.68%
Апрель 2022 71,3-78,2 м2 20 319 421 - 24 305 484  ₽ ~299 496  ₽  2.27%
Март 2022 71,6-78,2 м2 20 351 530 - 23 283 050  ₽ ~292 850  ₽  1.46%
Февраль 2022 71,4-77,9 м2 18 844 010 - 23 873 234  ₽ ~288 630  ₽  12.38%
Январь 2022 71,4-77,9 м2 17 664 360 - 20 347 480  ₽ ~256 837  ₽  -0.23%
Декабрь 2021 71,3-78,5 м2 17 795 920 - 20 562 540  ₽ ~257 439  ₽  -0.99%
Ноябрь 2021 71,2-78,5 м2 17 643 880 - 21 099 360  ₽ ~260 022  ₽  0.37%
Октябрь 2021 71,2-78,5 м2 17 303 600 - 21 297 860  ₽ ~259 070  ₽  2.84%
Сентябрь 2021 72,4-78,5 м2 16 811 280 - 20 975 200  ₽ ~251 910  ₽  1.05%
Август 2021 72,4-78,5 м2 16 702 680 - 20 692 600  ₽ ~249 302  ₽  28.83%
Август 2020 72,4-78,5 м2 13 082 680 - 15 943 350  ₽ ~193 507  ₽  6.68%
Июль 2020 72,4-78,5 м2 12 098 040 - 15 111 250  ₽ ~181 395  ₽  3.58%
Июнь 2020 72,3-78,5 м2 11 707 080 - 14 561 750  ₽ ~175 126  ₽
Май 2020 72,3-78,5 м2 11 707 080 - 14 561 750  ₽ ~175 126  ₽
Апрель 2020 72,3-78,5 м2 11 707 080 - 14 561 750  ₽ ~175 126  ₽  8.49%
Март 2020 72,3-78,5 м2 10 938 990 - 13 274 350  ₽ ~161 422  ₽
Февраль 2020 72,3-78,5 м2 10 938 990 - 13 274 350  ₽ ~161 422  ₽  0.28%
Январь 2020 72,4-78,5 м2 11 193 040 - 12 952 500  ₽ ~160 970  ₽
Декабрь 2019 72,4-78,5 м2 11 193 040 - 12 952 500  ₽ ~160 970  ₽
Ноябрь 2019 72,4-78,5 м2 11 193 040 - 12 952 500  ₽ ~160 970  ₽  -2.37%
Октябрь 2019 72,4-78,5 м2 11 699 840 - 13 031 000  ₽ ~164 872  ₽
Сентябрь 2019 72,4-78,5 м2 11 699 840 - 13 031 000  ₽ ~164 872  ₽
Квартиры:
15 120 00015 120 000 ₽
331 216 ₽/м2  6.46 %
Застройщик ПИКПИК
8 (499) 348-17-29

Сроки сдачи ЖК "Ильменский 17"

Сдан6
Кор. 1
Панель 23 этажей
 
III кв. 2021
Сдан
Кор. 2
Панель 23 этажей
 
III кв. 2021
Сдан
Кор. 3
Панель 23 этажей
 
III кв. 2021
Сдан
Кор. 4
Панель 23 этажей
 
III кв. 2021
Сдан
Кор. 5
Панель 23 этажей
 
IV кв. 2021
Сдан
Кор. 6
Панель 23 этажей
 
IV кв. 2021
Сдан
11 фотографий

Ход строительства ЖК "Ильменский 17"  Ноябрь 2019

Ход строительства ЖК Ильменский 17, начало строительства корпуса 4, вид с Ильменского пр-да, фото 1
ЖК Ильменский 17, начало строительства корпуса 4, вид с Ильменского пр-да, фото 1 Квартирный контроль
Ход строительства ЖК Ильменский 17, начало строительства корпуса 3, вид с Ильменского пр-да, фото 2
ЖК Ильменский 17, начало строительства корпуса 3, вид с Ильменского пр-да, фото 2 Квартирный контроль
Ход строительства ЖК Ильменский 17, начало строительства корпуса 3, вид с Ильменского пр-да, фото 3
ЖК Ильменский 17, начало строительства корпуса 3, вид с Ильменского пр-да, фото 3 Квартирный контроль
Ход строительства ЖК Ильменский 17, начало строительства корпуса 3, вид с Ильменского пр-да, фото 4
ЖК Ильменский 17, начало строительства корпуса 3, вид с Ильменского пр-да, фото 4 Квартирный контроль
Ход строительства ЖК Ильменский 17, начало строительства корпусов 3, 2 и 1, вид с Ильменского пр-да, фото 5
ЖК Ильменский 17, начало строительства корпусов 3, 2 и 1, вид с Ильменского пр-да, фото 5 Квартирный контроль
Ход строительства ЖК Ильменский 17, начало строительства корпуса 2, вид с Ильменского пр-да, фото 6
ЖК Ильменский 17, начало строительства корпуса 2, вид с Ильменского пр-да, фото 6 Квартирный контроль
Ход строительства ЖК Ильменский 17, начало строительства корпуса 2, вид с Ильменского пр-да, фото 7
ЖК Ильменский 17, начало строительства корпуса 2, вид с Ильменского пр-да, фото 7 Квартирный контроль
Ход строительства ЖК Ильменский 17, начало строительства корпуса 2, вид с Ильменского пр-да, фото 8
ЖК Ильменский 17, начало строительства корпуса 2, вид с Ильменского пр-да, фото 8 Квартирный контроль
Ход строительства ЖК Ильменский 17, начало строительства корпуса 2, вид с Ильменского пр-да, фото 9
ЖК Ильменский 17, начало строительства корпуса 2, вид с Ильменского пр-да, фото 9 Квартирный контроль
Ход строительства ЖК Ильменский 17, офис продаж, вид с Пяловской ул., фото 10
ЖК Ильменский 17, офис продаж, вид с Пяловской ул., фото 10 Квартирный контроль
Ход строительства ЖК Ильменский 17, офис продаж, вид с Пяловской ул., фото 11
ЖК Ильменский 17, офис продаж, вид с Пяловской ул., фото 11 Квартирный контроль

Документация ЖК "Ильменский 17"

  • Разрешение на строительство
    к. 1, к. 2, к. 3, к. 4, к. 5, к. 6
    Дата: 11.04.2019
    2.2 MБ
    Проектная декларация
    к. 1, к. 2, к. 3, к. 4, к. 5, к. 6
    Дата: 13.06.2019
    464.8 Кб
    Шаблон ДДУ
    Дата: 28.08.2019
    521.5 Кб
    Проектная декларация
    к. 1, к. 2, к. 3, к. 4, к. 5, к. 6
    Дата: 13.05.2020
    Версия: 2
    1.2 MБ
    Проектная декларация
    к. 1, к. 2, к. 3, к. 4, к. 5, к. 6
    Дата: 11.06.2020
    Версия: 3
    1.2 MБ
    Разрешение на ввод в эксплуатацию
    к. 1, к. 2
    Дата: 10.09.2021
    3.2 MБ
    Разрешение на ввод в эксплуатацию
    к. 3, к. 4
    Дата: 24.09.2021
    3.1 MБ
    Разрешение на ввод в эксплуатацию
    к. 5, к. 6
    Дата: 20.12.2021
    3.1 MБ

Обсуждение ЖК "Ильменский 17"

Комментарии для сайта Cackle
Квартиры:
15 120 00015 120 000 ₽
331 216 ₽/м2  6.46 %
Застройщик ПИКПИК
8 (499) 348-17-29