Такой «птичий» заголовок статьи навеян названием улиц, окружающих строительство нового жилого комплекса «Волжский парк». Улица Грайворонская, первый и второй Грайворонские проезды - в этих названиях отражаются реалии середины VII века, когда в этих местах можно было услышать только карканье (грай) ворон. В советский период никаких вороньих стай здесь уже не было, но промзона «Грайвороново» вряд ли радовала взгляд и слух. Масложировой комбинат, желатиновый комбинат, картонная фабрика - все это типичная картина «ржавого московского кольца», в которой жилые кварталы воспринимались лишь как необходимая часть производственного процесса.
Но ситуация изменилась, и в наши дни вместо унылых пятиэтажек, складов и производственных цехов здесь вырастают разноцветные жилые корпуса с зелеными дворами и современной архитектурой.
Как проехать
Адрес новостройки Москва, Юго-Восточный административный округ, район Текстильщики, 1-й Грайвороновский проезд, владение 3. Туда удобно проехать как от МКАДа (съезд на 10 километре, время в пути 15 минут, расстояние 8 километров), так и из центра Москвы (от улицы Моховой ехать 14 километров, время в пути примерно 25 минут).
Третье транспортное кольцо, расположенное в 900 метрах от ЖК по прямой, добавляет удобства автовладельцам.
Неподалеку (пять остановок на автобусе) расположена станция метро «Текстильщики», до нее ходят рейсовые автобусы №№ №№ с790, 228, 725, 861, остановка прямо напротив ЖК
Что строят
Для строительства ЖК выделено почти 20 гектаров земли. Девелопер намерен построить на территории бывшей промзоны 13 многоэтажных жилых домов. Здания относятся к классу «комфорт», высота от 17 до 23 этажей. Проект завершится в 2026 году. Первый корпус уже сдан в эксплуатацию, в продаже квартиры в корпусах 2.1, 2.2, 3.1, 3.2, 4.1, 4.2, 4.3, 4.4.
Здания возводятся с применением панельной технологии. Трехслойные утепленные панели, произведенные на собственных предприятиях девелопера, прибывают на объект уже с вставленными застекленными оконными конструкциями и отделкой из керамических материалов. Класс энергоэффективности жилых корпусов А++(высочайший). Балконы или лоджии не предусмотрены.
О том, как делают панели, рассказывается в проморолике, размещенном на официальном сайте девелопера. Доказывая свою социальную направленность, девелопер построит на территории ЖК детский сад и школу. Однако ни в одной из проектных деклараций не приводятся данные о наличие договора, предусматривающего безвозмездную передачу объекта социальной инфраструктуры в государственную или муниципальную собственность.
На первых этажах откроются магазины и предприятия бытового обслуживания. Высота потолков в помещениях на первом этаже 4,5 метра, в квартирах 2,62 метра.
В корпусе №1 на минус первом этаже устроена автопарковка на 295 машиномест. В других корпусах, выставленных на продажу, подземного паркинга нет, только кладовые помещения площадью от от 3 до 6 кв.м. А парковка - на земле, из расчета примерно 100 машиномест на жилой корпус.
На сайте новостройки нет описания входных групп, но можно предположить, как они будут сформированы на основе стандартов жилищного строительства группы компаний «ПИК».
Это касается и благоустройства внутренних дворов.
Лифты скоростные, просторные, в каждой секции по три штуки. На одном этаже от 11 до 13 квартир. Доступ в подъезды по смарт-домофонам с возможностью управлять ими через Интернет.
Застройщик продает квартиры только с отделкой.
В чистовую отделку входит:
В таблице № 1 приведены некоторые параметры корпусов.
Таблица 1.
|
№№ корп. |
Кол-во этажей |
Общая площ. застр. (кв. м.) |
Кол.секц.
|
Общее кол-во квартир/ /кладовых/ |
Дата выдачи разр. на стр-во |
Окончание срока действия разр. на стр-во |
Предполагаемая дата введения в эксплуатац. |
|
2.1 |
22+1 подз |
675 |
1 |
210/32 |
17.12.2020 г. |
17.04.2024 г. |
4 квартал 2022 г. |
|
2.2 |
23+1 подз |
671 |
1 |
242/33 |
17.12.2020 г. |
17.04.2024 г. |
4 квартал 2022 г. |
|
3.1 |
21+1 подз |
681 |
1 |
240/31 |
29.03.2021 г. |
29.06.2024 г. |
1 квартал 2023 г. |
|
3.2 |
21+1 подз |
681 |
1 |
220/33 |
29.03.2021 г. |
29.06.2024 г. |
1 квартал 2023 г. |
|
4.1 - 4.2 |
1-23+1 подз |
1591 |
2 |
490/59 |
24.09.2021 г. |
24.08.2024 г. |
3 квартал 2023 г. |
|
4.3 - 4.4 |
1-23+1 подз |
1362 |
2 |
510/69 |
24.09.2021 г. |
24.08.2024 г. |
3 квартал 2023 г. |
Выдача ключей:
• Корпуса 2.1/2.2 - 28.02.2023 г.
• Корпуса 3.1/3.2 - 15.06.2023 г.
• Корпуса 4.1/4.2/4.3/4.4 - 30.10.2023 г.
Кто строит
Строительство ведется на земельных участках с кадастровыми номерами 77:04:0002005:10947, 77:04:0002005:10976, 77:04:0002005:10978, на которых ранее размещались производственные корпуса Московского жиркомбината. Участки принадлежат застройщику, акционерному обществу «Специализированный застройщик «Волжский парк», на праве аренды. Никакого жилищного строительства, кроме данного объекта, застройщик за последние три года не вел.
Компания создана в июне 2006 года, ее учредитель ООО «ПИК - Стройинвест». Аббревиатура ПИК - символ успешности в жилищном строительстве. Это крупнейший российский девелопер, работающий не только в московском, но и в других регионах России. А в московском регионе у девелопера в настоящий момент реализуется ни много, ни мало 54 проекта. Безупречность девелопера, а, значит, и назначенного им застройщика - гарантия спокойного сна дольщика. Значит, стройку не «заморозят», и качество будет на высоте.
Впрочем, некоторые покупатели квартир у ПИКа отмечают некоторые недостатки в отделке.
Точно назвать генерального подрядчика не представляется возможным, поскольку нигде на новостройки документах обозначено, что строительство осуществляется без привлечения генерального подрядчика.
Сайт
На официальном сайте новостройки https://www.pik.ru/volp размещена основная информация об объекте.
Ход строительства в фотографиях, красочные вкладки с окружающими пейзажами и достопримечательностями, картинки из отделанных квартир.
Инфраструктура, транспортная доступность, способы покупки также отражены на сайте.
В сайт встроен удобный механизм поиска квартир по параметрам. Есть возможность наблюдать за ходом строительства в реальном времени. Для этого нужно открыть вкладку «live» в шапке главной страницы сайта.
Также можно посетить форумы дольщиков новостройки https://vk.com/volzhskiy_park и познакомиться с материалами о ЖК на сайте https://наш.дом.рф/сервисы/каталог-новостроек/объект/34549.
Сколько стоит
В таблице ниже приведены цены на квартиры в новостройке.
Таблица 2.
|
Тип квартир |
Площадь (кв. м.) |
Стоимость квартир(руб.) |
Стоимость одного квадратного метра (руб.) |
|
Студия |
19,5 - 25,1 |
8 225 489 - 8 248 964 |
421 820-328 644 |
|
Однокомнатная |
31,6 - 46,3 |
11 665 140 - 13 433 713 |
369 150-290 145 |
|
Двухкомнатная |
32,0 - 64,2 |
9 697 344 - 14 650 440 |
303 042-228 200 |
|
Трехкомнатная |
82,8 - 83,0 |
18 402 962 - 19 234 752 |
222 258-231 744 |
Средняя цена квадратного метра в данном ЖК равняется 299 375 рублям. А чуть менее полутора лет назад, в январе 2021 года, она составляла 204 850 рублей.
Цены конкурентов на двухкомнатные квартиры комфорт-класса с отделкой и без в строящихся домах Москвы приведены в таблице ниже.
Таблица 3.
|
Название ЖК |
Ближайшая станция метро |
Площадь квартир (кв. м.) |
Стоимость квартир (руб.) |
Стоимость одного кв.м. (руб.) |
Отделка |
Срок сдачи |
|
«Прокшино» |
«Прокшино» |
41,8 |
11 378 133 |
272 204 |
Нет |
3 квартал 2023 г. |
|
«Некрасовка» |
39,1 |
10 288 372 |
263 130 |
Есть |
3 квартал 2023 г. |
|
|
«Волжский парк» |
«Текстильщики» |
64,2 |
14 650 440 |
228 200 |
Есть |
3 квартал 2023 г. |
|
«Стахановская» |
67,98 |
14 452 125 |
212 594 |
Есть
|
2 квартал 2023 г. |
|
|
«Рассказовка» |
64,5 |
13 620 254 |
211 167 |
Нет |
3 квартал 2023 г. |
|
|
«Люблино» |
62,22 |
11 884 020 |
191 000 |
Есть |
4 квартал 2022 г. |
|
|
«Нижегородская» |
65,76 |
10 729 154 |
163 156 |
Есть |
3 квартал 2023 г. |
В данном рейтинге интересующий нас ЖК входит в тройку лидеров.
Что продают
В продаже квартиры-студии, одно-, двух- и трехкомнатные квартиры площадью от 19,5 до 87,0 кв.м. разнообразной планировки.
План 2 этажа секции 1 корпуса 2.2
План 14 этажа секции 1 корпуса 3.2
План 19 этажа секции 2 корпуса 4.4
Планировка студии 19,5
Планировка студии 21,6
Планировка студии 25,1
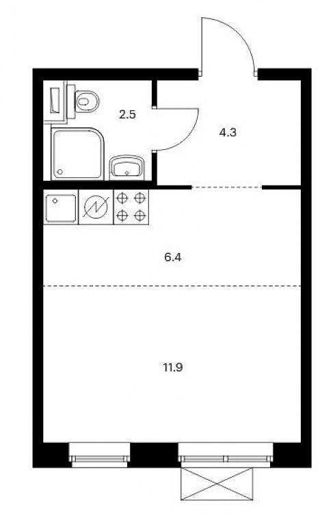
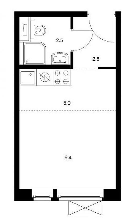
Студии спроектированы без изысков. Входная зона площадью от 2,6 кв.м., совмещенный санузел площадью 2,5 кв.м. (без вариантов), универсальное помещение площадью от 14,4 до 18,1 кв.м. И корзины для кондиционеров за окном.
Планировка однокомнатной квартиры 31,6
Планировка однокомнатной квартиры 37,3
Планировка однокомнатной квартиры 46,3
Однокомнатные квартиры спроектированы в классическом формате, но с одной оговоркой: стена между кухней и спальней не всегда сплошная. То есть, с намеком на евростандарты. В остальном все, как обычно. Входная зона площадью от 3,9 до 7,1 кв.м., совмещенный санузел площадью 3,8 кв.м. (без вариантов), кухня площадью от 9,4 до 22,8 кв.м., спальня площадью от 12,6 до 14,5 кв.м. Расположение комнат встречается как одностороннее, так и угловое, в одной комнате может быть два окна.
Планировка двухкомнатной квартиры 32,0
Планировка двухкомнатной квартиры 52,6
Планировка двухкомнатной квартиры 64,2
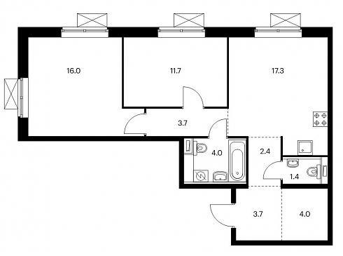
Двухкомнатные квартиры располагают входной зоной площадью от 3,1 до 10,1 кв.м. (с учетом внутренних коридоров), раздельным санузлом с площадью помещений от 1,4 до 4,0 кв.м., кухней площадью 17,3 кв.м. в классическом варианте и кухней-гостиной площадью 16,0 кв.м. в евро варианте. Одна или две спальни (в зависимости от того, классика это или евро) площадью от 9,1 до 17,3 кв.м. Расположение комнат одностороннее и угловое, есть комнаты с двумя окнами.
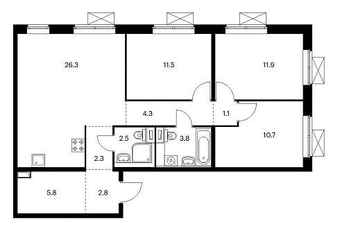
Планировка трехкомнатной квартиры 83,0
В трехкомнатной квартире обнаруживаем входную зону площадью 10,9 кв.м. (с учетом внутренних коридоров площадь входной зоны увеличивается еще на 5,4 кв.м.), два санузла с площадью помещений 2,5 и 3,8 кв.м., кухня площадью 26,3 кв.м. и три спальни площадью от 10,7 до 11,9 кв.м. Расположение комнат угловое.
Офис продаж
Офиса продаж в привычном понимании на объекте нет. Это давняя традиция ГК ПИК, которой девелопер придерживается на всех новостройках. Потенциальные покупатели могут получить ответы на свои вопросы (если таковые останутся после просмотра официального сайта) с помощью мессенджера на сайте, по телефону или в процессе видеосвязи со специалистом по продажам.
Как купить
Условия продажи определяются федеральным законом № 214-ФЗ. Покупатель должен заключить с застройщиком договор долевого участия, разместить денежные средства на аккредитивном счете и открыть счет эскроу в АО «Россельхозбанк».
ГК ПИК, как крупнейший застройщик, сотрудничает с большим количеством ведущих российских банков и благодаря этому предлагает своим покупателям весьма выгодные условия ипотечного кредитования. Например, семейную ипотеку под 1,99% годовых.
Предлагается система бронирования квартир, причем оформить бронь можно прямо с сайта новостройки. За 5 000 рублей в интересах покупателя на 10 дней «замораживается» локация и цена квартиры.
Есть два варианта рассрочки, но она не бесплатная. Первый вариант: на три месяца при первоначальном взносе 40% и удорожанием на 3% ежемесячно. Второй вариант: на шесть месяцев при первоначальном взносе 40% и удорожанием на 4% ежемесячно.
В рамках программы Трейд-ин можно обменять старую квартиру на новую (естественно, с доплатой, если только вы не меняете старую «трешку» на новую студию).
Инфраструктура
Инфраструктура спального района по определению не отличается разнообразием. Небольшой продуктовый магазинчик, скромный автосервис, некое частное лечебное заведение.
Но в целом район располагает всем необходимым для жизни. Пусть не в шаговой доступности, но неподалеку можно найти и школу, и детский сад и поликлинику.
А вот в районе станции метро «Текстильщики» торговых точек предостаточно. А также там находится культурный и спортивный центр «Москвичка».
Зеленая зона более чем скромная - небольшой сквер в старом московском дворике, на который «наступила» новостройка.
Слово «парк» в названии ЖК означает, что где-то поблизости расположен Волжский бульвар, но до него примерно полчаса пешего хода. До Кузьминского лесопарка примерно столько же ехать на машине. Так что, фактически, новоселы окажутся в пределах исчезающей, но пока еще действующей промышленной зоны.
Стук поездов на Московской кольцевой дороге, дымы труб над ТЭЦ-8 на Остаповском проезде, автомобильные выбросы на Третьем транспортном кольце, ржавые цистерны для хранения продукции масложирового завода - вот повседневная реальность нового «парка».
Новоселов-автомобилистов наверняка порадует запуск Юго-Восточной хорды, которая проляжет в нескольких сотнях метров от ЖК. Но «безлошадным» жителям этот урбанистический прогресс только добавит экологических проблем.
Буквально в двух шагах от нового ЖК стоит уже заселенный ЖК «Грани», что сулит повышенную демографическую нагрузку на квадратный метр грайвороновской земли.
Резюме
У новостройки немало плюсов:
• Московская прописка
• Хорошая транспортная доступность
• Доступная инфраструктура
• Качественная архитектура и достойное благоустройство
• Большой выбор квартир
• Квартиры с ремонтом
• Надежный застройщик
• Умеренная (по московским меркам) цена
Минусы:
• Проблемы с экологией
• Перегруженность транспортной инфраструктуры
• Перенаселенность территории
• Недостаток парковочных мест
Как и в других местах, где в Москве строится новое жилье, недостатки и достоинства резко контрастируют друг с другом. Поэтому решение о покупке квартиры в данном ЖК должно быть выверенным и взвешенным. Чего мы и желаем нашим читателям.
Автор: Андрей Петров
Специально для Квартирного контроля

Обсуждение ЖК «Волжский парк»: где кричало воронье, нынче строится жилье