Жилой комплекс в Новой Москве - это не всегда деревенский пейзаж на опушке леса или берегу озера. Современная деревня может выглядеть вполне по-городскому и обладать высокоразвитой инфраструктурой. Вот, например, Дудкино. И название какое-то скоморошье, и статус несерьезный - деревня. А на самом деле тут жизнь бьет ключом. Есть и метро, и бизнес-центры, и бизнес-парки, а рядом пролегают две крупнейшие автомагистрали Москвы - в полукилометре МКАД, в двухстах метрах Киевское шоссе. Почему бы не поселиться здесь, в этой современной деревне городского типа? Ведь здесь уже строится новый ЖК с красивым названием «Тропарево Парк». Каким будет комплекс, вы узнаете, прочитав эту статью.
Как проехать
Адрес новостройки: Москва, Новомосковский административный округ, поселение Мосрентген, деревня Дудкино.
Проехать по Киевском шоссе из области - это значит непосредственно перед 45 километром МКАД повернуть направо по указателю «Дудкино».
Проехать из Москвы - сразу за 45 километром МКАД развернуться у бизнес-центра «Румянцево» и опять-таки повернуть направо по указателю «Дудкино».
Например, поездка от центра Москвы, от Манежной площади, можно проехать примерно за полчаса, всего-то 25 километров.
Естественно, по «Киевке» в любую сторону движется масса рейсовых автобусов, останавливающихся прямо напротив деревни.
Но самое удобное средство передвижения это, разумеется, метро. Ведь станция метро «Румянцево» расположена всего в 10 минутах ходьбы от ЖК.
Что строят
На земельном участке площадью 11,24 гектара строят семь разноэтажных корпусов класса «комфорт плюс». Официальный статус новостройки «бизнес-парк с гостиницей». То есть, строится не жилой комплекс, а комплекс апартаментов жилого типа. Поэтому класс энергоэффективности зданий не нормируется.
Реализация проекта разбита на два этапа.
• Первый этап: корпуса №№ 1.1., 1.2 и 1.3. Высота зданий 16 этажей
• Второй этап: корпуса №№ 2.1, 2.2, 2.3 и 2.4. Высота зданий 23 этажа
В настоящее время возводятся три корпуса первой очереди. Здания одно- и двухсекционные, в каждой секции на этаже от 14 до 19 апартаментов. Высота потолков 2,69 метра «в чистоте» и 3 метра без отделки. В каждой секции по три современных лифта, способных по лицу пользователя определить, на какой этаж его нужно доставить.
Под корпусами второй очереди на минус первом этаже будет подземная парковка. Стоимость машиноместа от 900 000 до 1 200 000 рублей. А вот для жителей корпусов первой очереди парковка будет только наземная, по внешнему периметру двора. Зато у жителей корпусов первой очереди будут индивидуальные кладовые с отделкой, причем не только в подземном этаже, но и на надземных этажах. Их площадь от 2,5 до 8,49 кв.м., высота потолков от 2,4 до 2,6м., стоимость от 200 000 рублей.
Позднее, в ходе возведения корпусов второй очереди, на территории построят многоярусную наземную парковку на 1242 машиноместа.
Подъезды, интерьерами которых занимались в дизайн-студии BALCON, сквозные, на уровне земли. Во входных группах предусмотрено круглосуточное наблюдение и помещения для хранения колясок и велосипедов.
Проектирование дворового пространства осуществили в архитектурной дизайн-студии GAFA architects. Продуманное зонирование с подсветкой и ярким благоустройством даст жителям возможность наслаждаться красотой зеленых насаждений, наблюдать за играми детей на горках и батутах заниматься спортом и совершать неспешные прогулки вдоль Тропаревского лесопарка. Естественно, двор проектировался в рамках концепции «без машин».
Апартаменты сдаются собственникам с отделкой и оборудованной кухней. Стиль отделки можно выбрать на этапе покупки с фиксацией цены. На момент выдачи ключей в помещении будет:
• Входная металлическая дверь с замками
• Ламинат 33 класса на полу
• Обои под покраску на стенах в жилых помещениях
• Керамогранит под мрамор в ванной и санузлах
• Сантехника в ванной
• Мебель и крупная бытовая техника в кухне (включая холодильник, варочную панель и посудомоечную машину)
• Натяжной потолок
• Двойные стеклопакеты увеличенного формата
На бытовую технику и оборудование кухни будет выдана пятилетняя гарантия. Кроме того, в апартаментах будет функционировать система «умный дом», что позволит хозяину управлять бытовой техникой и общаться с управляющей компанией из любой точки мира.
В таблице ниже приведены некоторые технические данные по корпусам.
Таблица 1.
|
№№ корпуса (секции) |
Кол-во этажей |
Общая площ. застр. (кв. м.) |
Кол.секц.
|
Общее кол-во апартам/ кладовых |
Дата выдачи разр. на стр-во |
Окончание срока действия разр. на стр-во |
Предполагаемая дата введения в эксплуатац. |
|
1.1 |
16+1 подз |
2347 |
1 |
505/444 |
22.04.2021 г. |
22.02.2023 г. |
4 квартал 2022 г. |
|
1.2 |
16+1 подз |
1197 |
1 |
265/218 |
22.04.2021 г. |
22.02.2023 г. |
4 квартал 2022 г. |
|
1.3 |
16+1 подз |
1200 |
1 |
270/204 |
22.04.2021 г. |
22.02.2023 г. |
4 квартал 2022 |
В настоящее время на объекте ведутся монолитные работы на корпусах 1.1. (на уровне 5 этажа) и 1.2. (на уровне 3 этажа). Выдать ключи собственникам планируется в марте 2023 года.
Кто строит
Строительство на земельном участке с кадастровым номером 50:21:0110405:1 ведет ООО «Специализированный застройщик «Самолет-Дудкино», зарегистрированное в декабре 2019 года.
Паспорт объекта, как и положено, вывешен на строительном заборе, но почему-то не с внешней, а с внутренней стороны. Поэтому доступ к нему затруднен.
Земельный участок принадлежит застройщику на праве аренды. Со времени создания компания не участвовала в каких-либо строительных проектах.
Учредителем компании-застройщика выступает ООО «Самолет Две Столицы», входящая в группу компаний «Самолет». А последняя - один из крупнейших девелоперов России, входит в пятерку лидеров по объему текущего строительства. В московском регионе она занимает по этому показателю второе место.
В рабочем портфеле компании 15 проектов только в московском регионе, из них 5 реализовано. Причем нигде не было отмечено случаев срыва сроков сдачи объектов в эксплуатацию.
Подрядчик - ООО «Жилстрой-МО».
Сайт
Сайт новостройки https://samolet.ru/project/troparevo-park/ «заточен» на красоту объекта.
Здесь и виртуальные туры по внешним и внутренним пространствам, и подборка рендеров с изображением фасадов и интерьеров и детальная визуализация отделки всех жилых помещений.
В сайт встроен удобный механизм выбора квартиры с планировками и актуальными ценами.
Не забыты и вопросы инфраструктуры, а ход строительства отражен в фотографиях.
Для особо любопытных в сеть выложены документы по проекту, только искать их надо не на сайте новостройки, а на сайте девелопера ГК «Самолет».
Окружение, транспортная доступность, благоустройство общественных пространств - для всего нашлось описание. А вот сведений о том, что здесь продаются не квартиры, а апартаменты, на сайте нет. Как нет и упоминания о том, что строительство ведется по монолитной технологии.
Дополнительную информацию можно найти в социальной сети ВКонтакте https://vk.com/troparewopark .
Офис продаж
Офис продаж, расположенный непосредственно на объекте, представляет собой предельно простую в архитектурном отношении одноэтажную коробку.
Внутри офиса устроена уютная зона ожидания и четыре прекрасно оборудованных рабочих места для общения менеджеров по продажам с клиентами. Огромный телевизор на стене, красочные буклеты - все в распоряжении заинтересованных покупателей.
Уже ведется оформление шоу-рума и через пару недель здесь же, в офисе продаж, можно будет увидеть внутренние интерьеры апартаментов и потрогать руками отделочные материалы.
А пока дополнительную информацию можно получить при осмотре макета, сделанного с максимальным приближением к действительности.
Сколько стоит
Таблица 2.
|
Тип апартаментов |
Площадь (кв. м) |
Стоимость апартаментов (руб.) |
Стоимость одного квадратного метра (руб.) |
|
Студии |
21,15 - 25,25 |
6 324 557 - 6 857 965 |
299 033-271 603 |
|
Однокомнатные |
34,3 - 36,45 |
8 324 725 - 8 591 038 |
242 703-235 694 |
|
Двухкомнатные |
34,03 - 55,36 |
8 131 745 - 10 623 993 |
238 958-191 907 |
|
Трехкомнатные |
53,88 - 60,33 |
10 126 832 - 11 174 050 |
187 952-185 215 |
|
Четырехкомнатные |
66,03 - 78,01 |
12 627 830 - 15 100 901 |
191 244-193 576 |
Средняя цена квадратного метра в новостройке составляет 223 788 рублей.
Для сравнения приведем цены на двухкомнатные апартаменты комфорт-класса с отделкой в строящихся жилых комплексах Москвы.
Таблица 3.
|
Название ЖК |
Ближайшая станция метро или населенный пункт |
Площадь квартир(кв. м.) |
Стоимость квартир (руб.) |
Стоимость одного кв.м. (руб.) |
Отделка |
Срок сдачи |
|
«Тушинская» |
55,2 |
12 396 816 |
224 580 |
Нет |
2 квартал 2022 г. |
|
|
«Стрешнево» |
52,4 |
10 710 560 |
204 400 |
Есть |
1 квартал 2023 г. |
|
|
«Тропарево Парк» |
«Румянцево» |
55,36 |
10 623 993 |
191 907 |
Есть |
4 квартал 2022 г. |
|
«Медведково» |
67,67 |
12 626 338 |
186 587 |
Есть |
3 квартал 2022 г. |
Как видно в данном рейтинге, «Тропарево» не стремится лидерству.
Заметим, что большинство апарт-комплексов Москвы относятся к классу «бизнес» и «премиум», поэтому найти нужные примеры в классе «комфорт» оказалось непросто. В этой связи можно отметить, что «Самолет» поставил перед собой задачу освоить топовые сегменты рынка апартаментов в столице и проект «Тропарево» является переходным к новому, более высокому качеству и в определенной степени показательным.
Планировки
На продажу выставлены студии, одно-, двух-, трех- и четырехкомнатные апартаменты.
План 11 этажа корпуса 1.2. секции 1
План 14 этажа корпуса 1.1. секции 1
Планировка студии 21,15
Планировка студии 23,21
Планировка студии 25,25
Студии отличаются максимальной универсальностью и минимализмом. Ну что ж, на то он и базовый формат. Входная зона площадью от 3,42 до 3,76 кв.м., совмещенный санузел площадью от 3,29 до 3,57 кв.м. И универсальная многоцелевая комната площадью от 14,32 до 18,2 кв.м. Причем иногда в эту комнату включается и территория прихожей. То есть, стенами огорожен только санузел.
Планировка однокомнатной квартиры 34,3
Планировка однокомнатной квартиры 34,45
Однокомнатные квартиры, выдержанные по планировке в классических традициях, не отличаются разнообразием. Входная зона площадью от 5,22 до 5,42 кв.м., совмещенный санузел площадью от 3,47 до 3,68 кв.м. и кухня площадью от 10,29 до 10,94 кв.м. Иногда встречается гардеробная площадью 3,04 кв.м.
Планировка двухкомнатной квартиры 34,03
Планировка двухкомнатной квартиры 40,63
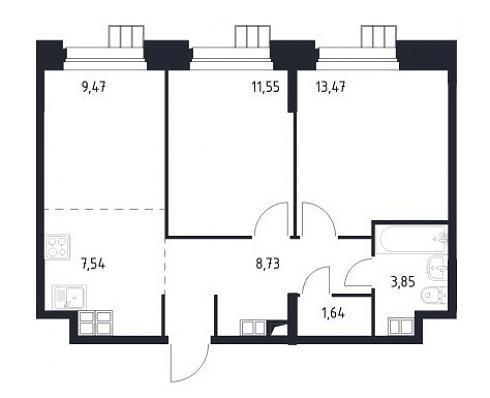
Планировка двухкомнатной квартиры 55,36
Двухкомнатные квартиры спроектированы в форматах «евро» и «классика». Входная зона площадью от 4,34 до 10,37 кв.м., совмещенный санузел площадью от 3,53 до 3,6 кв.м. В евро-вариантах запроектирована кухня-гостиная общей площадью от 14,7 до 15,86 кв.м., в классике площадь кухни составляет 10,95 кв.м. Спальни площадью от 10,2 до 15,33 кв.м.
Планировка трехкомнатной квартиры 52,16
Планировка трехкомнатной квартиры 56,25
Планировка трехкомнатной квартиры 60,33
Трехкомнатные квартиры встречаются только в евро-формате. Входная зона площадью от 3,85 до 8,73 кв.м., совмещенный санузел площадью от 3,53 до 4,3 кв.м., кухня-гостиная общей площадью от 16,76 до 17,96 кв.м. Спальни площадью от 11,04 до 16,31 кв.м. В некоторых вариантах встречается гардеробная площадью 2,76 кв.м.
Планировка четырехкомнатной квартиры 66,03
Планировка четырехкомнатной квартиры 70,28
Планировка четырехкомнатной квартиры 78,01
Четырехкомнатные квартиры запроектированы только в формате «евро». Входная зона площадью от 4,81 до 5,06 кв.м., внутренние коридоры от 4,61 до 4,99 кв.м. Раздельный санузел или два полноценных с площадью помещений от 3,49 до 6,67 кв.м., кухня-гостиная общей площадью 16,52 до 20,73 кв.м., спальни площадью от 9,75 до 13,47 кв.м. Встречаются кладовые площадью 3,0 кв.м. Все квартиры угловые, в некоторых помещениях может быть по два окна.
Как купить
Продажи ведутся по федеральному закону № 214 ФЗ путем заключения договора долевого участия с использованием счета эскроу в Сбербанке. Оплату можно производить 100% стоимости, с использованием ипотечного кредита и в рассрочку.
Покупателям доступна услуга бронирования апартаментов с фиксацией цены. Срок действия брони - 14 дней, стоимость 10 000 рублей. Причем, эта сумма будет учтена при окончательном расчете. Операцию бронирования можно совершить удаленно, просто нажимая кнопки на компьютере. Естественно, для этой процедуры потребуется передать застройщику личные данные. Также покупатель должен предусмотреть дополнительные расходы на регистрацию договора долевого участия в Росреестре - 27 тысяч рублей.
Желающие получить рассрочку должны внести сразу половину стоимости апартаментов, а вторую половину вносить в течение полугода равными платежами.
Есть и другой вариант рассрочки. 15 % первоначальный взнос, через полгода еще 10 % и еще через полгода 75%. Такая рассрочка затягивается почти на год.
Собственники апартаментов при желании могут снова продать их застройщику по рыночной стоимости и на вырученные деньги купить у застройщика же новую, более просторную квартиру. С учетом инвестиционной привлекательности проекта этот маневр может принести немалую экономическую выгоду.
Скидку до 5% может дать лично менеджер по продажам (если сможет провести успешные переговоры с руководством).
Инфраструктура
Непосредственно на объекте пока никакой инфраструктуры нет. Разве что кофейня в бизнес-центре G-10 на тихой улице Цветочной.
Но в глобальном смысле с инфраструктурой все великолепно.
Рядом крупные торговые центры, парки и лесопарки, крупнейшие транспортные магистрали. Прямо под окнами начинается Тропаревский лесопарк площадью 219 гектаров.
Школы, больницы, учреждения социальной сферы - все неподалеку за МКАДом. Будет и свой небольшой детский сад на территории (или даже два, все будет зависеть от спроса). Транспортная схема въезда и выезда, может быть, несколько усложнена, но девелопер планирует построить специальную дорогу для связи территории комплекса с МКАД.
Резюме
Итак, можно включить в список плюсов новостройки следующие позиции:
• Привлекательная архитектура
• Разнообразие планировок
• Удачное расположение
• Высокая транспортная доступность
• Невысокая цена
• Качественное благоустройство придомовой территории
• Отделка с установкой мебели и оборудования на кухне
А вот считать ли плюсом покупку апартаментов, а не квартиры, в этом покупателю придется детально разбираться самому.
Самым весомым аргументом при покупке апартаментов является цена. Как правило, квадратный метр здесь стоит на 25 - 30 % ниже рынка. Но здесь выше налог на недвижимость, выше коммунальные платежи и за покупку апартаментов нельзя получить налоговый вычет. Собственник не имеет права постоянной регистрации в апартаментах, поскольку они относятся к разряду нежилых помещений. Есть возможность временной регистрации сроком до 5 лет, но такой вариант приемлем для арендаторов, но не для собственников. На покупку апартаментов сложнее получить ипотечный кредит, а в случае банкротства застройщика дольщику вернут только деньги, но не квадратные метры.
Покупая апартаменты, собственник не может быть уверен, что его соседи, пусть даже и арендаторы, поселились здесь для проживания. За стеной его спальни (толщина которой может быть меньше, чем в жилых квартирах, строительные нормы здесь другие) могут появиться офисы, производственные помещения и даже ночной клуб. И делать замечания шумным соседям не получится, поскольку на нежилые помещения не распространяется закон о тишине.
Перед вашим окном, которое смотрело на красивый пейзаж, может вырасти еще одно здание коммерческого назначения. Причем не стоит надеяться на появление инфраструктурных объектов в будущем, застройщик вправе не брать на себя подобные обязательства.
И в любом случае над головами обитателей апартаментов будут летать самолеты, заходящие на посадку в аэропорт Внуково.
Вот и думайте теперь - покупать или не покупать помещение в этой новостройке.
Автор: Андрей Петров
Специально для Квартирного контроля

Обсуждение ЖК «Тропарево Парк»: уголок комфорта в полукилометре от МКАД