Бутырский район Москвы, известный своими промзонами, в последние годы мало-помалу меняет облик. Очередь дошла и до окрестностей Савеловского вокзала: в ближайшее время их ждет серьезное преображение. Здесь, на бывшей территории завода «Борец», возводится новый ЖК «Шереметьевский» от группы компаний ПИК. К концу 2022 года на участке площадью 12.8 га планируется построить пятнадцать многоэтажных жилых корпусов, а также школу, поликлинику и три детских сада.
Предварительная разведка
Разбираем сайт проекта
Официальная страница ЖК «Шереметьевский» расположена на сайте Девелопера (https://www.pik.ru/sher). Как обычно, ПИК предоставляет потенциальному покупателю довольно подробную информацию о проекте: можно найти генплан, документацию, сведения об окрестностях и условиях покупки. Фотографии со стройплощадки доказывают, что работы идут довольно активно.
В продаже в июле 2019 года находится семь корпусов. Любой из них можно выбрать на генплане и сразу получить представление о сроках сдачи и стоимости квартир.
По каждому корпусу можно рассмотреть список доступных квартир либо шахматку.
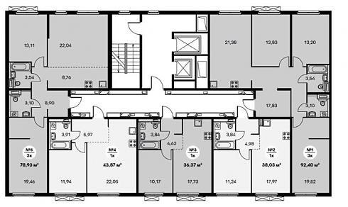
Есть также возможность выбора из списка планировок – их, кстати, довольно много. Одних только вариантов однокомнатных можно насчитать под сотню. Впрочем, к теме планировок я еще вернусь.
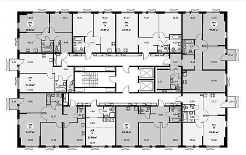
Клик на квартиру выдает сводную информацию и расположение на плане корпуса. Можно также ознакомиться и с поэтажным планом.
В целом, посещение сайта ЖК «Шереметьевский оставляет благоприятное впечатление. Есть ответы на основные вопросы: кто строит и как, что будет возведено и в какие строки, и главное, сколько будет стоить жилье.
ЖК «Шереметьевский» в цифрах:
- Корпус №1: 14 этажей, 4 секции, 413 квартир, 565 кладовых.
- Корпус №7: 14 этажей, 2 секции, 194 квартиры, 237 кладовых.
Под корпусами 1 и 7 будет двухуровневый подземный паркинг на 470 машиномест. Кроме того, здесь же предусмотрено строительство двухэтажного ДОО на 90 мест.
- Корпус №2: 12 этажей, 1 секция, 132 квартиры, 49 кладовых.
- Корпус №3: 14 этажей, 1 секция, 130 квартир, 39 кладовых.
- Корпус №4: 11 этажей, 1 секция, 98 квартир, 40 кладовых.
- Корпус №5: 11 этажей, 1 секция, 99 квартир, 40 кладовых.
- Корпус №6: 14 этажей, 2 секции, 222 квартиры, 89 кладовых.
Согласно ПД, получение РВЭ этих домов ожидается в I квартале 2021 года. При этом для корпусов 1, 2 и 7 это выглядит так:
А для корпусов 3, 4, 5 и 6 – вот так:
Забегая вперед, скажу, что в офисе продаж мне пояснили: РВЭ корпусов 3-6 планируется получить во II квартале 2021 года.
Застройщик – ООО «Борец», входит в ГК ПИК. Строительство ведется на участке с кадастровым номером 77:02:0021006:53 (128515 кв. м), сам участок находится в собственности Застройщика. Разрешение на строительство действует до 20.06.2024.
Разведка боем
Как добраться
Если вы передвигаетесь на авто, доехать до новостройки можно, воспользовавшись Третьим Транспортным кольцом или Дмитровским Шоссе. И тот и другой путь займет минут пять-десять (без учета пробок).
Для тех, кто пользуется общественным транспортом, на выбор есть метро либо электричка. Ближе всего к комплексу расположена платформа «Станколит». До нее можно доехать минут за восемь от Белорусского вокзала, либо за три минуты от Савеловского.
Те, кто предпочитает подземку, могут дойти до новостройки от ст. м. «Савеловская», «Дмитровская» или «Марьина роща». От первых двух пеший путь до «Шереметьевского» займет минут пятнадцать, а от «Марьиной рощи» – чуть больше двадцати минут.
Знакомство с окрестностями
ЖК «Шереметьевский» строится в районе, богато «населенном» промзонами. Кроме того, с двух сторон к нему примыкают ветки железной дороги.
Как я уже упомянула, платформа Станколит находится прямо за забором стройплощадки. Именно рядом с ней будут возводиться корпуса с 8 по 15 (пока что на их месте стоят старые здания компрессорного завода «Борец»). Корпуса с 1 по 7 строятся чуть дальше от платформы.
Предлагаю обратить внимание на окрестные кварталы и рассмотреть каждый из них повнимательнее.
Самый «обитаемый» район поблизости тот, что расположен к югу от новостройки. Он довольно давно заселен, жилые дома соседствуют с заводскими территориями и НИИ. В распоряжении жителей имеются детские площадки, небольшие скверики, с десяток магазинов, аптеки, салоны красоты и фитнес-центры.
Возле ст. м. «Марьина Роща» находится большой торговый центр и Фестивальный парк.
Теперь – о втором из «соседей» нашей новостройки. Метрах в ста от платформы «Станколит» и стройплощадки раскинулась территория Савеловского рынка. Собственно, от ст. м. «Савеловская» до ЖК «Шереметьевский» идти ближе всего, но, чтобы срезать путь, придется проходить через торговые ряды.
Собственно, с территории рынка прекрасно видно строительные краны «Шереметьевского».
Рядом с Савеловским вокзалом тоже вполне приличная торговая инфраструктура, есть продуктовые магазинчики, аптеки, отделения банков и офисы сотовых операторов. Пешком от комплекса, напомню, сюда можно дойти минут за 15.
Третий «сосед» рассматриваемого нами ЖК – это бизнес-парк «Станколит» с гипермаркетом «Метро», фудмаркетом и массой торговых и офисных помещений. Он располагается буквально через дорогу от стройплощадки.
Между стройплощадкой и бизнес-парком проходит ул. Складочная, которая пересекает железнодорожные пути рядом с платформой Станколит. В целом она не особенно загруженная, но из-за ж/д переезда на дороге часто собираются пробки. Впрочем, эти заторы так же быстро и «рассасываются», когда шлагбаум переезда открывается.
Сразу за территорией бизнес-парка находится еще один жилой комплекс – «Савеловский сити». Его я упоминаю, так как на первых этажах домов есть магазинчики, салоны красоты и кофейни, в общем, своего рода мини-инфраструктура в шаговой доступности от рассматриваемого комплекса.
Сразу за этим проектом от МР Групп проходит железнодорожная ветка и находится дизайн-завод «Флакон». Поезда ходят довольно часто, так что на пешеходном переходе через рельсы постоянно небольшое столпотворение. Если жители «Шереметьевского» решат пройтись до ст. м. «Дмитровская», этого перехода им не избежать.
Дизайн-завод «Флакон», до которого от новостройки можно дойти минут за семь – это своего рода «точка притяжения» всего района. Тут полно кафе, галерей, магазинчиков, салонов красоты и всевозможных арт-объектов.
В трех сотнях метров от «Флакона» расположена ст. м. «Дмитровская», возле которой, конечно, есть разнообразные закусочные, магазины, отделения банков и аптеки.
С четвертой, восточной стороны к «Шереметьевскому» примыкает еще одна железнодорожная ветка, за ней – складские помещения.
Между забором стройплощадки и рельсами всего метров двадцать. Хорошо, что Застройщик решил оставить вдоль ограждения взрослые высокие деревья, они послужат своего рода «защитой» жилого квартала от шума поездов.
Вообще же с зелеными насаждениями в окрестностях наблюдается некоторая напряженка. Ближайшие два парка, Гончаровский на севере и Фестивальный на юге, расположены в двух километрах от ЖК. Если взглянуть на более масштабную карту, на некотором отдалении можно обнаружить три больших зеленых зоны: Останкинский и Тимирязевский парки, а также парк Сокольники. До любого из них минут за пятнадцать можно доехать на автомобиле.
Что же касается рекреационных зон в шаговой доступности, то их практически нет. Для прогулок у жителей комплекса будут лишь скверики и игровые площадки на территории самого ЖК. Впрочем, судя по другим проектам ПИКа, озеленением и обустройством дворов Застройщик занимается с фантазией и удовольствием.
Ход строительства
Судя по тому, что я увидела на строительной площадке, работы идут вполне приличными темпами.
Вот так выглядят «башни» – корпуса 3, 4 и 5.
Возведение корпусов 1 и 2 тоже близится к завершению.
В офисе
Офис продаж ЖК «Шереметьевский» расположен рядом со стройплощадкой, прямо напротив бизнес-парка «Станколит».
Рядом с офисным зданием установлена «демонстрационная стена», на примере которой потенциальный покупатель может рассмотреть фасады, окна и балконы будущих домов.
В самом офисе можно получить буклеты и довольно познавательную газету с рассказом о районе, а также взглянуть на макет будущего квартала.
Я пришла без предварительного звонка, но посетителей было немного, так что к менеджеру меня пригласили буквально минут через пять. При желании, кстати, можно записаться «на прием» на сайте проекта, и даже заказать бесплатное такси до офиса продаж.
Итак, по итогам визита общения с менеджером мне удалось выяснить следующее. ЖК будет состоять из пятнадцати корпусов. Дома строятся по монолитной технологии (монолитно-панельная серия СЭМ-2). Панели фасадов, отделанные клинкерным кирпичом, производятся на заводе.
Корпуса 1, 2 и 7 планируется ввести в эксплуатацию в I квартале 2021 года (ключи собственники должны получить до 30 марта), корпуса 3, 4, 5 и 6 – во II квартале того же года (ключи – до 30 мая). Остальные дома будут построены до конца 2022 года, но точных сроков по ним пока не называется.
Кроме жилых домов, будут построены три детских сада (на 90 малышей каждый), школа (на 650 учеников) и поликлиника. Один из детских садиков планируется открыть одновременно с первой очередью. По поводу школы и поликлиники сроки пока что расплывчатые, предположительно их достроят в 2022 году.
Чтобы примерно понять расположение объектов, имеет смысл присмотреться к макету.
Школа и поликлиника – это темно-коричневые прямоугольники между домами. Двухэтажные пристройки к корпусам – детские садики. Два темно-коричневых строения с правой стороны макета – это здания завода «Борец». Они являются «исторически ценными градоформирующими объектами» и будут отреставрированы, чтобы впоследствии войти в состав бизнес-парка на окраине ЖК. Эти постройки, кстати, «отгородят» жилые дома от ж/д платформы Станколит, так что окна квартир выходить прямо на железнодорожную ветку не будут.
Традиционно для ПИКа, все дворы планируется обустроить в концепции «без машин», входные группы будут сквозными, без ступенек и пандусов. На первых этажах расположатся как коммерческие помещения (в корпусах 2 и 3), так и квартиры (в корпусах 1, 4, 5, 6 и 7).
Для автомобилистов предусмотрены плоскостные автостоянки по периметру квартала и машиноместа в подземном двухуровневом паркинге. На подземных этажах, кстати, будут располагаться и кладовые помещения, но ни их, ни машиномест в продаже пока что нет.
Все квартиры сдаются с чистовой отделкой: ламинат на полу, обои под покраску, натяжные потолки, в санузлах облицовка керамической плиткой от пола до потолка. Окна – увеличенного размера, с подоконником на высоте 50 см. Высота потолков – 2.7 м.
Шоу-рум на объекте пока не обустроен. Потенциальным покупателям, желающим взглянуть на отделку, предлагается посетить шоу-румы в других офисах, например, в Медведково или Отрадном. Приехать на просмотр можно без предварительной записи, показы квартир проводятся каждый час. Полный список шоу-румов, кстати, можно найти на сайте Застройщика.
В части квартир будут «французские» балконы – незастекленные, площадью от 2 до 2.5 квадратов.
Количество квартир на этаже – от 4 до 12. Самым «населенным» является корпус 2. Отметим, что лифтов в секции всего два, даже при изрядном числе квартир. Мне кажется, что в «часы пик» это может создавать затруднения для жильцов.
Что предлагают
Стоимость
Цены на квартиры в ЖК «Шереметьевский», актуальные на середину июля 2019 года, представлены в табличке ниже:
Таблица 1.
|
Квартира |
Площадь, кв. м |
Цена, млн руб. |
||
|
От |
До |
От |
До |
|
|
Студия |
19,9 |
30,3 |
5,00 |
6,27 |
|
1-к |
33,2 |
46,0 |
6,53 |
7,72 |
|
2-к |
48,4 |
75,0 |
9,17 |
13,01 |
|
3-к |
68,2 |
97,3 |
11,00 |
16,69 |
В районах, столь близких к центру столицы, найти новостройки комфорт-класса – задача нетривиальная. В основном здесь возводятся комплексы класса «бизнес». Так что для составления сравнительной таблицы пришлось рассмотреть объекты, расположенные в разных районах СВАО Москвы (но не слишком далеко от «Шереметьевского»).
Таблица 2.
|
ЖК |
Площадь, кв. м |
Цена, млн руб. |
Материал |
Срок сдачи |
Отделка |
|
Шереметьевский |
56,0 |
10,0 |
Монолит-панель |
I квартал 2021 |
Есть |
|
Фонвизинский |
52,5 |
10,39 |
Монолит |
II квартал 2021 |
Нет |
|
Петровский парк |
56,7 |
12,53 |
Монолит |
I квартал 2021 |
Нет |
|
Грин Парк |
55,2 |
11,57 |
Монолит |
IV квартал 2019 |
Нет |
Планировки
Если смотреть планировки на сайте объекта, может показаться, что их несколько сотен, и все разные. На самом деле многие из квартир похожи как близнецы, различаясь лишь площадями помещений. И все же выбор ПИК предлагает достойный. Вот, например, варианты студий. В одной из них нашлось даже место для раздельного санузла!
Однокомнатных также вполне приличный набор, от компактных до вполне просторных. Есть как «традиционные» однушки, так и евро-двушки, с гардеробной комнатой или без таковой. В некоторых квартирах присутствуют раздельные санузлы.
Есть даже любопытный вариант с просторным холлом и шестиугольной комнатой, в которой к тому же два окна.
Двухкомнатные на любой вкус: линейные, угловые, распашные. Санузлы во всех двушках раздельные. Правда, комнаты зачастую довольно скромных площадей, от 10,5 до 13 квадратов.
Трешки также представлены всеми возможными вариациями, включая и евро-четырехкомнатные квартиры.
Как купить
Оформление
Купить квартиру в ЖК «Шереметьевский» можно следующим образом. Первоначальный этап – бронирование, бесплатное на 5 дней либо платное (5000 руб.) на 10 дней. В момент бронирования цена на квартиру фиксируется. Затем приходит время подписания Договора долевого участия. В общем случае ДДУ подписывается в электронном виде, эта услуга бесплатна. В случае 100% оплаты либо ипотеки дается скидка в 2% от стоимости квартиры. Если покупатель настаивает на «бумажном» оформлении, то за оказание услуг придется доплатить 20 000 рублей, а скидка в 2% не предоставляется.
После подписания ДДУ у покупателя есть три дня на то, чтобы открыть аккредитивный счет в банке (на выбор: Райффайзенбанк, МКБ или Абсолют) и внести на него деньги за квартиру. После того как Договор зарегистрируют в рег. палате, средства будут перечислены Застройщику. Эскроу-счета не используются.
Ипотеку можно оформить в следующих банках:
Рассрочка
Существует также возможность рассрочки. Варианта три:
- Первоначальный взнос от 10%, оставшаяся часть суммы через 2 месяца. Проценты не взимаются.
- Первоначальный взнос от 40%, оставшаяся часть в течение трех месяцев равными платежами, проценты не взимаются.
- Первоначальный взнос от 40%, оставшаяся часть выплачивается в течение шести месяцев, проценты начисляются начиная с четвертого месяца – 2% на остаток.
Кстати, подробный «гид по покупке» можно найти на сайте Застройщика (https://www.pik.ru/how-to-buy).
Спрашивали - отвечаем
На форумах в интернете отзывов немного, но активно обсуждаются нюансы месторасположения ЖК «Шереметьевский». В частности, идут дискуссии о Складочной улице, которая частенько стоит в пробках из-за железнодорожного переезда (выше упоминалось об этом). Вопрос о транспортных перспективах района я решила задать в офисе продаж. Менеджер сообщила мне вот что: уже утвержден план, согласно которому будет организован тоннель под ж/д путями. Так что постоянных заторов возле шлагбаума уже через год не будет. Кроме того, планируется сделать прямой выезд со Складочной улицы на ТТК, так что автомобилистам выбраться из микрорайона станет удобнее.
Множество интернет-дискуссий касаются и ближайшего окружения Новостройки.
Тему малосимпатичных окрестностей и близости железнодорожной ветки я также упомянула в беседе с представителем застройщика. С его слов, дела обстоят не так уж плохо. Во-первых, вредных производств поблизости нет, а основную массу промзон составляют складские помещения. К тому же есть ненулевая вероятность, что территории складов тоже в ближайшие годы «освоят» девелоперы. Во-вторых, Застройщик планирует установить пятиметровые шумозащитные экраны между ж/д путями и жилыми домами, чтобы жителям меньше мешал шум поездов.
И в заключение
К числу плюсов жилого комплекса я отнесла бы:
- расположение недалеко от центра столицы,
- неплохую транспортную доступность,
- близость трех станций метро,
- приличную торговую инфраструктуру в шаговой доступности,
- жилье с готовой отделкой и большими окнами,
- в части квартир есть «французские» балконы.
Минусы, впрочем, тоже присутствуют:
- поблизости малосимпатичные промзоны,
- совсем рядом с домами проходят две железнодорожные ветки,
- не всем понравится соседство с шумным Савеловским рынком,
- «собственных» школы и поликлиники придется ждать до 2022 года,
- маловато лифтов для большого числа квартир на этаже,
- рядом нет зеленых зон, до ближайшего парка два километра.
Ну а в целом, если вы хотите жить не слишком далеко от центра, и при этом вас не смущают «индустриальные» виды из окна, ЖК «Шереметьевский» вам вполне может подойти.
Автор: Мария Борискина
Специально для Квартирного контроля

Обсуждение ЖК «Шереметьевский»: «оживляем» заводские территории