В Восточном округе столицы, а именно в районе Соколиной горы, началось строительство нового жилого комплекса. На территории площадью 21 тысяча кв. м. разместятся три жилых дома высотой 20-25 этажей, детский сад и многоуровневый паркинг. Давайте познакомимся с этим проектом подробнее.
Предварительная разведка
Официальный сайт ЖК «Семеновский парк» (http://rg-sp.ru) предоставляет основную «презентационную» информацию о проекте. Вы можете найти здесь проектную документацию, сведения о застройщике, пару абзацев о технологии строительства. Можно понаблюдать за работами на стройплощадке (есть как фотографии, так и трансляция с веб-камеры). А также вкладка «Аэрофотосъемка» – вместе с веб-трансляцией она поможет оценить и окрестности стройплощадки, и видовые характеристики будущих корпусов.
Вполне удобно организован подбор квартир. В таблице выбора по параметрам можно сортировать результаты по любой из позиций. Причем если вы, скажем, рассматриваете только однокомнатные квартиры – то параметры сами «подстроятся» под ваш запрос, показав вам доступные площади и цены.
Удобно также, что каждый вариант можно открывать в отдельном окне – а понравившиеся выделять, чтобы затем можно было сравнить разные планировки.
Корпус 1: 20-25 этажей, 612 квартир.
Корпус 2: 25 этажей, 360 квартир.
Корпус 3: 20-25 этажей, 650 квартир.
Планируемый срок получения РВЭ, согласно Проектной декларации, – IV квартал 2019 года.
Застройщик – АО «Аремз-1». Девелопер – инвестиционно-девелоперская компания «РГ-Девелопмент», работает в Московском регионе с 2013 года, уже построены и введены в эксплуатацию четыре жилых комплекса в разных районах столицы.
Участок с кадастровым номером 77:03:0004006:6416 (21737 кв. м) принадлежит Застройщику на основании договора аренды сроком до 26.06.2024.
Разведка боем
Если вы автомобилист, то с выбором пути до ЖК у вас особых проблем не будет. Совсем рядом проходят Северо-Восточная хорда, шоссе Энтузиастов и Измайловское шоссе. До станций метро «Шоссе Энтузиастов» или «Семеновская» доехать можно минут за восемь.
У людей «безлошадных» также довольно богатый выбор маршрутов. Итак, что у нас рядом? До ст. м «Семеновская» или «Партизанская» можно дойти примерно за 25 минут (расстояние со всеми изгибами дороги – порядка 2 км). До станции МЦК «Соколиная гора» вы дошагаете минут за 17. Также неподалеку от комплекса есть остановки автобусов – на случай, если вы не любите ходить пешком. Прямо от стройплощадки можно доехать, например, до платформы Новогиреево, станции Перово или ст. м. «Семеновская». Правда, автобусы на этих маршрутах ходят не особенно часто – раз в 12-22 минуты. В целом, с транспортной доступностью дела обстоят если и не идеально, то вполне неплохо.
Отправляясь на «разведку», я решила воспользоваться МЦК, чтобы заодно понять, насколько близко к новостройке расположена главная зеленая зона района – Измайловский парк.
Станцию «Соколиная гора» с парком связывает длинный и широкий переход. Для маломобильных граждан и мам с колясками есть лифт, то есть путь до парка будет вполне комфортным.
Измайловский парк и главный его водный объект – Круглый пруд, находятся прямо рядом со станцией.
Но перейдем через Северо-Восточную хорду, чтобы рассмотреть жилые окрестности будущего комплекса. Если смотреть на карту, кажется, что новостройка окружена серыми промзонами.
На самом деле, это лишь отчасти соответствует действительности. Если идти от МЦК к комплексу, вы пройдете мимо довольно обширной территории клинической инфекционной больницы и мимо опытных помещений НИИ авиационных материалов.
СВХ тоже, будем честными, выглядит не особенно живописной, впрочем, у автотрассы и нет задачи радовать глаз.
Но в целом ситуация с окрестностями не такая уж удручающая. Большую часть построек на территории района составляют все же жилые дома.
Ясно, что застраивалась эта местность много лет и вразнобой: тут можно найти и основательные «сталинские» кирпичные пятиэтажки, и панельки времен Брежнева, и «хрущевки», и современные здания.
Торговая инфраструктура в ближайших окрестностях довольно небогатая. Во время своей прогулки по окружающим дворам я встретила всего парочку сетевых супермаркетов и один мебельный магазин.
Основные торговые точки находятся у станций метро – до которых, как мы помним, около двух километров. Ближайшие поликлиники тоже не рядом: пешком до них минимум полчаса. Зато в шаговой доступности есть две школы, лицей и два детских садика. Поблизости также находится стадион «Крылья Советов».
Район в целом тихий и даже сонный, на автодорогах практически нет машин. Что же касается остальных «серых промзон», которые мы видели на картах – на деле это оказались не производственные помещения, а офисные комплексы, которые хоть и примыкают к новостройке с трех сторон, но никакого вреда экологии не наносят. Разве что не всем может понравиться вид из окон на «промышленные» территории.
Сама стройка началась сравнительно недавно, пока из-за ограждения можно увидеть только первые, монолитные этажи корпусов 1 и 2.
Кстати, наименование Застройщика – «Аремз-1», на самом деле расшифровывается как «Авторемонтный завод №1». Именно на территории, которую раньше занимал этот завод, и строится ЖК «Семеновский парк». Вообще же весь район называется неромантично: «Промзона «Кирпичные улицы». Подробнее о районе можно почитать, например, на сайте Комплекса градостроительной политики Москвы (https://stroi.mos.ru/renovaciya-promzon/promzona-kirpichnyie-ulitsy-stroi_mos). Здесь же указано, что неподалеку от ЖК, на месте старого детского сада планируется построить школу. Впрочем, это отдельный проект, к «Семеновскому парку» отношения не имеющий.
Офис продаж располагается прямо возле стройплощадки.
Здесь вы можете получить буклеты, в подробностях описывающие планировки квартир, а также посмотреть на макет. Офис располагается на том месте, где в будущем возведут многоуровневый паркинг.
Итак, что мне удалось узнать по итогам визита общения с менеджерами?
Всего будет три жилых дома, детский садик на 200 мест и паркинг, вместимость которого пока неизвестна. Разрешение на ввод в эксплуатацию Застройщик планирует получить в конце 2019 года, ключи жильцам должны будут выдать в начале 2020 года. Детский сад, как мне сказали, откроется также в 2020 году, а вот по срокам возведения паркинга определенности пока нет.
Первые два этажа жилых домов монолитные, выше – панельные, возводятся из панелей обновленных серий ДСК-1: ДомРик и ДомНад. Панели доставляются с завода уже «укомплектованными» стеклопакетами, с облицовкой клинкерной плиткой, поэтому возведение домов превращается в довольной быстрый процесс. Как мне пояснили в офисе продаж, по техническим характеристикам два разны видах панелей практически не различаются, разница лишь в планировочных решениях, которые могут быть созданы на их основе.
Угловые секции корпуса 1 – из панелей ДомРик, и лоджий в квартирах здесь нет. Остальные секции корпусов 1 и 2 – из панелей ДомНад, тут лоджии уже есть, причем панорамные, с остеклением, которое будет начинаться на высоте 30 см от пола.
Окна во всех квартирах увеличенные, размером 180 на 230 см, с двухкамерным профилем. Высота потолков – 2.8 м.
В декабре 2018 года в продаже были квартиры в 1 и 2 корпусах. Число квартир на этаже – от 4 до 6 (самые «населенные» – угловые секции 1 корпуса, в них по 20 этажей). В 25-этажных секциях по два лифта, оба грузопассажирские. В 20-этажных секциях лифтов тоже два: пассажирский и грузовой.
На первых этажах будут коммерческие помещения, в которых разместятся магазины, аптеки, отделения банков и салоны красоты. В каждом подъезде предусмотрено место для работы консьержа.
Паркинг планируется четырехэтажным (один из этажей будет подземным). Машиноместа в нем, предположительно, будут стоить от 500 тысяч рублей. Правда, пока что в продажу они пока не поступили.
Что предлагают
Квартиры, напомню, продаются пока только в корпусах 1 и 2. Жилье в третьем корпусе поступит в продажу позднее.
|
Квартира |
Площадь, кв. м. |
Цена, млн. руб. |
||
|
От |
До |
От |
До |
|
|
1-к |
35,5 |
44,3 |
5,50 |
6,89 |
|
2-к |
56,8 |
61,0 |
8,64 |
8,95 |
|
3-к |
77,1 |
79,9 |
11,41 |
12,59 |
|
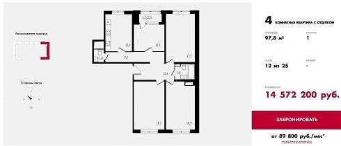
4-к |
97,8 |
100,9 |
14,18 |
14,77 |
В корпусе 1 представлен полный планировочный ряд – от однушек до четырехкомнатных квартир. В корпусе 2 есть только 1- и 2-комнатные квартиры.
В целом, выбор планировок не такой уж маленький. несмотря на то что речь идет о панельном строительстве. Вот, например, такие предлагаются однушки.
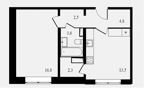
Эта однокомнатная, расположенная в угловой секции корпуса 1, например, может «похвастаться небанальной планировкой, просторным холлом и даже кладовкой, в которую ведет дверь из кухни. Площадь кухни, кстати, более чем приличная. А вот лоджии – как во всех квартирах угловых секций – здесь нет.
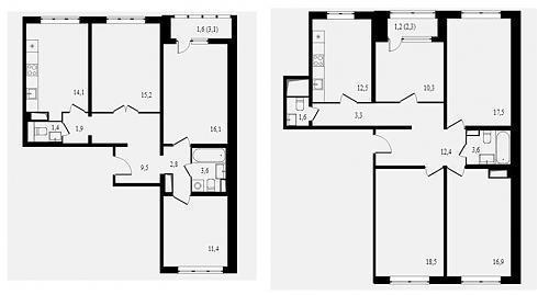
Двухкомнатных квартир выбор тоже вполне неплохой. Есть как линейные, так и распашные планировки.
В двухкомнатных – раздельные санузлы и, снова, просторные кухни.
Трех- и четырехкомнатных квартир – по одной планировке, обе распашные. В этих квартирах уже по два санузла.
Квартиры сдаются с полной отделкой (на сайте, кстати, об отделке не рассказывается совсем). В офисе продаж есть своего рода «шоу-рум», где представлен образец ремонта. Итак, вариантов на выбор два: светлый и темный (по цене они идентичны). Обои под покраску, потолки крашеные. На полу в кухне плитка, в остальных помещениях – ламинат. Отделка санузлов – в спокойных бежево-коричневых тонах, одинаковая во всех квартирах.
Подробнее об отделке можно прочитать в разделе «Шаблон ДДУ».
Как купить
Купить квартиру в ЖК «Семеновский парк» можно следующим образом. Первый этап – бронирование, оно обойдется покупателю в 1% от стоимости квартиры и впоследствии войдет в общую сумму покупки. В случае 100% оплаты бронь дается на неделю, в случае ипотеки – на две недели. Второй этап – подписание ДДУ. В этот момент покупателю придется заплатить 49 тысяч рублей (в эту сумму входит оплата и ДДУ, и оформления собственности на жилье). В декабре, впрочем, платить ничего не придется, т.к. действует предновогодняя скидка. После подписания Договор долевого участия отправляется на регистрацию в рег. палату. Регистрация занимает около 40 дней (в новогодние праздники этот срок может увеличиться до 2 месяцев). После того, как ДДУ будет зарегистрирован, покупатель должен перевести деньги за квартиру на счет Застройщика.
Ипотеку предоставляют следующие банки:
Существует и возможность рассрочки. При первоначальном взносе от 80% рассрочка беспроцентная, на три месяца. При взносе от 30% рассрочка дается на год, с начислением 12% годовых.
Что говорят
Отзывы о ЖК «Семеновский парк» в сети пока очень немногочисленны. В целом, оценка района от пользователей сети схожа с моей: в окрестностях множество офисных зданий, не самая благополучная экология, но среди плюсов проекта – Измайловский парк в шаговой доступности и сравнительно близкая дорога до метро и МЦК.
Для сравнения
|
ЖК |
Площадь, кв. м. |
Цена, млн. руб. |
Материал |
Срок сдачи |
Отделка |
|
Семеновский парк |
56,8 |
8,83 |
Панель |
IV квартал 2019 |
Есть |
|
Level Амурская |
59,2 |
8,50 |
Монолит |
IV квартал 2020 |
Нет |
|
Счастье в Кусково |
57.4 |
10.74 |
Монолит |
61.IV квартал 2019 |
Нет |
|
ИзМайЛовО |
58,7 |
10,65 |
Монолит |
III квартал 2020 |
Нет |
|
Сиреневый парк |
54,1 |
7,33 |
Монолит |
II квартал 2021 |
Есть |
И в заключение
Район, в котором возводится новостройка, сложно назвать однозначно хорошим или плохим. С одной стороны, до метро и МЦК можно дойти минут за двадцать – с другой, рядом несколько оживленных трасс и множество офисных зданий, так что виды из окон, наверное, сложно будет назвать упоительно живописными.
Из плюсов – инфраструктура сложившегося района (особенно если рассматривать окрестности станций метро), Измайловский парк меньше чем в получасе пешком. К числу минусов я отнесла бы слабую торговую инфраструктуру шаговой доступности – впрочем, эту проблему Застройщик планирует решить с помощью коммерческих помещений на первых этажах зданий.
Конечно, далеко не все готовы согласиться жить в панельном доме, однако тут, в отличие от «советских» панелек, мы видим вполне просторные кухни, широкие окна, панорамное остекление лоджий. К тому же цены на квартиры ЖК «Семеновский парк», особенно если учесть, что жилье сдается с готовой отделкой, выглядят вполне гуманными. Так что, если вы планируете купить жилую площадь в пределах МКАД и при этом не потратить слишком много денег – этот комплекс вполне стоит рассмотреть.
Автор: Мария Борискина
Специально для Квартирного контроля










Обсуждение ЖК «Семеновский парк»: светлые метры эконом-класса