В Новой Москве, в паре километров от МКАД, идет строительство нового высотного жилого комплекса, рассчитанного на 4246 квартир. Это ЖК «Румянцево-Парк», расположенный на земельном участке площадью 17,7 га и состоящий из трех корпусов, высотой от 13 до 22 этажей, с подземной автостоянкой, двух детских садов, школы, а также ландшафтного парка.
Предварительная разведка
Официальный сайт ЖК «Румянцево-Парк» (https://room-park.ru/) порадовал меня удобством и структурированностью. Найти здесь можно массу полезной информации, например, рассказ о застройщике, проектные документы, генплан и детальное описание будущего комплекса.
Отдельного упоминания заслуживает вкладка «Ход строительства»: тут есть не только фотографии со стройплощадки, но также веб-камера, панорамы с высоты птичьего полета и видеоролики, снятые с квадрокоптера. В общем, можно получить довольно внятное представление о районе застройки и окрестностях.
Что касается подбора квартир, то тут у покупателя есть несколько возможностей: генплан, выбор по параметрам или по планировке.
Результаты в таблице можно сортировать, выделять и сравнивать понравившиеся. Причем планировку можно увидеть, просто наведя курсор на позицию.
Интересно, что при клике на вариант вы получаете «интерактивную» планировку: можно выбрать разные варианты размещения стен и дверей.
Застройщик – ООО «Лексион Девелопмент» (http://www.lexion-development.ru/). В «портфолио» девелопера есть масштабный проект «Некрасовка-Парк» на территории ЮВАО (3 квартала, 25 домов, 6500 квартир).
Жилой комплекс в цифрах:
Дом № 1: 13-22 этажа, 21 секция, 1792 квартиры. РВЭ – II квартал 2020 года.
Дом № 2: 17-22 этажа, 8 секций, 676 квартир. РВЭ – II квартал 2021.
Дом № 3: 13-22 этажа, 21 секция, 1778 квартир. РВЭ – II квартал 2023.
Всего мест в двухуровневом подземном паркинге: 1748.
Боксов (кладовых) для хранения личных вещей в подземном паркинге: 2012.
Участок с кадастровым номером 50:21:0110504:0000055 (177 677 кв. м) находится в собственности Застройщика.
Разведка боем
Обычно, когда идет речь о проекте «в чистом поле», мы сталкиваемся со следующей ситуацией: к моменту ввода объекта в эксплуатацию и транспортная ситуация, и окрестности обещают сильно измениться. «Румянцево-Парк» возводится на ранее незастроенной территории, поэтому собственная инфраструктура района пока не особо развита. Так что мой отзыв имеет довольно небольшой «люфт» актуальности, ведь буквально через год и дороги, и окружение новостройки могут сильно измениться.
Итак, на дворе январь 2019 года, и мы рассматриваем ЖК, который расположен в районе деревни Румянцево, в 2.5 км от МКАД. Добраться до него удобнее всего по Киевскому шоссе.
Если вы пользуетесь общественным транспортом, то от ст. м. «Румянцево» до комплекса вы можете доехать на автобусе минут за семь. Можно, в принципе, и пешком дойти – тем более что места вокруг вполне цивилизованные.
Выйдя из подземки, мы оказываемся у Бизнес-парка «Румянцево», где находится довольно много торговых точек: тут вам и продуктовые магазины, и промтоварные, продают также и одежду, и мебель, и обои, и текстиль, и отделочные материалы. Еще здесь есть несколько кафе и закусочных. Автомобилисты найдут тут также довольно просторную перехватывающую автостоянку.
Если вы решите дойти до новостройки пешком, то путь ваш займет минут 15-20 – мимо бизнес-центра, через коттеджный поселок и затем мимо торгового центра с мебельными магазинами, кафе и супермаркетом.
На этих фото, кстати, вдали можно увидеть строящийся первый корпус ЖК «Румянцево-Парк».
В ближайшем окружении – поля, перелески, сектор частной застройки и свежепостроенный жилой комплекс, который находится буквально через дорогу.
Из мелкой торговой инфраструктуры – разве что магазинчик на углу. Но, напомню, до ближайшего ТЦ с супермаркетом минут пять неспешным шагом.
Сразу за стройплощадкой – обширные территории Мосводоканала.
Основная социальная инфраструктура находится в соседнем районе Солнцево. Там, например, 4 школы, ближайшая из них в 1.5 км от новостройки. Там же находятся и больше десятка детских садов, а также две поликлиники для взрослых. В шаговой доступности от ЖК «Румянцево-Парк» только один детский сад, и он частный. Впрочем, в концепцию комплекса и садики, и школа входят, так что жителям далеко ходить не придется. К этому вопросу я еще вернусь.
Сама стройка идет вполне активно: краны крутятся, доставляя стройматериалы, на этажах первого корпуса трудятся рабочие, да и сам корпус выглядит готовым примерно на четверть.
Офис продаж расположен рядом со стройплощадкой, к нему есть два пути – для автомобилистов и для пешеходов.
В офисе вы сможете найти внушительных размеров макет проекта, который позволит рассмотреть дома во всех подробностях.
По итогам общения с менеджером я выяснила следующее. В январе 2019 квартиры продавались только в первом корпусе. Этот корпус, высотой от 13 до 22 этажей, будет введен в эксплуатацию во II квартале 2020 года, ключи жильцы получат до 31 декабря. Квартиры сдаются без отделки и межкомнатных перегородок, высота потолков – 2.95 м. Интересно, что окна в комплексе увеличенного размера, высотой 180 см (высота подоконника – чуть выше колена).
В квартирах будут установлены стеклопакеты, радиаторы отопления, качественная металлическая входная дверь (в общем стилистическом решении отделки помещений общего пользования). Сантехника будет разведена до стояка, электрика до щитка. В подарок от Застройщика покупатель получает спецификацию по дизайн-проекту, с пояснениями по планировке помещений, размещению электрики и сантехники, и т.д.
Второй и третий корпуса будут достроены, соответственно, в 2021 и 2023 году. Дома – монолитные, с вентилируемым фасадом, внешняя облицовка – из искусственного камня White Hills.
Первый детский сад откроет свои двери в 2021 году, второй детский сад и школа будут достроены в 2023.
Изменения ожидают и окрестности. Узенькая улица Родниковая, ведущая к комплексу от Киевского шоссе, будет расширена и продолжена до района Солнцево – таким образом, у автомобилистов появится возможность выехать на Боровское шоссе почти напрямую.
От самих домов до ст. м. «Саларьево» будет проложена пешеходная дорожка (сейчас путь до этой станции проходит по малосимпатичной обочине дороги). Таким образом, до метро можно будет дойти минут за 10.
Что предлагают
Таблица 1.
|
Квартира |
Площадь, кв. м |
Цена, млн руб. |
||
|
От |
До |
От |
До |
|
|
Студия |
23,8 |
28,5 |
3,60 |
4,17 |
|
1-к |
33,8 |
42,7 |
4,56 |
5,72 |
|
2-к |
52,5 |
67,6 |
6,31 |
7,70 |
|
3-к |
70,5 |
90,7 |
7,91 |
9,97 |
|
4-к |
97,3 |
102,7 |
11,22 |
11,81 |
Цены на квартиры в корпусе 1 ЖК «Румянцево парк» представлены в табличке выше. Планировочный ряд довольно широкий. Стоит помнить, что сам корпус – нетривиальной формы, к тому же в нем довольно необычные «ступенчатые» фасады.
Из-за этого многие комнаты или лоджии получили по «дополнительному» углу.
Итак, студии:
Можно отметить, что практически в любой студии можно «выделить» кухню без потери освещенности: в помещении два окна.
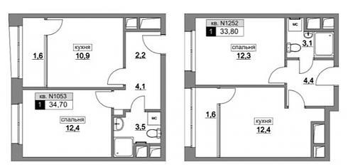
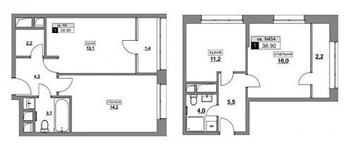
Однокомнатные квартиры не могут похвастаться большими площадями, максимум здесь – 42,7 квадрата. Но в наличии довольно просторные кухни.
Есть также довольно нестандартные угловые однушки, с двумя окнами в комнате.
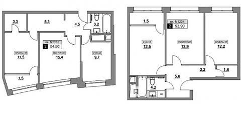
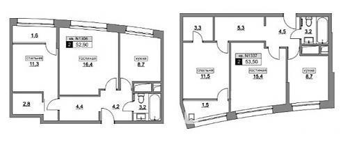
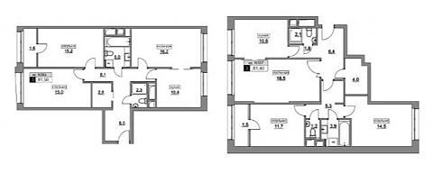
Выбор двухкомнатных тоже вполне приличный, есть как линейные, так и «распашные» варианты.
Есть также интересные варианты с очень просторной гостиной с двумя окнами, одно из которых – угловое. В такой квартире, наверное, будет очень светло.
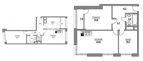
Вообще же монолитное строительство и изгибы дома позволяют предложить самые необычные варианты планировок. Есть, например, квартира с «проходной» кухней. Также здесь можно заметить и дополнительный санузел.
Есть и «стандартные» трехкомнатные распашной планировки, во всех есть дополнительные санузлы.
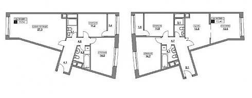
Четырехкомнатные – угловые, выходят на две или даже три стороны света, с двумя или даже тремя санузлами. Комнаты и кухня тут, кстати, очень неплохих размеров.
Число квартир в секции – от 4 до 7, в каждом подъезде 2 либо 3 современных лифта фирмы OTIS.
Машиноместа на -1 этаже предлагаются по цене от 900 тыс. руб., на -2 этаже – от 800 тыс. руб. Кладовые помещения площадью до 3 кв. м будут стоить 60 тысяч за квадрат, помещения большей площади – 50 тыс. рублей за метр.
Сам Застройщик позиционирует жилой комплекс как проект бизнес-класса. Признаться, у меня, как у потенциального покупателя, возникли вопросы и о коммунальных платежах: не хотелось бы слишком переплачивать за класс жилья. В офисе продаж заверили, что коммунальные платежи будут в районе 50 рублей за квадрат площади, не считая расходов на воду, электричество и отопление. После ведения корпусов в эксплуатацию обслуживанием комплекса, скорее всего, займется управляющая компания Застройщика.
Как купить
Первоначальный этап покупки квартиры в ЖК – бронирование, в январе оно бесплатное на три дня. Затем приходит черед подписания Договора Долевого участия – в январе это также бесплатно. В течение 3 дней после подписания ДДУ покупатель должен положить деньги за квартиру на так называемый номинальный счет в Сбербанке. После того как Договор будет зарегистрирован в рег. палате (обычно это занимает 3-4 недели), деньги с этого счета будут переведены на счет Застройщика.
Существует также возможность рассрочки. При первоначальном взносе от 50% рассрочка предоставляется на срок до полугода, без процентов. Но при этом покупатель лишается скидки (в январе она составляет 4% от стоимости квартиры и дается при ипотеке или 100% оплате).
Ипотека предоставляется целым рядом банков:
В офисе Застройщика, кстати, работают менеджеры, которые готовы помочь с оформлением ипотеки.
Что говорят
В сети нашелся «официальный форум» будущих жителей ЖК «Румянцево-Парк», но отзывов там пока кот наплакал. Со временем, вероятно, общение станет более интенсивным. На других площадках также отзывов не особенно много, и составить какое-либо внятное представление о районе на их основе сложно, настолько они малоинформативны. Однако интересно, что в некоторых обсуждениях упоминается закрытый полигон ТБО в Саларьево, который, вроде бы, находится недалеко от новостройки. Смотрим карту:
До ближайшего из полигонов – около 2 км. Полигон закрыт с 2007 года, с тех пор ведутся обсуждения о повторной рекультивации территории и открытии на этом участке парка. Влияет ли наличие закрытого полигона ТБО на экологию района и здоровье жителей – решать, конечно, не мне.
Для сравнения
|
ЖК |
Площадь, кв. м |
Цена, млн руб. |
Материал |
Срок сдачи |
Отделка |
|
Румянцево-Парк |
53,5 |
6,47 |
Монолит |
II квартал 2020 |
Нет |
|
Саларьево Парк |
51,2 |
6,59 |
Панель |
II квартал 2020 |
Есть |
|
Кленовые Аллеи |
60,9 |
5,59 |
Монолит |
IV квартал 2020 |
Нет |
|
Филатов луг |
56,3 |
6,94 |
Монолит |
II квартал 2020 |
Нет |
И в заключение
Повторюсь, сам Застройщик позиционирует ЖК «Румянцево-Парк» как жилой комплекс бизнес-класса. В пользу этого говорит отделка фасадов и входных групп, нестандартные планировки, «дизайнерские» дворы в концепции «двор без машин», парковочные места и кладовые на подземных этажах, а также ландшафтный парк возле новостройки.
В каждой секции совсем немного квартир и достаточно лифтов, так что даже в утренние часы ждать лифта подолгу не придется. Потолки в квартирах высотой 2.95 м, окна высотой 1.80 м. А вот площади некоторых квартир, на мой взгляд, для бизнес-класса маловаты. Студии и однокомнатные – довольно небольшие, часть двух- и трехкомнатных тоже можно отнести скорее к комфорт-классу.
Сам по себе проект показался мне довольно привлекательным. Судите сами: можно дойти пешком до метро, рядом нет вредных производств, зато есть Ульяновский и Тропаревский лесопарки – буквально в километре. С транспортной доступностью уже сейчас дело обстоит довольно неплохо, до ближайшей станции подземки можно доехать минут за пять. После расширения Родниковой улицы и прокладки пешеходной дорожки до ст. м. «Саларьево» ситуация станет еще лучше. Отдельный плюс – два довольно крупных ТЦ в шаговой доступности, так что с закупкой продуктов, одежды или, скажем, отделочных материалов и мебели проблем возникнуть не должно. В торговом центре Family Room, до которого всего пять минут пешком, есть и кинотеатр, и несколько закусочных. В общем, с хлебом и зрелищами у жителей ЖК все будет вполне неплохо.
К числу минусов я отнесла бы, разве что, тот факт, что комплекс строится практически в «чистом поле», и до ближайшей поликлиники придется добираться на автобусе или автомобиле. Но детские сады и школа на территории новостройки будут очень кстати. Не станем забывать и про коммерческие помещения на первых этажах – там неизбежно появятся продуктовые магазины, салоны красоты и аптеки.
Ну и последний немаловажный факт – стоимость жилья, сравнимая с ценами ближайшего Подмосковья. В целом, если вы хотите приобрести не слишком дорогую квартиру в Новой Москве недалеко от метро – этот проект определенно стоит иметь в виду.
Автор: Мария Борискина
Специально для Квартирного контроля

Обсуждение ЖК «Румянцево-Парк»: квартиры в Новой Москве по подмосковным ценам