Слово «профит» можно трактовать как «выгода, прибыль, барыш». Наверное, маркетологи, разработавшие стратегию продаж нового жилого комплекса «Профит», рассчитывали привлечь внимание потенциальных покупателей именно ожиданием выгоды и прибыли от вложения в столичную недвижимость. Ведь новостройка растет не где-то в туманной дали, а в Нижегородском районе Юго-Восточного административного округа Москвы, в полукилометре от Третьего транспортного кольца.
Как проехать
На личном автомобиле доехать от центра столицы до улицы Газгольдерной, владение 8 (именно там расположен ЖК) можно за 20 - 25 минут (пробки в расчет не берем!). Расстояние всего 11 километров, для Москвы это просто рядом.
Удобно добираться до новостройки и на общественном транспорте: станция метро «Нижегородская» расположена в 11 минутах ходьбы.
Точнее, две станции: одна на Московском центральном кольце (№ 14), а вторая на Некрасовской линии метро (№ 15). В 2022 году здесь откроется крупнейший в Европе транспортно-пересадочный узел «Рязанская», который объединит МЦД, МЦК, метро и Московскую железную дорогу.
И огромное количество автобусных маршрутов на Рязанском шоссе в шаговой доступности от ЖК.
Что строят
На небольшом земельном участке площадью 2,21 гектара строят два монолитных корпуса переменной этажности, от 22 до 31 этажа. Класс новостройки «комфорт», здания четырехсекционные с количеством квартир от 8 до 11 на одном этаже.
Фасады навесные вентилируемые. Сквозные входные группы авторским дизайном, витражным остеклением и потолками 3,5 метра создадут уют и комфорт для жителей дома. Здесь и комнаты консьержей, и колясочные, и велосипедные и даже помещения для мытья лап домашних животных. В каждой секции установят по три панорамных лифта со светопрозрачными шахтами (два пассажирских и один грузопассажирский).
В благоустроенном общем дворе, организованном по принципу «двор без машин» устроят площадки для игр, спорта и отдыха с декоративной подсветкой, общедоступным Wi-Fi и USB-станциями зарядки для мобильных устройств. Двор будет полностью закрытым с доступом по электронному ключу и с видеонаблюдением в режиме 24/7.
В стилобатной части запроектированы парковка на 543 машиноместа и 321 помещение для хранения личных вещей. Парковочные места площадью от 13,25 до 26,5 кв.м., их стоимость от 1 325 000 до 2 120 000 рублей. Кладовые площадью от 3,0 до 6,1 кв.м., стоимостью от 300 000 рублей. В стилобате, куда можно спуститься на лифте, можно будет помыть машину и зарядить аккумулятор электромобиля.
Первые этажи с высотой потолков от 3,5 до 3,95 метра предназначены для коммерческого использования. В проект изначально включены помещения для фитнес-клуба, продовольственного магазина и супермаркета, а также офисные помещения площадью от 58 до 200 кв.м. В некоторых квартирах запроектированы лоджии.
Квартиры продаются как с отделкой, так и без нее. Корпус № 1 - без отделки, корпус № 2 - с отделкой.
Отделка в квартирах выполняется по специальным дизайн-проектам в двух стилях: классическом и современном. При этом используются только качественные материалы и комплектующие. Металлические входные двери, увеличенные по площади окна, в оконных проемах двухкамерные стеклопакеты, на полу ламинат высокого класса износостойкости. В санузлах установлена качественная сантехника, пол и стены до потолка выложены керамогранитной плиткой.
Квартиры без отделки сдаются в свободной планировке, без внутренних перегородок.
Некоторые технические данные по корпусу №1 приведены в таблице ниже.
Таблица 1.
|
№№ корп. |
Кол-во этажей |
Общая площ. застр. (кв. м.) |
Кол.секц.
|
Общее кол-во квартир/ машиномест/кладовых/ |
Дата выдачи разр. на стр-во |
Окончание срока действия разр. на стр-во |
Предполагаемая дата введения в эксплуатац. |
|
1 |
22-31+1 подз |
2229 |
4 |
1066/- |
23.09.2020 г. |
23.09.2025 г. |
2 квартал 2023 г. |
|
2 |
22-31+1 подз |
2359 |
4 |
1104/543/321 |
23.09.2020 г. |
23.09.2025 г. |
2 квартал 2023 г. |
В настоящее время на объекте ведутся работы по устройству фундамента и заливке стилобатной части корпусов.
Кто строит
Строительство на земельном участке с кадастровым номером 77:04:0002003:2594 ведет ООО «Специализированный застройщик «Гранель-Град», созданное в феврале 2020 года. Земельный участок принадлежит застройщику на праве аренды. Ранее это была территория Карачаровского механического завода, специализирующегося на производстве лифтов.
Как отмечено в проектной декларации, за три года, предшествующих публикации документа, компания не вела никакого жилищного строительства.
Учредитель компании-застройщика ООО «Специализированный застройщик «Гранель-Мытищи-ДРЗТ». Обе компании входят с состав группы компаний «Гранель» - крупнейшей системообразующей девелоперской структуры, работающей на строительном рынке России с 1992 года. Компания входит в ТОП-10 рейтинга Forbes «Самые надежные застройщики РФ» и по объему текущего строительства занимает 3 место в Моcковской области. В 2020 году отмечена премиями Urban Awards и RREF AWARDS.
Среди реализованных проектов ГК «Гранель» есть такие:
• ЖК «Новая Алексеевская роща»,
• ЖК «Квартал Лукино»,
• ЖК «Лесной городок»,
• ЖК «Новотроицкий»,
• ЖК «Алексеевская роща»,
• ЖК «Валентиновка Парк».
Еще 13 проектов находятся в стадии реализации.
Компания «Гранель» не только сама безукоризненно выполняет взятые на себя обязательства, но и достраивает жилые комплексы, брошенные нерадивыми коллегами. В частности, по договоренности с местными властями были достроены жилые комплексы «Квартал Лукино», «Малина», «Квартал Европа» и другие.
Генеральный подрядчик ООО «СтройКонсалтГрупп», зарегистрированное в августе 2020 года.
Сайт
Сайт новостройки https://www.granelle.ru/objects/profit/ дает достаточно полное представление об объекте.
Встроен удобный механизм выбора квартир с планировками и актуальными ценами, с помощью которого можно прямо с сайта забронировать квартиру.
Генплан, инфраструктура, ход строительства и способы оплаты - все на своих местах.
Работает вэб-камера, в наличии фотоотчет и подборка документации из трех файлов: проектная декларация, разрешение на строительство и заключение о соответствии.
Есть еще один сайт новостройки https://жк-профит.москва/, но он менее информативен. Полезную информацию о ЖК можно получить также в результате посещения персональной странички новостройки в социальной сети ВКонтакте https://vk.com/gk_profit .
Офис продаж
Офис продаж пока размещается в трехэтажном здании, вероятно доставшемся застройщику по наследству от лифтостроительного завода. Строительная площадка развернулась прямо у стен офиса, так что менеджер осуществляет показ объекта из окна второго этажа.
Обслуживание клиентов профессиональное, качественное и компетентное. Есть вопросы - есть ответы. А еще бывает очередь из желающих пообщаться со специалистом по продажам.
На втором этаже, где, собственно, и проходят беседы с клиентами, установлен макет жилого комплекса.
Сколько стоит
Таблица 2.
|
Тип квартиры |
Площадь (кв. м) |
Стоимость квартиры (руб.) |
Стоимость одного квадратного метра (руб.) |
|
Студия |
23,8 - 38,2 |
5 214 077 - 10 458 634 |
219 079-273 786 |
|
Однокомнатная |
35,4 - 48,7 |
8 517 567 - 11 140 285 |
240 609-228 753 |
|
Двухкомнатная |
37,4 - 63,2 |
9 474 027 - 15 427 420 |
253 316-244 104 |
|
Трехкомнатная |
59,5 - 70,5 |
12 692 935 - 15 477 571 |
213 327-219 540 |
Таким образом, квадратный метр в среднем стоит 236 564 рубля.
Сравним цены на двухкомнатные квартиры с отделкой и без в строящихся домах на востоке и юго-востоке Москвы.
Таблица 3.
|
Название ЖК |
Ближайшая станция метро |
Площадь квартир (кв. м.) |
Стоимость квартир (руб.) |
Стоимость одного кв.м. (руб.) |
Отделка |
Срок сдачи |
|
«Нижегородская» |
35,79 |
9 983 780 |
278 954 |
есть |
3 квартал 2023 г. |
|
|
«Талисман на Рокосовского » |
«Бульвар Рокосовского» |
39,46 |
10 102 549 |
256 020 |
нет |
4 квартал 2023 г. |
|
«Профит» |
«Нижегородская» |
63,2 |
15 427 420 |
244 105 |
есть |
2 квартал 2023 г. |
|
«Стахановская» |
56,0 |
11 618 667 |
207 476 |
нет |
4 квартал 2023 г. |
|
|
«Новохохловская» |
59,17 |
11 768 913 |
198 900 |
есть |
1 квартал 2023 г. |
|
|
«Окская» |
69,3 |
13 776 840 |
198 800 |
есть |
1 квартал 2023 г. |
|
|
«Текстильщики» |
56,2 |
10 925 460 |
194 403 |
есть |
4 квартал 2022 г. |
|
|
«Текстильщики» |
52,2 |
9 993 500 |
191 446 |
есть |
1 квартал 2023 г. |
В данном рейтинге «Профит» находится на верхних строчках.
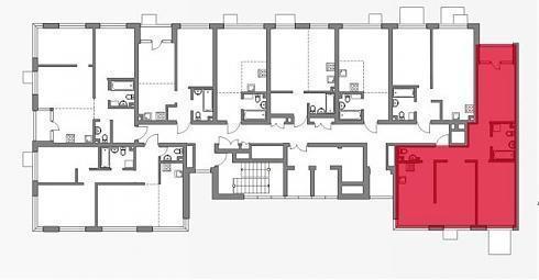
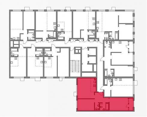
Планировки
В продаже квартиры-студии, одно-, двух- и трехкомнатные квартиры площадью от 22 до 75 кв.м. Значительное количество квартир спроектировано в формате «евро».
План 2 этажа секции 2
План 2 этажа секции 4
План 8 этажа секции 7
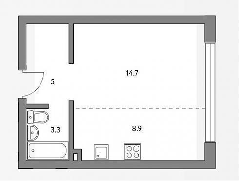
Планировка студии 23,8
Планировка студии 31,9
Планировка студии 38,2
Квартиры студии запроектированы следующим образом: входная зона площадью от 3,6 до 5,0 кв.м. (иногда никак не отделенная от основного помещения), совмещенный санузел площадью от 3,0 до 3,4 кв.м. и универсальное помещение площадью от 17,9 до 29,0 кв.м.
Планировка однокомнатной квартиры 35,4
Планировка однокомнатной квартиры 41,6
Планировка однокомнатной квартиры 48,7
Однокомнатные квартиры спроектированы в классических традициях и имеют отдельное помещение для спальни. Входные зоны площадью от 3,0 до 3,9 кв.м., санузлы совмещенные от 3,3 до 3,6 кв.м. кухни от 13,6 до 25,4 кв.м., спальни от 12,2 до 13,7 кв.м. Есть квартиры с увеличенным количеством окон (три) и разделенной на зоны с помощью внутренней перегородки спальней. Во всех вариантах планировки предусмотрена лоджия от 2,6 до 3,0 кв.м.
Планировка двухкомнатной квартиры 42,0
Планировка двухкомнатной квартиры 56,9
Планировка двухкомнатной квартиры 63,2
Планировка двухкомнатных квартир балансирует между классическим и евро форматом. Входная зона иногда довольно просторная, площадью до 13,5 кв.м., санузлов может быть два площадью от 2,7 до 6,0 кв.м. Кухни площадью от 11,5 до 13,4 кв.м., а в квартирах евроформата – до 19,9 кв.м. Спальни площадью от 12,2 до 15,9 кв.м., лоджии 2,6 кв.м.. иногда встречается помещение, пригодное для устройства гардеробной площадью около 5,0 кв.м.
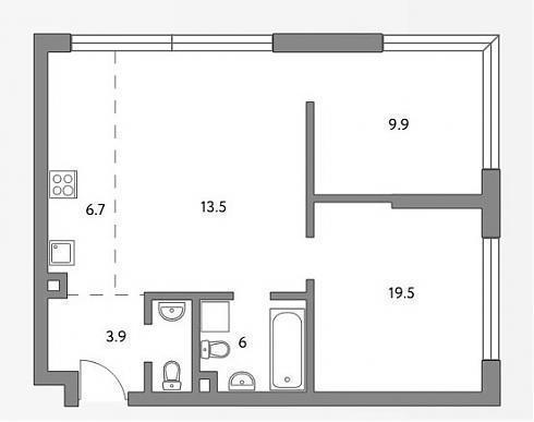
Планировка трехкомнатной квартиры 56,9
Планировка трехкомнатной квартиры 63,4
Планировка трехкомнатной квартиры 70,5
Трехкомнатные квартиры встречаются как классического, так и евро формата. Входные зоны площадью от 3,9 до 8,7 кв.м., два санузла площадью от 2.7 до 8,0 кв.м., лоджии от 2,8 до 3,4 кв.м. Кухни либо автономные площадью 12,9 кв.м., либо универсальные кухни-гостиные площадью от 18,2 до 20,2 кв.м. Встречаются квартиры с увеличенной площадью остекления и с угловым расположением окон.
Как купить
Продажа квартир ведется в соответствии с федеральным законом № 214, средства дольщиков аккумулируются на счетах «эскроу» в банке Дом.РФ. Если квартира выбрана, можно получить от застройщика услугу бронирования. Она не бесплатна, стоит 10 000 рублей, причем при отказе от сделки эти деньги не возвращаются. Если планируется оплата в размере 100 %, бронь дается на 3 дня, а при использовании ипотечного кредита - 10 дней. Необходимо также предусмотреть расходы в размере 30 тысяч рублей на регистрацию договора долевого участия в госорганах.
Финансовыми партнерами группы компаний «Гранель» выступают более 20 крупнейших банков России. Например, в УралСиб Банке можно при определенных условиях получить кредит под 0,01% годовых. До 1 июля 2021 года можно получить кредит на условиях господдержки по ставке от 5,9% годовых на весь срок кредитования.
Есть и акционные мероприятия - покупая определенные квартиры, собственники почти даром, за 10 000 рублей, получают кладовую в подземном этаже. Есть шанс получить персональную скидку до 13%, правда пока только в мае.
Инфраструктура
С инфраструктурой в новостройке, расположенной в центре обжитого района, все в полном порядке.
Небольшие магазины и кафе в соседнем жилом комплексе «Среда», крупные сетевые магазины в торгово-развлекательном центре «Город», торговый центр «Леруа Мерлен», школы, детские сады и медицинские учреждения - все в шаговой доступности.
В шаговой доступности станции метро и железной дороги, а также православная Троицкая церковь.
А вот собственных образовательных учреждений в ЖК не будет, поскольку это типичная точечная застройка, не обремененная социальными обязательствами перед муниципалитетом. И еще нет парков, а они бы не помешали жителям плотно застроенного района.
О чрезмерной плотности застройки упоминают в своих отзывах в Интернете пользователи глобальной сети.
Резюме
К положительным сторонам новостройки отнесем расположение в обжитом районе и в непосредственной близости от метро. Можно упомянуть также про надежного застройщика и интересное архитектурное решение.
А отрицательными сторонами будем считать общую перенаселенность района (через дорогу строится еще один «точечный» ЖК, «Аквилон Бисайд») и отсутствие зеленой зоны в шаговой доступности. Да, есть Кусковский лесопарк, но до него около 10 километров.
То есть, новый ЖК расположен в типичной промышленной зоне, «ржавом поясе Москвы», редевелопмент которой может растянуться на десятилетия. Поэтому инвестиционную привлекательность проекта вряд ли можно считать высокой.
В то же время, по версии компании «Метриум», в 1 квартале 2021 года ЖК «Профит» занимал третье место в рейтинге самых продаваемых новостроек Москвы.
Вот и думайте, какую выгоду вы получите вместе с приобретением квартиры в данном ЖК – большую или не очень.
Автор: Андрей Петров
Специально для Квартирного контроля

Обсуждение ЖК «Профит»: выгода столичного масштаба