Возведение ЖК «Полет» завершается в подмосковном Ногинске. На территории комплекса уже функционирует детский сад, введены в эксплуатацию шесть многосекционных монолитно-кирпичных жилых корпусов, еще три находятся на разных этапах возведения. Окончание всех работ (включая постройку двух наземных паркингов) запланировано на 2021 год.
Предварительная разведка
Официальный сайт ЖК «Полет» довольно удобный и, несмотря на свою «компактность», вполне информативный. Итак, тут можно найти описание Комплекса и окрестностей, проектную документацию по всем корпусам, подробный рассказ о способах добраться до Новостройки. На сайте есть вполне детальное описание Ногинского района и самого города. К услугам визуалов – фотографии со стройплощадки и даже ролик «ЖК «Полет» с высоты птичьего полета» (https://youtu.be/LT_msj8FH4Q).
Всего корпусов в Комплексе будет девять, первые шесть из них уже заселены (в них, впрочем, остались в продаже единичные квартиры), корпус 10 активно строится и продается, а корпуса 8 и 9 для покупателей пока недоступны (работы на площадке лишь недавно вышли из стадии «котлована»).
В качестве инструмента подбора квартир выступают генплан и «шахматка».
При клике на квартиру можно сразу увидеть и варианты ипотечных платежей в разных банках.
Есть на сайте, кстати, и отдельный ипотечный калькулятор, но он, увы, не работает.
Кроме отдельной планировки, можно увидеть поэтажный план всего корпуса.
А вот сравнительную таблицу цен и площадей покупателю придется составлять самостоятельно.
Застройщик – ООО «Инвестиционная строительная компания «Жилстрой Миллениум»», работает на рынке недвижимости с 2012 года. ЖК «Полет» пока что единственный крупный проект Застройщика – и, судя по всему, «полет идет нормально»: дома сдаются в срок и даже с некоторым опережением графика.
Немного цифр:
Корпус 10 – 4 секции, 10 этажей, 184 квартиры. Из них студий – 60, однокомнатных – 39, двухкомнатных – 66, трехкомнатных – 19. Квартир на этаже – от 4 до 5. РВЭ – IV квартал 2019 года.
Корпус 9 – 4 секции, 15-17 этажей, 362 квартиры. Из них студий – 104, однокомнатных – 131, двухкомнатных – 96, трехкомнатных – 31. Квартир на этаже – от 5 до 6. РВЭ (согласно Проектной декларации) – III квартал 2019 года.
Корпус 8 – 6 секций, 10-12-15 этажей, 346 квартир. Из них студий – 121, однокомнатных – 71, двухкомнатных – 131, трехкомнатных – 23. Квартир на этаже – от 4 до 5. РВЭ (согласно Проектной декларации) – III квартал 2019 года.
Участок с кадастровым номером 50:16:0302010:116 площадью 100 000 кв. м. принадлежит Застройщику на правах аренды.
Разведка боем
Есть несколько вариантов добраться до ЖК «Полет». Если вы перемещаетесь на авто, удобнее всего воспользоваться Горьковским шоссе. От МКАД до Новостройки около 40 километров (при отсутствии пробок это расстояние можно преодолеть минут за сорок пять – но, увы, пробки на Горьковке далеко не редкость).
Можно воспользоваться электричкой – от Курского вокзала до Ногинска вы доедете за 176 рублей и полтора часа.
От ст. м. «Партизанская» ходят автобусы и маршрутки до автовокзала Ногинска (автовокзал находится прямо возле железнодорожной станции). Стоимость проезда – от 107 до 128 рублей, время в пути зависит от загруженности дорог, в целом имеет смысл рассчитывать на полтора-два часа.
От автовокзала или станции до Новостройки можно пройти пешком через лес чуть менее километра, либо проехать три остановки на маршрутном такси.
Прежде чем перейти собственно к описанию ЖК «Полет», предлагаю ознакомиться с окрестностями. Возле железнодорожной станции – фонтан, большое количество магазинчиков и закусочных, а также два современных торговых центра.
Практически рядом с автовокзалом – уютный сквер.
А если пройти метров двести на север, можно попасть на Площадь Победы и Фонтанную площадь, просторные и очень фотогеничные.
Их окружают несколько торговых центров, кафе и пара десятков магазинов. Чуть дальше на север – еще один сквер и набережная р. Клязьма.
ЖК «Полет» находится на другой, южной стороне от железнодорожной станции. Дома стоят «особнячком», отдельно от основной застройки Ногинска. Большую часть непосредственного окружения Комплекса составляют лесные массивы и частный сектор. Единственный «минус», который может смутить будущих жильцов – это комбинат ЖБИ, который находится примерно в полукилометре от Новостройки. Однако, на мой взгляд, площадь окрестных лесов и частных угодий в разы больше, чем территория комбината.
Если идти от станции пешком, то ваш путь будет пролегать сперва мимо симпатичных домиков и стадиона «Автомобилист», а затем через густую лесопосадку.
Впрочем, через лес проложена узенькая асфальтированная (а в темное время суток – освещенная) тропинка, так что заблудиться сложно. Между станцией и Новостройкой постоянно «курсируют» местные жители и прогуливаются мамы с колясками: тропа хоть и неширокая, но довольно оживленная.
Сам жилой комплекс построен примерно на 70 процентов: повторюсь, уже введены в эксплуатацию шесть жилых корпусов, седьмой – примерно на «экваторе» строительства.
На первых этажах успели открыться торговые предприятия: «Пятерочка», «Красное и Белое», мини-пекарня, несколько маленьких продуктовых, парочка промтоварных, зоомагазин и салон красоты. Есть и детский развивающий клуб.
Впрочем, коммерческих площадей на первых этажах еще достаточно: скорее всего, инфраструктура района будет прирастать вместе с новыми домами и новыми жителями.
Дворы – вполне просторные и довольно ухоженные. Пока не построены наземные семиэтажные паркинги, жильцы домов оставляют автомобили во дворах – мест пока что, вроде бы, всем хватает.
В каждом дворе – детские игровые комплексы с горками, домиками, качелями и современным резиновым покрытием.
В начале лета принял первых воспитанников детский сад на 180 мест.
Как раз рядом с садиком и строится новый корпус 10.
Что касается социальной инфраструктуры, то основные объекты расположены с северной стороны от железнодорожной ветки. Там и масса магазинов, и поликлиники (взрослая и детская), и школы. Исключение – школа №12, которая находится примерно в полукилометре от Новостройки (кстати, от этой школы мимо ЖК «Полет» курсирует собственный школьный автобус). А саму школу Застройщик предполагает реконструировать (сроки, впрочем, пока не названы).
Но вернемся к нашей Новостройке. Офис продаж располагается на первом этаже дома №2 по улице Дмитрия Михайлова. Работает офис с 10 до 19.
Здесь вам выдадут буклет о строящемся корпусе 10, а также листовки с описанием выбранных вами вариантов квартир.
Также в офисе можно рассмотреть подробный макет Комплекса.
Визит в офис и на стройплощадку внес некоторые корректировки в собранную мною предварительную информацию. Впрочем, изменения касаются только 8 и 9 корпусов – тех, которые еще пока не поступили в продажу. В Проектных декларациях этих корпусов срок ввода в эксплуатацию – III квартал 2019 года, а на информационных табличках возле стройплощадки – уже I квартал 2021 года.
В самом офисе мне также подтвердили: 8 и 9 корпуса достроят несколько позже, чем это было заявлено в ПД. Впрочем, пока продажи этих домов не стартовали, у Застройщика есть время внести изменения в проектные декларации.
Что предлагают
Квартиры в 10 корпусе ЖК «Полет» продаются без отделки и стяжки. Будут возведены межкомнатные перегородки, разведена сантехника до стояка, электрика до щитка, установлены радиаторы и стеклопакеты. Входная дверь – деревянная, под замену. Высота потолков – 2.8 м.
При желании будущие жильцы смогут заказать у Застройщика черновую отделку (стяжка, выравнивание стен, разводка электрики), это обойдется примерно в 5 тысяч рублей за кв. м. Можно также заказать и чистовую отделку (будут сделаны все внутренние работы, кроме замены входной двери) – это будет стоить уже в 11 тысяч рублей за квадрат. Отделочные работы начнутся после сдачи дома в эксплуатацию и продлятся от 1 до 2 месяцев. Принять решение о покупке отделки «от Застройщика» придется в момент подписания ДДУ.
Варианты ремонта, кстати, можно посмотреть – менеджер покажет вам квартиры в одном из уже готовых домов.
На сайте, кстати, отделке посвящена целая вкладка.
Однако, как можно отказаться от возможности посмотреть на все это собственными глазами?
В отделку входит ламинат, межкомнатные двери, обои под покраску, облицовка плиткой пола и стен в санузлах, а также сантехника, выводы под стиральную машину и даже дополнительные электрические полотенцесушители.
Потолки во всех помещениях, кроме ванных комнат – натяжные (в санузлах – крашеные).
Также будет выполнен ремонт на лоджии.
Интересно, что часть лоджий – с кирпичными ограждениями, а часть (на высоких этажах) – со стеклянными. На сайте это никак не отображено, так что, если вы хотите «панорамное» остекление лоджии – попросите менеджера подобрать вам именно такую квартиру.
Квартир, напомню, от 4 до 5 на площадке, в каждом подъезде два лифта: пассажирский на 400 кг и грузовой на 630 кг. Также на первых этажах предусмотрены помещения для консьержки.
Кстати, корпус 10 будет отличаться от «соседей» тем, что его территория будет огорожена, а на въезде планируется установить шлагбаум.
Цены на квартиры в 10 корпусе ЖК «Полет» в августе 2018 года:
Таблица 1.
|
Кол-во комнат |
Площадь, кв. м |
Цена, млн руб. |
||
|
От |
До |
От |
До |
|
|
Студия |
28,3 |
33,6 |
1,556 |
1,848 |
|
1-к |
41,1 |
44 |
2,260 |
2,442 |
|
2-к |
54,7 |
63,3 |
3,008 |
3,418 |
|
3-к |
73,1 |
97 |
4,093 |
5,432
|
Планировки
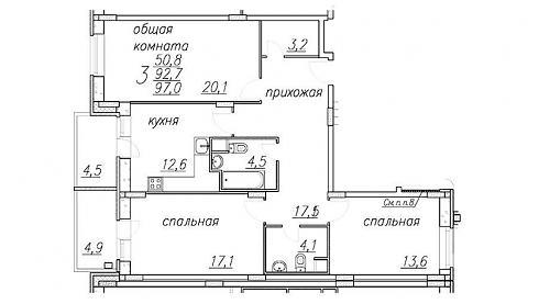
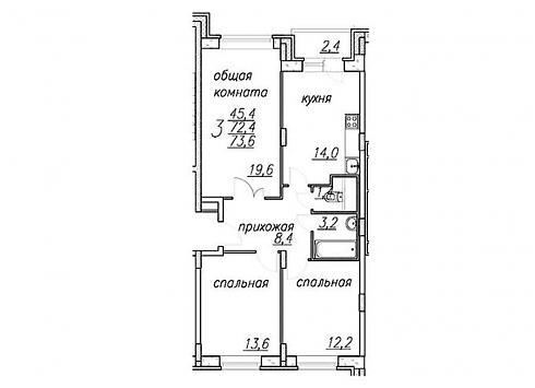
Совсем уж микроскопических квартир в ЖК «Полет» вы не найдете. Даже студии начинаются от вполне приличных 28.3 квадратов.
Однокомнатных выбор не самый большой.
Зато в некоторых однушках предусмотрены кладовки (или гардеробные).
Площади двухкомнатных не очень большие, но наряду с привычными планировками есть и необычные.
Например, угловые, с полукруглым залом и двумя лоджиями.
Или вот, например, вариация: пять углов в гостиной, но лоджия только одна.
Трехкомнатные – от умеренных 73 метров до просторнейших 97 (правда, квартира такого впечатляющего метража всего одна, и та на первом этаже).
Большие трехкомнатные могут «похвастаться» также раздельными санузлами.
Как купить
Приобрести квартиру в ЖК «Полет» можно следующим образом:
В общем случае дополнительные расходы покупателя составят 25 тысяч рублей. Первый этап – устное бесплатное бронирование на срок до пяти дней, на этот период цена на квартиру фиксируется. По истечении пяти дней покупатель должен подъехать в офис продаж для заключения Договора Долевого участия, после чего перевести на счет Застройщика те самые 25 тысяч рублей. Регистрация ДДУ в рег. палате занимает 12-14 дней, а после регистрации покупателю в течение десяти дней следует перевести на счет Застройщика всю сумму за квартиру.
Ипотека предоставляется целым рядом банков:
Существует также возможность рассрочки. Рассрочка беспроцентная, дается при первоначальном взносе от 50% на весь срок до сдачи дома госкомиссии, причем возможны различные варианты погашения: как ежемесячные, так, например, в один, два или несколько траншей.
Напомню, что к моменту подписания ДДУ покупателям придется определиться, будут ли они заказывать отделку «от застройщика».
Что говорят
Как ни странно, какого-то особенно полезного обсуждения на форумах, посвященных ЖК «Полет», мне найти не удалось. На сайтах-агрегаторах можно найти десяток-другой отзывов, но в целом они ничем не дополнили бы данную статью. Часть потенциальных покупателей хвалят район и строящиеся дома, часть – сетуют на удаленность от Москвы и комбинат ЖБИ поблизости. Но в целом, выборка слишком мала, чтобы имело смысл ориентироваться на мнение интернет-общественности.
Для сравнения
Новостроек в ближайших окрестностях ЖК «Полет» – раз, два и обчелся. Поэтому в таблице для сравнения оказались объекты, которые объединяет, разве что, размещение вдоль Горьковского шоссе.
Таблица 2.
|
ЖК |
Площадь, кв. м. |
Цена, млн. руб. |
Материал |
Срок сдачи |
Отделка |
|
Полет |
63,1 |
3,4 |
Монолит |
IV квартал 2019 |
Нет |
|
Новое Бисерово-2 |
50.5 |
2.98 |
Монолит |
III квартал 2020 |
Нет |
|
Высокий Берег |
59,4 |
3,3 |
Монолит |
III квартал 2018 |
Нет |
|
Купавна 2018 |
63 |
3,95 |
Монолит |
I квартал 2019 |
Нет |
И в заключение
ЖК «Полет» мне понравился: надежные монолитно-кирпичные дома, уверенный Застройщик, современные уютные дворы с газонами и молодыми деревцами. Из дополнительных плюсов – «собственный» детский сад и, в перспективе, два вместительных наземных паркинга. А самое главное – лесные массивы вокруг.
Из минусов – разве что, пока недостаточная собственная инфраструктура. Каждодневные потребности местные магазины, конечно, удовлетворят, но вот за крупными покупками или развлечениями придется идти на другую сторону железной дороги. Путь, впрочем, не особо длинный, всего-то километр (или три остановки на маршрутке).
Что же касается удаленности от Москвы, то, мне кажется, 38 километров от МКАД говорят сами за себя: в пути до столицы придется провести довольно много времени. Но зато и цены на квартиры в этом экологичном и «камерном» микрорайоне позволят обзавестись недвижимостью даже тем, кто не обладает широкими финансовыми возможностями.
Автор: Мария Борискина
Специально для Квартирного контроля

Обсуждение ЖК «Полет»: шесть домов – полет нормальный!