Неподалеку от Щелковского шоссе в городском округе Балашиха идет строительство ЖК «Пехра» – одного из масштабных проектов от ГК «Гранель». Одиннадцать монолитных жилых домов, которые разместятся на территории в 36 га, Девелопер намерен достроить в 2023 году. Также в комплексе будут открыты четыре детских садика, школа и поликлиника.
Предварительная разведка
Разбираем сайт проекта
Официальная страница ЖК «Пехра» располагается на сайте Застройщика – ГК «Гранель» (https://www.granelle.ru/objects/pehra/), и в целом вполне неплохо презентует новостройку. Тут есть описание и генплан комплекса, проектная документация и даже видеоролик, показывающий стройплощадку с высоты птичьего полета.
За ходом строительства можно также понаблюдать и через онлайн-камеру.
В начале августа 2019 года продавалось жилье в корпусах 5, 5.1 и 6. Посмотреть шахматки можно, кликнув на корпус на генплане.
Очень удобно организован подбор квартир по параметрам, главное – не забыть выбрать ЖК «Пехра» в списке объектов. При выборе комнатности сразу показывается диапазон возможных площадей. Правда, иногда скрипт почему-то сбрасывает все запросы, приходится заново выбирать ЖК, количество комнат и другие параметры. Результаты можно сортировать по площади и цене.
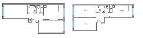
Клик на квартиру открывает планировку в отдельном окне, так что удобно сравнивать разные варианты. Тут же можно посмотреть и поэтажный план.
Застройщик ЖК «Пехра» – ГК «Гранель», работает на рынке недвижимости с 1992 года. За это время в Московском регионе было возведено 1,7 миллиона квадратных метров жилья. Среди реализованных проектов: ЖК «Валентиновка парк», «Лесной городок», «Новотроицкий» и «Квартал Лукино».
«Пехра» в цифрах
На сайте новостройки есть проектная документация по шести корпусам из планируемых одиннадцати.
- Корпус 1: 14-25 этажей, 775 квартир, 29 апартаментов, 7 секций. Получение РВЭ планируется во II квартале 2023 года.
- Корпус 3: 17-25 этажей, 1529 квартир, 17 апартаментов, 11 секций. Получение РВЭ планируется во II квартале 2023 года.
- Корпус 4: 14-16 этажей, 415 квартир, 5 секций. Получение РВЭ планируется во II квартале 2023 года.
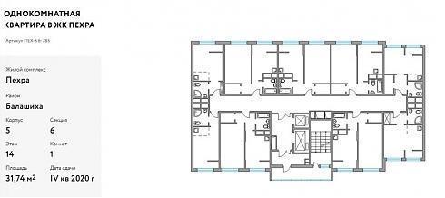
- Корпус 5: 17-25 этажей, 1032 квартиры, 7 секций. Получение РВЭ планируется в IV квартале 2020 года.
- Корпус 5.1: 17 этажей, 3 секции, 398 квартир. Получение РВЭ планируется в IV квартале 2020 года.
- Корпус 6: 16-25 этажей, 5 секций, 540 квартир. Получение РВЭ планируется в IV квартале 2020 года.
Участок с кадастровым номером 50:15:0040602:301 (23458 кв. м.) находится в собственности Застройщика.
Разведка боем
Как добраться
Забегая немного вперед, покажу наглядную памятку о том, как можно доехать до «Пехры», которую мне выдали в офисе продаж.
Комплекс строится рядом со Щелковским шоссе, и автомобилисты могут воспользоваться этой автотрассой, если, конечно, не боятся пробок, которые на этом направлении совсем не редкость. Второй вариант маршрута пролегает через Шоссе Энтузиастов. В зависимости от дорожной ситуации, путь от МКАД может занять как полчаса, так и больше. Вообще же от Кольцевой до ЖК по прямой 7.5 километра.
У тех, кто передвигается общественным транспортом, на выбор есть ряд маршрутов автобусов, следующих от ст. м. «Щелковская» либо от платформы Балашиха Горьковского направления. В первом случае время в пути, опять же, зависит от дорожной обстановки. Во втором – от расписания электричек.
Расписание, кстати, удобным не назовешь: поезда ходят редко, в лучшем случае раз в час, но случаются и перерывы по 2.5 часа. Зато вагоны полупустые (по крайней мере, в дневное время). Интересно было бы узнать: люди мало ездят на электричке, потому что она ходит раз в пятилетку или, наоборот, расписание электричек такое неудобное, потому что ими просто никто не хочет пользоваться?
От платформы Балашиха при желании можно дойти до ЖК и пешком – путь займет минут сорок. Именно так я и решила поступить, чтобы как следует рассмотреть, что же окружает строящийся комплекс.
Знакомство с окрестностями
Сама по себе Балашиха – город донельзя эклектичный, тут можно встретить и довоенные дома, и здания сталинской эпохи, и хрущевки, и высотки восьмидесятых, и новостройки.
Сравнительно недалеко от станции начинается рекреационная зона, набережная реки Пехорка. Сама по себе эта речка довольно живописная, местами широкая, местами узкая, кое-где заросшая кувшинками и камышом.
С восточной стороны вдоль реки протянулся довольно-таки благоустроенный сквер со скамейками, тропинками, игровыми площадками. Это своего рода «место притяжения» всего микрорайона.
Есть даже некоторое подобие пляжа, правда, купаться тут нельзя, только загорать дозволяется.
Если немного отойти от реки Пехорки вглубь района, можно найти массу магазинов, как больших, так и маленьких. Есть даже парочка торговых центров.
Словом, с торговой инфраструктурой в районе все довольно неплохо. Правда, от новостройки до этого покупательского оазиса идти минут пятнадцать пешком. ЖК «Пехра», напомню, находится на западном берегу реки, а вышеперечисленные магазины расположены с восточной стороны от водоема.
Если вернуться к речке, тоже можно найти магазины, но их тут не очень много.
Между обжитым микрорайоном и рекой стоят спортивный комплекс и детский садик.
Отсюда уже можно рассмотреть строящиеся корпуса на другой стороне реки.
Корпуса 5.1 и 6 находятся на завершающих этапах строительства, корпус 5 возведен примерно наполовину.
Над фасадами корпуса 6 вовсю трудятся рабочие.
На сайте объекта представлена очень впечатляющая визуализация: благоустроенный песчаный пляж, расположенный буквально под окнами корпусов. Ну просто курорт рядом с домом!
Летом 2019-го, конечно, никакого благоустроенного пляжа возле стройплощадки не было. ЖК «Пехра» возводится на территории бывшего совхоза, но речка рядом с новостройкой действительно присутствует. Речек, строго говоря, целых две – Малашка и Пехорка, они плавно перетекают одна в другую.
Купаться в них, повторюсь, запрещено, а вот устраивать на берегу пикники вполне можно. Вокруг (пока что) только поля и разнотравье.
Заканчивая рассказ об окружении проекта, упомяну расположенную на севере улицу Трубецкую. До нее от домов по прямой метров сто пятьдесят. Здесь можно найти супермаркет, ветклинику, Богородицкую церковь, а также небольшое Николо-Трубецкое кладбище. Далее на север – частный сектор.
На церковь можно ориентироваться, если вы едете на общественном транспорте от ст. м. Щелковская.
Есть рядом с новостройкой и «элитный детский сад», от него до ЖК метров пятьсот.
Детских садов в окрестностях довольно много, но почти половина из них частные. Также в радиусе километра найдутся четыре школы, пеший путь до любой из них займет минут 20-30. Примерно такое же расстояние и до ближайших поликлиник. Таким образом, собственная инфраструктура ЖК придется как нельзя кстати.
В офисе
Офис продаж расположен на некотором отдалении от новостройки, в микрорайоне Лукино, рядом со Щелковским шоссе. Пешком до него можно дойти минут за пятнадцать. Тут, кстати, тоже можно найти некоторое количество магазинов и пару детских садиков.
Сам офис расположен на первом этаже дома по ул. Дмитриева, 32.
Большого наплыва посетителей не было, так что в очереди к менеджеру сидеть не пришлось. Здесь мне ответили на все возникшие вопросы, выдали генплан, памятку «как доехать», а также подробные поэтажные планы (формата А3) всех трех продаваемых корпусов.
Итак, что мне удалось выяснить по итогам визита в офис продаж? Все дома в комплексе монолитные, с утепленными внешними стенами, отделка так называемый мокрый фасад, то есть штукатурка, окрашенная в разные цвета.
Хотя корпуса 5, 5.1 и 6, согласно ПД, сдаются одновременно, в конце 2020 года, на деле ситуация несколько иная. Жильцам корпусов 5.1 и 6 ключи планируется начать выдавать уже в феврале 2020 года, а покупателям квартир в корпусе 5 – до конца 2020 года. Таким образом, цены на квартиры в 5 корпусе ЖК «Пехра» несколько ниже.
Первые этажи частично будут отданы под коммерческие помещения, под магазины, салоны красоты, аптеки. Предусмотрены на территории ЖК и два надземных паркинга, места в них планируется сдавать в аренду по цене от 3 тысяч рублей в месяц. Первый из паркингов будет четырехэтажным, летом 2019 года как раз завершалось возведение третьего этажа, но точные сроки ввода в эксплуатацию будут известны позднее.
В комплексе планируется открыть четыре садика (один в отдельно стоящем здании, еще три расположатся на первых этажах жилых корпусов), школу и поликлиническое отделение. Также на территории планируется построить физкультурно-оздоровительный клуб и торговый центр. Первый садик обещают сдать вместе с корпусом 5, то есть в конце 2020 года. Школу построят, вероятно, в 2021 году. По поводу остальных объектов инфраструктуры определенных сроков пока нет. Известно лишь, что весь комплекс планируется достроить к концу 2023 года.
Спрашивали – отвечаем
В сети, как водится, нашлась масса как хвалебных, так и негативных отзывов о ЖК «Пехра». На одном из форумов меня заинтересовала реплика, которая описывает благоустроенный пляж возле домов.
Как я уже упоминала выше, благоустроенных пляжей возле стройплощадки не наблюдается, да и сама речка местами изрядно заросла кувшинками. На мой вопрос, планируется ли чистить реку и обустраивать пляжи, менеджер ответила мне, что речка находится в ведении муниципальных властей, они ее время от времени чистят, но по поводу пляжных элементов благоустройства пока информации нет.
Множество отзывов касается, конечно же, транспортной доступности. Щелковское шоссе, знаменитое своими пробками, превращает Балашиху в не самый удобный город (тем удивительнее, что электрички полупустые: выходит, все предпочитают стоять в пробках?).
Вопрос транспортной доступности я тоже обсудила с менеджером отдела продаж, и вот что мне ответили. Во-первых, Застройщик планирует сделать удобную четырехполосную дорогу, ведущую из ЖК на ул. Звездную, что позволит выехать из комплекса без пробок. Начало работ запланировано на 2020 год. Звездная ул. и одноименная автостанция находятся совсем рядом со стройплощадкой (между улицей и домами – территории МОЭСК).
Во-вторых, в планах муниципальных властей есть и строительство дублера Щелковского шоссе, что должно в будущем несколько улучшить дорожную обстановку. По последним данным, дублер планируется построить примерно к 2023 году. Кроме того, уже сейчас можно воспользоваться Шоссе Энтузиастов, которое после недавней реконструкции стало довольно удобным.
Что касается детских образовательных учреждений, то школа и один из детских садов точно будут муниципальными. По поводу остальных садиков информации пока нет
Что предлагают
В общем случае квартиры сдаются без отделки и стяжки, в так называемой свободной планировке, потолки – 2.85 м. В помещении будет выполнено остекление окон и лоджий, гидроизоляция мокрых зон, разведена электрика до щитка, сантехника – до стояка. Также будет установлена неплохая металлическая входная дверь.
Есть также возможность купить жилье с отделкой – это двух- и трехкомнатные квартиры в 3 секции корпуса 5.1, правда, их осталось совсем мало. Отделка показана в визуализациях на сайте: ламинат на полу, обои под покраску на стенах, плитка в санузлах.
Для сравнения: квартира с отделкой, площадью 61.9 квадратов будет стоить 5.32 млн руб., а квартира без отделки, площадью 58.5 квадратов – 4.14 млн руб.
С 1 по 5 этаж лоджии не предусмотрены, начиная с 6 этажа они есть во всех квартирах. В каждой секции по два лифта, число квартир на этаже – от 5 до 10.
Некоторые секции целиком состоят из однокомнатных квартир и студий.
Стоимость
Цены на квартиры в ЖК «Пехра», актуальные на начало августа 2019 года, представлены в табличке под номером один.
Таблица 1.
|
Квартира |
Площадь, кв. м |
Цена, млн руб. * |
||
|
От |
До |
От |
До |
|
|
Студия |
18,46 |
24,42 |
1,65 |
1,93 |
|
1-к |
31,74 |
42,31 |
2,40 |
3,16 |
|
2-к |
50,59 |
61,88 |
3,56 |
5,32 |
|
3-к |
66,04 |
72,84 |
4,88 |
5,81 |
* Цена указана с учетом 15-процентной скидки, которую дают при 100% оплате либо ипотеке.
Планировки
Планировочный ряд не особенно широкий, однако это компенсируется количеством доступных квартир. Выбрать есть из чего, встречаются и не совсем обычные варианты.
Вот, например, студии: есть планировки даже с двумя окнами. Только более чем скромная площадь не позволит поставить стену и разделить комнату на два отдельных помещения. Вообще же студии в массе своей совсем небольшие. Как вам кухня-гостиная общей площадью меньше 10 квадратов? Интересно, что последний в списке вариант (площадью 36 квадратов) тоже почему-то попал на сайте в число студий, хотя по сути это классическая однокомнатная квартира.
Однокомнатные представлены в нескольких вариациях. В некоторых квартирах нашлось место для гардеробной комнаты.
Из интересных планировок присутствует однушка-распашонка и однокомнатная с тремя окнами. Жаль, что далеко не у всех квартир на сайте указаны метражи комнат.
Двухкомнатные представлены в довольно приличном ассортименте, от распашных до линейных. Санузлы в двушках предусмотрены раздельные.
Один из вариантов предлагает гостиную с двумя окнами, выходящими на две стороны света.
Все трешки до одной в распашной планировке. Есть квартиры, где в гостиной по пять углов, за счет скошенного входа.
Как купить
Купить квартиру в ЖК «Пехра» можно следующим образом. Первоначальный этап – бронирование на срок до 3 дней (до 10 дней в случае ипотеки), эта услуга стоит 10 000 рублей. Затем приходит черед подписания Договора долевого участия. За оформление ДДУ придется доплатить еще 30 тыс. руб. После подписания Договора покупатель должен открыть аккредитивный счет в Сбербанке и положить на него сумму за квартиру. После того как ДДУ будет зарегистрирован в рег. палате, деньги будут переведены на счет Застройщика.
Ипотеку предоставляют следующие банки:
Существует также возможность рассрочки, при первоначальном взносе от 60% рассрочка беспроцентная на срок до года, выплаты осуществляются равными платежами.
В случае ипотеки или 100% оплаты, напомню, покупатель получает скидку в 15% от базовой стоимости квартиры. В случае покупки в рассрочку скидка составит 12%.
Для сравнения
Таблица 2.
|
ЖК |
Площадь, кв. м |
Цена, млн руб. |
Материал |
Срок сдачи |
Отделка |
|
Пехра |
55,1 |
3,89 |
Монолит |
IV квартал 2020 |
Нет |
|
Новая Алексеевская Роща |
54,9 |
3,88 |
Монолит |
IV квартал 2020 |
Нет |
|
Столичный |
55,4 |
4,62 |
Монолит |
II квартал 2020 |
Есть |
|
28 микрорайон |
59,8 |
5,98 |
Монолит |
III квартал 2020 |
Нет |
И в заключение
Минусы:
- это Балашиха, со всеми ее транспортными проблемами;
- стройка будет длиться еще не один год;
- собственная инфраструктура в комплексе появится не сразу, первые несколько лет придется посещать детские сады, школы и поликлиники в соседних микрорайонах;
- местные жители сетуют на перегруженность этих учреждений, со свободными местами могут возникнуть проблемы;
- открытый пока что вопрос с благоустройством набережной.
Плюсы:
- монолитное строительство, высокие потолки, надежный застройщик;
- рядом речка и зеленая зона;
- огромное количество студий и небольших однокомнатных квартир, что позволит обзавестись жильем даже людям с не слишком широкими финансовыми возможностями;
- социальная и торговая инфраструктура ЖК «Пехра» обещает полностью удовлетворить потребности микрорайона.
Главное – дождаться окончания строительства.
Автор: Мария Борискина
Специально для Квартирного контроля

Обсуждение ЖК «Пехра»: микрорайон с видом на речку