В Академическом районе столицы возводится жилой комплекс бизнес-класса, который будет состоять из четырех монолитных корпусов высотой 18-20 этажей, расположенных на общем стилобате. Также под корпусами планируется обустроить двухуровневый паркинг с автомойкой.
Предварительная разведка
Официальных сайтов в Интернете у ЖК «Новочеремушкинская, 17» нашлось сразу два: самостоятельный http://www.novo17.ru/ и страничка на портале Застройщика https://www.ingrad-realty.ru/kvartiry-v-novostroykah/novocheremushkinskaya-17/.
Первый дает довольно много информации о Комплексе (меню расположено в нетипичном месте – верхнем правом углу экрана). Тут можно найти фото со стройплощадки, описание корпусов и района в целом, проектную документацию, информацию по ипотечному кредитованию.
Довольно удобно организован поиск по параметрам: есть возможность выбрать количество комнат, этаж, площадь квартиры и ее стоимость. Кстати, хотя в форме поиска можно выбрать студии, результат будет нулевым: студий в данном Комплексе вовсе нет.
Результаты поиска выдаются сразу с полным набором информации: планировка, стоимость, этаж, корпус, цена за квадрат. Весьма наглядно. При клике на квартиру открывается планировка, поэтажный план и план Комплекса (чтобы легче было сориентироваться по сторонам света и видам из окон).
Также на сайте описана довольно новая для нашего рынка недвижимости услуга «Обратный выкуп» – возможность для покупателя сразу после окончания строительства продать квартиру обратно Застройщику, получив при этом 10% годовых прибыли. Впрочем, к этой теме я еще вернусь.
Сайт Застройщика тоже вполне насыщен и позволяет узнать о Комплексе всё или почти всё. Тут также можно найти описание ЖК и окрестностей, информацию о предчистовой отделке (Застройщик называет ее white box: https://www.ingrad-realty.ru/kvartiry-v-novostroykah/novocheremushkinskaya-17/white-box.html), есть фотографии со стройплощадки и даже аэрофотосъемка будущего объекта (правда, только за июнь). Можно найти сведения об ипотечном кредитовании и проектную документацию, а также довольно полезную «памятку покупателю», где перечислены условия покупки, условия получения ипотеки, привлечения средств материнского капитала и т.д. Подробно описаны преимущества «обратного выкупа» (https://www.ingrad-realty.ru/kvartiry-v-novostroykah/novocheremushkinskaya-17/obratnyy-vykup.html).
Судя по визуализациям, комплекс обещает выглядеть весьма современно, при этом архитекторы вдоволь «поиграли» с классическими геометрическими формами. Фасады будут необычными, но без вычурности.
Что касается подбора квартир, то, судя по шахматке, квартир в продаже по состоянию на начало декабря было довольно немного.
Забегая вперед, скажу, что в офисе мне сообщили: продана примерно треть квартирного фонда, остальное жилье будет поступать в продажу партиями, с неизбежным повышением цены. Так что, если вы присмотрели себе какую-либо планировку, стоит регулярно мониторить сайт застройщика и ждать, когда данные квартиры появятся в продаже.
Самого по себе поиска квартиры я не нашла, по каждому корпусу варианты выдаются шахматкой или списком, который можно сортировать по количеству комнат, этажу, цене или площади. Клик на квартиру выдает поэтажный план.
Всего в 1 и 3 корпусах планируется по 122 квартиры, во 2 корпусе – 285 квартир, в 4 корпусе – 166. Количество квартир на этаже – от 4 до 7, лифтов – от 3 до 4.
Застройщик – ООО «Сигма-хаус», входит в ГК «Инград». Сама группа компаний «Инград» занимается инвестиционно-девелоперской деятельностью и в Московском регионе работает с 2012 года. К концу 2017 года в портфеле Группы компаний – более десяти проектов в столице и области.
Кадастровый номер участка – 77:06:0004002:7525, площадь – 23962 кв. м, участок принадлежит Застройщику на правах аренды до 17.04.2023.
Разведка боем
Расположена Новостройка довольно удачно: до ст. м. Академическая пешком идти минут пять-семь, совсем рядом с будущими корпусами – остановка общественного транспорта.
В распоряжении владельцев автомобилей – транспортные артерии Академического района.
Правда, довольно оживленная улица Дмитрия Ульянова будет проходить всего в нескольких десятках метров от домов. Но при этом первый этаж Комплекса будет занимать стилобат с шестиметровыми потолками, а вокруг домов планируется высадить деревья – так что даже жильцам вторых этажей не придется смотреть прямо в окна проезжающих автомобилей.
И все же близость к дороге – это, пожалуй, единственный минус расположения ЖК «Новочеремушкинская, 17». С другой стороны, в Москве едва ли не каждый третий дом выходит окнами на дорогу той или иной степени оживленности.
Сам район давно обжитой, с богатой инфраструктурой, так что торговых точек, аптек и отделений банков в окрестностях вполне достаточно. Буквально в соседних со стройплощадкой дворах – две школы, в шаговой доступности семь детских садов (включая дошкольные отделения гимназий).
Сам объект по состоянию на начало декабря 2017 года находился на этапе возведения второго этажа подземного паркинга – уже, конечно, не котлован, но выше земли стройка пока не выросла. Так что «подсмотреть» за ходом работ, в целом, мне удалось, а вот увидеть что-то интересное – увы, нет.
На объекте расположен свежеоткрывшийся офис продаж. Кстати, за десять минут моего ожидания менеджера в офис пришли три или четыре семьи – кто-то разузнать подробности о Комплексе, кто-то просто взять буклеты и осведомиться на счет сроков строительства. Мне показалось, что удачное расположение Комплекса само по себе привлекает как потенциальных покупателей, так и любопытствующих жителей района. Раньше на месте ЖК «Новочеремушкинская, 17» был небольшой автотехцентр и пара-тройка магазинов.
К моменту моего визита офис продаж работал всего два дня, так что в лобби еще не успели поставить диванчики для посетителей.
Зато к их услугам – довольно большой макет Комплекса, на котором можно рассмотреть дома в подробностях и представить, как будет выглядеть Новостройка.
Сам офис продаж, кстати, по задумке архитекторов должен являть собой своего рода «презентацию» ЖК: «безбарьерная среда», много света, окна во всю стену…
С окон, пожалуй, и начну – поскольку, мне кажется, это одна из основных «фишек» данной новостройки.
На четных этажах Комплекса подоконники будут расположены на уровне 75 см от пола (чуть выше колена), на нечетных – на уровне 30 см, то есть окна будут практически от пола до потолка. Учитывая, что высота потолков – 3.15 м, можно себе представить, насколько светло будет в квартирах. На лоджиях нечетных этажей остекление также будет панорамным.
Поскольку в офис я попала промозглым декабрьским днем, вопрос о том, не будет ли холодно в таких «панорамных» квартирах, возник сам собой. Менеджер заверила меня, что монолитные стены фасадов будут утеплены, а затем облицованы клинкерным кирпичом, так что мерзнуть жильцам домов не придется.
Все четыре корпуса будут расположены на общем стилобате, в котором разместятся магазины, аптеки, офисы банков, обучающие и спортивные центры. Сами дома будут сданы в эксплуатацию в IV квартале 2019 года, ключи жильцы должны получить до 31 марта 2020. Подземный двухуровневый паркинг, рассчитанный на 534 машиноместа, будет введен в эксплуатацию вместе с жилыми корпусами. Кроме того, вокруг домов обустроят 55 «гостевых» парковочных мест.
Входные группы предполагают безбарьерную среду и сквозной проход во «двор без машин». В подъездах обещают обустроить колясочные комнаты и зону ресепшн с лобби для гостей. Развозить жильцов по этажам будут современные бесшумные лифты SCHINDLER. Интересно, что на каждом этаже будет оборудован мусоропровод – такое в современных домах найдешь далеко не везде.
Как я уже упоминала, квартиры во всех корпусах, кроме 4, сдаются без отделки: выполнена разводка электрики до щитка, сантехники – до стояка, установлены стеклопакеты и хорошая металлическая входная дверь. Трассировка межкомнатных перегородок выполнена в один блок. Высота потолков от чернового пола – 3.25 м.
В корпусе 4 можно купить квартиру с предчистовой отделкой. Будет выполнена стяжка, возведены и оштукатурены стены, выполнена полная разводка сантехники и электрики – покупателю останется лишь заняться дизайнерским оформлением квартиры.
Что предлагают
Напомню, что отделка будет только в корпусе 4, в остальных корпусах квартиры сдаются без отделки.
В целом цены на квартиры в ЖК «Новочеремушкинская, 17» по состоянию на начало декабря следующие:
|
Квартира |
Площадь, кв. м. |
Цена, млн. руб. |
Этаж |
Отделка |
|
1-к |
42.8 |
9,715 |
4 |
Есть |
|
42,2 |
8,690 |
3 |
Нет |
|
|
2-к |
65,8 |
14,768 |
4 |
Есть |
|
71 |
14,938 |
6 |
Нет |
|
|
3-к |
104,8 |
23,016 |
4 |
Есть |
|
109,44 |
22,125 |
3 |
Нет |
|
|
4-к |
133,4 |
30,973 |
13 |
Нет |
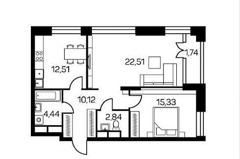
Вариантов планировок довольно много.
Однокомнатные, практически, все «типовые», площадь 42-44 квадрата. В некоторых спроектирован раздельный санузел, в других – смежный, но, учитывая, что квартиры сдаются без межкомнатных перегородок, разницы особой нет.
Есть однушки, которые в буклетах называются «евродвушками». Площадь и планировка у них точно такие же, как и у обычных однокомнатных, но разводка кухонной сантехники предусмотрена не в маленькой комнате, а в большой. Таким образом, гостиная волшебным образом превращается в кухню-гостиную, а вторая комната становится, например, спальней или кабинетом.
Планировочный ряд двухкомнатных довольно богатый.
Есть и стандартные двушки, и интересные варианты с тремя, например, окнами в гостиной.
Трехкомнатные тоже разнообразные: проектировщики предлагают и распашонки, и угловые квартиры с прихожими от 15 до 20.5 квадратов. Площади, кстати, практически у всех квартир Комплекса вполне приличные.
Четырехкомнатная на момент составления обзора оставалась только одна, но в продаже наверняка появятся и другие, на следующем витке продаж.
На сайте и в буклетах упоминаются (пока только вскользь) пентхаусы с высотой потолков до 6 метров, а также квартиры с террасами и каминами – но по ним конкретной информации выяснить не удалось. Может быть, они будут располагаться на последних этажах, которые пока не поступили в продажу.
Как купить
Если вы решили купить квартиру в ЖК «Новочеремушкинская, 17», то первым делом вам предстоит подписать договор бронирования и внести за него 30 000 рублей. Эта сумма впоследствии войдет в стоимость квартиры и является своего рода гарантией того, что покупатель не передумает, ведь в момент бронирования квартира снимается с продажи и цена на нее фиксируется. Если же потенциальный покупатель решил отказаться от сделки, то ему могут вернуть часть этой суммы. Впрочем, как мне пояснила менеджер, такие вопросы решаются индивидуально.
В течение 6 рабочих дней со дня подписания договора бронирования нужно подписать Договор Долевого участия и открыть аккредитив в Московском Кредитном банке или Райффайзенбанке. Интересно, что в МКБ открытие аккредитива стоит 2.5 тыс. руб., а в Райффайзенбанке она бесплатна. Далее у покупателя есть три дня на то, чтобы внести на аккредитив стоимость квартиры. После регистрации ДДУ в регпалате средства с аккредитива поступают на счет Застройщика. Сделка страхуется Военно-Страховой компанией.
Возможна также беспроцентная рассрочка – при первоначальном взносе от 30% на полгода, при взносе от 50% – на год. Ипотеку предоставляет целый ряд банков, на сайте Комплекса им посвящена целая страница.
В декабре покупатели могут рассчитывать на скидку в размере до 1% от стоимости квартиры.
Есть также довольно любопытная возможность «обратного выкупа»: после сдачи дома в эксплуатацию покупатель может (но не обязан) вернуть квартиру Застройщику и получить сумму, вложенную в жилье, плюс 10% годовых. В этом случае Застройщик становится своего рода банком, которому покупатель дает деньги «в рост». Такая услуга может быть интересна тому, кто инвестирует в недвижимость… либо тому, у кого изменились семейные обстоятельства или предпочтения за те два года, пока квартира строилась.
Добавлю, что машиноместа в подземном паркинге уже продаются, на сайте можно выбрать – площадь от 13 кв. м, цена от 1.5 млн руб. А вот по поводу кладовых помещений, которые расположены на минус 2 этаже паркинга, информации пока нет.
Для сравнения
|
ЖК |
Класс жилья |
Срок сдачи |
Средняя цена, тыс. руб./м. |
|
Новочеремушкинская, 17 |
Бизнес |
IV квартал 2019 |
209-211 |
|
Вавилов-Дом |
Бизнес |
III квартал 2019 |
221-250 |
|
Вавилова, 69А |
Бизнес |
III квартал 2018 |
231-305 |
|
The МID |
Бизнес |
I квартал 2018 |
290-317 |
|
Ленинский, 38 |
Бизнес |
III квартал 2018 |
312-454 |
Что говорят
Именных форумов у ЖК «Новочеремушкинская, 17» нашлось целых два.
Первый не очень оживленный, но все же некоторая активность на нем есть. В частности, люди обсуждают темпы работ, делятся фотографиями стройплощадки.
Впрочем, пока что большую часть сообщений на форуме, по моим впечатлениям, пишут все-таки администраторы. Кстати, на портале есть раздел для обратной связи с застройщиком.
На втором форме сообщений тоже не очень много, но больше, чем в предыдущем случае. Самая оживленная тема, затрагивает инфраструктуру района. Обсуждают озеленение, школы, магазины, поликлиники.
Для потенциального покупателя, думаю, общение на эти темы может стать полезным.
Заключение
Да, престижный район диктует свои условия, в данном случае – цены. В Москве можно найти немало новостроек с более дешевыми квартирами. Однако по сравнению с ближайшими (территориально) «конкурентами» цены в ЖК «Новочеремушкинская, 17» вполне гуманные.
Не стоит забывать и о том, что в ЮЗАО хорошая и продуманная транспортная инфраструктура, неплохая экологическая обстановка, а район, окружающий Новостройку, обжит давно и оброс всеми необходимыми современному человеку предприятиями и учреждениями – от точек общепита и магазинов до поликлиник и школ.
Есть, конечно, и минус: улицы Новочеремушкинская и Дмитрия Ульянова, которые пролегают совсем рядом со строящимися домами, отнюдь не озонируют воздух. Однако плюсы, на мой взгляд, более весомы: в этом ЖК просторные квартиры, большие окна, интересные планировки, неплохой вместимости (хоть и недешевый) подземный паркинг. Добавьте сюда еще и любопытную опцию «обратного выкупа» – и вы согласитесь, что рассмотреть этот Комплекс вполне стоит.
Автор: Мария Борискина
Специально для Квартирного контроля









Обсуждение ЖК «Новочеремушкинская, 17»: геометрия классики