Из беседы с менеджером отдела продаж:
— Наш апарт-отель «Ботанический сад» бизнес-класса, предлагает…
— Вы хотите сказать, комфорт-класса.
— Почему? Бизнес, конечно.
— Но ваш апарт-отель получил премию Urban Awards 2018 как «Лучший комплекс апартаментов комфорт-класса Москвы».
— Да? Ну, мы почти бизнес.
Давайте посмотрим, комфорт или, все-таки, бизнес-класс в СВАО, в районе Ростокино, на 1-ой улице Леонова, строит ГК «Пионер». Апарт-отель под названием YE’S «Ботанический сад» входит в состав ТПУ «Ботанический сад» и является первым подэтапом первого этапа строительства «Многофункционального общественно-делового и торгово-развлекательного комплекса».
Немного расскажу об этих этапах и подэтапах.
Первый этап включает в себя строительство непосредственно апарт-отеля (1 подэтап) и кабельные линии (2 подэтап). Оба эти подэтапа вводятся в строй одновременно, в четвертом квартале 2020 года.
Второй этап включает в себя строительство многофункционального общественно-делового и торгово-развлекательного комплекса. Его сдача намечена в 2021 году.
А какие параметры принимает во внимание жюри, оценивая тот или иной комплекс и, в конце концов, вручая ему заветную награду Urban Awards?
http://2018-msk.urbanawards.ru/criteries
Но сначала познакомимся с тем пунктом, которого нет в вышеприведенном списке.
Сайт
Официальный сайт комплекса YE’S «Ботанический сад» очень хороший (http://yesbotsad.ru/). Навигация понятна, информации много, выложены документы, рассказано, как доехать, есть стоимость апартаментов. Прекрасно, что на каждый вариант можно посмотреть дизайн-проект, где указаны все размеры помещений, отделка и меблировка. В наличии красочные рендеры, представлен застройщик, ход строительства. Отличный интерактивный генплан, где здание можно поворачивать, а апартаменты смотреть по этажам. Если вы кликните на генплане «видовые апартаменты», то вам покажут виды из окон, причем посмотреть можно, поворачивая изображение на 360 градусов. Из мелких замечаний отмечу, что на некоторых страницах на светлом фоне даны ссылки почему-то белыми буквами, и зачастую их просто не видно. Не рассказано, какие именно материалы будут применены в отделке помещений, возможно, что эта информация появится позже. И из двух веб-камер показывает только одна.
Отзывы в Сети
Форумов с отзывами от покупателей и просто интересующихся у YE’S «Ботанический сад» оказалось несколько и каждый практически на одну-две страницы. Людей интересует, не много ли китайцев будут проживать в комплексе, ведь рядом возводится китайский центр.
https://pronovostroy.ru
Хвалят локацию.
https://forum.ners.ru
Выжидают.
https://kvadroom.ru
Ругают и возмущаются.
https://realty.yandex.ru
Как добраться
На автомобиле. На схеме внизу показано как дойти до апарт-отеля, но понятно, что и автомобильная доступность очень хорошая. Проезд Серебрякова рядом, до проспекта Мира полтора километра, до ТТК всего 6, до Садового кольца 9, а до Красной площади 14 км.
Общественным транспортом. Ближайшая станция метро «Ботанический сад». Если вы хотите посмотреть расположение отеля с его, так сказать, внутреннего угла, то выходите из метро по указателю на улицу Вильгельма Пика (Южный вход), обходите круглое здание метрополитена и перед вами искомая новостройка.
Если вы сначала желаете посетить офис продаж, то в метро поворачиваете в другую сторону, на проезд Серебрякова. Или воспользуйтесь одноименной станцией МЦК, все рядом, в пределах видимости. На фотографии МЦК «Ботанический сад», за ней виден кран на строительной площадке.
Если посмотреть правее, то по центру, за потоком машин виден офис продаж, украшенный листочками.
Офис продаж
На сайте адрес офиса указан, как проезд Серебрякова, 2А (с торца дома). Не верьте этому, потому что 2А это здание рядом, а офис продаж выглядит так.
Я не могла найти пешеходный переход к офису. Ну не все же туда на машинах приезжают? Так и перебегала дорогу в неположенном месте, пугая автомобилистов и пугаясь сама, благо, что светофор, все-таки, автомобили где-то останавливает.
В офисе красиво, душевно, располагает к уютным посиделкам с менеджером, тем более что угощают и вкусным кофе и чаем, и шоколадки дают.
Большой макет представляет строительство и YE’S «Ботанический сад» и ЖК «LIFE-Ботанический сад» – все от Девелопера ГК «Пионер».
Участники строительства
Технический заказчик ООО «Инвестиционно-строительная компания Пионер» https://www.pioneer.ru/. Застройщик ООО «Ботанический сад», который зарегистрирован в 2015 году в Москве, на улице Малой Пироговской, в доме 3, комнате 5. Генеральный директор С. А. Семихатов. Коммерческое обозначение застройщика PIONEER. Учредителями выступают А. Ю. Грудин и Л. В. Максимов. Проектная организация ООО «АБД» при участии японской мастерской Nikken Sekkei. Генподрядчик ООО «Строительная компания «Пионер».
Разрешение на строительство № 77-184000-016297-2018 выдано 30.01.2018 сроком до 30.07.2021 года. Участок площадью почти в два гектара, а конкретнее 18 860 кв. м с кадастровым номером 77:02:0018003:1100 находится у застройщика в аренде. Так как строится нежилое здание, то обязательные отчисления в компенсационный фонд не уплачиваются, никаких обременений в виде детского сада или школы нет. Получение разрешения на ввод в эксплуатацию апарт-отеля датируется 4 кварталом 2020 года. Апарт-отель строится целиком на средства инвестора.
Думаю, что здесь уместно рассказать, что ГК «Пионер» под брендом LIFE строит жилые кварталы, а под брендом YE’S апартаменты и эта сеть создана в 2011 году.
В Москве уже реализован апарт-отель YE’S в Митино, в продаже находятся YE’S «Технопарк» и нынешний герой YE’S «Ботанический сад». В Санкт-Петербурге возведены еще три проекта апарт-отелей. Наш сосед Казахстан также не обделен вниманием ГК «Пионер». У холдинга есть своя управляющая компания PIONEER SERVICE https://service.pioneer.ru/.
Что строят
Ранее на участке будущего комплекса была парковка. Согласно отчету ООО «Метро-Тоннель», в зону строительства попадает станционный участок «Ботанический сад» Калужско-Рижской линии метрополитена. По результатам расчета волноваться нет причин – прочность, сохранность и безопасная эксплуатация сооружения метрополитена обеспечена.
Апарт-отель Г-образной формы в 25 этажей (плюс один подземный и один технический) со встроенно-пристроенной одноуровневой подземной стоянкой, которая выходит за абрис проекции здания. Въезд и выезд по закрытой двухпутной прямолинейной рампе. Высота дома по парапету почти 84 метра. Конструктивная схема здание каркасно-стеновая, то есть монолитный железобетонный каркас, перекрытия монолитные железобетонные.
Наружные стены из блоков ячеистого бетона утеплят плитами из минеральной ваты. Фасадная система с вентилируемым зазором. Цоколь облицуют фасадными панелями из натурального камня. С 3 по 25 этажи облицовка композитными алюминиевыми панелями. Технический (верхний) этаж из трехслойных сэндвич-панелей с отделкой алюминиевыми ламелями.
Участки наружных стен – однокамерный стеклопакет в профилях из алюминиевых сплавов. Витражи и наружные входные двери – однокамерный стеклопакет в профилях из алюминиевых сплавов. Оконные блоки – однокамерный стеклопакет в ПВХ-профилях. Декоративные элементы (ламели) – алюминиевый лист по металлическому каркасу. Козырьки из закаленного стекла толщиной не менее 10 мм на металлических подвесах. Класс энергоэффективности В+.
Количество апартаментов 991, машино-мест на минус первом этаже всего 92 (пять для автомобилей инвалидов), площадью от 13,25 до 20,65 кв. м. Подземная стоянка отапливаемая. Наземных машино-мест запланировано 117, из них 5 для инвалидов-колясочников.
Апартаменты располагаются со второго этажа, а также там поселится и офис управляющей компании, ее услуги обойдутся владельцам в 100-120 рублей за квадратный метр. Комнаты горничных на всех этажах, начиная со второго. На первом этаже: магазины непродовольственных товаров в количестве восьми, буфет, бар, помещение для занятия фитнесом, офисные помещения, пост пожарной охраны, диспетчерская, помещение охраны и КПП. Задействуют систему охранного телевидения, которая обеспечит визуальный круглосуточный контроль и регистрацию обстановки на территории, входных дверей, входов в подземный этаж, входов первого этажа внутри здания, лифтовых холлов и основных коридоров на этажах. Доступ в здание обеспечат электронные идентификаторы. Подъезд не сквозной, для постояльцев вход со стороны улицы, а внутри двора расположены входы в магазины. Все входы расположены на уровне земли. На неогороженной территории апарт-отеля запроектированы подъезды, пешеходные подходы к зданию, организованы служебные и загрузочные площадки. У наружных дверей установят электрические воздушно-тепловые завесы.
Предусмотрено высококачественное благоустройство с использованием мощения и освещения, которое разработано таким образом, чтобы подчеркнуть основные входы в здания, а также выявить особенности пластики фасадов. Проектными решениями обеспечивается доступность здания для маломобильных групп населения. Шесть лифтов, грузоподъемностью по 1 600 кг. Мусоропровода нет. На каждом этаже обустроят специальное помещение, где постояльцы смогут оставлять пакеты с мусором в контейнере.
Апартаменты продаются с отделкой. Подробнее об этой опции я расскажу ниже. Часть номеров оснащается мебелью и оборудованием. Стоимость мебели считается отдельно, и она равна 650 000 рублей на номера стандарт и студии.
Во всех апартаментах отопление разведут по полу и установят стальные панельные радиаторы с термостатическим вентилем. Те, что установят у окон, оснастят защитными экранами. Кондиционирование воздуха производится при помощи системы «чиллер-фанкойл», то есть никаких корзин снаружи не будет, кондиционирование централизованное. Счетчики учета расходы воды, электроэнергии установят в разные шкафы на этажах.
Озеленение включает в себя высадку 112 кустарников и 37 деревьев, устройство газона. Кроме «новичков» кислородом легкие постояльцев будут насыщать и «старожилы» – часть деревьев и кустарников, произраставших на участке до строительства, сохранят.
Соседи
На юге 1-я улица Леонова, станция метро «Ботанический сад» и парк «Сад будущего»;
На севере МЦК, проезд Серебрякова, офис продаж и строящийся ЖК LIFE «Ботанический сад»;
На западе улица Вильгельма Пика и Китайский деловой центр;
На востоке территория Российского геронтологического научно-клинического центра.
А на этом плане с сайта хорошо видно, что в дальнейшем, после возведения второй очереди, то есть, многофункционального общественно-делового и торгово-развлекательного комплекса, улица Леонова будет им перегорожена и проложена другая дорога, огибающая апарт-отель.
Планировки и стоимость апартаментов
Обратите внимание, что на типовом этаже по 43 номера. Честно, но я такого количества еще не встречала. Шесть пассажирских лифтов, пускай и высокоскоростных, на 25 этажей. Подозреваю, что маловато будет вертикального транспорта.
Напомню, что все апартаменты сдаются с чистовой отделкой, но стоимость мебели в цену не включена. Продажи пока идут с 3 по 22 этажи. На втором этаже апартаменты будут с террасами, но стоимость такой роскоши пока неизвестна.
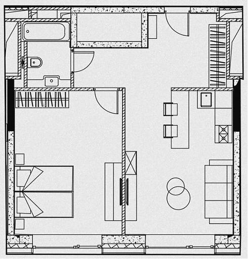
Студии
Застройщик на сайте разделяет именно студии и номера стандарт, но планировка на все про все одна-единственная, поэтому и покажу одну. Студия – это помещение с диван-кроватью, а стандарт – стандартный номер (с кроватью). Площадь от 19,6 до 27,64 кв. м, стоимость от 4 009 137 до 6 713 258 рублей. Планировка банальна, с одним окном, в санузле встанет только душевая кабина.
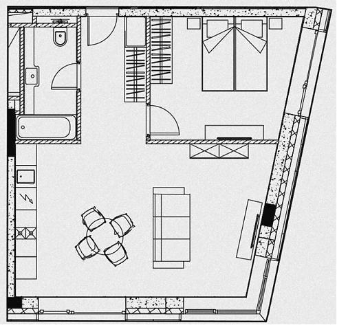
One bedroom suite (номер с кухней-гостиной и отдельной спальней)
Площадь от 38,32 до 53,19 кв. м, стоимость от 6 583 589 до 10 211 365 рублей. Есть еще такие номера с террасой, но, как я уже упоминала выше, их пока в продаже нет. В однокомнатных номерах отличие планировок только в том, что в некоторых кухня начинается прямо в прихожей, а в других она отделена. Везде по два окна, зачастую вход в спальню через кухню-столовую. Мне понравились номера площадью более 50 квадратов.
Two bedroom suite (номер с кухней-гостиной и двумя спальнями)
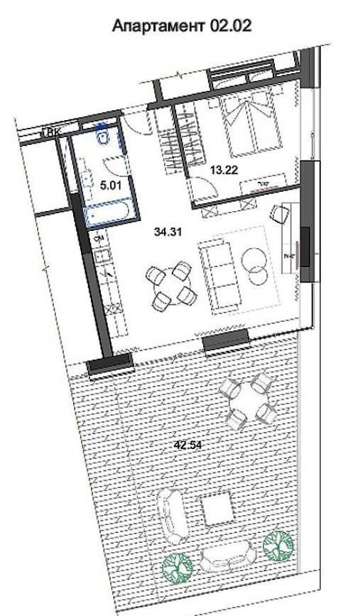
Назову эти помещения двухкомнатным апартаментом. Площадь от 70,1 до 70,14 кв. м, стоимость от 13 480 346 до 16 705 111 рублей. Друзья, вы обратили внимание, что метраж этих номеров один на самом деле? Вот и планировка одна и все помещения угловые с интересным остеклением.
И хотя в продаже пока нет номеров с террасами, но зато есть дизайн-проект, и мы с вами можем посмотреть, как это стильно.
Как купить
Бронь на два дня устная, не оформляется никаким договором. Если вам нужно больше времени на подготовку, то заключается договор на две недели, который стоит 30 000 рублей (при условии оформления ипотеки) или 15 000 рублей на одну неделю. Эти деньги впоследствии зачтут в стоимость покупки. Договор долевого участия выйдет бесплатным. Участники долевого строительства открывают аккредитив в Райффайзенбанке.
При полной оплате можно получить скидку в 2%, а если вы приобретаете несколько помещений, то скидка возрастет, но оговаривается индивидуально.
Ипотеку предоставляют следующие финансовые структуры:
Беспроцентную рассрочку можно получить с первоначальным взносом 50%, но всего лишь на три месяца.
На приобретение мебели тем клиентам, что приобрели апартамент без меблировки, также предоставляется беспроцентная рассрочка сроком на год и с нулевым первоначальным взносом.
ГК «Пионер» и агентство недвижимости «Азбука жилья» предлагают услугу Trade-in. В этом случае, выбрав апартамент, нужно заключить платный договор бронирования (сумма входит в стоимость) и, не дожидаясь продажи старой квартиры, заключаете ДДУ и вносите предоплату в размере 10%. Три месяца ваша старая квартира в продаже, а по факту ее реализации, вы вносите остаток, то есть 90% от стоимости апартамента. На все это время стоимость выбранной вами недвижимости фиксируется.
Девелопер идет в ногу со временем и предлагает приобрести апартамент онлайн. Подробности здесь http://yesbotsad.ru/buy/online.
Отделка
Часть апартаментов сдается под ключ, то есть со стильной европейской мебелью и бытовой техникой профессионального гостиничного уровня.
Установят качественную входную дверь. В помещениях на полу, в зависимости от зоны, постелют ламинат либо ковролин, либо уложат плитку. Стены окрашены, потолок натяжной со встроенными светильниками. В санузле потолок подвесной со встроенными светильниками, на полу плитка и плитка на стенах до потолка. Установят все сантехническое оборудование.
Уже упоминала о том, что на сайте представлены дизайн-проекты апартаментов и все выглядит довольно интересно. Например, трансформируемый стол в студии.
Санузел с душевой кабиной в студии.
Кухня-гостиная в однокомнатных и двухкомнатных номерах.
Апартамент с террасой.
Сравнительная таблица стоимости апартаментов с отделкой комфорт-класса
Не так уж много строится в 2019 году апартаментов с отделкой, пришлось брать данные по всей Москве.
|
Название |
студия |
1 комн. |
2 комн. |
|||
|
кв. м |
млн руб. |
кв. м |
млн руб. |
кв. м |
млн руб. |
|
|
YE’S «Ботанический сад», СВАО |
19,6–27,64 |
4–6,7 |
38,32–53,19 |
6,6–10,2 |
70 |
13,5–16,7 |
|
Level Амурская, ВАО |
18,8–33,1 |
3,4–6 |
38,6–47,8 |
4,7–6,1 |
58,2–69,4 |
6,7–8,5 |
|
Нормандия, СВАО |
— |
— |
28,3–59,4 |
3,8–8,1 |
49,5–86,6 |
6,6–12,7 |
|
Янтарь-Apartments, САО |
— |
— |
25,4–29,7 |
3,9–4,5 |
45,7–53,6 |
6,2–7,3 |
|
Влюблино, ЮВАО |
20,4–26,4 |
3,2–4,4 |
37,5–41 |
5,1–5,5 |
46,8–53,4 |
6,1–6,8 |
Инфраструктура
В будущем можно рассчитывать на богатое наполнение всевозможными магазинами и службами сервиса в возводимом во второй очереди проекта многофункциональном общественно-деловом и торгово-развлекательном комплексе. На другой стороне проезда Серебрякова образовательный центр, пешком можно дойти до нескольких детских садиков, спортивного комплекса и школ. Хватает в округе и магазинов, всяких ресторанов, кафе и прочих парикмахерских. Минут за 15 дойдете до крупного торгового центра «Золотой Вавилон», где есть очень многое. Погулять отправляйтесь в Леоновскую рощу и на берег Яузы. Парк «Сад будущего», практически под окнами апарт-отеля. Да и до Главного ботанического сада недалеко. За Геронтологическим центром еще один зеленый уголок тишины и спокойствия – Леоновское кладбище. В настоящее время там проводятся только родственные захоронения.
Не забудем о китайцах и их бизнес-центре «Парк Хуамин». Кроме возможности арендовать офис, обещаны «большое количество торговых и развлекательных программ». А также в зеленой зоне традиционного китайского парка москвичи смогут приобщиться к правильному чаепитию в чайном домике, полюбоваться пагодами и арками, садом камней и посидеть на берегу искусственного водоема. Короче, интересно погулять. Я обязательно схожу, поглазею, когда построят, любопытно же! Большой вопрос удастся ли мне побывать в самом Китае, но хотя бы кусочек в Москве увижу.
Экология
Я назову ее приемлемой. Конечно, МЦК, проезд Серебрякова и прочие машинерии в наличии, но и парков вокруг хватает.
Итог
Если вспомнить тот скриншот, что я разместила в начале статьи и пройтись по пунктам «Критерии оценки», то, что мы получаем в остатке?
- Местоположение. Очень хорошее, транспортная доступность отличная. Ставим лайк, то есть, бизнес.
- Материал строительства. Монолит, как же без него. Ну, сейчас любой комфорт-класс возводится по монолитной технологии.
- Архитектурное решение. Ну… ничего особенного. Много стекла, отсутствуют балконы и лоджии, в общем подобной архитектурой нас уже не удивить. Но и ничего некрасивого нет. Считаем комфорт.
- Проектные решения (высота потолков, площади квартир). Все нормально. Но! На типовом этаже более сорока номеров. Это уже эконом.
- Парковка. Вот тут минус сразу. Подземная просто крошечная, да и наземная количеством мест не вдохновляет. Комфорт.
- Охрана. Все как бы на месте, но территория не огорожена, постояльцев очень много, они могут меняться. Нет, на бизнес не тянет.
- Территория дома (внутренний двор). На мой взгляд, соответствует комфорту, так как невелика и ничего там необычного нет.
- Инфраструктура комплекса и района. Все на месте. Будет все на месте, когда построят вторую очередь. Стоимость кв. м (соотношение цена/качество). Вот не могу пока сказать ничего определенного по соотношению, все-таки, пока соотносить нечего, но то, что апартаменты в YE’S «Ботанический сад» дороговаты, это точно. По крайней мере, в сравнении с другими подобными объектами.
- Финансовые гарантии реализации проекта. Здесь я думаю, плюс. Сам по себе девелопер мощный, да и разрешение на строительство получено в январе 2018 года, то есть застройщик может использовать средства дольщиков. Я не сомневаюсь, что все построят, тем более что в последней декларации сроки сдачи даже сдвинулись в сторону уменьшения.
- Бизнес-план проекта. А?
- Динамика строительства. Вроде строят по графику.
И все-таки, несмотря на очевидны плюсы, считаю, что апарт-отель YE’S «Ботанический сад» это хороший комфорт, и он мне понравился. Особенно если выбрать апартамент окнами в сторону парка или подождать, когда начнутся продажи на втором этаже с террасами, или выше 22 этажа с высокими потолками и еще какими-то приятностями.
Автор: Ольга Степанова
Специально для Квартирного контроля

Обсуждение YE’S «Ботанический сад»: прекрасная локация и по сорок три номера на этаж