Поиск
Например:Бунинские луга
Регион
 Квартирный контрольМосква
 Квартирный контрольМосква
 Квартирный контрольНовая Москва
 Квартирный контрольПодмосковье
Округ, район, метро
Расположение
Количество комнат
Студия
1
2
3
4+
Стоимость
домлн.
Все параметры
Показать все новостройки
+Сбросить все фильтры

Квартирный контрольЖК «Первомайский»

Объект сдан. Всё распродано.
Последняя цена:
Застройщик ГК "Крон-М"ГК "Крон-М"
8 (499) 348-17-29
Московская областьИвантеевка Г/О


до МКАД: 17 км.
Класс дома: Эконом-класс
Технология: Монолит
 Квартирный контроль
Архивный материал
Размер шрифта-+

Что Вам нужно знать о ЖК «Первомайский»

О ПРОЕКТЕ

Строительство ЖК «Первомайский» в Ивантеевке началось во второй половине 2016 года на участке земли недалеко от пересечения улиц Первомайская и Дзержинского, там, где ранее стояли корпуса давно закрытой ткацкой фабрики. В планах Застройщика, ООО «Казачий торговый дом», значатся в общей сложности три корпуса.

Первыми поступили в продажу 148 квартир в корпусе №1, РВЭ на который было получено 23.01.2019. Керамогранитные фасады этого 17-этажного монолитно-каркасного дома будут вентилируемыми, стены выкладываются из блоков ячеистого бетона и утепляются плитами ROCKWOLL. Первые два этажа предназначены для размещения на них коммерческих объектов – квартиры размещаются, начиная с третьего этажа дома. Подъездов здесь всего два, каждая из секций обслуживается двумя лифтами.

Мусоропроводов не предусмотрено, внешние блоки кондиционеров предлагается разместить в корзинах на фасадах здания. Вопрос с парковкой будет решаться позже – под одним из последующих корпусов Комплекса должен появиться подземный паркинг.

УЧАСТНИКИ И САЙТЫ

ООО «Казачий торговый дом» входит в Группу Компаний «Крон-М», профилем которой являются Новостройки исключительно в Ивантеевке – помимо Первомайского это строящиеся ЖК «Надежда»,

«ORANGEWOOD»

и уже сданный ЖК «Дом на Студенческом».

Эксклюзивными правами на продажу квартир в Комплексе обладает Агентство недвижимости ОБМЕН.РУ. Сайтов мало не бывает, решили обе Компании и теперь, при выдаче ответа на соответствующий запрос, поисковые системы интернета выдают официальный сайт ЖК «Первомайский» в четырех ипостасях, по одной странице на корпоративных сайтах Застройщика и Продавца и по одной же более полной версии, существующей от них независимо. Эксклюзив эксклюзивом, но при желании Вы можете пообщаться на тему покупки квартиры в Комплексе и в офисе Застройщика, по адресу г. Ивантеевка, ул.Заводская, д. 14а.

У ОБМЕН.РУ есть свой офис продаж на Студенческом проезде, д.2 в Ивантеевке. Все вопросы можно решить и в Москве в центральном офисе Компании на Тверской, 24.

Но и это еще не все – эксклюзив становится совсем эксклюзивным, если принять во внимание еще и появление ЖК «Первомайский» на сайте Агентства "Азбука Жилья". Радует то, что объемы квартир у всех продавцов одинаковые, да и цены абсолютно идентичны, а маневров при обсуждении условий покупки становится больше. Продажи квартир в Комплексе ведутся по ДДУ на основании ФЗ 214, ипотечный кредит выдают банки:

КВАРТИРЫ

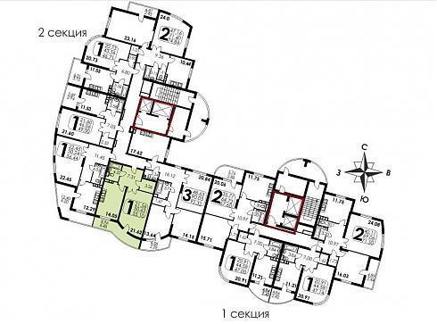
Квартирный фонд в первом корпусе Комплекса нас безмерно удивил – квартиры в этой новостройке на Первомайской оказались очень просторными, местами их площадь даже выходит за рамки, присущие дому «комфорт-класса». На лестничной клетке в первой секции расположены две однокомнатные и две двухкомнатные квартиры. Однокомнатные квартиры смотрятся как двойняшки перед зеркалом, планировки двухкомнатных чуть отличаются – в той, что побольше, в гостиной есть два окна:

На этаже во второй секции находятся шесть квартир и здесь наблюдается прямо противоположная картина – ни одна из планировок не повторяется, при этом выбирать предстоит из очень хороших или просто отличных планировочных решений. Казалось бы, что может быть лучше вот такой 50-метровой однокомнатной квартиры с большой лоджией, приличными санузлом и гардеробной комнатой:

Оказывается, здесь есть варианты еще интереснее. В таких однокомнатных квартирах общая площадь побольше, а по лоджии можно совершать променады (кухня, комната, санузел и гардероб впечатляют не меньше).

Трехкомнатных квартир в этом доме всего 15, планировка у всех выполнена под копирку, в квартире есть гостевой санузел, а в холле, что совсем неожиданно, присутствует окно:

Так называемая свободная планировка в Комплексе по факту отсутствует – в квартирах будут выстроены межкомнатные перегородки. Входные металлические двери поставлены «для галочки» – после проведения своими силами отделочных работ, покупатель, скорее всего, их заменит. На сайте ЖК «Первомайский», принадлежащим ОБМЕН.РУ, фигурирует информация о том, что здесь присутствует возможность заказать отделку «под ключ». Так и есть, при покупке квартиры в ОБМЕН.РУ, Вы получите сертификат на скидку при заказе ремонта у Компании-партнера, но в любом случае получите ключи от «голой» квартиры.

ЗА
  • центр Ивантеевки
  • 20 минут на автомобиле до МКАД
  • ипотека от СБЕРБАНКА, ВТБ 24 и других банков
  • большие квартиры с продуманной планировкой
ПРОТИВ
  • нет подземного паркинга
РЕЗЮМЕ

Не являясь архитектурным шедевром данный Комплекс обладает рядом достоинств, выделяющих его на фоне прочих Новостроек Ивантеевки, и на первом месте здесь стоят сами квартиры ЖК. Что до стоимости, то цены на квартиры здесь как раз ничем не выделяются, что можно считать хорошим знаком – покупатель заплатит здесь ровно столько, сколько бы он заплатил за квадратный метр в соседних ЖК, где квартиры будут попроще.

 

Новостройки рядом с ЖК «Первомайский» г Ивантеевка

Квартирный контроль

ЖК "Берег Скалбы 2"

Объект сдан. Всё распродано.
1.17 км
ЖК "Берег Скалбы 2" Квартирный контроль
  • 1 комн. 
    Продано
    2 комн. 
    Продано
    3 комн. 
    Продано

ЖК "Пушкарь"

Объект сдан. Всё распродано.
2.71 км
ЖК "Пушкарь" Квартирный контроль
  • Студия 
    Продано
    1 комн. 
    Продано
    2 комн. 
    Продано
    3 комн. 
    Продано
    4 комн. 
    Продано
  • Студия 
    Продано
    1 комн. 
    Продано
    2 комн. 
    Продано
    3 комн. 
    Продано

ЖК "на ул Школьная, 7"

Объект сдан. Всё распродано.
1.69 км
ЖК "на ул Школьная, 7" Квартирный контроль
  • 1 комн. 
    Продано
    2 комн. 
    Продано
    3 комн. 
    Продано

ЖК «Надежда»

Объект сдан. Всё распродано.
0.89 км
ЖК «Надежда» Квартирный контроль
  • Студия 
    Продано
    1 комн. 
    Продано
    2 комн. 
    Продано
    3 комн. 
    Продано
Класс жилья
Эконом-класс

Компания
ГК "Крон-М"

ЖК "Ивантеевка 2020"

В работе 1 корпус: 2024. Всё распродано.
0.99 км
ЖК "Ивантеевка 2020" Квартирный контроль
  • Студия 
    Продано
    1 комн. 
    Продано
    2 комн. 
    Продано
    3 комн. 
    Продано
Класс жилья
Эконом-класс

Компания
ООО "Казачий торговый дом"

ЖК "Весна"

Объект сдан. Всё распродано.
1.24 км
ЖК "Весна" Квартирный контроль
  • 1 комн. 
    Продано
    2 комн. 
    Продано

ЖК «Дом на Студенческом»

В работе 1 корпус: 2026. 
1.11 км
ЖК «Дом на Студенческом» Квартирный контроль
  • Студия  от
    4 216 800 ₽
    от  28 м2
    1 комн.  от
    5 056 250 ₽
    от  40 м2
    2 комн.  от
    5 359 200 ₽
    от  44 м2
    3 комн.  от
    7 016 800 ₽
    от  60 м2
    4 комн.  от
    11 325 600 ₽
    от  87 м2
Класс жилья
Комфорт-класс

Компания

ЖК «Западная Ивантеевка»

В работе 1 корпус: 2026. 
1.15 км
ЖК «Западная Ивантеевка» Квартирный контроль
  • Студия  от
    4 400 000 ₽
    от  29 м2
    1 комн.  от
    4 800 000 ₽
    от  32 м2
    2 комн.  от
    5 700 000 ₽
    от  38 м2
    3 комн.  от
    7 600 000 ₽
    от  52 м2

ЖК «Первомайский» г Ивантеевка на карте

Адрес: Московская область, г. Ивантеевка, ул. Первомайская
Квартирный контроль
Проверено 16-09-2019

Цены в ЖК «Первомайский»

1-комнатная
Уточнить наличие
46,71-46,71 м2
Продано

1-комнатные Квартиры 46,71-46,71 м2

Месяц / Год Площадь Стоимость Цена м2 Динамика цены м2
Февраль 2019 46,71-46,71 м2 4 671 000 - 7 006 500  ₽ ~126 929  ₽
Январь 2019 46,71-46,71 м2 4 671 000 - 7 006 500  ₽ ~126 929  ₽
Декабрь 2018 46,71-46,71 м2 4 671 000 - 7 006 500  ₽ ~126 929  ₽  114.52%
Ноябрь 2018 46,92-49,21 м2 2 632 000 - 2 989 000  ₽ ~59 168  ₽
Октябрь 2018 46,92-49,21 м2 2 632 000 - 2 989 000  ₽ ~59 168  ₽
Сентябрь 2018 46,92-49,21 м2 2 632 000 - 2 989 000  ₽ ~59 168  ₽  6.62%
Август 2018 46,71-55,1 м2 2 615 760 - 2 989 000  ₽ ~55 493  ₽
Июль 2018 46,71-55,1 м2 2 615 760 - 2 989 000  ₽ ~55 493  ₽
Июнь 2018 46,71-55,1 м2 2 615 760 - 2 989 000  ₽ ~55 493  ₽  -9.04%
Май 2018 46,53-55,1 м2 2 580 600 - 3 581 500  ₽ ~61 011  ₽
Апрель 2018 46,53-55,1 м2 2 580 600 - 3 581 500  ₽ ~61 011  ₽
Март 2018 46,53-55,1 м2 2 580 600 - 3 581 500  ₽ ~61 011  ₽
Февраль 2018 46,53-55,1 м2 2 580 600 - 3 581 500  ₽ ~61 011  ₽  -1.88%
Январь 2018 46,53-55,1 м2 2 698 740 - 3 581 500  ₽ ~62 181  ₽
Декабрь 2017 46,53-55,1 м2 2 698 740 - 3 581 500  ₽ ~62 181  ₽  6.14%
Ноябрь 2017 46,53-55,1 м2 2 335 500 - 3 581 500  ₽ ~58 584  ₽
Октябрь 2017 46,53-55,1 м2 2 335 500 - 3 581 500  ₽ ~58 584  ₽
Сентябрь 2017 46,53-55,1 м2 2 335 500 - 3 581 500  ₽ ~58 584  ₽
Август 2017 46,53-55,1 м2 2 335 500 - 3 581 500  ₽ ~58 584  ₽  -7.83%
Июль 2017 46,53-55,1 м2 2 838 330 - 3 581 500  ₽ ~63 563  ₽
Июнь 2017 46,53-55,1 м2 2 838 330 - 3 581 500  ₽ ~63 563  ₽  1.09%
Май 2017 46,53-55,1 м2 2 784 821 - 3 565 800  ₽ ~62 877  ₽  3.38%
Апрель 2017 46,53-56,6 м2 2 638 251 - 3 565 800  ₽ ~60 824  ₽
Март 2017 46,53-56,6 м2 2 638 251 - 3 565 800  ₽ ~60 824  ₽  -4.51%
Февраль 2017 46,53-56,6 м2 2 931 390 - 3 565 800  ₽ ~63 698  ₽
Январь 2017 46,53-56,6 м2 2 931 390 - 3 565 800  ₽ ~63 698  ₽  4.72%
Декабрь 2016 46,53-56,6 м2 2 638 251 - 3 565 800  ₽ ~60 824  ₽
Ноябрь 2016 46,53-56,6 м2 2 638 251 - 3 565 800  ₽ ~60 824  ₽  -4.51%
Октябрь 2016 46,53-56,6 м2 2 931 390 - 3 565 800  ₽ ~63 698  ₽
2-комнатная
Уточнить наличие
67,58-67,58 м2
Продано

2-комнатные Квартиры 67,58-67,58 м2

Месяц / Год Площадь Стоимость Цена м2 Динамика цены м2
Август 2018 67,58-67,58 м2 4 054 800 - 4 054 800  ₽ ~60 519  ₽
Июль 2018 67,58-67,58 м2 4 054 800 - 4 054 800  ₽ ~60 519  ₽
Июнь 2018 67,58-67,58 м2 4 054 800 - 4 054 800  ₽ ~60 519  ₽  7.77%
Май 2018 56,44-75,13 м2 3 224 490 - 4 132 150  ₽ ~56 158  ₽
Апрель 2018 56,44-75,13 м2 3 224 490 - 4 132 150  ₽ ~56 158  ₽  -9.18%
Март 2018 56,44-75,13 м2 3 217 080 - 4 883 450  ₽ ~61 836  ₽
Февраль 2018 56,44-75,13 м2 3 217 080 - 4 883 450  ₽ ~61 836  ₽  -0.69%
Январь 2018 56,44-75,13 м2 3 273 520 - 4 883 450  ₽ ~62 267  ₽
Декабрь 2017 56,44-75,13 м2 3 273 520 - 4 883 450  ₽ ~62 267  ₽  6.16%
Ноябрь 2017 56,44-75,13 м2 3 273 520 - 4 410 250  ₽ ~58 655  ₽
Октябрь 2017 56,44-75,13 м2 3 273 520 - 4 410 250  ₽ ~58 655  ₽
Сентябрь 2017 56,44-75,13 м2 3 273 520 - 4 410 250  ₽ ~58 655  ₽  7.53%
Август 2017 56,57-85,04 м2 3 281 060 - 4 410 250  ₽ ~54 548  ₽  -15.32%
Июль 2017 56,44-85,04 м2 3 555 720 - 5 527 600  ₽ ~64 421  ₽
Июнь 2017 56,44-85,04 м2 3 555 720 - 5 527 600  ₽ ~64 421  ₽  8.46%
Май 2017 56,44-85,04 м2 3 442 840 - 4 932 320  ₽ ~59 398  ₽  7.8%
Апрель 2017 67,58-85,04 м2 3 442 840 - 4 932 320  ₽ ~55 100  ₽
Март 2017 67,58-85,04 м2 3 442 840 - 4 932 320  ₽ ~55 100  ₽  -8.54%
Февраль 2017 67,58-85,04 м2 4 054 800 - 5 102 400  ₽ ~60 245  ₽
Январь 2017 67,58-85,04 м2 4 054 800 - 5 102 400  ₽ ~60 245  ₽  4.35%
Декабрь 2016 64,81-85,04 м2 3 499 740 - 5 102 400  ₽ ~57 732  ₽
Ноябрь 2016 64,81-85,04 м2 3 499 740 - 5 102 400  ₽ ~57 732  ₽  -4.32%
Октябрь 2016 64,81-85,04 м2 3 888 600 - 5 102 400  ₽ ~60 342  ₽
3-комнатная
Уточнить наличие
92,6-92,6 м2
Продано

3-комнатные Квартиры 92,6-92,6 м2

Месяц / Год Площадь Стоимость Цена м2 Динамика цены м2
Август 2019 92,6-92,6 м2 6 950 000 - 6 950 000  ₽ ~75 543  ₽
Июль 2019 92,6-92,6 м2 6 950 000 - 6 950 000  ₽ ~75 543  ₽
Июнь 2019 92,6-92,6 м2 6 950 000 - 6 950 000  ₽ ~75 543  ₽  -3.46%
Май 2019 92,6-92,6 м2 6 990 000 - 7 408 000  ₽ ~78 250  ₽
Апрель 2019 92,6-92,6 м2 6 990 000 - 7 408 000  ₽ ~78 250  ₽
Март 2019 92,6-92,6 м2 6 990 000 - 7 408 000  ₽ ~78 250  ₽  55.65%
Март 2018 92,5-92,5 м2 4 625 000 - 4 625 000  ₽ ~50 272  ₽
Февраль 2018 92,5-92,5 м2 4 625 000 - 4 625 000  ₽ ~50 272  ₽  -18.62%
Январь 2018 92,32-92,5 м2 5 354 560 - 6 012 500  ₽ ~61 778  ₽
Декабрь 2017 92,32-92,5 м2 5 354 560 - 6 012 500  ₽ ~61 778  ₽  12.61%
Ноябрь 2017 92,32-92,5 м2 4 081 920 - 6 012 500  ₽ ~54 861  ₽
Октябрь 2017 92,32-92,5 м2 4 081 920 - 6 012 500  ₽ ~54 861  ₽
Сентябрь 2017 92,32-92,5 м2 4 081 920 - 6 012 500  ₽ ~54 861  ₽  -2.95%
Август 2017 85,04-85,04 м2 4 081 920 - 5 527 600  ₽ ~56 527  ₽  -8.06%
Июль 2017 85,04-92,5 м2 5 354 560 - 5 527 600  ₽ ~61 481  ₽
Июнь 2017 85,04-92,5 м2 5 354 560 - 5 527 600  ₽ ~61 481  ₽  11.29%
Май 2017 92,32-92,5 м2 5 077 600 - 5 087 500  ₽ ~55 245  ₽
Апрель 2017 92,32-92,5 м2 5 077 600 - 5 087 500  ₽ ~55 245  ₽
Март 2017 92,32-92,5 м2 5 077 600 - 5 087 500  ₽ ~55 245  ₽  -5.17%
Февраль 2017 92,32-92,5 м2 5 354 560 - 5 365 000  ₽ ~58 258  ₽
Январь 2017 92,32-92,5 м2 5 354 560 - 5 365 000  ₽ ~58 258  ₽  5.23%
Декабрь 2016 92,32-92,54 м2 4 819 104 - 5 367 320  ₽ ~55 361  ₽
Ноябрь 2016 92,32-92,54 м2 4 819 104 - 5 367 320  ₽ ~55 361  ₽  -4.99%
Октябрь 2016 92,32-92,54 м2 5 354 560 - 5 367 320  ₽ ~58 271  ₽

Воздушный контроль. ЖК Первомайский

12.10.2017
5 мин.
 Квартирный контроль
Последняя цена:
Застройщик ГК "Крон-М"ГК "Крон-М"
8 (499) 348-17-29

Сроки сдачи ЖК «Первомайский»

Сдан1
Кор. 1
Монолит 17 этажей
 
I кв. 2019
Сдан
7 фотографий

Ход строительства ЖК «Первомайский»  Август 2019

Ход строительства ЖК Первомайский, вид с ул. Первомайской, фото 1
ЖК Первомайский, вид с ул. Первомайской, фото 1 Квартирный контроль
Ход строительства ЖК Первомайский, вид с ул. Первомайской, фото 2
ЖК Первомайский, вид с ул. Первомайской, фото 2 Квартирный контроль
Ход строительства ЖК Первомайский, вид с ул. Первомайской, фото 3
ЖК Первомайский, вид с ул. Первомайской, фото 3 Квартирный контроль
Ход строительства ЖК Первомайский, вид с ул. Первомайской, фото 4
ЖК Первомайский, вид с ул. Первомайской, фото 4 Квартирный контроль
Ход строительства ЖК Первомайский, вид с ул. Первомайской, фото 5
ЖК Первомайский, вид с ул. Первомайской, фото 5 Квартирный контроль
Ход строительства ЖК Первомайский, вид с ул. Первомайской, фото 6
ЖК Первомайский, вид с ул. Первомайской, фото 6 Квартирный контроль
Ход строительства ЖК Первомайский, вид с ул. Первомайской, фото 7
ЖК Первомайский, вид с ул. Первомайской, фото 7 Квартирный контроль

Обсуждение ЖК «Первомайский»

Комментарии для сайта Cackle
Последняя цена:
Застройщик ГК "Крон-М"ГК "Крон-М"
8 (499) 348-17-29