Поиск
Например:Бунинские луга
Регион
 Квартирный контрольМосква
 Квартирный контрольМосква
 Квартирный контрольНовая Москва
 Квартирный контрольПодмосковье
Округ, район, метро
Расположение
Количество комнат
Студия
1
2
3
4+
Стоимость
домлн.
Все параметры
Показать все новостройки
+Сбросить все фильтры

Квартирный контрольЖК "Spires" (Спайрс)

Объект сдан. Всё распродано.
Последняя цена:
Застройщик ТЕКТА GROUPТЕКТА GROUP
8 (499) 348-17-29
МоскваЗападный АООчаково-Матвеевское

м. Минская
9 мин. на авто


Класс дома: Элит-класс
Технология: Монолит
Этажность: 13 - 26
 Квартирный контроль
Обновлено: 13.12.2022
Размер шрифта-+

Что Вам нужно знать о ЖК "Spires" (Спайрс)

О ПРОЕКТЕ

Появление на свет ЖК Spires в очередной раз подтверждает известный тезис – в смутные времена в нашей стране наибольший спрос имеют продукты, относящиеся к премиальному классу. Tekta Group ставит знак равенства между квартирой в своих «городских резиденциях» и предметами запредельной роскоши, что, учитывая все «плюшки» нового ЖК на Нежинской улице в ЗАО Москвы, выглядит вполне оправданно. Итак, на территории размером 27 000 кв. м к IV кварталу 2021 года тандем структурных подразделений компании Текта Групп в лице застройщика, ООО «Тервуд», и генподрядчика, ООО «Эспика», завершили строительство жилого комплекса, состоящего из трех отдельно стоящих корпусов и корпуса таунхаусов. В находящимся здесь же Доме ветеранов кино, при сохранении им собственной территории, планируется разместить мини-отель и медицинский центр.

к. 1: 18-26 этажей (2 секции) 221 квартир
к. 2: 25 этажей (1 секция) 183 квартиры
к. 3: 22 этажа (1 секция) 139 квартир
Урбан Виллы: 3 этажа (5 секций), 5 вилл.

Первые этажи высотных корпусов будут частично отданы под коммерческие нужды, для чего тут выделено 15 отдельных помещений. Общий для корпусов №№1 и 2 трехуровневый подземный паркинг рассчитан на 514 автомобиля и 263 кладовых, под корпусом №3 размечено 164 м/м и 75 кладовых помещений.

Вентилируемые фасады будут облицованы натуральным камнем и архитектурным бетоном.

Судя по компьютерным рендерам, входные группы должны получить отделку высокого уровня исполнения.

ПЛАНИРОВКИ

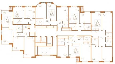
Как можно заприметить, тенденция к увеличению количества квартир на этаже не обошла стороной и премиум-класс жилья. Конечно, в ЖК Spires нашлись совсем малонаселенные лестничные клетки, на которых расположены две-три квартиры (см. 2 секцию корпуса №1), но на т.н. типовых этажах квартир будет заметно больше.

Для первой секции корпуса №1 нормой считается нахождение на этаже шести квартир,

в корпусе №2 их будет восемь,

а в корпусе №3 на стандартной лестничной клетке окажется семь квартир:

В корпусе №1 в первой секции устанавливаются 3 лифта (1 грузопассажирский и 2 пассажирских), во второй секции 2 лифта (1 грузопассажирский и 1 пассажирских), а в корпусах №№ 2 и 3 будет по 3 лифта (1 грузопассажирский и 2 пассажирских).

Охарактеризовать целевую аудиторию покупателей однокомнатных квартир в данном сегменте будет непросто, но, тем не менее, такие варианты здесь представлены в достаточном количестве, но без каких-либо планировочных изысков:

Двухкомнатные квартиры «Спайреса», в большинстве своем, относятся к классу евро-двушек и, откровенно говоря, своими метражами воображение не потрясают:

Классических двухкомнатных вариантов здесь представлено совсем немного, а выбор планировок сводится к одному шаблону (12-13-метровые комнаты в премиуме выглядят несколько непривычно):

В диапазоне 70-75 кв. м уютно устроились популярные евро-трешки:

Классические трехкомнатные квартиры разнообразием планировок не отличаются, но и отсутствием функционала не страдают:

Выше планки в 100 квадратов начинаются действительно премиальные трешки, скрывающиеся на официальном сайте ЖК Spires под маской четырехкомнатных евро-квартир:

Ну а самый многометровый премиум (если не считать евро 4-комнатные квартиры с террасами) можно найти в пятикомнатных квартирах все с той же приставкой «евро»:

Есть в комплексе и совсем уж уникальный для наших широт продукт. Отдельно стоящие сблокированные трехэтажные квартиры с дополнительным подземным этажом застройщик называет виллами. Этим 400-метровых хоромах не хватает, разве что, собственного лифта и подземного паркинга – как-то негоже респектабельным господам оставлять свои роскошные авто возле входа или спускаться за ними в паркинг соседней высотки.

Квартиры будут передаваться покупателям без какой-либо отделки с трассировкой в один блок, ограничивающей размеры санузлов, высота «чернового» потолка составит 3.1 м. Установленные металлические двери «от застройщика» замены не потребуют. В качестве корзин для внешних блоков кондиционеров выступают установленные в недрах фасада скрытые ниши, оборудованные системой отвода конденсата. Панорамные пластиковые окна предоставлены белорусским производителем ALUTECH. Привычных балконов и лоджий в комплексе нет, но в некоторых квартирах предусмотрены французские балконы и настоящие террасы.

СХЕМА ПОКУПКИ

Офис продаж Текты расположен по адресу Нежинская улица, дом 5 строение 1. Покупателей здесь готовы обслужить ежедневно с 9:00 до 21:00.

При покупке квартиры покупатель заплатит дополнительные 60 000 рублей, в которые оценивается постановка брони (при 100% форме оплаты на 3 дня, при покупке с использованием ипотечного кредита – на 5 дней) и услуги по сопровождению государственной регистрации договора участия в долевом строительстве с последующим оформлением права собственности. После подписания ДДУ в течение 3 дней покупатель должен положить деньги за квартиру на эскроу счет в Сбербанке РФ. 

Ипотеку предоставляют банки: 

 

Новостройки рядом с ЖК "Spires" (Спайрс)

Квартирный контроль
  • 1 комн.  от
    15 500 000 ₽
    от  64,75 м2
    2 комн.  от
    18 535 250 ₽
    от  75,5 м2
    3 комн.  от
    30 223 350 ₽
    от  142,9 м2
    4 комн.  от
    36 137 400 ₽
    от  159,9 м2
Класс жилья
Бизнес-класс

Компания

ЖК "Мосфильмовский"

Объект сдан. Всё распродано.
1.63 км
ЖК "Мосфильмовский" Квартирный контроль
  • 1 комн. 
    Продано
    2 комн. 
    Продано
    3 комн. 
    Продано
    4 комн. 
    Продано
Ближайшее метро
Класс жилья
Бизнес-класс

Компания

ЖК "Огни"

Объект сдан. Всё распродано.
1.86 км
ЖК "Огни" Квартирный контроль
  • Студия 
    Продано
    1 комн. 
    Продано
    2 комн. 
    Продано
    3 комн. 
    Продано
    4 комн. 
    Продано
Ближайшее метро
Класс жилья
Комфорт-класс

Компания

  • Студия  от
    16 800 000 ₽
    от  26,3 м2
    1 комн.  от
    24 940 000 ₽
    от  43,5 м2
    2 комн.  от
    36 290 000 ₽
    от  67 м2
    3 комн.  от
    48 090 000 ₽
    от  68,9 м2
    4 комн.  от
    73 240 000 ₽
    от  115,6 м2
Ближайшее метро
Класс жилья
Премиум-класс

Компания

  • Студия  от
    21 100 000 ₽
    от  35 м2
    1 комн.  от
    23 600 000 ₽
    от  40 м2
    2 комн.  от
    30 900 000 ₽
    от  59 м2
    3 комн.  от
    46 400 000 ₽
    от  92 м2
    4 комн.  от
    59 400 000 ₽
    от  122 м2
Ближайшее метро
Класс жилья
Бизнес-класс

Компания

ЖК "Will Towers" (Вилл Тауэрс)

В работе 6 корпусов: 2024, 2025. 
1.33 км
ЖК "Will Towers" (Вилл Тауэрс) Квартирный контроль
  • Студия  от
    13 779 130 ₽
    от  25,5 м2
    1 комн.  от
    20 976 560 ₽
    от  47,3 м2
    2 комн.  от
    28 365 370 ₽
    от  71 м2
    3 комн.  от
    38 314 931 ₽
    от  97,6 м2
    4 комн.  от
    50 873 576 ₽
    от  137,3 м2
Ближайшее метро
Класс жилья
Бизнес-класс

Компания

ЖК "West Tower" (Вест Тауэрс)

Объект сдан.
1.43 км
ЖК "West Tower" (Вест Тауэрс) Квартирный контроль
  • Студия  от
    10 965 200 ₽
    от  34 м2
    2 комн.  от
    16 567 200 ₽
    от  47 м2
    3 комн.  от
    22 464 000 ₽
    от  72 м2
    4 комн.  от
    96 600 000 ₽
    от  193 м2
Ближайшее метро
Класс жилья
Бизнес-класс

Компания

ЖК "Рябиновый парк"

Продажи не начались.
1.78 км
ЖК "Рябиновый парк" Квартирный контроль
Студия
Уточняется
1-комн
Уточняется
2-комн
Уточняется
3-комн
Уточняется
4-комн
Уточняется
Ближайшее метро
Класс жилья
Комфорт-класс

Компания

ЖК «New Form Аминьевское» (Нью Форм Аминьевское)

В работе 2 корпуса: 2024. 
1.73 км
ЖК «New Form Аминьевское» (Нью Форм Аминьевское) Квартирный контроль
  • Студия  от
    3 800 000 ₽
    от  12 м2
Класс жилья
Комфорт-класс

Компания

ЖК "Spires" (Спайрс) на карте

Адрес: г. Москва, ул. Нежинская, вл. 5
Квартирный контроль
Проверено 01-04-2022

Цены в ЖК "Spires" (Спайрс)

1-комнатная
Уточнить наличие
38,4-38,4 м2
Продано

1-комнатные Квартиры 38,4-38,4 м2

Месяц / Год Площадь Стоимость Цена м2 Динамика цены м2
Февраль 2022 38,4-38,4 м2 22 679 040 - 22 679 040  ₽ ~596 817  ₽  7.01%
Декабрь 2021 38,4-38,4 м2 21 192 960 - 21 192 960  ₽ ~557 709  ₽  -6.52%
Ноябрь 2021 38,4-39,1 м2 20 878 080 - 25 059 190  ₽ ~596 588  ₽  3.73%
Октябрь 2021 38,4-43,6 м2 20 878 080 - 25 708 500  ₽ ~575 143  ₽  5.57%
Сентябрь 2021 38,4-43,6 м2 20 375 040 - 23 753 280  ₽ ~544 794  ₽  -0.19%
Август 2021 43,6-43,6 м2 23 469 880 - 23 469 880  ₽ ~545 811  ₽  5.13%
Май 2021 38,4-43,5 м2 18 505 440 - 23 549 050  ₽ ~519 191  ₽  38.65%
Август 2020 38,2-53,2 м2 14 202 760 - 19 872 580  ₽ ~374 454  ₽  -0.49%
Июль 2020 38,2-53,2 м2 14 202 760 - 20 042 080  ₽ ~376 317  ₽
Июнь 2020 38,2-53,2 м2 14 202 760 - 20 042 080  ₽ ~376 317  ₽  -8.6%
Май 2020 38,2-43.5 м2 14 202 760 - 19 351 640  ₽ ~411 710  ₽
Апрель 2020 38,2-43.5 м2 14 202 760 - 19 351 640  ₽ ~411 710  ₽  -9.21%
Март 2020 38,3-43.5 м2 14 822 100 - 22 137 150  ₽ ~453 488  ₽
Февраль 2020 38,3-43.5 м2 14 822 100 - 22 137 150  ₽ ~453 488  ₽  -3.28%
Январь 2020 38,2-43.5 м2 14 546 560 - 23 664 340  ₽ ~468 845  ₽
Декабрь 2019 38,2-43.5 м2 14 546 560 - 23 664 340  ₽ ~468 845  ₽
Ноябрь 2019 38,2-43.5 м2 14 546 560 - 23 664 340  ₽ ~468 845  ₽
Октябрь 2019 38,2-43.5 м2 14 546 560 - 23 664 340  ₽ ~468 845  ₽  19.24%
Сентябрь 2019 38,2-53,5 м2 14 546 560 - 21 234 710  ₽ ~393 201  ₽
Август 2019 38,2-53,5 м2 14 546 560 - 21 234 710  ₽ ~393 201  ₽  6.8%
Июль 2019 38,2-53,5 м2 14 126 360 - 19 377 260  ₽ ~368 172  ₽  3.6%
Июнь 2019 38,2-53,5 м2 14 015 580 - 18 324 580  ₽ ~355 386  ₽
Май 2019 38,2-53,5 м2 14 015 580 - 18 324 580  ₽ ~355 386  ₽  9.04%
Апрель 2019 38,2-53,5 м2 10 054 240 - 19 604 640  ₽ ~325 922  ₽
Март 2019 38,2-53,5 м2 10 054 240 - 19 604 640  ₽ ~325 922  ₽  5.48%
Февраль 2019 38,2-53,5 м2 10 004 580 - 18 113 550  ₽ ~308 990  ₽  7.52%
Январь 2019 38-52,5 м2 9 952 200 - 15 912 750  ₽ ~287 388  ₽
Декабрь 2018 38-52,5 м2 9 952 200 - 15 912 750  ₽ ~287 388  ₽
Ноябрь 2018 38-52,5 м2 9 952 200 - 15 912 750  ₽ ~287 388  ₽  7.23%
Октябрь 2018 38-52,5 м2 8 789 400 - 15 331 440  ₽ ~268 009  ₽
Сентябрь 2018 38-52,5 м2 8 789 400 - 15 331 440  ₽ ~268 009  ₽
Август 2018 38-52,5 м2 8 789 400 - 15 331 440  ₽ ~268 009  ₽
Июль 2018 38-52,5 м2 8 789 400 - 15 331 440  ₽ ~268 009  ₽
2-комнатная
Уточнить наличие
60,6-60,7 м2
Продано

2-комнатные Квартиры 60,6-60,7 м2

Месяц / Год Площадь Стоимость Цена м2 Динамика цены м2
Март 2022 60,6-60,7 м2 38 444 640 - 40 571 880  ₽ ~658 471  ₽  7.47%
Февраль 2022 53,1-61,9 м2 29 396 160 - 40 451 880  ₽ ~612 702  ₽  0.89%
Декабрь 2021 45,4-61,9 м2 24 443 520 - 39 928 460  ₽ ~607 283  ₽  0.54%
Ноябрь 2021 45,6-60,7 м2 24 081 600 - 39 339 670  ₽ ~604 012  ₽
Октябрь 2021 45,6-60,7 м2 24 081 600 - 39 339 670  ₽ ~604 012  ₽  3.08%
Сентябрь 2021 45,6-60,7 м2 23 053 020 - 38 471 660  ₽ ~585 949  ₽  4.15%
Август 2021 46,3-60,7 м2 22 761 080 - 36 875 250  ₽ ~562 607  ₽  7.3%
Май 2021 44,9-84,6 м2 20 662 980 - 46 453 860  ₽ ~524 350  ₽  34.08%
Август 2020 59,3-76,1 м2 22 041 810 - 30 751 500  ₽ ~391 062  ₽  4.86%
Июль 2020 59,3-76,1 м2 20 304 150 - 30 040 140  ₽ ~372 921  ₽
Июнь 2020 59,3-76,1 м2 20 304 150 - 30 040 140  ₽ ~372 921  ₽  -4.51%
Май 2020 44.9-62 м2 14 810 250 - 26 939 000  ₽ ~390 545  ₽
Апрель 2020 44.9-62 м2 14 810 250 - 26 939 000  ₽ ~390 545  ₽  -24.25%
Март 2020 44.9-84,6 м2 14 778 400 - 51 682 140  ₽ ~515 598  ₽
Февраль 2020 44.9-84,6 м2 14 778 400 - 51 682 140  ₽ ~515 598  ₽  0.89%
Январь 2020 44.9-84,6 м2 14 364 350 - 51 512 940  ₽ ~511 073  ₽
Декабрь 2019 44.9-84,6 м2 14 364 350 - 51 512 940  ₽ ~511 073  ₽
Ноябрь 2019 44.9-84,6 м2 14 364 350 - 51 512 940  ₽ ~511 073  ₽
Октябрь 2019 44.9-84,6 м2 14 364 350 - 51 512 940  ₽ ~511 073  ₽  6.15%
Сентябрь 2019 59,3-84,6 м2 20 795 820 - 48 052 800  ₽ ~481 459  ₽
Август 2019 59,3-84,6 м2 20 795 820 - 48 052 800  ₽ ~481 459  ₽  0.71%
Июль 2019 59,3-84,6 м2 20 310 220 - 48 052 800  ₽ ~478 063  ₽  0.62%
Июнь 2019 59,3-84,6 м2 20 134 190 - 47 807 460  ₽ ~475 116  ₽
Май 2019 59,3-84,6 м2 20 134 190 - 47 807 460  ₽ ~475 116  ₽  8.01%
Апрель 2019 59,3-84,6 м2 15 618 110 - 47 282 940  ₽ ~439 867  ₽
Март 2019 59,3-84,6 м2 15 618 110 - 47 282 940  ₽ ~439 867  ₽  -2.38%
Февраль 2019 59,3-83,1 м2 18 306 390 - 45 675 540  ₽ ~450 577  ₽  13.48%
Январь 2019 58,7-83,1 м2 14 502 200 - 41 483 520  ₽ ~397 062  ₽
Декабрь 2018 58,7-83,1 м2 14 502 200 - 41 483 520  ₽ ~397 062  ₽
Ноябрь 2018 58,7-83,1 м2 14 502 200 - 41 483 520  ₽ ~397 062  ₽  23.29%
Октябрь 2018 58,7-83,8 м2 13 481 500 - 31 927 800  ₽ ~322 052  ₽
Сентябрь 2018 58,7-83,8 м2 13 481 500 - 31 927 800  ₽ ~322 052  ₽
Август 2018 58,7-83,8 м2 13 481 500 - 31 927 800  ₽ ~322 052  ₽
Июль 2018 58,7-83,8 м2 13 481 500 - 31 927 800  ₽ ~322 052  ₽
3-комнатная
Уточнить наличие
73,8-75,3 м2
Продано

3-комнатные Квартиры 73,8-75,3 м2

Месяц / Год Площадь Стоимость Цена м2 Динамика цены м2
Декабрь 2021 73,8-75,3 м2 44 539 950 - 45 977 400  ₽ ~611 604  ₽  8.15%
Ноябрь 2021 73,8-88,4 м2 43 884 840 - 47 161 400  ₽ ~565 505  ₽  -8.91%
Октябрь 2021 74,6-88,4 м2 41 798 380 - 58 777 160  ₽ ~620 837  ₽  9.12%
Сентябрь 2021 74,6-88,4 м2 40 880 800 - 51 286 220  ₽ ~568 932  ₽  6.93%
Август 2021 84,9-88,4 м2 45 596 720 - 45 913 920  ₽ ~532 039  ₽  -7.5%
Май 2021 70,1-91,1 м2 39 694 010 - 52 910 880  ₽ ~575 186  ₽  45.15%
Август 2020 84,4-138,2 м2 30 384 000 - 57 587 940  ₽ ~396 270  ₽  1.59%
Июль 2020 84,4-138,2 м2 30 058 840 - 56 537 620  ₽ ~390 074  ₽
Июнь 2020 84,4-138,2 м2 30 058 840 - 56 537 620  ₽ ~390 074  ₽  -5.56%
Май 2020 70-91.1 м2 22 750 000 - 43 787 970  ₽ ~413 023  ₽
Апрель 2020 70-91.1 м2 22 750 000 - 43 787 970  ₽ ~413 023  ₽  -9.88%
Март 2020 70-91.1 м2 22 288 000 - 51 540 710  ₽ ~458 279  ₽
Февраль 2020 70-91.1 м2 22 288 000 - 51 540 710  ₽ ~458 279  ₽  1.25%
Январь 2020 70-91.1 м2 21 973 000 - 50 943 120  ₽ ~452 614  ₽
Декабрь 2019 70-91.1 м2 21 973 000 - 50 943 120  ₽ ~452 614  ₽
Ноябрь 2019 70-91.1 м2 21 973 000 - 50 943 120  ₽ ~452 614  ₽
Октябрь 2019 70-91.1 м2 21 973 000 - 50 943 120  ₽ ~452 614  ₽  9.84%
Сентябрь 2019 84,4-105,5 м2 27 987 040 - 49 894 280  ₽ ~412 070  ₽
Август 2019 84,4-105,5 м2 27 987 040 - 49 894 280  ₽ ~412 070  ₽  3.24%
Июль 2019 84,4-105,5 м2 28 908 320 - 46 529 720  ₽ ~399 143  ₽  3.2%
Июнь 2019 84,4-105,5 м2 26 813 880 - 46 284 960  ₽ ~386 766  ₽
Май 2019 84,4-105,5 м2 26 813 880 - 46 284 960  ₽ ~386 766  ₽  7.9%
Апрель 2019 84,4-105,5 м2 23 809 240 - 43 938 640  ₽ ~358 454  ₽
Март 2019 84,4-105,5 м2 23 809 240 - 43 938 640  ₽ ~358 454  ₽  0.5%
Февраль 2019 84,4-105,5 м2 24 965 120 - 42 444 760  ₽ ~356 666  ₽  11.01%
Январь 2019 83,9-104,3 м2 22 199 940 - 37 880 850  ₽ ~321 288  ₽
Декабрь 2018 83,9-104,3 м2 22 199 940 - 37 880 850  ₽ ~321 288  ₽
Ноябрь 2018 83,9-104,3 м2 22 199 940 - 37 880 850  ₽ ~321 288  ₽  -7.41%
Октябрь 2018 83,9-107,5 м2 19 489 970 - 46 440 000  ₽ ~347 000  ₽
Сентябрь 2018 83,9-107,5 м2 19 489 970 - 46 440 000  ₽ ~347 000  ₽
Август 2018 83,9-107,5 м2 19 489 970 - 46 440 000  ₽ ~347 000  ₽
Июль 2018 83,9-107,5 м2 19 489 970 - 46 440 000  ₽ ~347 000  ₽
4-комнатная
Уточнить наличие
279,6-279,6 м2
Продано

4-комнатные Квартиры 279,6-279,6 м2

Месяц / Год Площадь Стоимость Цена м2 Динамика цены м2
Февраль 2022 279,6-279,6 м2 107 170 680 - 107 170 680  ₽ ~384 124  ₽  -11.48%
Декабрь 2021 97,3-279,6 м2 55 988 510 - 107 170 680  ₽ ~433 934  ₽  0.51%
Ноябрь 2021 97,2-279,6 м2 55 157 850 - 107 170 680  ₽ ~431 725  ₽
Октябрь 2021 97,3-279,6 м2 55 157 850 - 107 170 680  ₽ ~431 725  ₽  2.07%
Сентябрь 2021 97,3-279,6 м2 53 972 640 - 105 062 115  ₽ ~422 965  ₽  0.41%
Август 2021 97,3-279,6 м2 53 324 320 - 105 053 240  ₽ ~421 217  ₽  -20.27%
Май 2021 93,4-104,4 м2 47 213 700 - 56 856 240  ₽ ~528 274  ₽  18.44%
Август 2020 93,4-279,1 м2 46 501 440 - 119 426 890  ₽ ~446 044  ₽  0.07%
Июль 2020 93,4-279,1 м2 46 388 160 - 119 426 890  ₽ ~445 739  ₽
Июнь 2020 93,4-279,1 м2 46 388 160 - 119 426 890  ₽ ~445 739  ₽  9.9%
Май 2020 93.9-279,1 м2 31 813 320 - 119 426 890  ₽ ~405 578  ₽
Апрель 2020 93.9-279,1 м2 31 813 320 - 119 426 890  ₽ ~405 578  ₽  -10.59%
Март 2020 93.4-279,1 м2 33 287 550 - 135 642 600  ₽ ~453 626  ₽
Февраль 2020 93.4-279,1 м2 33 287 550 - 135 642 600  ₽ ~453 626  ₽  0.96%
Январь 2020 93.4-279,1 м2 32 245 260 - 135 084 400  ₽ ~449 328  ₽
Декабрь 2019 93.4-279,1 м2 32 245 260 - 135 084 400  ₽ ~449 328  ₽
Ноябрь 2019 93.4-279,1 м2 32 245 260 - 135 084 400  ₽ ~449 328  ₽
Октябрь 2019 93.4-279,1 м2 32 245 260 - 135 084 400  ₽ ~449 328  ₽  5.15%
Сентябрь 2019 138,2-279,1 м2 44 448 240 - 133 744 720  ₽ ~427 321  ₽
Август 2019 138,2-279,1 м2 44 448 240 - 133 744 720  ₽ ~427 321  ₽  4.17%
Июль 2019 138,2-279,1 м2 42 890 640 - 128 162 720  ₽ ~410 200  ₽  0.72%
Июнь 2019 138,2-279,1 м2 42 480 000 - 127 353 330  ₽ ~407 274  ₽
Май 2019 138,2-279,1 м2 42 480 000 - 127 353 330  ₽ ~407 274  ₽  3.09%
Апрель 2019 138,2-279,1 м2 37 977 120 - 126 767 220  ₽ ~395 070  ₽
Март 2019 138,2-279,1 м2 37 977 120 - 126 767 220  ₽ ~395 070  ₽  0.11%
Февраль 2019 138,2-279,1 м2 37 793 040 - 126 767 220  ₽ ~394 629  ₽  -7.75%
Январь 2019 134,9-168,4 м2 43 936 930 - 85 260 000  ₽ ~427 804  ₽
Декабрь 2018 134,9-168,4 м2 43 936 930 - 85 260 000  ₽ ~427 804  ₽
Ноябрь 2018 134,9-168,4 м2 43 936 930 - 85 260 000  ₽ ~427 804  ₽  26.47%
Октябрь 2018 134,9-168,4 м2 39 471 740 - 62 686 400  ₽ ~338 272  ₽
Сентябрь 2018 134,9-168,4 м2 39 471 740 - 62 686 400  ₽ ~338 272  ₽
Август 2018 134,9-168,4 м2 39 471 740 - 62 686 400  ₽ ~338 272  ₽
Июль 2018 134,9-168,4 м2 39 471 740 - 62 686 400  ₽ ~338 272  ₽
Последняя цена:
Застройщик ТЕКТА GROUPТЕКТА GROUP
8 (499) 348-17-29

Сроки сдачи ЖК "Spires" (Спайрс)

Сдан3
Кор. 1
Монолит 13-26 этажей
 
IV кв. 2021
Сдан
Кор. 2
Монолит 23-25 этажей
 
IV кв. 2021
Сдан
Кор. 3
Монолит 20-22 этажей
 
IV кв. 2021
Сдан
3 фотографий

Ход строительства ЖК "Spires" (Спайрс)  Июль 2021

Ход строительства ЖК Spires
ЖК Spires  Квартирный контроль
Ход строительства ЖК Spires
ЖК Spires  Квартирный контроль
Ход строительства ЖК Spires
ЖК Spires  Квартирный контроль

Документация ЖК "Spires" (Спайрс)

  • Проектная декларация
    к. 1, к. 2, к. 3
    Дата: 03.10.2019
    374.3 Кб
    Разрешение на строительство
    к. 1, к. 2, к. 3
    Дата: 13.04.2018
    1.1 MБ
    Шаблон ДДУ
    к. 1, к. 2, к. 3
    Дата:
    5 MБ
    Разрешение на ввод в эксплуатацию
    к. 1, к. 2, к. 3
    Дата: 19.11.2021
    1.1 MБ

Обсуждение ЖК "Spires" (Спайрс)

Комментарии для сайта Cackle
Последняя цена:
Застройщик ТЕКТА GROUPТЕКТА GROUP
8 (499) 348-17-29