ЖК «Саларьево парк» от ведущего российского девелопера ГК ПИК – один из самых крупных жилых комплексов, расположенных на территории Новой Москвы. По проекту к 2026 году на земельном участке общей площадью 198 га будет построено 54 многоэтажных жилых дома и дополнительно 20 корпусов для размещения объектов инфраструктуры. Новостройку, население которой будет достигать 50 тысяч человек, вполне можно классифицировать как небольшой город. А по площади она вполне может конкурировать с карликовыми европейскими государствами, например, с княжеством Монако. Когда оказываешься на территории комплекса, невольно чувствуешь себя этаким Незнайкой в Солнечном городе – малышом-коротышом, задирающим голову, чтобы охватить взглядом устремленные в небо яркие разноцветные фасады многоэтажных корпусов.
Отправляемся в путь
Добраться до «Саларьево Парк» весьма просто, так как он расположен всего в 3,5 километрах от МКАД. Удобно проехать по Киевскому шоссе, съехав с МКАД в районе 45 километра. Пока что в районе ЖК поворота налево нет, нужно двигаться до поселка Мешково и там развернуться в обратную сторону. Такой путь займет около 30 минут.
В районе деревни Саларьево строится новая развязка и после ее ввода в эксплуатацию время поездки от МКАД до комплекса сократится в два раза.
Как вариант можно проехать через деревню Румянцево и далее двигаться к цели по улице Адмирала Корнилова.
Можно также добираться до места на рейсовом автобусе – мимо станции метро «Саларьево» пролегают десятки автобусных маршрутов Москвы и Подмосковья. А если говорить о метро, то станция «Саларьево» расположена всего в шести минутах ходьбы от восточной оконечности жилого комплекса.
Что строят
Адрес объекта: Москва, Новомосковский административный округ, поселение Московский, деревня Саларьево. Грандиозное строительство разбито на 14 очередей. В первых четырех возводится 16 жилых корпусов, паркинг, три детских сада и школа со стадионом. Всего будет построено 12 детских садов, в них смогут получать дошкольное образование 2700 ребятишек. В шести школах будут обучаться 6250 учеников.
Дома переменной этажности, от 15 до 25 уровней, относятся к классу «комфорт». Они строятся по монолитно-панельной технологии. У россиян сложилось довольно прохладное отношение к «панелям», но здесь, по уверению менеджеров офиса продаж, применяются совсем не такие панели, как раньше. Их толщина 40 сантиметров, они изготавливаются по специальной технологии на собственных заводах застройщика и обладают повышенными потребительскими свойствами. Например, у таких панелей класс энергоэффективности А+. Это значит, что в квартирах зимой будет тепло, летом прохладно и в любое время года очень тихо. Панели привозят на стройку уже готовые к сборке, с облицовкой и застекленными оконными рамами. Так что монтажникам остается только закрепить изделия на монолитном каркасе. Причем соединить так, чтобы зазор между панелями составлял не более 1,2 сантиметра.
Такая технология позволяет строить здания очень быстро, и жилой комплекс растет, как на дрожжах. Если посмотреть наш репортаж из Саларьево двухгодичной давности, то на фотографиях будет видно лишь чистое поле да три монолитных каркаса. А сегодня под крышу подведено 18 корпусов и три из них заселены. Для отделки фасадов применяется не облицовочный кирпич, а керамическая плитка фирмы Керамо Марацци. Она яркая, долговечная и десятилетиями не меняет цвет.
Входные группы сквозные, расположены на уровне земли. В подъездах не будет ни ступеней, ни пандусов, что удобно для мамочек с колясками и маломобильных граждан. Консьержей не будет, но подъезды оборудуют системой видеонаблюдения. Входные двери стеклянные, вход в подъезд через систему безопасности. Открывать двери можно не только по чип-карте, но и с помощью мобильного телефона через специальное приложение. Высота потолков в квартирах (в «чистовом» виде, с учетом натяжных потолков) 2,63 метра.
Первые этажи нежилые, 40% тамошних помещений (с высотой потолков 3,4) будут отданы коммерческим структурам. Запроектированы и балконы, но далеко не во всех квартирах. Зато под каждым окном будет закреплен блок для кондиционера. В 15-этажных зданиях установят по два или три современных скоростных бесшумных лифта, в 25-этажных зданиях – по четыре. Лифты будут опускаться на минус первый этаж, где разместятся парковки и кладовки.
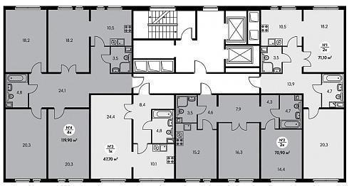
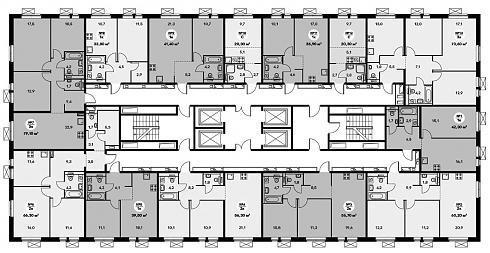
По форме корпуса различаются. Есть «башни» в 25 этажей, а есть блочные конструкции переменной этажности, состоящие из двух Г-образных корпусов, повернутых друг к другу.
Под блочными конструкциями построят подземные парковки, каждая примерно на 300 мест. Кроме подземных парковок, запроектированы бесплатные наземные стоянки по внешним периметрам зданий. Внутренние дворы будут недоступны для машин, там разместятся детские и спортивные площадки, прогулочные зоны.
Квартиры продаются только с отделкой, причем отделка предлагается в одном единственном варианте.
На полу плитка фирмы Керамо Марацци и влагостойкий прочный ламинат 32 класса износостойкости. На стенах – обои под покраску на флизелиновой основе, выдержанные в нейтральных тонах, но, если цвет не нравится, можно их перекрашивать до восьми раз. Окна из немецкого профиля КБЕ с тонированными двухкамерными стеклопакетами. За счет увеличенного размера (до 30% дополнительной площади остекления) они дают максимальную освещенность.
Межкомнатные двери, розетки, выключатели, сантехника российского производства в ванной и туалете, полотенцесушитель, смеситель – все будет установлено застройщиком. В распоряжении собственника окажутся также размещенные в общем коридоре счетчики на воду и электричество, оборудованные системой автоматической передачи данных. В стенах проложены каналы для подключения кондиционера, причем конденсат направляется в систему канализации, а не на балкон соседа снизу. При желании можно даже купить отделанную квартиру с мебелью, при заселении просто получить ключи и сразу начать новую счастливую жизнь.
Некоторые параметры корпусов первых четырех очередей отражены в таблице.
Таблица 1.
|
№№ очереди строительства |
№№ корпусов |
Тип корпуса |
Количество этажей |
Количество секций |
Количество квартир |
Срок сдачи |
|
Первая очередь |
1 |
башня |
25 + 1 подз. |
1 |
216 |
Введен в эксплуатацию |
|
|
2 |
башня |
25 + 1 подз. |
1 |
192 |
Введен в эксплуатацию |
|
|
3 |
башня |
25 + 1 подз. |
1 |
192 |
Введен в эксплуатацию |
|
|
4 |
блок |
15 - 25 + 1 подз. |
3 |
495 |
Введен в эксплуатацию |
|
|
5 |
блок |
15 - 25 + 1 подз. |
5 |
629 |
Введен в эксплуатацию |
|
|
Детский сад |
|
|
|
220 мест |
3 квартал 2019 г. |
|
Вторая очередь |
7/1, 7/2 |
блок |
25 + 1 подз. |
8 |
1134 |
1 квартал 2019 г. |
|
|
7/3 Подземный паркинг |
|
|
|
287 машиномест |
1 квартал 2019 г. |
|
|
8 |
башня |
25 + 1 подз. |
1 |
216 |
Введен в эксплуатацию |
|
|
9 |
башня |
25 + 1 подз. |
1 |
192 |
Введен в эксплуатацию |
|
|
Детский сад |
|
|
|
220 машиномест |
3 квартал 2020 г. |
|
Третья очередь |
13/1 |
блок |
15 - 25 + 1 подз. |
5 |
507 |
31.12.2020 г. |
|
|
13/2 |
блок |
15 + 1 подз. |
3 |
219 |
31.12.2020 г. |
|
|
13/3 |
блок |
15 - 25 + 1 подз. |
12 |
1106 |
31.12.2020 г. |
|
|
13/4 Подземный паркинг |
|
|
|
264 машиноместа |
31.12.2020 г. |
|
|
Детский сад |
|
|
|
220 мест |
3 квартал 2020 г. |
|
|
Школа |
|
|
|
1150 мест |
3 квартал 2019 г. |
|
4 очередь |
14/1 |
блок |
15 - 25 + 1 подз. |
5 |
600 |
30.06.2020 г. |
|
|
14/2 |
блок |
15 - 25 + 1 подз. |
5 |
539 |
30.06.2020 г. |
|
|
14/3 Подземный паркинг |
|
|
|
242 машиноместа |
30.06.2020 г. |
|
|
15 |
башня |
24 + 1 подз. |
1 |
258 |
11.05.2020 г. |
|
|
16 |
башня |
24 + 1 подз. |
1 |
257 |
11.05.2020 г. |
В корпусах, сдача которых в эксплуатацию намечена на более поздние сроки, ведутся продажи квартир.
Таблица 2.
|
№№ Корпуса |
Количество этажей |
Количество секций |
Количество квартир |
Срок ввода в эксплуатацию |
|
18/1 |
15 - 25 + 1 подз. |
4 |
675 |
3 квартал 2020 г. |
|
18/2 |
15 - 25 + 1 подз. |
6 |
602 |
3 квартал 2020 г. |
|
19 |
25 + 1 подз. |
1 |
264 |
3 квартал 2020 г. |
|
21 |
25 + 1 подз. |
1 |
312 |
4 квартал 2020 г. |
|
22 |
24 + 1 |
1 |
276 |
4 квартал 2020 г. |
|
23 |
24 + 1 |
1 |
299 |
4 квартал 2020 г. |
|
24 |
16 +1 |
1 |
201 |
1 квартал 2021 г. |
|
25 |
16 +1 |
1 |
155 |
1 квартал 2021 г. |
|
27 |
9 - 15 +1 |
10 |
674 |
4 квартал 2021 г. |
|
28 |
16 +1 |
1 |
135 |
4 квартал 2021 г. |
|
38 |
15 + 1 |
1 |
126 |
4 квартал 2021 г. |
|
39 |
15 + 1 |
1 |
126 |
4 квартал 2021 г. |
В уже сданных домах квартиры на первичном рынке не продаются.
Застройщик
Застройщиком проекта выступает ООО «ТИРОН», основанное в 2016 году. Учредителем данной компании является публичное акционерное общество «Группа компаний ПИК». И если название компании-застройщика никому ни о чем не говорит, то название компании-учредителя сразу подтверждает качество и жизнеспособность всего проекта. Крупнейший в России федеральный застройщик, ГК ПИК, работающий на рынке с 1994 года, только в прошлом, 2018 году построил почти два миллиона квадратных метров жилья. В данный момент компания реализует в московском регионе более 50 проектов, среди которых такие жилые комплексы, как «Митино Парк», «Путилково», «Ильинские луга», «Левобережный», «Солнцево парк» и другие. И ни разу не было обманутых дольщиков или срывов сроков сдачи объектов в эксплуатацию. Надежность компании подтверждается еще и тем, что ГК ПИК на уровне правительства РФ признана одним из системообразующих предприятий российской экономики.
Строительные участки в кадастровом квартале 77:17:0110205 принадлежат застройщику, ООО «ТИРОН», на праве собственности. Для обеспечения выполнения обязательств перед дольщиками застройщик в соответствии с законодательством РФ осуществляет отчисления на специальный счет в банке ВТБ.
Сайт
Полное представление о комплексе, включая цены на квартиры, дает официальная страница ЖК «Саларьево парк» на сайте ПИКа: https://www.pik.ru/sp .
Главная страница сайта посвящена главной теме – подбору жилья. Прямо отсюда можно одним кликом запустить механизм поиска квартиры по любому параметру – стоимости, этажности, комнатности, площади. А можно найти жилую площадь своей мечты, кликая мышкой по изображению корпусов на генеральном плане. В целом жилой комплекс описан на сайте достаточно подробно. Приметные места поблизости, инфраструктура, условия покупки, детальные и всегда «свежие» фото- и видеоотчеты, внешний вид квартир с отделкой в фотографиях и в виде панорамы и даже сообщения от уже поселившихся в комплексе жителей. А если нужны совсем тонкие детали, вроде марки бетона или кадастрового номера участка, можно зайти в раздел «Документация» (в самом низу главной страницы) и там найдется все необходимое.
Сколько стоит
На продажу выставлены студии, одно-, двух-, трех- и четырехкомнатные квартиры. Стоимость их приведена в таблице ниже.
Таблица 3.
|
Тип квартиры |
Площадь (кв. м) |
Стоимость квартиры (руб.) |
Стоимость одного квадратного метра (руб.) |
|
Студия |
20,3 – 31,7 |
3 852 940 – 5 398 510 |
189 900 – 170 300 |
|
Однокомнатная |
33,8 – 47,1 |
5 262 660 – 7 949 774 |
155 700 – 168 785 |
|
Двухкомнатная |
47,8 – 70,6 |
6 947 040 – 7 801 300 |
145 336 – 110 500 |
|
Трехкомнатная |
67,6 – 110,7 |
10 058 880 – 13 803 800 |
148 800 – 124 696 |
|
Четырехкомнатная |
92,0 – 119,9 |
10 837 600 – 13 800 490 |
117 800 – 115 100 |
Таким образом, средняя цена за квадратный метр в ЖК «Саларьево парк» равна 144 642 рубля.
Тут уместно будет еще раз вспомнить о нашей статье от февраля 2017 года http://kvartirny-control.ru/osoboe-mnenie/zhk-salarevo-park-yarkie-kraski-svetlogo-buduwego/ и посмотреть, какие цены на квартиры были тогда.
Таблица 4.
|
Квартира |
Площадь в кв.метрах |
Цена в млн руб. |
Стоимость одного квадратного метра в руб. |
|
Студия |
19,3 – 28,5 |
2,6 – 3,5 |
134 715 – 122 807 |
|
Однокомнатная |
34,0 – 46,2 |
3,9 – 5,08 |
114 706 – 109 957 |
|
Двухкомнатная |
52,2 – 69,2 |
5,2 – 6,6 |
99 617 – 95 376 |
|
Трехкомнатная |
67,0 – 92,1 |
6,4 – 8,3 |
95 522 – 90 119 |
|
Четырехкомнатная |
90,0 – 90,9 |
8,6 – 8,96 |
95 555 – 98 570 |
Из таблицы видно, что средняя цена на квадратный метр в ЖК была равна 105 694 рублей. За два года она выросла почти на 38%, что указывает на высокую инвестиционную привлекательность проекта.
Теперь посмотрим на ценник других застройщиков Новой Москвы. Ведь эта территория – лакомый кусочек для девелоперов и конкуренция здесь очень высокая. В таблице приведена стоимость двухкомнатных квартир с отделкой в строящихся домах.
Таблица 5.
|
Название ЖК |
Локация |
Площадь квартиры (кв. м) |
Стоимость квартиры (руб.) |
Стоимость одного квадратного метра (руб.) |
Срок сдачи |
|
«Филатов луг» |
Д. Картмазово |
52,98 |
6 863 271 |
129 545 |
4 квартал 2019 г. |
|
«Остафьево» |
С. Остафьево |
58,38 |
6 002 772 |
102 822 |
1 квартал 2020 г. |
|
«Бунинские луга» |
П. Сосенское |
52,2 |
6 694 180 |
128 240 |
2 квартал 2020 г. |
|
«Первый Московский город - парк» |
Г. Московский |
56,3 |
6 492 132 |
115 313 |
2 квартал 2021 г. |
|
«Кленовые аллеи» |
Д. Ватутинки |
51,62 |
5 169 743 |
100 150 |
4 квартал 2020 г. |
|
«Москва А101» |
П. Коммунарка |
56,5 |
7 504 198 |
132 818 |
2 квартал 2020 г. |
|
«Новые Ватутинки Центральный» |
Д. Ватутинки |
56,5 |
5 706 500 |
101 000 |
3 квартал 2020 г. |
|
«Переделкино Ближнее» |
Д. Рассказовка |
58,9 |
7 270 902 |
123 445 |
2 квартал 2021 г. |
|
«Саларьево парк» |
Д. Саларьево |
60,2 |
7 874 160 |
130 800 |
4 квартал 2020 г. |
Как видно, цена квадрата в рассматриваемом комплексе одна из самых высоких, дороже только жилье в ЖК «Москва А 101». И, тем не менее, квартиры, по информации офиса продаж, хорошо раскупаются.
Кроме квартиры, в «Саларьево Парк» можно купить машиноместо в подземном паркинге и кладовую в подвале. Размер машиноместа (просто открытая площадка, как в торговых центрах) около 15 кв. м, стоимость от 780 до 840 тысяч рублей. Размер кладовых от 4,3 до 7,2 кв. м, стоимость от 315 до 447 тысяч рублей.
Что продают
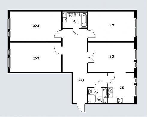
Проектировщиками разработано более 50 вариантов планировочных решений, можно выбрать жилье на любой вкус и кошелек. Помещения варьируются по метражу, количеству окон, могут быть линейными, угловыми или «распашными», с большой или маленькой кухней. В крупных «двушках» и во всех «трешках» запроектировано по два санузла, можно найти двух- и трехкомнатные квартиры с кладовками и гардеробными. Разница в площади однотипных квартир может достигать весьма существенных значений, особенно в секторе трехкомнатных квартир.
Таблица 6.
|
Тип квартиры |
Площадь (кв. м) |
Разница в площади (кв. м) |
|
Студия |
19,3 – 28,5 |
9,2 |
|
Однокомнатная |
34,0 – 47,1 |
13,1 |
|
Двухкомнатная |
52,2 – 69,2 |
17 |
|
Трехкомнатная |
67,0 – 92,1 |
25,1 |
|
Четырехкомнатная |
90,0 – 90,9 |
0,9 |
Формат встречается как классический, так и европейский, когда одна из комнат объединена с кухней-столовой. В одной секции на этаже может быть от 3 до 13 квартир.
Студия – она и в Африке студия, только-только можно поместиться одному человеку. Но в данном ЖК они все же «укрупненные», не менее 19 кв. м, а есть большие, не уступающие по размеру маленькой «однушке». Как, например, студия общей площадью 31,7 кв. м с прихожей 6,8 кв. м.
Однокомнатные квартиры, даже самые маленькие, все-таки дают возможность установить в совмещенном санузле стиральную машину и обладают десятиметровыми кухнями. А в тех, что попросторнее, есть спальни в два раза больше, чем кухни.
В большинстве двухкомнатных квартир запроектировано по два санузла, причем в некоторых случаях оба полноценные, с той только разницей, что в одном из них вместо ванны может быть установлена душевая кабина. Еще одна особенность – большие входные зоны.
В просторных «трешках» мы находим не только два полноценных санузла, но и кладовые-гардеробные, иногда достигающие внушительных размеров (6,7 кв. м).
Четырехкомнатные квартиры вполне соответствуют представлениям рядового горожанина о комфортной жизни. Кухня от 10 до 12 кв. м, коридор от 10 до 20 метров (можно покататься на велосипеде), два полноценных санузла, одна или две кладовых. И четыре спальни от 10 до 20 метров. Ну правда же, простор!
Способы покупки
Продажа квартир происходит по договору долевого участия, который составляется в офисе продаж. Все в полном соответствии с федеральным законом №214. Клиентам, приобретающим квартиры на условиях 100% оплаты или в ипотеку, застройщик предлагает совершить сделку в электронном формате и за это еще дает скидку в 2% от стоимости жилья. Эта технология придает сделке дополнительное ускорение и обеспечивает ее безопасность.
Выбранную квартиру можно забронировать, в офисе продаж на 3 дня и бесплатно, а по интернету на 10 дней, но за 5 тысяч рублей. Какие-либо акции, дополнительные скидки или рассрочка платежа для покупателей отсутствуют. А зачем, если продажи и так идут успешно?
Ипотеку можно оформить в любом из 13 банков-партнеров группы компаний ПИК. На сайте есть ипотечный калькулятор, который поможет сделать необходимые расчеты. А еще есть менеджеры отдела продаж, которые помогут подобрать программу кредитования и даже выполнят часть работы по оформлению покупки удаленно, если вы живете в другом городе.
Все этапы выбора квартиры и оформления сделки пройдут под опекой внимательных и хорошо подготовленных менеджеров по продажам. Их легко найти в офисе, а его легко найти рядом со ст. м. Саларьево. Темное двухэтажное здание в ста метрах от станции, ориентир – огромный логотип новостройки на земле и эмблемы компании ПИК на флагштоках.
При необходимости можно обратиться по телефону к менеджерам офиса продаж, и они закажут для вас такси. Или заказать его самостоятельно, через специальную форму на сайте новостройки. Все расходы за счет застройщика.
Инфраструктура
Инфраструктуры в жилом комплексе никакой нет пока. Разве что маленький продуктовый магазинчик в одном из заселенных корпусов. Но это временно! С недели на неделю ожидается открытие гигантского торгового комплекса «Саларис» у метро «Саларьево» (на его территории будет работать около 300 торговых точек), составной частью которого станет магазин сети «Глобус». В третьем квартале 2019 года ожидается ввод в эксплуатацию муниципальных детского сада и школы. Метро в шаговой доступности – расстояние от центра комплекса до уже действующей станции и готовящейся ко вводу в эксплуатацию станции «Филатов Луг» чуть более километра. А по красной ветке метро можно за 40 минут доехать до Красной площади.
В районе деревни Саларьево строится воздушный переезд через Киевское шоссе, по которому дорога в Москву и из Москвы должна стать максимально удобной и комфортной.
Уже в конце апреля на территории, прилегающей к жилому комплексу, начнет работать крупнейший в Москве транспортно-пересадочный узел, который условно называют западным вокзалом столицы. Отсюда можно будет на различных видах транспорта уехать в любой район южной, юго-западной и западной части московского региона. А для приезжающих из области оборудуют автопарковку на шесть тысяч мест.
В дополнение к зеленым зонам, беговым дорожкам и велосипедным трекам, спроектированным на территории ЖК специалистами из Великобритании, рядом с жилыми домами раскинулся заповедный Ульяновский лесопарк, а чуть дальше – знаменитый Тропаревский лесопарк. В момент получения ключей дворовая территория будет уже оформлена и облагорожена – это принцип застройщика.
Подведем итог
Итак, у нового ЖК очень много плюсов. Один из главных – московская прописка. Далее принимаем во внимание отличную транспортную доступность, захватывающие инфраструктурные перспективы, связанные с открытием в шаговой доступности крупных ТРЦ и ТПУ. Яркая современная архитектура, обилие планировочных решений и высокое качество строительства тоже включаем в число аргументов «за» покупку квартиры в данном ЖК. Тем более что застройщик надежный и срыва сроков строительства ни в коем случае не допустит. Цена да, не маленькая, выше, чем у конкурентов, но и капитализация столь удачного проекта весьма высока. Если ваша цель – инвестиции, вам сюда.
Но, как и на Солнце, на репутации нашего солнечного города образовалось одно весьма заметное пятно – это полигон бытовых отходов, расположенный в нескольких сотнях метров от жилых корпусов. Полигон, крупнейший в московском регионе (по некоторым суждениям даже крупнейший в Европе), начал официально принимать отходы жизнедеятельности Москвы в 1993 году. До этого 30 лет там функционировала стихийная свалка мусора. В 2007 году он был закрыт и законсервирован, а в 2017-2019 гг. – рекультивирован, и сейчас представляет собой гигантское сооружение высотой 70 метров и площадью 59 га, в котором захоронено 15 миллионов тонн бытового мусора. Что делать с таким «богатством»?
Группа ПИК, получившая возможность строить жилье на этой территории, уверяет, что никакой опасности полигон уже не представляет и даже взяла на себя ответственность за его дальнейшую судьбу. Специалисты компании считают, что смогут не только полностью «обезвредить» полигон, но и вновь ввести эту территорию в оборот, как произошло, например, с гигантской свалкой близ японского города Саппоро, которая стала смотровой площадкой.
Независимые экологи придерживаются другой точки зрения и считают, что законсервированный полигон ТБО по-прежнему является источником опасности для здоровья людей.
На страницах форумов, посвященных ЖК «Саларьево Парк», можно найти мнения тех людей, которые готовы мириться с неприятным соседством.
И тех, кто считает покупку жилья в таком месте неприемлемой.
Есть еще один неблагоприятный фактор – прямо над крышами домов уходят в небо самолеты, покидающие аэропорт Внуково. Низко летят, однако...
Так жить или не жить в солнечном городе под названием «Саларьево Парк»? Вот в чем вопрос...
Автор: Андрей Петров
Специально для Квартирного контроля

Обсуждение ЖК «Саларьево парк»: солнечный город в трех километрах от МКАД