Ближнее Подмосковье (можно даже сказать, ближайшее) старается не отставать от столицы по темпам роста жилищного строительства. Старые, застроенные еще по советским стандартам, а порой и довоенной постройки микрорайоны стремительно меняют свой облик и превращаются в современные городские пространства. Так происходит и в поселке БЗРИ в Одинцово, построенном в 40-х годах прошлого века для рабочих Баковского завода резиновых изделий. Думается, россиянам старшего поколения хорошо знакома продукция этого предприятия, известная в свое время под брендом «изделие №2». Сейчас на месте этого поселка возводится жилой комплекс бизнес-класса «Одинцово Сити». О том, как идет строительство и чем примечателен жилой комплекс, можно узнать из данной статьи.
Как проехать
Адрес новостройки Московская область, город Одинцово, микрорайон 6-6а, улица БЗРИ, корпус 23.
От 55 километра МКАД на автомобиле по Можайскому и Минскому шоссе до новостройки можно доехать за 18 минут (расстояние 10,4 километра). А от ЖК до центра Москвы, например, до музея изобразительных искусств имени Пушкина – за полчаса (расстояние 30 километров).
Удобно пользоваться общественным транспортом, в частности, электричкой. Путь на электричке от Белорусского вокзала до платформы Баковка займет 34 минуты.
Что строят
Жилой комплекс бизнес-класса будет состоять из одного трехсекционного двадцатипяти этажного корпуса, который построят на земельном участке площадью 0,70гектара по монолитной технологии. Класс энергоэффективности зданий С (повышенный).
«Жилой многоэтажный дом с первым нежилым этажом, со встроенно-пристроенными офисно-бытовыми помещениями и подземной автостоянкой, и объектами инженерной инфраструктуры. 1 этап строительства» - так обозначается новостройка на шершавом языке строительной документации.
Строить будут в две очереди.
• 1й этап строительства – блок-секции №1 и 2
• 2й этап строительства – блок-секция №3
Такая очередность связана с тем, что рядом со строительной площадкой продолжает функционировать трехэтажное жилое здание. Только после его расселения можно будет приступить к строительству секции № 3.По проекту в доме смогут проживать 487 жителей (из расчета 28 кв.м. на человека).
На первом этаже запроектированы специальные помещения, предназначенные для работы коммерческих структур площадью от 91 до 240 кв.м. и с высотой потолков до 4 метров.
На продажу выставлены квартиры в двух секциях дома № 23, строительство которого началось в августе 2024 года.
Фасад здания оснастят вентилируемой навесной системой с облицовкой фиброцементными панелями. Железобетонные стены толщиной 30 сантиметров утеплят минераловатными плитами толщиной 15 сантиметров. Стены цокольного этажа украсят керамогранитной плиткой. В каждой квартире запроектирована лоджия или балкон.
Входная группа спроектирована с двумя входами на уровне земли, лифтовым холлом, колясочной и помещением для консъержа.
В строящемся здании будет пока только 2 секции. На одном этаже в секции запроектировано 6 квартир(на первом этаже – 7 квартир) и три лифта, один грузопассажирский и два грузовых грузоподъемностью 400, 600 и 1000 килограмм. Лифты смогут спускаться в помещение подземной автопарковки.
Подземная парковка рассчитана на 47 машиномест. Но это большие «семейные» места площадью 33 кв.м., так что реально там можно будет хранить почти 100 автомобилей. Кроме того, еще 34 машиноместа будет оборудовано на территории ЖК и 7 машиномест вне ее.
Дворовая территория будет благоустроена посредством разбивки газонов и высадки живых изгородей, посадки высокорослых деревьев. Для детей оборудуют площадки с резиновым покрытием и игровыми элементами, для взрослого населения – площадки для отдыха с твердым покрытием и скамейками. Для сбора мусора установят 4 контейнера на специальной площадке с металлическим ограждением площадью 21 кв.м.
Высота потолков в квартирах 2,7 метра. Квартиры сдаются в свободной планировке без отделки и без межкомнатных перегородок. Построят только небольшие технические стены внутри квартиры, внутри которых пролягут внутренние коммуникации. Нигде не будет ни бетонной стяжки пола, ни гидроизоляции. Но зато будут утепленные металлические двери типа «Бастион», двухкамерные окна и балконные двери в профиле ПВХ, однокамерные окна в алюминиевом профиле на балконах и лоджиях. Окна большие, 180 на 180 сантиметров, с установкой подоконника в 60 сантиметров от пола. Тепловой режим обеспечат биметаллические радиаторы с горизонтальной разводкой со встроенными терморегуляторами.
Территория будет огорожена, за порядком будет наблюдать система «Безопасный регион», для чего будет установлено около 100 видеокамер. Управлять домами будет какая-либо компания из Одинцово.
В таблице приведены технические данные на дом № 23
Таблица 1.
|
№№ корпуса |
Кол-во этажей |
Площ. застр. (кв. м.) |
Кол.секц.
|
Кол-во квартир/ маш.мест/нежил.пом |
Дата выдачи разр. на стр-во |
Окончание срока действия разр. на стр-во |
Предполагаемая дата введения в эксплуатац. |
|
23 |
25 + 1 подз |
1414 |
2 |
306/47/4 |
30.06.2018 г.
|
30.08.2020 г. продлено в 2024 г.до 30.08.2025 г.
|
3 квартал 2026 г. |
Общая площадь проекта 25904 кв.м.
В настоящее время на доме ведутся монолитные работы на уровне третьего этажа. Выдача ключей намечена на 31 января 2027 года.
Кто строит
Застройщик ООО «СЗ АТЛАНТИС СКАЙ СИТИ», созданное в августе 2007 года. До подачи проектной декларации на данный объект никакого другого жилищного строительства за три предыдущих года компания не вела. Строительство ведется на земельном участке с кадастровым номером 50:20:0030106:3620, который находится у застройщика на правах аренды.
Первоначально, в 2018 году, разрешение на строительство выдавалось ООО «ЮАССТРОЙ», срок его действия заканчивался в 2020 году. Однако, реализация проекта пошла не по плану и в 2024 году прежний застройщик был заменен, а разрешение на строительство продлено до 2025 года.
Земельный участок ограничен:
• на севере – Можайским шоссе и территорией детского сада
• на западе – территорией жилого микрорайона № 7-7А и территорией гаражно-строительного кооператива «Строитель»
• на юго-западе – территорией Баковского кладбища
• на востоке – сложившимися границами индивидуальной жилой застройки поселка Мамоново и внутриквартальными дорогами
• на юге – границей отвода Белорусского направления Московской железной дороги и одноэтажными боксовыми гаражами
Ранее на территории строительства, то есть, вюго-западной части жилого микрорайона №6-6А,находились частные дома и частные гаражи. Речь идет о поселке БЗРИ (Баковского завода резиновых изделий), построенном в 1936 году. В соответствии с программой развития территории все строения в поселке подлежат сносу, а проложенные в земле коммунальные сети – демонтажу.
Территория строительства частично расположена в границах полос воздушных подходов аэродромов «Внуково» и «Остафьево».В пределах участка с южной стороны проходит часть санитарно-защитной зоны железной дороги.
Учредитель застройщика гражданка РФ Матыкина Наталия Владимировна.
Сведений о нарушениях сроков строительства со стороны застройщика нет, поскольку отсутствуют дома, введенные в эксплуатацию за последние три года.
Генеральный подрядчик ООО «РЕМСАР».
Сайт
В Интернете размещен официальный сайт жилого комплекса «Одинцово Сити».
На сайте доступна информация о расположении объекта, его окружении, инфраструктуре, стоимости и размере квартир, способах оплаты. Можно увидеть фотографии с места строительства, познакомиться со строительной документацией.
По запросу можно получить из офиса продаж презентацию по проекту.
Дополнительную информацию можно получить на странице дома на сайте наш.дом.рф и в социальной сети в Контакте.
Офис продаж
Офис продаж расположен непосредственно на строительной площадке по адресу Московская область, город Одинцово, улица БЗРИ, дом 3. По факту это не дом, а передвижной строительный балок с несколькими столами для общения специалистов по продажам с посетителями. Время работы офиса с 9 до 21 часа ежедневно.
Сколько стоит
В таблице ниже представлены цены на квартиры.
Таблица 2.
|
Тип квартиры |
Площадь (кв. м) |
Стоимость квартиры (руб.) |
Стоимость одного квадратного метра (руб.) |
|
Студия |
25,3 – 35,9 |
6 525 033 – 9 184 438 |
257 906-255 834 |
|
Однокомнатная |
35,9 – 40,8 |
8 516 085 – 10 027 741 |
237 216-245 777 |
|
Двухкомнатная |
46,7 – 81,5 |
11 006 593 – 18 834 424 |
235 687-231 097 |
|
Трехкомнатная |
78,5 – 81,9 |
18 347 210 – 18 509 097 |
233722-225 996 |
Средняя цена квадратного метра здесь составляет 240 404 рубля.
Для сравнения приведем цены на двухкомнатные квартиры в строящихся ЖК классов «бизнес» и «комфорт плюс» с отделкой и без в Московской области.
Таблица 3.
|
Название ЖК |
Локация |
Площ. квартир (кв. м.) |
Стоимость квартир (руб.) |
Стоимость одного кв.м. (руб.) |
Отделка |
Срок сдачи |
|
«Резиденции Сколково» |
П. Заречье |
58,8 |
17 855 109 |
303 658 |
Есть |
3 квартал 2026 г. |
|
«Одинцово Сити» |
Г. Одинцово |
46,7 |
11 006 593 |
235 687 |
Нет |
3 квартал 2026 г. |
|
«Союзный» |
Г. Одинцово |
54,7 |
12 634 000 |
230 968 |
Нет |
2 квартал 2026 г. |
|
«1-й Шереметьевский» |
Г. Химки |
44,4 |
10 063 260 |
226 650 |
Есть |
4 квартал 2026 г. |
|
«1-й Южный» |
Д. Тарычево |
44,3 |
9 349 505 |
211 050 |
Есть |
1 квартал 2027 г. |
|
«1-й Химкинский» |
Г. Химки |
45,1 |
8 766 358 |
194 376 |
Есть |
4 квартал 2026 г. |
|
«Рига Хиллс» |
Д. Бузланово |
63,56 |
11 132 000 |
175 141 |
Нет |
4 квартал 2026 г. |
В данном рейтинге проект «сити» выступает в качестве одного из лидеров.
Планировки
На продажу выставлены квартиры-студии, одно-, двух-, и трехкомнатные квартиры площадью от 25,3 до 81,9кв. м.
• студий - 108
• 1-комнатных квартир- 96
• 2-комнатных квартир - 54
• 3-комнатных квартир - 48
План 19 этажа
Планировка студии 25,3
Небольшая студия с входной зоной площадью 5,3 кв.м., совмещенным санузлом площадью 2,8 кв.м. и общей комнатой площадью 16,0 кв.м. Условный комфорт (максимум для одного человека) дополняет балкон площадью 4,1 кв.м.
Планировка студии 29,1
Более просторная студия с входной зоной площадью 6,8 кв.м., совмещенным санузлом площадью 3,6 кв.м., общей комнатой площадью 17,5 кв.м. и лоджией площадью 4,1 кв.м.
Планировка студии 35,9
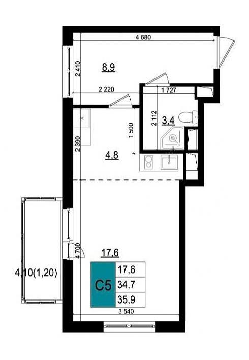
Просторное (в масштабе студии) помещение, с входной зоной площадью 8,9 кв.м, совмещенным санузлом площадью 3,4 кв.м., универсальным помещением площадью 22,4 кв.м. и лоджией площадью 4,1 кв.м.
Планировка однокомнатной квартиры 35,9
Небольшая однокомнатная квартира с входной зоной площадью 4,0 кв.м., совмещенным санузлом площадью 3,6 кв.м., кухней площадью 8,2 кв.м. и спальней площадью 16,7 кв.м., дополненная лоджией площадью 6,8 кв.м.
Планировка однокомнатной квартиры 37,9
Однокомнатная квартира с входной зоной площадью 4,2 кв.м., двумя санузлами с площадью 1,2 и 2,5 кв.м., кухней площадью 8,4 кв.м. и спальней площадью 19,9 кв.м. Комфорт усиливает лоджия площадью 3,4 кв.м.
Планировка однокомнатной квартиры 40,8
Чуть большая по размеру «однушка» с входной зоной площадью 2,9 кв.м., совмещенным санузлом площадью 2,9 кв.м., кухней площадью 9,8 кв.м. и спальней площадью 23,3 кв.м. Имеется лоджия площадью 3,8 кв.м.
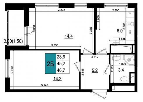
Планировка двухкомнатной квартиры 46,7
Двухкомнатная квартира с угловым расположением окон снабжена входной зоной площадью 5,2 кв.м., совмещенным санузлом площадью 3,4кв.м., кухней площадью 8,0 кв.м. и двумя спальнями площадью 14,2 и 14,4 кв.м. Есть лоджия 3,0 кв.м.
Планировка двухкомнатной квартиры 64,2
Угловая двухкомнатная квартира с просторным холлом площадью 9,2 кв.м., двумя санузлами площадью 1,1 и 2,9 кв.м., кухней площадью 11,5 кв.м. и двумя спальнями площадью 13,4 и 23,8 кв.м. Балкона два, площадь обоих 4,1 кв.м. В одной из спален два окна.
Планировка двухкомнатной квартиры 81,5
Просторная двухкомнатная квартира с входной зоной площадью 9,2 кв.м., тремя санузлами с площадью помещения от 1,3 до 3,8 кв.м., кухней площадью 25,1 кв.м. и двумя спальнями площадью 20,2 и 20,5 кв.м. Одна из спален с двумя окнами, расположение окон двухстороннее. А балконов нет совсем.
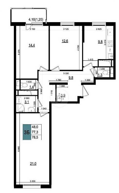
Планировка трехкомнатной квартиры 78,5
Трехкомнатная квартира с входной зоной площадью 9,8 кв.м., тремя санузлами площадью 1,3 до 3,1 кв.м., кухней площадью 9,8 кв.м. и тремя спальнями площадью 12,6, 14,4 и 21,0 кв.м. Есть балкон площадью 4,1 кв.м. Расположение окон двухстороннее.
Планировка трехкомнатной квартиры 81,0
Большая трехкомнатная квартира с входной зоной 11,7 кв.м., тремя санузлами площадью от 1,4 до 3,3 кв.м., кухней площадью 9,6 кв.м. и тремя спальнями площадью 12,8, 14,9 и 24,3 кв.м, а также балконом площадью 4,1 кв.м. Окна расположены на две стороны, есть спальня с двумя окнами.
Планировка трехкомнатной квартиры 81,9
Просторная трехкомнатная квартира для большой семьи с входной зоной площадью 11,8 кв.м., тремя санузлами площадью от 1,3 до 4,8 кв.м., кухней площадью 10,6 кв.м. и тремя спальнями площадью 12,8, 14,9 и 24,3 кв.м. Окна расположены на две стороны, есть помещения с двумя окнами.
Как купить
Продажа квартир ведется по правилам, изложенным в федеральном законе №214-ФЗ. После заключения договора долевого участия покупатель размещает денежные средства на специальном счете эскроу в Сбербанке РФ. Деньги покупателя поступят в распоряжение застройщика только после получения им разрешения на ввод дома в эксплуатацию.
Договор долевого участия необходимо будет зарегистрировать в Росреестре, эту обязанность берет на себя застройщик. Но за свои хлопоты попросит с покупателя 30 000 рублей.
Застройщик допускает различные виды оплаты: полностью собственными средствами, с привлечением ипотечного кредита, в рассрочку. Если покупателю понадобится ипотечный кредит, застройщик поможет выбрать оптимальный вариант. Возможно, даже без банковской комиссии, которая достигает порой 16%. Например:
• Траншевая ипотека (с минимальными взносами до сдачи дома в эксплуатацию)
• Семейная ипотека (льготные условия для семей с детьми)
• IT-ипотека (для сотрудников аккредитованных it-компаний)
• Cубсидированная ипотека (со специальными условиями от застройщика)
Если покупатель надумает бронировать выбранную квартиру, то пожалуйста, но в качестве платы будет насчитан 1% стоимости квартиры. Впрочем, эта сумма возвратная и будет учтена при окончательном расчете.
Действует система скидок, в рамках которой можно получить уменьшение цены квартиры в размере от 2 до 7%. Но только на квартиры, купленные при 100% оплате или по ипотеке без господдержки.
Доступна рассрочка платежа. Если сразу внести более 10% стоимости квартиры, рассрочка будет беспроцентная. А если внести 20%, то можно установить фиксированный ежемесячный платеж до ввода дома в эксплуатацию, а перед вводом перейти на ипотеку.
Инфраструктура
Непосредственно в микрорайоне, где ведется строительство, богатства инфраструктуры пока не наблюдается. Но утвержденным проектом развития территории предусмотрено строительство школ с бассейнами на 1100 и 1375 мест, детских дошкольных учреждений на 760 и 320 мест, здания поликлиники на 570 посещений в смену.
В районе уже действуют детский сад № 68 комбинированного вида, Одинцовская лингвистическая гимназия, Одинцовская центральная районная больница и поликлиника. В шаговой доступности торговые и инфраструктурные объекты на улице Колхозной и Можайском шоссе.
Транспортная доступность высокая, поскольку есть удобный съезд/заезд на Можайское и Минское шоссе. Рядом железнодорожная платформа Баковка, много автобусных маршрутов на Москву.
Экологические параметры не слишком впечатляют, ведь рядом железная дорога, завод резиновых изделий, Минскоешоссе. В будущем под окнами ЖК проляжет скоростная автодорога «Москва – Смоленск», что вряд ли улучшит экологию.
Додавим, что рядом расположено Баковское кладбище площадью 1,6 гектара, могилки которого будут хорошо видны из окон комплекса, обращенных на юго-запад. Но некоторым потенциальным новоселам, судя по отзывам в Интернете, такое соседство даже нравится. Во-первых, соседи тихие, а, во-вторых, под окнами никогда не появится новая высотка. Хотя…
Если говорить о высотках, то их в окружении ЖК уже построено несколько. Это жилые комплексы бизнес-класса «Да Винчи», «Кварта» и «Высокая нота».
И если сейчас территория вокруг новостройки производит довольно удручающее впечатление, в будущем это будет вполне привлекательный современный район в ближайшем Подмосковье. А всех жителей сносимых домов, скорее всего, расселят в ЖК «Сердце Одинцово», ведь именно там строится жилье, предназначенное для реновации жилого фонда.
Резюме
За:
• Тихое место, но в городе
• Хорошая транспортная доступность
• Малоэтажная (сравнительно) застройка с небольшим квартирным фондом
• Разнообразие планировок, особенно в сегменте двухкомнатных квартир
• Подземный паркинг
• Близость к Москве
Против:
• Повышенный уровень шума из-за близости железной дороги и автомагистралей
Если речь идет о личном переезде, то вполне вероятно, решающим фактором «за» станет именно близость к Москве. Там и работа, и культурные центры. А с точки зрения инвестиций… Думайте сами, решайте сами.
Автор: Андрей Петров
Специально для Квартирного контроля

Обсуждение ЖК «Одинцово Сити»: как рабочий поселок превращается в современный микрорайон