Проект ЖК «Кленовые Аллеи» принадлежит ГК «МИЦ». Комплекс возводится в Новой Москве (НАО) рядом с поселком Ватутинки, в 15 км от МКАД и всего в полутора километрах от Троицка. Новостройка, состоящая из 14 монолитных домов переменной этажности, будет включать в себя также два детских сада, школу, многоуровневый паркинг и торгово-развлекательный центр.
Предварительная разведка
Официальный сайт ЖК «Кленовые Аллеи» (https://klen-alley.ru/) понравился мне тем, что не дает пользователю ни малейшего шанса «заблудиться». Все полезные информационные блоки показаны на заглавной странице, также есть удобное текстовое меню.
Можно выбрать квартиру, рассмотреть генплан, почитать проектную документацию, понаблюдать за ходом строительства или ознакомиться с инфраструктурой района.
Инструментов для поиска подходящей квартиры два – выбор по генплану либо подбор по параметрам.
Первая очередь, в которой продаются квартиры, представлена четырьмя корпусами.
При клике на этаж в генплане появляется поэтажный план с доступными квартирами, наведение курсора на квартиру показывает планировку. Можно «путешествовать» по этажам в поисках нужного вам планировочного решения.
Выбор по параметрам тоже вполне удобный, в таблице выведены варианты сразу с планировками. Сортировать результаты можно по площади, этажу или цене.
При клике на квартиру открывается планировка, информация об объекте, также предлагаются «похожие квартиры» (той же комнатности). Тут же можно посмотреть и шахматку корпуса.
Если квартира продается с ремонтом – прилагаются описания вариантов отделки.
Впрочем, отделке на сайте посвящена еще и совершенно отдельная, простите за невольный каламбур, вкладка.
В апреле 2018 в Комплексе представлено два класса домов – «Классика» (корпуса 1, 2 и 4) и «Оптимум» (корпус 3). «Оптимум» отличается улучшенной звукоизоляцией стен, потолка и пола. Впрочем, цена квадратного метра в этом корпусе ненамного выше цены «соседей» по комплексу.
Застройщик – ГК «МИЦ», ведет свою историю с 1999 года и включает в себя более 30 организаций, которые занимаются строительной, девелоперской и риелторской деятельностью в Москве и Подмосковье.
Участок с кадастровым номером 50:21:0140116:34 площадью 131526 кв. м находится в собственности Застройщика. Строительный адрес: Москва, поселение Десеновское, вблизи д. Тупиково, уч. 51.
И напоследок немного цифр по первой очереди строительства:
Корпус 1 – 352 квартиры, 9-17 этажей, 48 «гостевых» машиномест возле дома.
Корпус 2 – 320 квартир, 9-15 этажей, 44 м/м.
Корпус 3 – 219 квартир, 9-14 этажей, 31 м/м.
Корпус 4 – 251 квартира, 9-14 этажей, 36 м/м.
Кроме того, согласно Проектным декларациям, несколько гостевых паркингов и один многоуровневый будут располагаться в пределах 800 метров от домов.
Разведка боем
ЖК расположен возле Калужского шоссе. До МКАД – 15 километров. Ближайшая станция метро – «Теплый стан», от нее до Комплекса по прямой 16 км.
Во вкладке «Расположение» есть карта со схемой проезда. Также потенциальным покупателям предлагается воспользоваться бесплатным такси до офиса продаж. Впрочем, я решила добраться до новостройки общественным транспортом – чтобы выяснить, насколько удобно расположение комплекса для «безлошадных» жителей.
На сайте указан почему-то всего один маршрут от «Теплого стана».
Почти полчаса я бегала по многочисленным автобусным остановкам возле метро в поисках единственного подходящего мне автобуса, пока не догадалась «спросить совета» у интернета. Оказалось, что до ЖК «Кленовые Аллеи» ходит больше десятка маршрутов! На остановке у Комплекса они, кстати, перечислены.
Тем, кто в Ватутинках никогда не был, может показаться, что расположены они «на задворках цивилизации» – практически у самого Троицка! Однако на деле все оказалось не так страшно. По обновленному Калужскому шоссе маршрутка довезла меня до Комплекса за пятнадцать минут и 60 рублей. Обратный путь на автобусе, с учетом всех остановок, занял около получаса – зато обошелся всего в 36 рублей.
Если вы намерены сразу направиться в офис продаж – ориентируйтесь на остановку «35-й километр».
Если же планируете сперва посмотреть на стройку – выходите на остановке «Новые Ватутинки», строящиеся корпуса первой очереди буквально в двадцати метрах от нее. До офиса потом можно минут за семь дойти пешком вдоль шоссе.
На микрорайон «Новые Ватутинки», кстати, обратить внимание в любом случае стоит: именно в нем расположена готовая инфраструктура окрестностей, и именно этой инфраструктурой придется первое время пользоваться новоселам из «Кленовых аллей».
По микрорайону я немного прогулялась, обнаружила школу, детский сад, поликлинику, торговый центр, много магазинчиков на первых этажах жилых домов, небольшую церквушку, а также несколько строящихся зданий – район продолжает разрастаться.
Вернемся к ЖК «Кленовые аллеи». Корпуса первой очереди строятся вдоль Калужского шоссе, метрах в тридцати от него.
Расстояние до автотрассы, конечно, могло бы быть и побольше. Однако, забегая вперед, скажу: менеджер в офисе продаж заверила меня, что вдоль дороги будут высажены взрослые деревья (те самые кленовые аллеи, давшие название Комплексу). Плюс к тому планируется установить шумозащитные экраны.
Ко всему прочему – и это немаловажный аспект – на шоссе выходят «глухие» стены домов, без окон. Все окна и лоджии смотрят во дворы или на придомовые территории.
Между тем за Калужским шоссе, буквально метрах в ста от будущей Новостройки, простирается довольно густой на вид лесной массив, к которому можно пройти по симпатичным надземным переходам.
Есть и регулируемые наземные переходы – для тех, кто не любит ходить вверх-вниз по лестницам.
В общем, если дорога «под окнами» – это, скорее, минус, то лесопарковая зона практически в двух шагах от дома – это, определенно, плюс.
Остальное окружение Комплекса составляет, главным образом, частный сектор. Исключение – небольшая территория складских помещений на западе, в районе будущего строительства корпусов 12, 13 и 14.
Офис продаж я обнаружила на небольшой бетонированной площадке, и офис этот представлял собой две передвижных киногримерки.
Рядом с ними рабочие уже приступили к утеплению здания «капитального» офиса – он откроется ближе к лету. Там, кстати, обещают обустроить и шоу-рум для демонстрации отделки квартир.
В офисе менеджер Юлия предоставила мне буклеты и всю необходимую информацию о комплексе. Мы даже подобрали несколько подходящих вариантов квартир – Юля распечатала их и рассчитала стоимость с учетом дополнительной скидки «молодая семья». Впрочем, о скидках я расскажу чуть ниже.
Не могла не расспросить менеджера и по поводу «трех минут до метро», о которых заявляет сайт Комплекса. Со слов Юлии, станция подземки «Ватутинки» действительно откроется через дорогу, на другой стороне Калужского шоссе, но по срокам пока ясности нет. Возможно, уже в 2019 году откроется ст. м. «Столбово», и метро станет на пять километров ближе к ЖК «Кленовые Аллеи». Но когда Сокольническая ветка метро продолжится до самих Ватутинок – вопрос открытый. Подробнее о планах метростроевцев можно почитать, например, тут: https://stroi.mos.ru/metro/novaia-liniia-mietro-ot-ulitsy-novatorov-tpk-do-ghoroda-troitsk.
Транспортное развитие района планируется завершить в 2035 году. К этому времени здесь могут появиться не только новые станции метро, но также ТПУ и целая сеть скоростных трамваев. В общем, поживем – увидим.
По состоянию на апрель 2018 года в продаже были квартиры в 4 корпусах первой очереди. Эти корпуса будет достроены в IV квартале 2019 года, ключи жильцы должны получить в начале 2020.
По поводу остальных очередей строительства сроки пока не называются, возможно, какая-то информация появится ближе к осени. Многоуровневый паркинг, один из двух детских садов на 220 мест, а также школу будут строить, скорее всего, одновременно со второй очередью. Так что в первые пару лет жильцам Новостройки очень пригодится инфраструктура соседнего, обжитого микрорайона.
Возведение всех 14 корпусов комплекса, а также двух детских садов, школы, паркинга и торгово-развлекательного центра планируют закончить к 2023 году. Комплекс спланирован так, чтобы каждые два дома окружали двор, между этими «парами» будут проходить дороги для проезда автомобилей. Личный транспорт можно оставлять на гостевых машиноместах по периметру домов либо на многоуровневом паркинге. Еще один дополнительный паркинг, кстати, будет размещен в торгово-развлекательном центре, который появится ближе к окончанию строительства.
В самих дворах машинам места не найдется – эти территории будут огорожены и предназначены только для пешеходов. В каждом дворе (как, наверное, во всех современных микрорайонах) планируется разместить детские площадки. Кроме того, застройщик обещает «безбарьерные» тротуары и велодорожки, территории для занятий фитнесом и даже небольшой стадион.
Дома – монолитные с вентилируемым фасадом, в качестве внешней отделки будут использованы фиброцементные плиты толщиной 200 мм. Входные группы – с «безбарьерной средой», сквозные, то есть с возможностью выйти, как во двор, так и на улицу.
Ни помещения для консьержки, ни колясочных в подъездах не предусмотрено. Зато в инженерию домов заложены системы охранной сигнализации и видеонаблюдения – они, по идее, должны «заменить» консьержей. А альтернативой колясочным могут стать кладовые помещения в подвальных этажах домов (о них чуть ниже).
Первые этажи будут частично жилыми, частично – отданы под коммерческие помещения.
Что предлагают
Цены на квартиры в ЖК «Кленовые Аллеи» по состоянию на апрель 2018 года следующие
|
Квартира |
Площадь, кв. м |
Цена, млн руб. |
||
|
От |
До |
От |
До |
|
|
Студия |
26,1 |
31,7 |
2,1 |
3,2 |
|
1-к |
36,2 |
40,2 |
3,2 |
4,1 |
|
2-к |
47,3 |
72,3 |
4 |
8,5 |
|
3-к |
69,4 |
81,5 |
5,9 |
9,6 |
Недавно поступили в продажу кладовые (площадью от 2.8 до 8.5 квадратов). За 110 тысяч рублей, например, предлагают кладовку в 3.5 кв. м. Машиноместа (их будет, со слов менеджера, примерно тысяча) в многоуровневом паркинге пока не продают: этот объект будет строиться вместе с домами второй очереди. Кстати, судя по генплану, рядом с паркингом будет также автозаправочная станция (она и сейчас стоит на этом месте, недалеко от офиса продаж).
В четвертом корпусе и во второй секции второго корпуса квартиры продаются без отделки. Электрика разведена до щитка, сантехника – до стояка, межкомнатные перегородки обозначены трассировкой. Внутриквартирные стены отделяют только санузлы. Входная дверь – стальная, качественная, замены не потребует. Потолки – высотой 2.82 м (без стяжки).
Во всех остальных домах и секциях выбор отделки будет определен в момент подписания ДДУ, и выбрать можно вот из чего:
- Вариант первый – предчистовая отделка. Он подразумевает следующее: в квартире будет выполнена стяжка, разводка электрики (без фурнитуры), возведение и шпаклевка стен. Доплатить придется примерно 6 тысяч рублей за кв. м.
- Вариант второй – отделка «под ключ», в нескольких версиях («Базовая», «Комфорт», «Бизнес»). Такая отделка обойдется покупателю в сумму от 11 («Базовая») до 16 («Бизнес») тысяч рублей за квадрат.
Квартир первой очереди продано уже довольно много, так что планировки остались далеко не все. Но все же выбор есть.
Вот, например, студии – от совсем небольших до почти просторных. Что приятно, в каждой студии два окна, что позволит зонировать пространство.
Можно отметить, что в студиях также довольно большие для такого метража холлы.
В однокомнатных уже появляются и гардеробные.
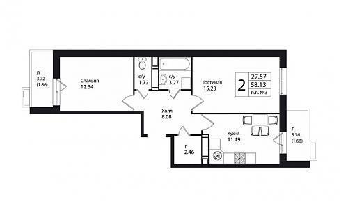
Есть небольшие двухкомнатные евро-формата:
А вот евродвушка совсем небольшой площади, зато в ней три окна и виды на запад и восток.
Есть двухкомнатные и «стандартной» планировки.
В этой квартире гостиная может «похвастаться» двумя окнами, выходящими на разные стороны света. А вот для гардеробной места выкроить не удалось.
А вот и классическая двушка-распашонка:
Трехкомнатные представлены двумя вариантами: стандартным…
… и совершенно нестандартным. Это трешка евро-формата, с помещениями неправильной формы и двумя гардеробными.
Нельзя не упомянуть оставшиеся единичные квартиры с террасами.
Стоят они, разумеется, дороже. Расположены на 10 этажах.
На момент написания данного текста их осталось всего по одной в каждом корпусе.
А вообще, у каждой квартиры (за исключением тех, что находятся на первом этаже) непременно есть лоджия.
Как купить
Купить квартиру в ЖК «Кленовые аллеи» можно следующим образом: бронирование на три дня будет стоить 25 тысяч рублей, эта сумма впоследствии войдет в стоимость жилья. Дополнительные расходы (по состоянию на апрель 2018 года) составят 34 850 рублей, столько стоят услуги по оформлению ДДУ. После подписания Договора Долевого участия необходимо открыть аккредитивный счет. Когда Договор будет зарегистрирован в регпалате, средства с аккредитива поступят на счет Застройщика.
Ипотека предоставляется Сбербанком, ВТБ и банком Возрождение (на сайте Комплекса есть довольно удобный ипотечный калькулятор).
При стопроцентной оплате или ипотеке покупатель может рассчитывать на скидку. В апреле она составляла 5 процентов, плюс предоставлялась скидка в 2% молодым семьям либо социальным работникам. Также на сайте можно найти спецпредложения – «квартиры недели» – продающиеся с дисконтом до 11%.
Существует возможность рассрочки – при первоначальном взносе от 50 процентов, на шесть месяцев, под 15% годовых. В случае рассрочки тоже можно получить скидку – в размере 3% от стоимости квартиры.
Сделка застрахована в ООО «Респект».
Для сравнения
|
ЖК |
Площадь, кв. м. |
Цена, млн. руб. |
Срок сдачи |
Класс жилья |
Отделка |
|
Кленовые Аллеи |
56,6 |
4,6 |
IV квартал 2019 |
Комфорт |
Нет |
|
58,1 |
5,6 |
Есть |
|||
|
Баркли МеКдовая Долина |
59,4 |
4,8 |
IV квартал 2019 |
Комфорт |
Есть |
|
Новая Звезда |
56,6 |
8,0 |
IV квартал 2019 |
Комфорт |
Нет |
|
Рассказово |
61,8 |
7,5 |
IV квартал 2019 |
Комфорт |
Нет |
Что говорят
Форумов с отзывами о ЖК «Кленовые Аллеи» в сети нашлось несколько. Один довольно «населенный». Тут много сообщений, есть любопытные темы – например, обсуждение экологической обстановки или архитектурных решений.
Второй форум пока почти пустой, но, возможно, с ростом домов будет расти и число посетителей.
Пока что тут нашлась, разве что, вот такая познавательная пара фотографий из серии «было – стало».
Третий форум немного «бодрее» предыдущего, хотя тоже пока не очень оживленный.
Самой полезной мне показалась тема об инфраструктуре окрестностей, с фотографиями и небольшой дискуссией. Но в целом, познавательным этот форум пока назвать сложно.
Впрочем, и Комплекс начали строить совсем недавно. К тому времени, когда дома будут готовы к заселению, жизнь на этих сайтах почти наверняка забурлит.
И в заключение
Основной, на мой взгляд, плюс ЖК «Кленовые Аллеи» – это цены на квартиры. Объясняется это, отчасти, тем, что Новостройка расположена далековато от метро – сравнимо с комплексами ближайшего Подмосковья. Но при этом жители «Кленовых Аллей» получат московскую прописку, а в перспективе – московскую инфраструктуру. Что же касается транспортной доступности, то с нею и сейчас все очень даже неплохо, благодаря реконструированному Калужскому шоссе. При этом район Ватутинок, с экологической точки зрения, почти безупречен, здесь нет вредных производств, зато много лесопосадок и территорий частной застройки. Отдельный плюс – известный Застройщик с богатым портфолио.
К минусам я отнесла бы, пожалуй, близость к автотрассе. Впрочем, окна жилых домов прямиком на шоссе выходить не будут. Немного смущает также и то, что жильцы домов первой очереди целый год будут вынуждены ждать «своего» детского сада и паркинга.
В целом же, «суммируя» плюсы и минусы, я прихожу к выводу, что данный ЖК – довольно привлекательный в инвестиционном плане проект. А с развитием Новомосковского АО квадратные метры в этом районе, определенно, будут расти в цене.
Автор: Мария Борискина
Специально для Квартирного контроля

Обсуждение ЖК «Кленовые Аллеи»: новомосковское жилье по подмосковным ценам