Новый жилой комплекс от группы компаний «ПИК» – ЖК «Черняховского, 19» – быстро растет на севере столицы, в районе ст. м. «Аэропорт». К концу 2018 года здесь возведут три монолитных корпуса переменной этажности (от 12 до 22 этажей), а также школу и детский сад. Кроме того, на территории Комплекса будет размещен подземный паркинг и спортивный комплекс.
Предварительная разведка
Как и все проекты «ПИКа», официальная страница ЖК «Черняховского, 19» расположена на сайте Застройщика (https://www.pik.ru/che19). Информации на странице довольно много, получить представление о Комплексе нетрудно: есть и проектная документация, и сведения о Новостройке, и фото со стройплощадки, и планировки. Инструмент для подбора квартир – шахматка.
Наведя курсор на квартиру, можно сразу увидеть планировку и цену. На планировках, кстати, практически у каждой квартиры есть балкон, однако на визуализации Комплекса балконов меньше раза в два. С этим вопросом разбираться придется в офисе (я расскажу о балконах подробнее чуть ниже).
На вкладке «планировки» традиционно для ПИКа реализована возможность посмотреть, как план квартиры, так и «визуализацию интерьера». Иногда, правда, эта возможность «сбоит», показывая лишние балконы.
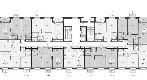
Но тут поможет поэтажный план.
Он в некоторых секциях довольно мелкий, но составить представление о расположении квартиры среди «соседей» позволяет.
А вот выбора квартиры по параметрам я не нашла, кроме перебора планировок в шахматке, вариантов нет. Более того: если вы рассматриваете какой-то корпус, перебирая квартиры, то вернуться к генплану можно только много раз нажав кнопку «назад» или заново загрузив начальную страницу Комплекса.
В целом, сайт показался мне довольно информативным, но не слишком удобным.
В качестве Застройщика, согласно Проектной декларации, выступает «ЖБИ-23», учредителем которого и является «ПИК».
Кадастровый номер участка 77:09:0004006:96, площадь – 68 638 кв. м. Участок принадлежит Застройщику на правах аренды до 13 октября 2022 года.
Разведка боем
Расположение у ЖК «Черняховского, 19» весьма неплохое.
Я представила: допустим, я житель этого комплекса и еду домой с работы на общественном транспорте. Сразу возле метро – ТЦ «Галерея Аэропорт» с множеством торговых точек, салонов сотовой связи и закусочных.
Далее мой путь пролегает по симпатичному бульвару.
Дорога от метро занимает буквально 10 минут, причем если надо по пути купить что-нибудь из еды или хозтоваров – затруднений с этим не будет, магазинов вокруг пруд пруди, на любой вкус и кошелек. Если же ехать на авто, проблем тем более возникнуть не должно: можно свернуть к Комплексу с Ленинградского шоссе, а можно с ул. Балтийская, где тоже вполне обжитые районы со всей инфраструктурой.
Что касается архитектуры самого района, то она донельзя эклектична: тут вам и «хрущевки», и «сталинки», и типовые панельки семидесятых-восьмидесятых, и величественный Триумф-Палас на горизонте, и современные жилые комплексы.
Стройплощадку найти не составит труда: мало того, что строящиеся дома видно издалека, так еще и офис продаж обозначен большой, метров десять в ширину, светящейся надписью.
В общем, промахнуться невозможно. По состоянию на конец ноября первый корпус был практически полностью возведен, другие два находились примерно на «экваторе» строительства.
Внешне Комплекс очень похож на другие проекты ГК «ПИК» – найдите, например, отличия от ЖК «Бунинские луга» или ЖК «Варшавское шоссе, 141». Видимо, сейчас именно такая организация жилых кварталов, как говорится, «в тренде»: разновысотные корпуса в минималистском стиле, возведенные по периметру большого двора.
Корпусов в ЖК «Черняховского, 19» будет всего три. В 1 корпусе шесть секций, во 2 – семь, в 3 корпусе – одна. Окружать они будут самый просторный двор во всей линейке комплексов от «ПИКа»: площадь дворовой территории сравнима с тремя футбольными полями.
В офис продаж можно приехать в любое время, с 9 до 21, без предварительной записи.
Но стоит учитывать, что прием потенциальных покупателей ведется в порядке живой очереди, так что визит имеет смысл спланировать на будний день: в выходные поток клиентов плотный, прождать своей очереди можно и час, и полтора. Впрочем, ожидание скрашивают кофейный автомат с дюжиной напитков на выбор, а также ваза с конфетками.
В офисе есть большой макет Комплекса, плюс у каждого менеджера на столе по маленькому макету, так что сориентироваться на местности или подобрать квартиру с нужным видом из окон довольно несложно.
Также тут вам выдадут буклеты с планировками и печатные издания о разных ЖК застройщика.
В принципе, визит в офис нужен скорее тем, кто уже готов приступить к выбору квартиры: общую информацию вполне можно найти на сайте. Но в целом общение с менеджером добавляет ясности в некоторые моменты.
Итак, все три корпуса сдаются практически одновременно, в IV квартале 2018 года (ключи – в I квартале 2019). Этажей в первом корпусе построено больше, чем в других двух, именно поэтому этот корпус несколько дороже. Но, судя по тому, что я увидела на стройплощадке, все три корпуса скоро сравняются в высоте и дело останется только за отделкой мест общего пользования и коммуникациями.
Первые этажи всех корпусов предназначены для коммерческих целей, так что вторые – жилые – этажи будут располагаться на высоте пяти метров от уровня земли. Планируется реализовать концепцию «двор без машин», территория Комплекса будет огорожена, входные группы – сквозные, с «безбарьерной средой».
Квартиры сдаются без отделки, межкомнатные стены выложены «в один кирпич», нет также и стен санузлов. Стяжки тоже нет, высота потолков от чернового пола – 3 метра. Электрика будет разведена до щитка, сантехника – до стояка, будут установлены двухкамерные стеклопакеты и неплохая металлическая входная дверь. Окна большие – 2 на 1.85 м, подоконник расположен на высоте 50 см от пола. Если комната с «французским» балконом – будет выполнено остекление во весь проем. Света в квартирах точно будет хватать даже в пасмурные осенние и зимние дни.
Пришло время поговорить о балконах, которых так много на сайте и так мало на макете. Небольшие «французские» балкончики присутствуют во всех корпусах (но далеко не во всех квартирах). Находятся они на каждом втором этаже и располагаются на фасаде в шахматном порядке (некоторые квартиры могут похвастаться двумя или даже тремя балконами).
Чтобы понять, какая квартира таки имеет балкончик, нужно самостоятельно провести небольшие вычисления – или выписать цифры из буклета (там этажи с балконами помечены). То есть, просто глядя на сайт, на глаз определить, есть ли у той или иной квартиры балкон, не получится.
«Французский» балкон в данном Комплексе – это небольшой незастекленный балкон, предназначенный исключительно для того, чтобы выходить на него и любоваться видами. Собственно, и площадь его (около половины квадратного метра) иных функций не предполагает.
Что же касается лоджий, то они есть только однушках третьего корпуса (некоторым повезло иметь и балкончик, и лоджию одновременно).
Замечу также, что большая часть квартир с балконами по состоянию на конец ноября раскуплены – но у Застройщика есть резервный фонд, который поступит в продажу позже, так что у любителей балконов еще появится шанс.
Что касается теплоизоляции, то, по заверениям менеджера, с нею все будет более чем прилично. Наружные стены будут представлять собой 25-сантиметровый монолит, плюс утеплитель, плюс облицовочный кирпич. Кстати, пример такой стены выставлен во дворике возле офиса продаж – можно и посмотреть, и пощупать. На вид – стены вполне приличной толщины.
Квартир в секциях разное количество (от 3 до 9, больше всего в первой секции первого корпуса), лифтов – два или три, в зависимости от этажности. Лифты – отечественные, произведены в Щербинке. В каждом подъезде предусмотрено место для консьержки, а также довольно просторный холл, который при желании сможет заменить колясочную (к тому же в подъездах обещают установить камеры видеонаблюдения).
В 2019 году планируется начать строительство школы на 550 мест и детского сада на 150 мест, причем, как заверил меня менеджер, приоритет в этих муниципальных учреждениях будет у жителей ЖК «Черняховского, 19». Кроме того, ко 2 корпусу будет примыкать физкультурно-оздоровительный центр, завершение его строительства запланировано на 2019 год.
Возвращаясь к окружению Комплекса: в двухстах метрах к северу от него проходит железнодорожная ветка, за которой раскинулся Тимирязевский парк. Что касается железной дороги, ее планируется отгородить шумоотражающими щитами. Кстати, именно на северной стороне Комплекса будут построены школа и детский сад, так что щиты возведут практически со стопроцентной гарантией.
А вот на счет прямого выхода из Комплекса к парковой зоне менеджеры пока не обнадеживают: ближайший переход пролегает через станцию электрички «Гражданская», которая располагается примерно в километре от новостройки. Будет ли обустроен дополнительный переход, чтобы жильцы Комплекса могли из дома выйти прямо в парк – вопрос пока открытый.
Я сделала попытку обойти Новостройку с правой стороны и дойти до Тимирязевского лесопарка. Мой вердикт: крюк вокруг других домов и гаражных кооперативов, расположенных вдоль железной дороги, жителям Комплекса придется делать довольно большой.
В заключение добавлю, что раньше на месте Новостройки были корпуса комбината ЖБИ-23.
Что предлагают
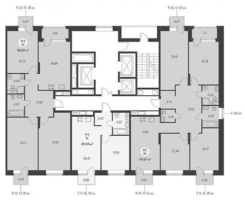
Планировочный ряд очень богатый: можно найти и крошечные студии, и просторные четырехкомнатные квартиры. Кстати, заманчивое объявление на сайте «квартиры от 5 млн. рублей» относится именно к студиям площадью всего чуть больше 20 квадратов.
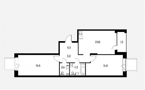
Однокомнатные практически все «стандартные», в районе сорока квадратных метров. Однако есть и нюанс: обычно мы полагаем, что бОльшее из помещений – это комната, а меньшее – кухня.
А в данном Комплексе в части квартир все наоборот. Там под кухню-столовую может отводиться помещение в двадцать квадратов, а вот спальни-гостиные имеют скромные 12-14 кв. м. В целом, такую квартиру можно отнести к разряду компактных евро-двушек.
Напомню, что лоджии есть только в однушках третьего корпуса.
Выбор двухкомнатных квартир довольно широкий. Есть как «распашонки», так и «линейные» варианты. В некоторых – просто огромные кухни-гостиные, что позволяет сравнить такую двушку с евро-трешкой.
Впрочем, о наличии в продаже той или иной планировки надо узнавать от менеджера: напомню, что некоторый пул квартир Застройщик пока «придерживает» и выпустит на рынок позднее.
Трехкомнатные и четырехкомнатные – вполне приличных площадей, под сто или даже сто пятнадцать квадратов.
В четырехкомнатных к тому же более чем просторный холл и целых три санузла.
Цены на квартиры в ЖК «Черняховского, 19» по состоянию на конец ноября 2017 года следующие:
|
Квартира |
Корпус |
Площадь, кв. м. |
Цена, млн. руб. |
Этаж |
|
Студия |
3 |
20,4 |
5 |
2 |
|
2 |
22,5 |
5,5 |
10 |
|
|
1-к |
1 |
43,8 |
10 |
9 |
|
2 |
39 |
8,5 |
12 |
|
|
2-к |
1 |
68 |
14 |
15 |
|
2 |
71 |
15,8 |
7 |
|
|
3-к |
1 |
101 |
21,4 |
13 |
|
2 |
92,5 |
19,3 |
8 |
|
|
4-к |
1 |
121 |
24,7 |
13 |
|
2 |
114 |
21,5 |
3 |
Напомню, что стоимость квадратного метра тем выше, чем выше этаж.
Как купить
Бронирование квартиры бесплатно на 3 рабочих дня. В общем случае дополнительные расходы покупателя составят 20 тысяч рублей за оформление ДДУ. Эти деньги вносятся в течение 3 дней после подписания Договора долевого участия, эти же сроки нужно внести плату за квартиру на аккредитив. Далее – от 2 до 4 недель занимает регистрация ДДУ в регпалате, после чего аккредитив открывается, и деньги за жилье поступают на счет Застройщика.
Впрочем, 20 тыс. руб. можно сэкономить, если воспользоваться процедурой электронной регистрации ДДУ. В этом случае ускоряется и процедура регистрации Договора в регпалате – она занимает всего 7-10 дней. Электронная регистрация проводится с помощью компании «Технокад» (http://www.technokad.ru/).
В случае 100% оплаты или ипотеки предоставляется скидка 3%. До конца декабря действует также новогодняя скидка на первую секцию первого корпуса – 10%.
Ипотеку предоставляет целый ряд банков, например, Россельхозбанк, Сбербанк, ВТБ24, Абсолют и другие – на сайте ипотечному кредитованию посвящена отдельная вкладка (https://www.pik.ru/che19/facts/mortgage).
Есть также возможность рассрочки. На 2 месяца рассрочка дается при первоначальном взносе от 10 процентов, второй транш – через два месяца после первого. На 4 месяца – при взносе от 40 процентов, выплаты ежемесячные. Эти два варианта рассрочки беспроцентные. Если вы возьмете рассрочку на полгода, то 2 процента на остаток будут начисляться с четвертого месяца выплат, первоначальный взнос – от 40 процентов.
Также в продаже есть машиноместа в подземном паркинге стоимостью около 1.2 млн. руб. Всего в трех корпусах будет около 1100 квартир, мест в паркинге – 704, плюс предполагается оборудовать 220 «гостевых» парковочных мест вокруг Комплекса. На том же этаже, что и машиноместа, будут обустроены кладовки. Они продаются пока только в первом корпусе, скоро поступят в продажу кладовые помещения также во 2 и 3 корпусах, цена – около 100 тыс. руб. за квадрат, площади – от 2 до 11 кв. м.
Что говорят
Форумов будущих жильцов ЖК «Черняховского, 19» нашлось сразу несколько. Есть, например, группа во вконтакте. Собственно, общения там совсем немного, но можно найти любопытные фото от участников группы – например, такие:
Есть одноименный форум, впрочем, последние сообщения в нем датируются еще октябрем, да и обсуждения не сказать чтобы бурные. Впрочем, есть фотографии со стройплощадки.
На самом оживленном ресурсе тоже можно найти фото стройки, а также обсуждение темпов строительства, площадей квартир, размеров окон, выбора корпусов и прочего. В целом какой-то уникально новой информации на форуме я не нашла, но в принципе ознакомиться с ним полезно – люди, купившие квартиры, следят за стройкой, ценами и различными тонкостями, например, демонтажом труб вокруг Новостройки.
Для сравнения
Для сравнения я взяла квартиры в комплексах одинакового класса, в начале второй десятки этажей (в большинстве случаев квартира тем дороже, чем выше расположена). Итак, на 10-14 этажах этих Комплексов квартиры можно купить за следующие суммы:
|
ЖК |
Срок сдачи |
Площадь, кв. м. |
Цена, млн. руб. |
|
Черняховского, 19 |
IV квартал 2018 |
60 |
12,25 |
|
Селигер Сити |
II квартал 2019 |
55,5 |
7,74 |
|
Софьин-Дом |
IV квартал 2018 |
65 |
11 |
|
Римского-Корсакова, 11 |
IV квартал 2018 |
69,5 |
9,16 |
Заключение
Место, где возводится Новостройка, безусловно, выигрышное: тут вам и транспортные артерии, и престижный район с хорошей инфраструктурой, и метро менее чем в километре, и Тимирязевский лесопарк метрах в трехстах. Для любителей железнодорожного транспорта – в десяти минутах ходьбы станция «Гражданская» Рижского направления. Минусы, впрочем, тоже есть: электрички будут проходить довольно близко от Комплекса, да и до Тимирязевского лесопарка дойти можно пока что только кружным путем.
Вернемся к плюсам: подземный паркинг, просторнейший двор (интересно, как его площадью распорядится Застройщик?), «безбарьерная среда» входных групп, большие окна, вполне приличные площади, «французские» балкончики. И снова к минусам: полноценные лоджии есть лишь в однушках третьего корпуса. Впрочем, никто не мешает жителям остальных квартир самостоятельно «выгородить» лоджию, скажем, у окна кухни-гостиной.
И опять к плюсам: у Комплекса будут «собственные» (при этом муниципальные) школа и детский сад. Минус: построят их не ранее чем через год-полтора после заселения жилых корпусов.
Статистика продаж, впрочем, говорит сама за себя: по состоянию на конец ноября 2017 года раскупили уже примерно две трети имеющегося жилья. В целом, учитывая местоположение, комплекс хоть и недешевый, но определенно заслуживающий внимания.
Автор: Мария Борискина
Специально для Квартирного контроля

Обсуждение ЖК «Черняховского, 19»: светло да просторно