Группа компаний ИНГРАД вчера объявила о начале продаж квартир в новом жилом комплексе «Михайлова, 31», расположенном в Рязанском районе столицы.
КОРОТКО О КОМПЛЕКСЕ
С одной стороны, комплекс находится не так уж и далеко от шумного Рязанского проспекта, с другой, от этой крупной транспортной артерии города его закрывает надежный экран из ряда домов соседней улицы и Кусковского лесопарка. Ближайшие к комплексу на Михайлова станции метро – это давно функционирующая ст. «Рязанский проспект» и строящиеся ст. «Окская» и «Нижегородская».
Комплекс возводится по монолитной технологии и состоит из восьми секций высотой от 12 до 19 этажей, которые на генплане, представленном на официальном сайте ЖК «Михайлова, 31», располагаются в форме буквы «П». В жилом фонде насчитывается 685 квартир, а в подземном и отапливаемом паркинге – 333 машиноместа. На первых этажах жилых секций предусмотрены коммерческие помещения и встроенный детский сад на 124 воспитанника.
ЧТО МОЖНО КУПИТЬ
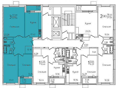
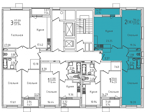
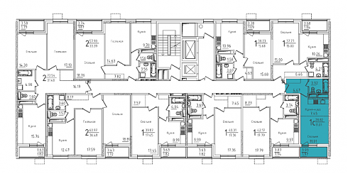
Продажи квартир в ЖК «Михайлова, 31» идут в соответствии с 214 Федеральным Законом, минимальная стоимость покупки сегодня составляет 4,234 млн рублей – за студию размером в 28,8 квадратных метров. Таких квартир здесь немного – всего 17, и располагаются они только во второй секции комплекса, с 3 по 19 этаж, по одной на площадку.
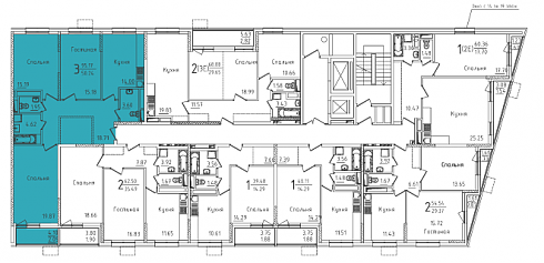
Однокомнатную квартиру (всего 309 шт.) можно купить в любой секции ЖК «Михайлова, 31», площадь их варьируется от 37,6 до 60,3 кв. метров, а цена – от 5,230 млн рублей до 8,299 миллиона. Меньше всего однушек расположено в секции под номером 1, там их ровно 17, по одной на жилой этаж. И все они одинаковые, линейные, с 10-метровыми кухнями и раздельными санузлами. Площадь такой квартиры 37,9 кв. метров, а стоимость меняется в зависимости от этажа и минимальная составляет 5,333 млн рублей. Между прочим, трехкомнатных квартир в рассматриваемой первой секции тоже 17, и это одни из самых маленьких трешек в комплексе, одни из самых недорогих. Стоимость квартиры, расположенной на третьем этаже второй секции, начинается от 9,855 миллиона рублей, планировка линейная, площадь – 72,5 квадрата, из них кухня 12 с лишним квадратов, комнаты по 13-16 кв. м, есть гостевой санузел. Основным предложением в секции являются двухкомнатные квартиры в количестве 85, вариантов планировок много.
Ну а всего в ЖК «Михайлова, 31» будет 265 двухкомнатных квартир площадью от 54,5 до 87,6 кв. метров, которые на старте продаж можно купить по цене от 7,168 до 11,254 миллиона рублей. Планировки квартир в большинстве своем линейные и распашные.
Трехкомнатных квартир в комплексе 80, запроектированы они в секции №1 и секциях №5-8. Площадь варьируется от 72,5 до 97,1 кв. метра, стоимость – от 9,855 до 13,079 млн рублей. Среди планировочных решений есть как линейные, так и распашные.











Обсуждение Старт продаж в ЖК «Михайлова, 31»