Поиски спокойной жизни порой занимают у людей много времени и сил. Иногда для достижения внутреннего комфорта граждане даже решаются на переезд в другой город. И, конечно же, одним из весомых аргументов при выборе нового места жительства станет река рядом с домом. А если рядом есть еще и парк – локация однозначно становится приоритетной.
«Прибрежный парк» - как вам такое название для жилого комплекса? Привлекает? Ведь тут, как говорится, «в одном флаконе» соединились сразу два значимых параметра! И географически место достойное – городской округ Домодедово в Подмосковье. Давайте познакомимся с этим ЖК поближе.
Как проехать
Строительство ведется по адресу Московская область, городской округ Домодедово, село Ям. К новостройке ведут два шоссе - трасса М4 «Дон» и Каширское шоссе.
От 27 километра МКАД по скоростной трассе «Дон» до ЖК можно доехать примерно за 15 минут. По Каширскому шоссе, от 25 километра – примерно за 20 минут.
Удобно ехать и на общественном транспорте. От Павелецкого вокзала до платформы Ленинская электропоезд идет 40 минут. А дальше 15-20 минут пешком.
Метро, мягко говоря, не рядом. Чтобы воспользоваться этим видом транспорта, надо доехать до станции «Домодедовская» и потом ехать на автобусе примерно 40 минут до села Ям.
Есть еще один способ попасть в строящийся ЖК – заказать доставку в офисе продаж. Вам оплатят проезд, но при одном условии – расстояние не должно превышать 20 километров.
Что строят
Под застройку выделено 57 гектаров подмосковной земли. Планируется до 2028 года построить по монолитной технологии более 30 жилых корпусов класса «комфорт» разной этажности, от 12 до 17 этажей. Строительство разбито на пять очередей.
Класс энергоэффективности зданий А (очень высокий) и B+ (высокий).
Будет построено три детских сада на 800 мест в сумме и школа на 1650 мест, а также детская и взрослая поликлиники, больница. Образовательные учреждения будут муниципальными. Первый детский сад откроют в первом квартале 2024 года, школу – в четвертом квартале 2024 года.
Фасады оснастят сертифицированной фасадной системой с отделкой из керамической или бетонной плитки. Входные группы на уровне земли с двумя входами и дизайнерской отделкой в голубых тонах создадут комфорт и удобство сразу после входа в здание. В лобби предусмотрены помещения для колясок и велосипедов.
Первые этажи отдадут под коммерцию, причем управляющая компания будет «фильтровать» арендаторов, чтобы избежать однобокости в оказании услуг. Один из претендентов на аренду помещений торговая сеть «Перекресток».
Здания одно-трехсекционные. В каждой секции на этаже по 11 - 12 квартир, этаж разделен на два блока по 5 и 6 квартир.
В каждой секции установят по два бесшумных скоростных лифта европейского производства. В подземных этажах разместятся кладовые площадью от 2,68до 6,96кв.м. Цена квадратного метра кладовой составит 234 649 рублей. При 100% оплате можно получить скидку на кладовую до 15%.
Для хранения автотранспорта предусмотрено обустройство наземных парковок в соответствии с нормативом на территории ЖК и вне ее. В дальнейшем на поверхности земли построят два крытых многоуровневых паркинга.
Дворовую территорию, закрытую для автомобилей и посторонних лиц, организуют с учетом близости реки, вдоль которой проложат бульвар «Речной берег». Во дворе оборудуют площадки для занятий спортом и детских игр, остров злаков, березовый и яблоневый островки.
За порядком будет круглосуточно следить система видеонаблюдения, вход на территорию и в здания - по электронному ключу.
Квартиры продаются только с отделкой. Высота потолков 2,77 – 2,95 метра, оконные проемы увеличенные, с широким подоконником. Разводка отопления - горизонтальная. Показания счетчиков будут автоматически передаваться в управляющую компанию.
Подарок от застройщика – система кондиционирования, управляемая со смартфона. Впрочем система «умный дом», которая будет доступна собственникам квартир, позволит им управлять и другими важными функциями внутридомовой инженерии.
Вот что получит собственник:
В ЖК можно купить квартиру не только с отделкой, но и с мебелью, заранее выбрав комплект в определенном стиле: классический, современный, скандинавский и лофт. И в любом случае на кухне будет установлено необходимое оборудование в одной из трех комплектаций: стандарт, комфорт или бизнес.
В таблице ниже приведены некоторые технические данные по 18корпусам, квартиры в которых выставлены на продажу.
Таблица 1.
|
№№ корпуса (секции) |
Кол-во этажей |
Общая площ. застр. (кв. м.) |
Кол.секц.
|
Общее кол-во квартир/ кладовых/нежил.пом |
Дата выдачи разр. на стр-во |
Окончание срока действия разр. на стр-во |
Предполагаемая дата введения в эксплуатац. |
|
1.1 |
18+1 |
737 |
1 |
176/-/6 |
09.07.2021 г. |
09.07.2023 г. |
2 квартал 2023 г. |
|
1.2 |
18+1 |
737 |
1 |
176/-/6 |
09.07.2021 г. |
09.07.2023 г. |
2 квартал 2023 г. |
|
2.1 |
17+1 |
737 |
1 |
165/-/5 |
09.07.2021 г. |
09.07.2023 г. |
2 квартал 2023 г. |
|
2.2 |
18+1 |
1685 |
2 |
308/12/82 |
09.07.2021 г. |
09.07.2023 г. |
2 квартал 2023 г. |
|
3.1 |
12+1 |
1390 |
2 |
264/12/81 |
09.07.2021 г. |
09.07.2023 г. |
2 квартал 2023 г. |
|
3.2 |
17+1 |
737 |
1 |
176/-/6 |
09.07.2021 г. |
09.07.2023 г. |
2 квартал 2023 г. |
|
3.3 |
17+1 |
737 |
1 |
176/-/5 |
09.07.2021 г. |
09.07.2023 г. |
2 квартал 2023 г. |
|
4.1 |
16+1 |
737 |
1 |
165/-/4 |
09.07.2021 г. |
09.07.2023 г. |
2 квартал 2023 г. |
|
4.2 |
16+1 |
737 |
1 |
165/-/4 |
09.07.2021 г. |
09.07.2023 г. |
2 квартал 2023 г. |
|
5.1 |
17+1 |
1389 |
2 |
324/80/12 |
09.07.2021 г. |
09.07.2023 г. |
2 квартал 2023 г. |
|
5.2 |
17+1 |
1801 |
3 |
363/117/15 |
09.07.2021 г. |
09.07.2023 г. |
2 квартал 2023 г. |
|
6.1 |
12-17+1 подз |
1390 |
2 |
324/120/14 |
21.04.2022 г. |
21.04.2025 г. |
3 квартал 2024 г. |
|
6.2 |
12-17+1 подз |
1801 |
3 |
363/120/14 |
21.04.2022 г. |
21.04.2025 г. |
3 квартал 2024 г. |
|
8.1 |
17+1 подз |
737 |
1 |
176/-/5 |
09.08.2022 г. |
09.08.2025 г. |
3 квартал 2024 г. |
|
8.2 |
17+1 подз |
737 |
1 |
176/-/4 |
09.08.2022 г. |
09.08.2025 г. |
3 квартал 2024 г. |
|
8.3 |
12-17+1 подз |
1390 |
2 |
324/83/12 |
09.08.2022 г. |
09.08.2025 г. |
3 квартал 2024 г. |
|
9.1 |
12-17+1 подз |
1390 |
2 |
324/82 |
21.04.2022 г. |
23.12.2025 г. |
4 квартал 2024 г. |
|
9.2 |
12-17+1 подз |
1801 |
3 |
363/102 |
21.04.2022 г. |
23.12.2025 г. |
4 квартал 2024 г. |
В настоящее время завершены монолитные работы на жилых корпусах, идет внешняя и внутренняя отделка. Выдавать ключи собственникам планируют в зависимости от срока сдачи корпусов в эксплуатацию. Самый поздний срок - 10 мая 2025 года.
Кто строит
Строительство в кадастровом квартале 50:28:0070228 ведет ООО «Специализированный застройщик «Прибрежный парк».
Компания создана в 2021 году, земельными участками владеет на праве собственности. Объект расположен на незастроенной не залесенной территории.
За три года до подачи проектной декларации компания никакого жилищного строительства не вела.
Учредитель застройщика ООО «Мега-Сити». В свою очередь учредителем «Мега-Сити» является ПАО «Группа компаний «Самолет», один из крупнейших девелоперов России. «Самолет» входит в ТОП-2 крупнейших российских компаний с самым большим земельным банком. Более 180 тысяч человек уже живут в домах от группы «Самолет».
Но не все гладко в производственной биографии компании.
Подрядчик ООО "Жилстрой-МО"
Сайт
Сайт новостройки https://samolet.ru/project/pribrezhnyj-park/ раскрывает особенности объекта.
Решить главную задачу – выбрать квартиру – можно с помощью удобного поискового механизма. Надо только выбрать наиболее важные параметры: цена, площадь, количество комнат, корпус, сроки сдачи, отделка, мебель – и это еще не все.
Присутствует генеральный план, отчет о ходе строительства, приведена информация о преимуществах проекта и его инфраструктуре.
Как купить, какие есть варианты отделки, какие новости – все найдете на сайте. В том числе и документацию, хотя искать последнюю придется уже на сайте девелопера.
Дополнительную информацию можно получить на сайте https://наш.дом.рф/сервисы/каталог-новостроек/объект/41710?ysclid=lihsdp5gxx334228154 и в социальных сетях
https://vk.com/pribrezhnyj_park?ysclid=lihse2mxu9334409047
https://t.me/pribrezhnyj_park
https://chatdoma.ru/zhk-pribrezhnyy-park-lider-prodazh/?yclid=2867849784702271487
Офис продаж
«Полевой» офис продаж построен неподалеку от жилого комплекса и оформлен в фирменном голубом стиле ГК «Самолет».
Зона ресепшен, вендинговый автомат, переговорные кабины с компьютерами и плазменными телевизорами, санитарная зона – все для удобства посетителей.
В зале выставлен макет новостройки.
От офиса продаж до строительной площадки около 700 метров, их нужно пройти пешком, «поднырнув» под трассу М4 «Дон». Это же и путь от станции.
Сколько стоит
Таблица 2.
|
Тип квартир |
Площадь (кв. м) |
Стоимость квартир (руб.) |
Стоимость одного квадратного метра (руб.) |
|
Студии |
21,4 – 27,04 |
5 406 539 – 5 715 879 |
252 642-211 386 |
|
Однокомнатные |
31,7 – 38,6 |
6 906 360 – 7 589 900 |
217 866-196 630 |
|
Двухкомнатные |
31,9 – 59,4 |
6 963 731 – 9 764 547 |
218 299-164 386 |
|
Трехкомнатные |
51,13 - 79,5 |
10 521 838 – 12 193 737 |
205 786-153 380 |
|
Четырехкомнатные |
70,3 – 87,44 |
12 486 610 – 14 557 939 |
177 619-166 491 |
Таким образом, видно, что средняя цена квадратного метра в новостройке составляет 196 448 рублей. В сентябре 2021 года она была равна 162 527 рублей.
В таблице ниже приведены цены на двухкомнатные квартиры комфорт-класса с отделкой и без в других строящихся жилых комплексах Московской области.
Таблица 3.
|
Название ЖК |
Ближайший населенный пункт |
Площадь Квартир(кв. м.) |
Стоимость квартир (руб.) |
Стоимость одного кв.м. (руб.) |
Отделка |
Срок сдачи |
|
«Одинцово -1» |
Д. Внуково |
38,9 |
9 055 329 |
232 785 |
Есть |
4 квартал 2024 г. |
|
«Римский» |
Д. Ащерино |
47,4 |
9 290 400 |
196 000 |
Нет |
3 квартал 2024 г. |
|
«Видный берег» |
Д. Сапроново |
48,2 |
9 438 681 |
195 823 |
Есть |
2 квартал 2024 г. |
|
«Живописный» |
Г. Видное |
68,6 |
12 545 404 |
182 878 |
Нет |
1 квартал 2024 г. |
|
«Прибрежный Парк» |
Д. Ям |
59,4 |
9 764 547 |
164 386 |
Есть |
4 квартал 2024 г. |
|
«Десятка» |
Гп. Раменское |
41,34 |
6 611 328 |
159 926 |
Нет |
2 квартал 2025 г. |
|
«Ново-Молоково» |
С. Молоковское |
45,6 |
6 368 000 |
139 649 |
Есть |
4 квартал 2024 г. |
Как видно из таблицы, наш комплекс чувствует себя середнячком.
Планировки
На продажу выставлены студии, одно-, двух-, трех- и четырехкомнатные квартиры.
План секции 1 корпуса 1.1.
План секции 1 корпуса 1.4.
План секции 2 корпуса 2.2.
План секции 2 корпуса 3.1.
План 5 этажа секции 1 корпуса 4.2
План 9 этажа секции 3 корпуса 5.2
План 11 этажа секции 3 корпуса 6.2
Планировка студии 21,41
Планировка студии 25,3
Планировка студии 27,04
Студии спроектированы очень лаконично. Входная зона площадью от 3,85 до 6,07 кв.м., совмещенный санузел площадью от 3,03 до 3,5 кв.м., многофункциональное помещение площадью от 14,52 до 17,35 кв.м.
Планировка однокомнатной квартиры 31,7
Планировка однокомнатной квартиры 34,35
Планировка однокомнатной квартиры 38,6
Однокомнатные квартиры располагают входной зоной площадью от 3,77 до 4,62 кв.м., совмещенным санузлом площадью от 3,73 до 3,89 кв.м., кухней площадью от 9,81 до 12,18 кв.м. и спальней площадью от 10,39 до 17,55 кв.м. Никакого евро, только классика. Встречается балкон площадью 2,2 кв.м.
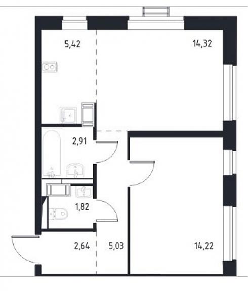
Планировка двухкомнатной квартиры 31,9
Планировка двухкомнатной квартиры 46,4
Планировка двухкомнатной квартиры 59,4
Двухкомнатные квартиры спроектированы в двух форматах – евро и классика. Входная зона площадью от 4,24 до 8,72 кв.м (с учетом внутреннего коридора). Один или два санузла с площадью помещений от 1,82 до 4,32 кв.м. Кухня - гостиная площадью от 19,74 до 20,96 кв.м. и классическая кухня площадью 13,74, одна или две спальни площадью от 9,31 до 17,55 кв.м. В некоторых вариантах планировки встречается кладовая площадью 1,72 кв.м. Расположение комнат угловое, одно- и двухсторонее, есть помещения с двумя или тремя окнами.
Планировка трехкомнатной квартиры 51,13
Планировка трехкомнатной квартиры 62,91
Планировка трехкомнатной квартиры 79,5
Площадь входной зоны трехкомнатных квартир от 6,7 до 10,07кв.м. с учетом внутреннего коридора. Один или два санузла с площадью помещений от 2,24 до 4,37кв.м. В квартире классической планировки кухня площадью12,79кв.м., а в евро-формате кухня-гостиная площадью от 15,5 до 18,34 кв.м. Две или три спальни площадью от 10,35 до 18,85кв.м. Есть гардеробные площадью от 1,24. Встречается балкон площадью 2,2 кв.м. Квартиры односторонние, угловые и распашные, есть помещения с двумя окнами.
Планировка четырехкомнатной квартиры 70,3
Планировка четырехкомнатной квартиры 80,2
Планировка четырехкомнатной квартиры 87,44
Четырехкомнатные квартиры спроектированы в формате евро. Комбинированные входные зоны общей площадью от 7,81 до 14,92 кв.м., два санузла с площадью помещений от 1,63 до 4,46 кв.м., кухни - гостиные площадью от 16,31 до 20,83 кв.м., спальни площадью от 10,31 до 17,66 кв.м. Квартиры угловые или двухсторонние, в некоторых комнатах два окна. Встречается кладовая площадью 8,30 кв.м.
Как купить
Квартиры продают в соответствии с федеральным законом №214-ФЗ. Предусмотрено заключение договоров долевого участия с застройщиком и размещение средств дольщиков на счетах эскроу в Сбере. Никаких дополнительных расходов, кроме оплаты стоимости квартиры, не предусмотрено. Оплату за регистрацию договора долевого участия в Росреестре застройщик берет на себя.
Можно бронировать выбранную квартиру на 14 дней за 10 000 рублей. Рассрочка не предусмотрена. Зато есть выгодные предложения, связанные с использованием ипотеки. Например, кредит от застройщика под 3,9% годовых.
В некоторых ситуациях (например, покупка квартиры в заданные сроки) застройщик может предложить покупателям определенные бонусы, например, скидку 10% и в подарок комплект мебели стоимостью до 1 миллиона рублей.
Инфраструктура
Похвалиться богатством инфраструктуры новостройка пока не может - за предметами первой необходимости придется идти или ехать в ближайшие села и деревни. За образованием, медициной и пищей духовной – туда же.
За более крупными покупками надо будет ехать в город Домодедово. На личном транспорте - около 20 минут, на общественном - несколько дольше.
Пока что транспортная доступность комплекса не слишком высока, но со временем улучшится транспортная составляющая комплекса. Построят прямой съезд-выезд на трассу М4 Дон, запустят автобус до станции, а сама станция станет частью МЦД-5.
Что касается природы – здесь почти все очень хорошо. Парка у дома пока нет, ведь строительство ведут на бывших сельхоз угодьях, незалесенной территории. Но река Пахра рядом.
Неподалеку Ушмарский лес, Видновский лесопарк, заповедник «Горки Ленинские».
А вот с экологией не все благополучно. В150 метрах от первой линии домов пролегает оживленная автомагистраль М 4 «Дон». А это шум и вредные выбросы автомобильных двигателей.
Резюме
Итак, у проекта есть как плюсы, так и минусы.
Плюсы такие:
• Прогрессивный и статусный застройщик
• Река рядом
• Квартиры с отделкой
• Можно купить мебель у застройщика
• Зеленые зоны неподалеку
• Станция железной дороги неподалеку
Минусы новостройки:
• Близость оживленной автомагистрали
• Недостаточность инфраструктурных объектов на начальном этапе строительства
Пользователи Интернета, наряду с хвалебными отзывами, порой высказывают и негативное мнение о новостройке.
Добавим, что в документах независимой экспертизы данная территория относится к естественно подтопленной. И, да, самолеты гудят над головой, ведь аэропорт Домодедово неподалеку.
Итак, купить иль не купить, вот в чем вопрос… Ответ на него – за самим потенциальным покупателем.
Автор: Андрей Петров
Специально для Квартирного контроля

Обсуждение ЖК «Прибрежный парк»: там, где течет река