Остров – это когда вокруг вода. А жилой комплекс «Остров» - это когда вокруг идеальная экология, совершенное благоустройство и максимальный уровень комфорта классов «премиум» и «де люкс». Ну, и вода, конечно, тоже, ведь заповедная Мневниковская пойма благодаря ряду искусственных водных сооружений стала островом в прямом географическом смысле слова. Это московский остров, омываемый Москвой-рекой. И прописка у островитян тоже московская.
Как проехать
Адрес новостройки: Москва, Северо-Западный административный округ, внутригородская территория муниципальный округ Хорошево-Мневники, улица Нижние Мневники.
До центра Москвы, например, до Манежа, можно доехать на автомобиле за 40 минут (расстояние 17 километров). А от 60 километра МКАД - за 25 минут (расстояние 13 километров).
В буквальном смысле рядом, как говорится, в «тапочной» доступности, станция метро «Терехово», чуть подальше станция метро «Мневники», обе на Большой кольцевой линии.
По улице Нижние Мневники пролегают многочисленные маршруты городских автобусов.
Что строят
«Остров» - это, по сути, мини-город, в котором за единицу измерения принимают не корпуса, а кварталы. На площади более 40 гектаров по монолитной технологии 10 кварталов, в каждом из которых по 5 – 8 корпусов. Класс энергоэффективности от А (высокая) до A++ (наивысшая).
Дизайн код проекта разработан архитектурным бюро LDA Design. Навесные утепленные вентилируемые фасады украшены клинкерным кирпичом, искусственным и натуральным камнем, керамогранитом, металлическими панелями. Эффектность фасадов дополняют панорамные окна и остекленные балконы и лоджии.
Входные группы с дизайнерской отделкой располагают стойкой для круглосуточной службы консъержей, мягкой зоной ожидания, помещениями для хранения детских колясок и мытья лап домашних питомцев, постаматами для интернет-заказов и электронными почтовыми ящиками. Высота потолков во входных группах от 3 до 6,6 метров. На нижних этажах запроектированы помещения для коммерческой деятельности площадью от 68 до 1137 кв.м. с высотой потолков от 4,55 до 6 метров.
На одном этаже размещено от 2 до 13 квартир, в секции 1 или 4скоростных лифта. В двух подземных этажах разместится автопарковка с площадью машиномест от 13,8 до 18 кв.м. и кладовые для хранения личных вещей площадью от 2,9 до 12,8 кв.м. В паркинге можно будет заряжать электромобили и мыть машины.
Особое внимание в проекте уделено благоустройству территории. У каждого квартала будет свой «зеленый» облик, сочетающий в себе комфорт, уют и современные технологии организации общественного пространства.
Здесь будут:
• Актив-парк со спортивными площадками для всех возрастов
• Паблик-парк с событийной площадью, фонтаном и детской игровой площадкой.
• Релакс-парк для тихого отдыха у воды, в тенистом саду или под перголами
• Площадь с фонтаном,
• Два навесных моста через Москву-реку
• Фитнес-клуб,
• Кинотеатр
И многое другое.
Высота потолков в квартирах от 3,25 до 4 метров. Высота окон от 2,1 до 2,55 метра с подоконниками в 60 сантиметрах от пола, либо остекление «в пол». Оконный профиль – алюминий. Системы отопления с нижней разводкой либо радиаторного, либо конвекторного типа.
Квартиры сдаются как без отделки, так и с полной чистовой отделкой. Отделка включает премиальные итальянские кухни, бытовую технику и сантехнику элитных марок.
Приватность и удобство жизни резидентов обеспечат современные инженерные системы.
• круглосуточное наблюдение за внешним периметром квартала
• видеоконтроль входных групп и паркинга
• видеоконтроль лифтовой зоны
• домофонная видеосвязь с консьержем
• автоматизированный доступ на огороженную территорию
• профессиональная управляющая компания и обслуживающий персонал
В квартирах с отделкой будет оборудована система «умный дом», способная управлять домашней электроникой и контролировать расход коммунальных ресурсов.
В настоящее время в «Острове» продаются квартиры в кварталах №№ 1, 4, 5, 6, 7 и Х (10).
В таблице ниже приведены некоторые технические данные по этим кварталам.
Таблица 1.
|
№№ квартала |
Кол-во этажей |
Площ. застр. (кв. м.) |
Кол.корпусов
|
Общее кол-во квартир/ машиномест/кладовых/нежил.пом |
Дата выдачи разр. на стр-во |
Окончание срока действия разр. на стр-во |
Предполагаемая дата.введения в эксплуатац |
|
1 |
2-21+2 подз. |
6389
|
5 |
585/608/308/27 |
26.01.2021 г. |
- |
РНС от 20.11.2023 |
|
4 |
9-21+2 подз. |
36920 |
7 |
2011/2109/1306/37 |
26.07.2021 г. |
07.04.2025 г. |
4 квартал 2024 г. |
|
5 |
17-22+2 подз. |
22779 |
8 |
1193/896/507/26 |
22.11.2021 г. |
22.07.2025 г. |
1 квартал 2025 г. |
|
6 |
16-22+2 подз. |
6863 |
6 |
1115/867/623/29 |
24.12.2021 г. |
24.09.2025 г. |
1 квартал 2025 г. |
|
7 |
19-21+2 подз. |
40320 |
7 |
1179/1540/736/27 |
10.09.2024 г. |
10.03.2028 г. |
1 квартал 2028 г./ 3 квартал 2028 г. |
|
Х (10) |
6-7+1 подз. |
1405 |
2 |
21/49/21/- |
14.10.2022 г. |
14.10.2025 г. |
2 квартал 2026 г. |
В настоящее время завершаются работы по возведению стен и внешней отделке зданий, в ряде корпусов заканчиваются внутренние работы и установка инженерного оборудования.
Застройщик планирует передать ключи дольщикам в следующие сроки:
• 4 квартал 30.06.2025
• 5 квартал 29.08.2025
• 6 квартал 01.09.2025
• 7 квартал 30.09.2028/20.12.2028
• Х (10) квартал 30.09.2026
Кто строит
Строительство названных выше кварталов ведется на следующих земельных участках:
• Квартал №1- 77:08:0014001:2182
• Квартал №4 - 77:08:0014001:2188
• Квартал №5 - 77:08:0014001:2187
• Квартал №6 - 77:08:0014001:2184
• Квартал №7 - 77:08:0014001:2347
• Квартал №Х - 77:08:0014001:2185
В качестве застройщиков выступают разные компании.
• Квартал № 4 - ООО «Специализированный застройщик «ТПУ «Терехово 27»
• Квартал № 5 - ООО «Специализированный застройщик «ТПУ «Терехово 8»
• Квартал № 6 - ООО «Специализированный застройщик «ТПУ «Терехово 12»
• Квартал № 7 - ООО «Специализированный застройщик «ТПУ «Терехово 9»
• Квартал № Х - ООО «Специализированный застройщик «ТПУ «Терехово 28»
На счету названных застройщиков такие жилищные проекты «Сердце столицы», «Событие», «Река», «Река-1» и другие. Земельные участки принадлежат застройщикам на праве аренды.
Учредителем всех компаний – застройщиков выступает акционерное общество «СК ДОНСТРОЙ», крупнейший российский девелопер на рынке элитной жилой недвижимости. О его проектах так и говорят - «дома особого назначения».
Отметим, однако, что наряду с достижениями в области жилищного домостроения у компании были и случаи срывов сроков строительства.
Подрядчик - турецкая компания ООО «AntYapi».
Сайт
Сайт новостройки https://donstroy.moscow/objects/ostrov дает полную картину происходящего на строительных площадках.
Есть генплан, панорама окрестностей, галереи рендеров, показывающих внешний облик и интерьеры зданий, качество отделки.
Для выбора квартир в сайт встроен механизм поиска по различным параметрам.
Документация проекта не представлена, зато по каждому кварталу доступна для скачивания отдельная презентация.
Есть раздел новостей, выложены фотографии хода строительства. Можно наблюдать за ходом строительства в реальном времени.
Дополнительную информацию можно получить здесь:
https://остров.рф/
https://наш.дом.рф/сервисы/каталог-новостроек/объект/41978?ysclid=m4wk8xylv2638919396
https://vk.com/ostrov.donstroy?ysclid=m4wkejbvn1400346714
https://web.telegram.org/k/#@Ostrov_Donstroy_official
Офис продаж
Офис продаж расположен на первом этаже корпуса №1 в квартале №4 по адресу улица Нижние Мневники, дом 9.
Сколько стоит
В таблице приведены цены на квартиры в разных кварталах.
Таблица 2.
|
Тип квартир |
Площадь (кв. м) |
Стоимость квартир (руб.) |
Стоимость одного квадратного метра (руб.) |
|
Студии |
29,2 |
20 621 040 |
706 200 |
|
Однокомнатные |
33,8 – 48,6 |
28 337 920 – 30 754 080 |
838 400-632 800 |
|
Двухкомнатные |
55,1 – 103,5 |
34 553 210 – 71 197 650 |
627 100-687 900 |
|
Трехкомнатные |
76,3 – 134,6 |
40 248 250 – 261 464 000 |
527 500-1 942 526 |
|
Четырехкомнатные |
111,3 – 191,8 |
74 032 308 – 186 026 820 |
665 160-969 900 |
|
Пятикомнатные |
143,1 – 177,0 |
100 127 070 – 108 182 400 |
699 700-611 200 |
|
Шестикомнатные |
170,4 – 262,4 |
142 045 440 – 410 130 000 |
833 600-1 562 995 |
|
Семикомнатные |
318,1 |
414 993 260 |
1 304 411 |
Средняя стоимость квадратного метра в новостройке составляет 913 750 рублей. Отметим, что в июне 2023 года этот показатель равнялся 556 717 рублям, а в сентябре 2021 года - 426 725 рублям.
Приведем для сравнения цены на двухкомнатные квартиры с отделкой и без в строящихся жилых комплексах высокого класса у других застройщиков в Москве.
Таблица 3.
|
Название ЖК |
Ближайшая станция метро |
Площадь квартир(кв. м.) |
Стоимость квартир (руб.) |
Стоимость одного кв.м. (руб.) |
Отделка |
Срок сдачи |
|
«Клубный дом «Река» |
«Мичуринский проспект» |
81,8 |
91 370 600 |
1 117 000 |
Нет |
2 квартал 2026 г. |
|
«Остров» |
«Терехово» |
103,5 |
71 197 650 |
687 900 |
Есть |
2 квартал 2026 г. |
|
«Высотка на Жукова» |
«Народное ополчение» |
77,2 |
48 095 600 |
623 000 |
Нет |
1 квартал 2026 г. |
|
«Родина Парк» |
«Давыдково» |
54,3 |
31 998 080 |
589 283 |
Нет |
4 квартал 2026 г. |
|
«Сториз на Мосфильмовской» |
«Аминьевская» |
69,9 |
32 311 442 |
462 252 |
Нет |
1 квартал 2026 г. |
|
«Кристалл Трилогия» |
«Октябрьское поле» |
50,7 |
23 017 800 |
454 000 |
Нет |
4 квартал 2026 г. |
|
«Сити Бэй» |
«Тушинская» |
56,62 |
17 978 852 |
317 535 |
Есть |
1 квартал 2027 г. |
В данном рейтинге «Остров» занимает почетное второе место.
Планировки
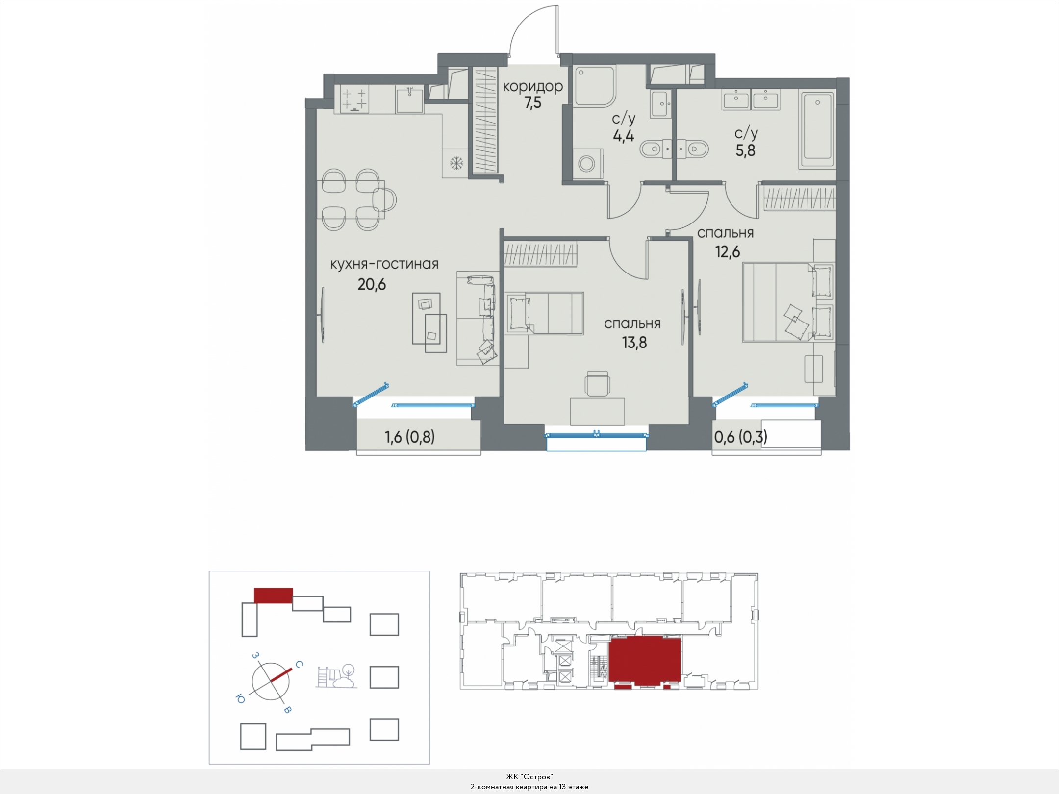
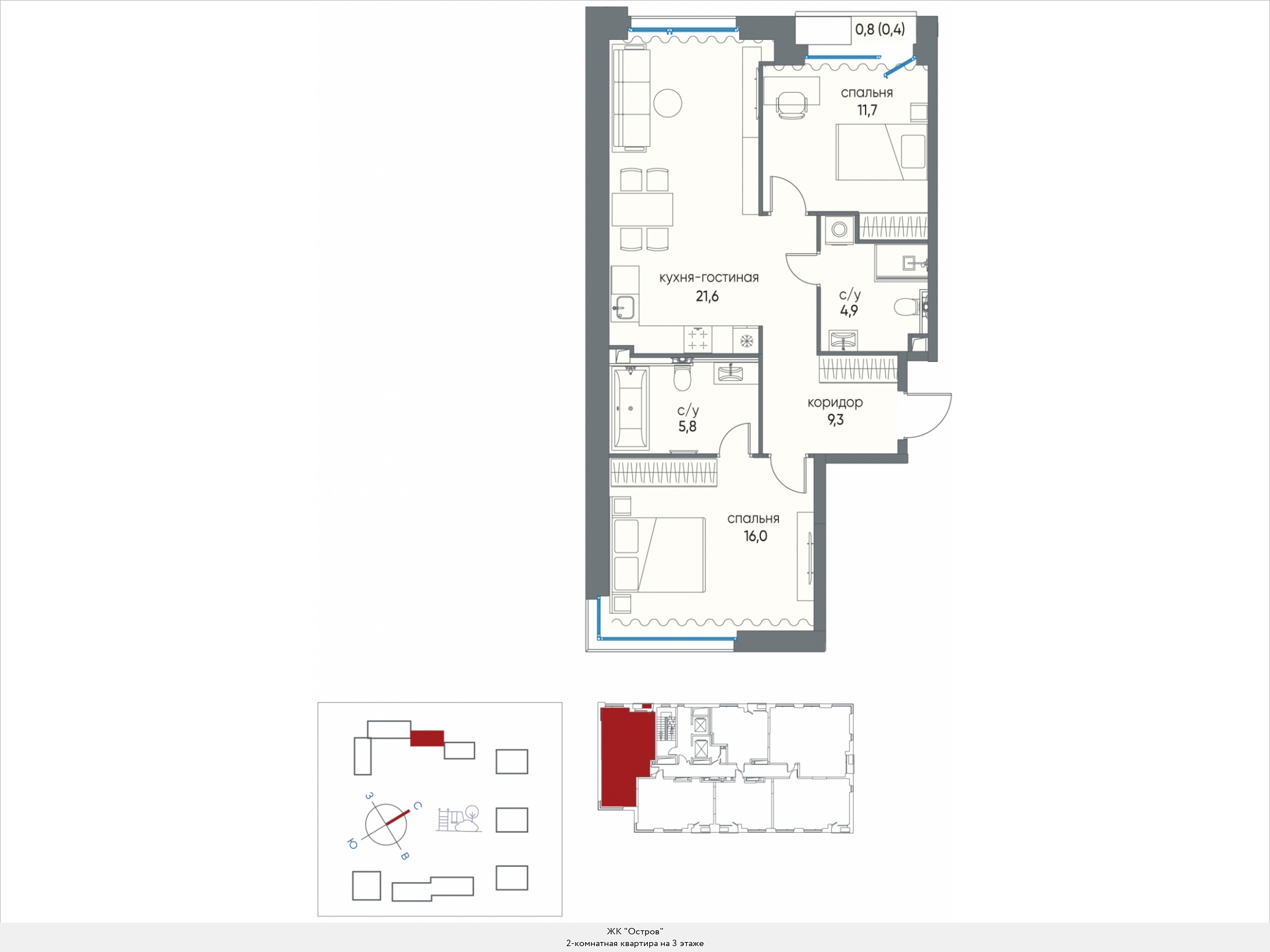
В продаже квартиры-студии, одно-, двух-, трех-, четырех-, пяти, - шести и семикомнатные квартиры площадью от 29,2 до 318,1 кв.м. В их числе квартиры:
План 3 этажа Х квартала корпуса 1 секции 1
План 5 этажа 7 квартала корпуса 2 секции 3
План 5 этажа Х квартала корпуса 2 секции 1
План 8 этажа 5 квартала корпуса 7 секции 2
План 10 этажа 4 квартала корпуса 7 секции 3
План 13 этажа 4 квартала корпуса 6 секции 3
План 14 этажа 1 квартала корпуса 2 секции 1
План 15 этажа 7 квартала корпуса 7 секции 2
План 17 этажа 6 квартала корпуса 6 секции 4
План 19 этажа 7 квартала корпуса 2 секции 1
Планировка студии 29,2
Студия спроектирована предельно просто. Входная зона площадью от 4,7 кв.м., совмещенный санузел площадью от 5,1 кв.м., универсальная комната площадью от 19,3 кв.м.
Планировка однокомнатной квартиры 33,8
Планировка однокомнатной квартиры 40,6
Планировка однокомнатной квартиры 48,6
Планировка однокомнатной квартиры включает в себя входную зону площадью от 4,6 до 8,2 кв.м., совмещенный санузел площадью от 3,6 до 6,0 кв.м., кухню площадью от 12,0 до 21,9 кв.м., и спальню площадью от 10,0 до 15,5 кв.м. Расположение окон одностороннее.
Планировка двухкомнатной квартиры 55,1
Планировка двухкомнатной квартиры 74,1
Планировка двухкомнатной квартиры 103,5
В двухкомнатных квартирах находим входную зону площадью от 4,7 до 7,8 кв.м., два санузла с площадью помещений от 2,0 до 4,9 кв.м., кухню площадью от 17,8 до 44,1 кв.м. и две спальни площадью от 11,1 до 16,5 кв.м. В некоторых вариантах планировки есть дополнительная комната (кабинет) площадью 12,9 кв.м. и хозяйственное помещение площадью 2,2 кв.м., есть мастер-спальни. Встречаются террасы площадью 31,7 кв.м. Расположение окон одностороннее и угловое, есть комнаты с двумя и тремя окнами.
Планировка трехкомнатной квартиры 76,3
Планировка трехкомнатной квартиры 103,3
Планировка трехкомнатной квартиры 134,6
Трехкомнатные квартиры, спроектированные в форматах «евро» и «классика», предусматривают наличие входной зоны площадью от 10,3 до 17,2 кв.м., двух санузлов с площадью помещений от 3,8 до 6,1 кв.м., кухни-гостиной площадью от 17,5 до 36,8 кв.м., двух или трех спален площадью от 12,2 до 18,5 кв.м. Также может быть терраса площадью 11,0 кв.м. Расположение окон угловое и двухстороннее. Встречаются мастер-спальни, помещения с двумя и тремя окнами, окна с угловым остеклением, ванные с окном.
Планировка четырехкомнатной квартиры 111,3
Планировка четырехкомнатной квартиры 148,7
Планировка четырехкомнатной квартиры 191,8
Четырехкомнатные квартиры, спроектированные в формате евро, располагают входной зоной площадью от 6,7 до 23,1 кв.м., тремя санузлами с площадью помещений от 3,8 до 8,5 кв.м., двумя или тремя спальнями площадью от 12,5 до 20,0 кв.м., кабинетом площадью от 10,0 до 14,5, а также одной, двумя или тремя гардеробными площадью от 3,9 до 10,4 кв.м. Встречаются постирочные площадью 3,1 кв.м., балконы или лоджии площадью от 0,6 до 6,4 кв.м., террасы площадью от 11,3 до 125,0 кв.м. Расположение окон угловое, двух- и трехстороннее, встречаются помещения с двумя и тремя окнами, имеются мастер-спальни и ванные с окном. В некоторых квартирах предусмотрена возможность установки камина.
Планировка пятикомнатной квартиры 143,1
Планировка пятикомнатной квартиры 160,0
Планировка пятикомнатной квартиры 177,0
В пятикомнатных квартирах евро варианта имеются входная зона площадью от 10,8 до 20,6 кв.м., два или три санузла с площадью помещений от 3,7 до 7,3 кв.м., кухня-гостиная площадью от 38,3 до 65,0 кв.м., четыре спальни (одна из которых может быть использована как кабинет) площадью от 12,3 до 17,8 кв.м. Кроме того, запроектированы две или три гардеробные площадью 3,1 до 6,5 кв.м., постирочные и хозяйственные помещения площадью от 2,8 до 3,6 кв.м. Имеются также лоджии площадью 14,6 кв.м., балконы площадью 22,6 и террасы площадью от 5,7 кв.м. Расположение комнат двух- и трехстороннее, встречаются комнаты с двумя, тремя и четырьмя окнами, мастер-спальни, ванные комнаты с окном.
Планировка шестикомнатной квартиры 170,4
Планировка шестикомнатной квартиры 218,0
Планировка шестикомнатной квартиры 262,4
Для шестикомнатных квартир запроектирована входная зона площадью от 17,1 до 21,0 кв.м., четыре санузла площадью от 3,5 до 11,8 кв.м., три спальни и кабинет площадью от 13,5 до 21,7 кв.м., кухня-гостиная с камином площадью от 45,8 до 81,4 кв.м. Кроме того встречаются три или четыре гардеробные площадью 2,5 до 11,1 кв.м., постирочные площадью от 3,0 до 7,0 кв.м., террасы площадью от 36,0 до 44,0 кв.м. В некоторых квартирах имеются комнаты для персонала площадью от 6,9 до 7,3 кв.м. и собственный лифт.
Планировка семикомнатной квартиры 318,1
Планировка семикомнатной квартиры включает в себя входную зону площадью 5,2 кв.м., шесть санузлов площадью от 3,3 до 4,8 кв.м., кухню-гостиную с камином площадью 75,3 кв.м., четыре спальни и кабинет с площадью помещений от 13,9 до 23,2 кв.м. Имеются также четыре гардеробные площадью от 3,0 до 6,0 кв.м., хозяйственное помещение площадью 6,0 кв.м. и помещение для персонала площадью 9,6 кв.м. Комфорт дополняют игровая комната площадью 22,2 кв.м. и терраса площадью 139 кв.м.
Как купить
Чтобы купить квартиру, необходимо заключить с застройщиком договор долевого участия и разместить денежные средства на специальном счете эскроу в банке ПАО «ВТБ». Подписанный договор регистрируется в Росреестре за счет застройщика. Оплату можно производить как 100% собственными деньгами, так и с использованием кредита.
Накануне Нового года застройщик предлагает квартиры со скидками до 15%.При покупке в субсидированную ипотеку дополнительно предоставляются скидки от 4% до 7%. Срок акции до 24 декабря.
Доступна рассрочка. Переплата составит 10%, первоначальный взнос должен быть не менее 50%, погашение ежеквартальное. В рамках новогодней акции при покупке в рассрочку предоставляется скидка 8% на первый взнос.
Можно продать застройщику старую квартиру в зачет стоимости новой в рамках программы трейд-ин.
Есть услуга бронирования, ее стоимость составляет 50 000 рублей, причем эта сумма включается в стоимость договора. Срок бронирования до 10 дней.
Инфраструктура
На начальном этапе развития островной территории у ее жителей будет не так уж много возможностей пользоваться инфраструктурой.
Но после завершения проекта здесь появятся своя школа, детский сад, спортивные организации. Если же учесть, что метро в шаговой доступности, то можно уверенно пользоваться инфраструктурой муниципального округа Хорошево-Мневники.
В составе транспортно-пересадочного узла (ТПУ) «Мневники» построят современный многофункциональный комплекс, что вызовет интерес у бизнесменов. Ведь это будет самый экологически чистый (в смысле территории) офис в Москве.
Транспортная доступность высокая, из ЖК легко выехать на Рублево-Успенское, Звенигородское шоссе и Новорижское шоссе, Кутузовский проспект и Садовое кольцо. А после завершения строительства новой транспортной развязки она станет практически идеальной.
Но самое главное преимущество «островитян» - 650 гектаров заповедного паркового пространства вокруг.
Резюме
У новостройки много плюсов:
• московская прописка
• благоприятная экология
• высокая транспортная доступность
• разнообразие архитектурных и планировочных решений
• известный застройщик
Минусы не найдены. Если ваши финансовые возможности соответствуют размаху и масштабу данного проекта – смело принимайте решение о покупке, не прогадаете.
Автор: Андрей Петров
Специально для Квартирного контроля











Обсуждение ЖК «Остров»: вода, вода, кругом вода