Урбанизация территории Новой Москвы идет семимильными шагами, и новые жилые комплексы открывают новые возможности для комфортной жизни в главном городе России. Юго-запад Москвы всегда считался благоприятным местом для проживания с самых разных точек зрения: отсутствие вредных с экологической точки зрения предприятий, мощная зеленая зона, высокий уровень транспортной доступности. Не хватало только современного комфортного жилья.
И вот среди уютных коттеджных поселков стародачной Москвы стали вырастать дома, построенные по современным градостроительным стандартам. Один из таких жилых комплексов ЖК «Новое Внуково», что строится на территории Новомосковского административного округа.
Как проехать
Новый ЖК строится между двумя крупными автомагистралями - Минским и Киевским шоссе. Адрес новостройки таков: Москва, Новомосковский административный округ, поселение Кокошкино, близ деревни Санино. Неподалеку пролегает и Боровское шоссе.
• От 45 километра МКАД по Киевскому шоссе - 47 километров, 23 минуты
• От 55 километра МКАД по Минскому шоссе - 47 километров, 32 минуты
• От 47 километра МКАД по Боровскому шоссе - 47 километров, 25 минут
Можно пользоваться и метро, но на оперативность лучше не рассчитывать. Ближайшая станция «Рассказовка» в 17 километрах, до станции «Саларьево» 27 километров.
В трех километрах от ЖК находятся железнодорожные станции Кокошкино и Санино Киевского направления Московской железной дороги. Время в пути от Киевского вокзала около 45 минут, и еще около 20 минут пешком.
В ближайшей перспективе эти станции войдут в состав МЦД-4 и время в пути до Москвы значительно сократится.
От платформы Кокошкино до офиса продаж можно доехать на автобусе № 307, остановка прямо напротив. Можно предположить, что в дальнейшем на проектируемом проезде № 7008, соединяющем Киевское и Минское шоссе, будут останавливаться и другие автобусы.
Что строят
На земельном участке площадью 50 гектаров построят 45 многосекционных жилых корпусов комфорт-класса высотой 14 этажей. Технология строительства - монолитный железобетон. Фасады утеплят минералватой и отделают керамическим кирпичом, что обеспечит зданиям энергоэффективность класса C+ и даст запас прочности на 150 лет эксплуатации.
Строительство ведется в четыре этапа и будет полностью закончено к 2028 году.
• Первый этап - корпуса №№ 1, 2 , 3, 4
• Второй этап - корпус № 5
• Третий этап - корпуса №№ 6, 7, 9
• Четвертый этап - корпуса №№ 8, 10
На территории ЖК появится собственная инфраструктура: 5 детских садов на 1200 мест, 3 школы на 2750 мест, взрослая и детская поликлиники. Входные группы на уровне земли с доступом с улицы и со двора. Остекление панорамное, есть места для детских колясок и велосипедов. В подъездах и на территории будет установлено круглосуточное наблюдение.
Дворовая территория, протянувшаяся вдоль небольшой речки, оформлена в духе детских рассказов о Незнайке писателя Николая Носова. При чем тут Незнайка? А при том, что речушка как раз и называется Незнайка. На всей территории будет бесплатно работать Wi-Fi.
В жилых домах запроектировано от 1 до 3 секций, на одном этаже от 7 до 9 квартир. Связь между этажами осуществят два лифта. В подземном этаже организуют кладовые площадью от 2,64 до 7,49 кв.м. и потолками 2,7 метра, с вентиляцией и освещением.
В небольшом количестве квартир будут лоджии или балконы. Обязательно в каждой квартире установят корзины для внешних блоков кондиционеров. В соответствии с современными градостроительными принципами в домах не будет мусоропровода, сбор бытового мусора организуют на контейнерных площадках во дворах.
Парковка открытая, стихийная, формируется из расчета от 36 до 94 машиномест на одно здание. Поскольку комплекс возводится в чистом поле, где нет территориальной стесненности, присущей точечной застройке в старых районах Москвы, парковочных мест будет достаточно. По крайней мере, на первых порах. А в дальнейшем может появиться и крытый паркинг, это будет зависеть от наличия спроса на машиноместа.
Квартиры продаются с отделкой «под ключ». Для выполнения работ применяются качественные конструкции и материалы импортного производства, которые не потребуют от новосела замены. Новосел получит оштукатуренные стены, оклеенные обоями под покраску, окна увеличенного размера в профиле ПВХ, ламинат и керамическую плитку на полу, системы отопления с вертикальной разводкой и сантехнику итальянского производства в санузле и на кухне. Высота потолков в квартирах 2,7 метра.
Приятным бонусом станет возможность приобрести квартиру с мебелью и полностью оборудованной кухней. Новоселы получат возможность пользоваться системой «умный дом». Опции этой системы таковы:
В таблице ниже содержатся некоторые технические данные по строящимся корпусам.
Таблица 1.
|
№№ корп. |
Кол-во этажей |
Общая площ. застр. (кв. м.) |
Кол.секц.
|
Общее кол-во квартир/ кладовых |
Дата выдачи разр. на стр-во |
Окончание срока действия разр. на стр-во |
Предполагаемая дата введения в эксплуатац. |
|
1 |
14+1 нижн. тех. этаж |
1501 |
3 |
338/86 |
24.12.2020 г. |
24.12.2022 г. |
4 квартал 2022 года |
|
2 |
14+1 нижн. тех. этаж |
620 |
1 |
130/37 |
24.12.2020 г. |
24.12.2022 г. |
4 квартал 2022 года |
|
3 |
14+1 нижн. тех. этаж |
667 |
1 |
117/37 |
24.12.2020 г. |
24.12.2022 г. |
4 квартал 2022 года |
|
4 |
14+1 нижн. тех. этаж |
599 |
1 |
117/28 |
24.12.2020 г. |
24.12.2022 г. |
4 квартал 2022 года |
|
5 |
1-14+1 нижн. тех. этаж |
1844 |
3 |
247/147 |
24.12.2020 г. |
24.12.2022 г. |
4 квартал 2022 года |
|
6 |
14+1 нижн. тех. этаж |
1502 |
3 |
325/54 |
14.04.2021 г. |
14.03.2023 г. |
1 квартал 2023 г. |
|
7 |
14+1 нижн. тех. этаж |
640 |
1 |
143/42 |
14.04.2021 г. |
14.03.2023 г. |
1 квартал 2023 г. |
|
8 |
14+1 нижн. тех. этаж |
599 |
1 |
117/23 |
14.04.2021 г. |
14.03.2023 г. |
1 квартал 2023 г. |
|
9 |
14+1 нижн. тех. этаж |
1049 |
2 |
182/62 |
14.04.2021 г. |
14.03.2023 г. |
1 квартал 2023 г. |
|
10 |
14+1 нижн. тех. этаж |
1813 |
3 |
234/144 |
14.04.2021 г. |
14.03.2023 г. |
1 квартал 2023 г. |
В настоящее время готовность корпусов составляет:
• № 1 - 39%
• № 2 - 42%
• № 3 - 45%
• № 4 - 39%
• № 5 - 39%
• № 6 - 19%
• № 7 - 20%
• № 8 - 19%
• № 9 - 13%
• № 10 - 14%
Собственники квартир в корпусах №№ 1 - 5 получат ключи не позднее 30 марта 2023 года, остальные - не позднее 30 июня 2023 года.
Кто строит
Застройщик ООО «Специализированный застройщик «Санино 1». Компания создана в марте 2019 года и за последние три года не вела никакого жилищного строительства. Участок земли с кадастровым номером 77:18:0170408:934 принадлежит застройщику на праве собственности.
Коммерческое обозначение застройщика «Самолет Девелопмент», учредитель группа компаний «Самолет».
ГК «Самолет» - один из крупнейших девелоперов России, она занимает третье место в десятке ведущих застройщиков страны. Ею построено 20 жилых кварталов, введено в эксплуатацию более 3 миллионов кв.м. жилья. По всем параметрам в московском регионе трудно найти более успешную и надежную строительную компанию, чем эта.
Генеральный подрядчик ООО «Жилстрой-МО».
Сайт
Сайт новостройки https://samolet.ru/project/novoe-vnukovo/ «заточен» на пользователей с поэтическим восприятием действительности.
Некоторые его разделы, например, называются «сервисы для счастливой жизни». Такая подача, по замыслу маркетологов, должна вызывать у читателей стремление стать покупателями.
Подробно описана инфраструктура, варианты отделки, ход строительства.
Механизм поиска квартир позволяет выбирать жилье по заданным параметрам - площади, цене, типу квартиры.
Можно совершить даже виртуальный тур по новостройке. Даны сведения о способах покупки, новостях строительства.
Документацию на объект следует искать на сайте девелопера.
Офис продаж
Офис продаж, расположенный рядом со стройплощадкой, построен по стандартам ГК «Самолет» и создает все условия для комфортной работы менеджеров по продажам.
Стойка ресепшен, семь отдельных кабин для общения с покупателями, детский уголок, вендинг автомат для желающих выпить чашечку кофе или чая.
В ходе беседы менеджер демонстрирует материалы на экране большого телевизора, предлагает покупателю распечатки заинтересовавших его планировок и красочные буклеты о жилом комплексе.
В помещении установлен макет комплекса.
В перспективе намечено открытие в офисе продаж шоу-рума.
Сколько стоит
Таблица 2.
|
Тип квартиры |
Площадь (кв. м) |
Стоимость квартиры (руб.) |
Стоимость одного квадратного метра (руб.) |
|
Студия |
22,44 - 25,26 |
6 450 013 - 6 564 105 |
287 434-259 862 |
|
Однокомнатная |
32,47 - 36,55 |
7 853 636 - 8 336 904 |
241 874-228 096 |
|
Двухкомнатная |
31,24 - 63,3 |
7 853 636 - 8 336 904 |
251 397-131 705 |
|
Трехкомнатная |
49,47 - 63,07 |
10 749 963 - 11 659 455 |
217 302-184 865 |
|
Четырехкомнатная |
66,25 - 88,22 |
12 391 542 - 14 653 568 |
187 042-166 103 |
Квадратный метр жилья в этом ЖК стоит в среднем 215 568 рублей.
В таблице ниже приведены цены на двухкомнатные квартиры с отделкой и без в строящихся ЖК Новой Москвы.
Таблица 3.
|
Название ЖК |
Метро |
Площадь квартир (кв. м.) |
Стоимость квартир (руб.) |
Стоимость одного кв.м. (руб.) |
Отделка |
Срок сдачи |
|
«Прокшино» |
«Прокшино» |
59,6 |
15 583 024 |
261 460 |
Есть |
4 квартал 2023 г. |
|
«Белые ночи» |
«Улица Горчакова» |
45,0 |
11 396 124 |
253 247 |
Нет |
4 квартал 2022 г. |
|
«Испанские кварталы» |
«Ольховая» |
55,5 |
12 455 626 |
224 426 |
Есть |
1 квартал 2024 г. |
|
«Саларьево Парк» |
«Саларьево» |
55,0 |
11 809 490 |
214 718 |
Есть |
3 квартал 2023 г. |
|
«Скандинавия» |
«Коммунарка» |
57,7 |
12 066 026 |
209 117 |
Нет |
2 квартал 2024 г. |
|
«Бунинские луга» |
«Бунинская аллея» |
54,7 |
11 189 869 |
204 568 |
Есть |
4 квартал 2023 г. |
|
«Переделкино Ближнее» |
«Рассказовка» |
65,7 |
13 420 008 |
204 262 |
Есть |
4 квартал 2023 г. |
|
«Новое Внуково» |
«Рассказовка» |
63,3 |
11 659 455 |
184 194 |
Есть |
1 квартал 2023 г. |
|
«Середневский лес» |
«Филатов луг» |
52,7 |
8 922 742 |
169 312 |
Есть |
2 квартал 2023 г. |
|
«Новые Ватутинки» |
«Теплый стан» |
60,3 |
9 949 500 |
165 000 |
Есть |
4 квартал 2024 г. |
Из таблицы видно, что «Новое Внуково» по стоимости квадратного метра занимает одно из последних мест.
Планировки
На продажу выставлены квартиры-студии, одно-, двух-, трех- и четырехкомнатные квартиры площадью от 22,4 до 88,2 кв.м.
Схема кладовых
План 11 этажа секции 1 корпуса 2
План 2 этажа секции 2 корпуса 1
План 11 этажа секции 1 корпуса 10
План 12 этажа секции 1 корпуса 7
План 13 этажа секции 1 корпуса 6
План 14 этажа секции 9 корпуса 9
Планировка студии 22,41
Планировка студии 23,42
Планировка студии 25,26
Планировки студии характерны наличием входной зоны площадью от 3,63 до 4,34 кв.м., совмещенного санузла площадью от 3,78 до 4,44 кв.м. и многофункционального помещения площадью от 16 до 16,3 кв.м.
Планировка однокомнатной квартиры 32,47
Планировка однокомнатной квартиры 34,32
Планировка однокомнатной квартиры 36,55
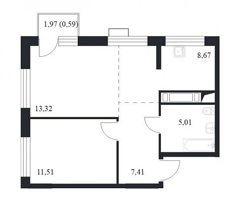
Однокомнатные квартиры располагают входной зоной площадью от 3,36 до 5,32 кв.м., совмещенным санузлом площадью от 3,7 до 3,97 кв.м., кухней площадью от 8,87 до 12,35 кв.м. и спальней площадью от 12,39 до 17,42 кв.м. Встречается гардеробная площадью 2,46 кв.м.
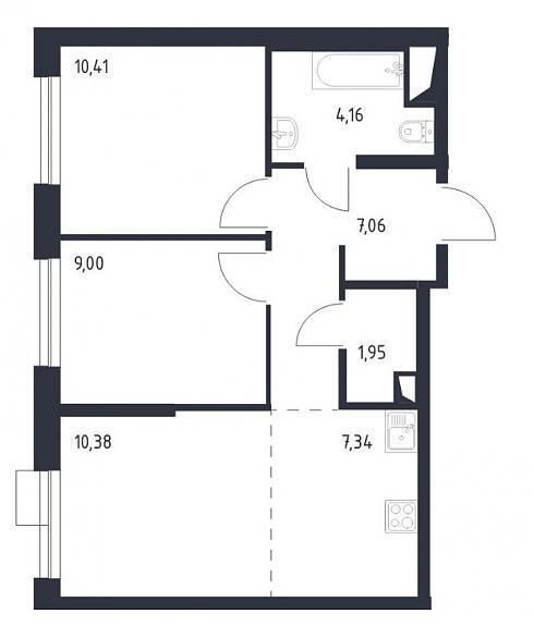
Планировка двухкомнатной квартиры 31,42
Планировка двухкомнатной квартиры 46,51
Планировка двухкомнатной квартиры 62,2
Двухкомнатные квартиры запроектированы в двух форматах: стандартном и евро. В любом варианте имеется входная зона площадью от 3,64 до 11,2 кв.м., совмещенный санузел площадью от 3,68 до 5,01 кв.м. В евроформате находим кухню-гостиную площадью от 14,56 до 22 кв.м. и спальню площадью от 9,36 до 11,57 кв.м. В стандартном формате кухня площадью 17,04 кв.м. и две спальни площадью 11,07 и 12,02 кв.м. В некоторых вариантах планировки запроектирован балкон площадью от 1,97 до 2,06 кв.м., встречается гардеробная или даже две площадью от 2,93 до 3,23 кв.м. Квартиры угловые и распашные, в некоторых комнатах по два или даже три окна.
Планировка трехкомнатной квартиры 49,47
Планировка трехкомнатной квартиры 50,3
Планировка трехкомнатной квартиры 63,07
Трехкомнатные квартиры запроектированы в евроформате. Здесь находим входную зону площадью от 6,83 до 7,98 кв.м., совмещенный или раздельный санузел с площадью помещений от 2,87 до 4,26 кв.м., кухню-гостиную площадью 17,72 до 20,47 кв.м. и две спальни площадью от 9,0 до 13,85 кв.м. Встречается гардеробная площадью от 1,75 до 1,95 кв.м. Окна могут смотреть либо на одну, либо на разные (в том числе противоположные) стороны света. Встречаются спальни с двумя окнами.
Планировка четырехкомнатной квартиры 66,25
Планировка четырехкомнатной квартиры 75,13
Планировка четырехкомнатной квартиры 88,22
Четырехкомнатные квартиры запроектированы в формате евро. Входная зона от 6,99 до 13,89 кв.м., раздельный санузел или два полноценных с площадью помещений от 2,62 до 4,16 кв.м., кухня-гостиная площадью 13,29 до 16,67, три спальни с площадью помещений от 10,32 до 17,86 кв.м. Планировки распашные и угловые.
Как купить
Действия покупателя регламентируются федеральным законом №214-ФЗ. Оформляется договор долевого участия, средства дольщика вносятся на специальный счет эскроу в банке Сбер. За регистрацию договора в госорганах покупатель заплатит 30 000 рублей.
Есть услуга бронирования выбранной квартиры на 14 календарных дней, за это покупатель заплатит 10 000 рублей (эта сумма будет зачтена при окончательном расчете).
Если речь идет о привлечении ипотечного кредита, застройщик может оказать помощь в подборе наиболее выгодных условий, дать совет по выбору банка.
Инфраструктура
Инфраструктуры на объекте пока никакой нет. Новоселы смогут посещать либо находящиеся в шаговой доступности, небольшие магазинчики в поселке Крекшино (за железной дорогой), либо уже на автомобиле добираться до крупных торговых центров «Саларис», «Леруа Мерлен» «Внуково Аутлет» и «Метро» на Киевском шоссе.
Медицинские и образовательные учреждения также не рядом, а в деревнях Кокошкино, Марушкино, Давыдково , Толстопальцево.
Какой-либо значимой зеленой зоны рядом с новостройкой нет. Валуевский и Ульяновский лесопарки, о которых упоминается в рекламных проспектах расположены по прямой 9,5 и 13 километрах соответственно.
Неподалеку расположен аэропорт Внуково. И если для путешественников это плюс, то для проживания в некоторой степени минус, поскольку самолеты создают шум и загрязняют атмосферу.
Заключение
У новостройки много несомненных плюсов. Важнейшее достоинство - московская прописка. Это решающим образом влияет на инвестиционную привлекательность новостройки. Также примем во внимание следующее:
• качественное (с точки зрения технологии) строительство
• надежный застройщик
• благоприятный с экологической точки зрения район с серьезной перспективой развития
• неплохая для бывшего пригорода транспортная доступность
• близость коммерческих предприятий складского характера (там можно найти арендаторов и работу для себя)
Транспортная составляющая улучшится с открытием станции метро рядом с аэропортом Внуково (планируется на 2022 год).
Но есть и недостатки. Это, в первую очередь, отсутствие инфраструктуры на начальном этапе строительства и удаленность от метро.
И не исключено, что в мини-городе будет немного больше жителей, чем надо для комфортного проживания вдали от мегаполиса.
Автор: Андрей Петров
Специально для Квартирного контроля

Обсуждение ЖК «Новое Внуково»: мини-город на юго-западе Новой Москвы