В столичном районе Покровское-Стрешнево, совсем рядом с Волоколамским шоссе, ГК ФСК приступил к возведению своего нового проекта – ЖК «Движение Тушино». Речь в данной статье пойдет не о жилом квартале, а об апарт-комплексе, в трех монолитных корпусах которого, достигающих в высоту 13-22 этажей, разместятся 1386 апартаментов. Кроме того, тут запроектированы 209 кладовых и 320 машиномест.
Предварительная разведка
Разбираем сайт проекта
Официальная страница ЖК «Движение Тушино», расположенная на сайте девелопера – ГК ФСК (https://fsk.ru/dvizhenie), довольно лаконичная. Однако всю необходимую информацию тут можно найти: есть и проектная документация, и генплан, и возможность подбора апартаментов.
Таблица с результатами подбора сортируется по любому из параметров. Наведя курсор на планировку, можно рассмотреть ее в развернутом виде.
Понравившиеся апартаменты можно определить в «закладки», что позволит быстро сравнивать различные варианты.
Отдельного упоминания заслуживает вкладка «Преимущества апартаментов»: тут подробно разъясняются юридические права собственников такой недвижимости, а также приведено сравнение коммунальных платежей и налогов – для квартир и апартаментов.
ЖК в цифрах:
Корпус 1.2: 2 секции, 22 этажа, 651 апартамент, 36 кладовых.
Корпус 3: 1 секция, 13 этажей, 168 апартаментов, 49 кладовых.
Корпус 4: 2 секции, 22 этажа, 567 апартаментов, 123 кладовых.
В подземном паркинге планируется организовать 320 машиномест.
РВЭ для всех корпусов планируется получить во II квартале 2022 года.
Девелопер – ГК ФСК, Застройщик – ООО «Стадион Спартак». Разрешение на строительство действительно до 27 декабря 2022 года. Участок с кадастровым номером 77:08:0015001:1792 (50 062 кв. м.) принадлежит Застройщику на правах аренды до 19.04.2042.
Разведка боем
Как добраться
Расстояние от ЖК до Садового кольца – 12 км, до МКАД – 2,9 км. Если вы едете на автомобиле, то удобнее всего воспользоваться Волоколамским шоссе, от него до новостройки всего метров сто. Если в ваших планах посетить офис продаж, то стоит ориентироваться на ЖК «Город на реке Тушино 2018», офис расположен в одном из корпусов первой очереди. От него до стройплощадки можно дойти за пару минут. Впрочем, к офису продаж я еще вернусь.
У тех, кто перемещается на общественном транспорте, довольно богатый выбор маршрутов. Можно минут за пять дойти до стройплощадки от ст. м. «Спартак», либо минут за восемь от метро «Тушинская» (путь чуть длиннее, так как придется пересечь Волоколамское шоссе по подземному переходу). Можно также воспользоваться и электричкой. Платформа Тушино от комплекса минутах в десяти неспешным шагом. Но… обо всем по порядку.
Знакомство с окрестностями
Самое ближайшее окружение рассматриваемого ЖК составляют три объекта: станция метрополитена и стадион «Спартак», а также ЖК «Город на реке Тушино 2018».
От станции «Спартак» до стройплощадки, напомню, можно дошагать минут за пять.
Инфраструктуры у метро пока нет ровным счетом никакой: только поля, площадки для строительства да дороги.
Поодаль, за забором, возвышаются корпуса «Города на реке Тушино 2018», кстати, от того же Застройщика, что возводит и «Движение Тушино».
Рядом с метро находится стадион, именно на это современное сооружение и статую древнеримского гладиатора Спартака будут «смотреть» окна некоторых апартаментов новостройки. Вид что надо!
В вышеупомянутом и самом ближайшем к стройплощадке населенном квартале с инфраструктурой пока негусто, открыт всего один супермаркет. Впрочем, это совсем не повод расстраиваться: за три года, что будет строиться «Движение Тушино», тут наверняка появятся масса магазинов, а также отделения банков, службы быта и прочие «признаки цивилизации».
Непосредственно со стройплощадкой граничит автозаправочная станция. Ее, кстати, переносить никуда не планируется – заправка так и останется рядом с корпусами апарт-комплекса.
На самой стройплощадке пока идут работы по подготовке котлована: ездят грузовики, стоят несколько экскаваторов и кранов, лежат отвалы грунта.
На этом фото можно оценить близость будущих домов к стадиону.
Автозаправка располагается примерно посередине между будущим комплексом и эстакадой Волоколамки. До шоссе, таким образом, буквально рукой подать.
По другую сторону автомагистрали расположен давно построенный и заселенный район Тушино, и здесь можно найти все (или почти все) инфраструктурные объекты, которые нужны для комфортной жизни. Есть тут, например, школа с дошкольным отделением и пара детских садиков.
Есть небольшой скверик «с военным уклоном» возле здания ДОСААФ – мальчишкам он наверняка понравится.
Поблизости расположены Московский государственный юридический университет им. Кутафина и пожарная часть.
Здесь же есть платформа электрички и автостанция «Тушино».
Ну а возле самой ст. м. «Тушинская» настоящий торговый анклав: десятки магазинов и магазинчиков, цирюльни, аптеки, отделения сотовой связи, банки и закусочные.
Другими словами, вся торговая инфраструктура района расположена сейчас на противоположной от новостройки стороне Волоколамского шоссе. Впрочем, как там в советском стихотворении говорилось? «Через четыре года здесь будет город-сад?». Настало время заглянуть в офис продаж и узнать, что же будет построено в рамках ЖК «Движение Тушино» к 2022 году. «На все про все» у застройщика должно уйти чуть меньше трех лет.
В офисе
Офис продаж, как я уже упоминала, располагается на первом этаже одного из корпусов ЖК «Город на реке Тушино 2018», рядом с гастрономом. Найти офис нетрудно: к нему направляют оранжевые указатели-велосипеды.
В офисе вас снабдят буклетом с планировками, ответят на все вопросы и покажут макет будущего апарт-комплекса.
Макет, кстати, интерактивный: если вас заинтересовал какой-либо апартамент, менеджер может «зажечь» в нем окна, чтобы вы могли оценить расположение в корпусе и предполагаемый вид из окна.
Итак, по итогам визита в офис продаж мне удалось узнать следующее. Всего в ЖК будет три монолитных корпуса, с вентилируемыми фасадами и отделкой керамогранитными и фиброцементными плитами.
Корпуса 1.2 и 4 – 22-этажные, корпус 3 – высотой в 13 этажей. Получение РВЭ всех корпусов запланировано на II квартал 2022 года, выдача ключей должна закончиться до конца декабря того же года. В середине сентября 2019-го продажи апартаментов шли только в корпусах 1.2 и 4, третий корпус планируют вывести «на рынок» позже. Я так поняла, он считается несколько более «выгодным» с точки зрения продаж, потому что окна в этом корпусе будут «смотреть» прямо на стадион.
Сама территория ЖК будет огорожена, с видеонаблюдением, планируется реализовать концепцию «двор без машин». В каждом подъезде предусмотрено место для консьержа и колясочная комната. Мусоропроводы не предполагаются, на первых этажах будут обустроены вентилируемые помещения с контейнерами для отходов. Первые этажи будут отданы под коммерческие цели. На минус первом этаже разместятся кладовые помещения и парковочные места с прямым доступом на лифте.
Что касается юридического аспекта, то с апартаментами дело обстоит вот каким образом. Апартамент – это нежилое помещение с возможностью временной регистрации, на срок до 5 лет. У апартаментов, как правило, ниже кадастровая стоимость (с которой платится налог на недвижимость), но выше сама ставка налога и коммунальные платежи. Об этом подробно рассказывается на сайте, кроме того, в офисе вы можете получить «памятку», где перечислены все особенности апартаментов.
Здания с апартаментами не считаются жилым фондом, так что к ним Застройщик не получает «обременения» в виде обязательных инфраструктурных объектов, таких как детские сады и школы. Кроме того, при строительстве таких зданий действуют несколько иные нормативы – вспомним, например, заправочную станцию, которая располагается прямо перед стройплощадкой.
Что касается социальной инфраструктуры, то жителям данной новостройки предлагается пользоваться садиками и школами либо в уже «готовом» районе Тушино, либо в ЖК «Город на реке». К тому времени, когда апарт-комплекс получит РВЭ, там уже должны открыться три садика и школа. Торговая инфраструктура будет представлена большим ТЦ, который расположится буквально в сотне метров от новостройки. Построить его планируется примерно к 2024 году.
Что предлагают
Апартаменты передаются без отделки. В помещениях не будет ни стяжки, ни межкомнатных перегородок. Будут установлены двухкамерные стеклопакеты, радиаторы отопления, металлическая входная дверь, выполнена разводка электрики до щитка, сантехники – до стояка. Окна увеличенного размера (подоконник в 80 см от пола, почти до потолка). Высота потолков без стяжки – 2.87 м, высота первого этажа – от 4.2 м.
Стоимость
Цены на апартаменты в ЖК «Движение Тушино» в сентябре 2019 года выглядели следующим образом:
Табл. 1
|
Апартамент |
Площадь, кв. м |
Цена, млн руб. |
||
|
От |
До |
От |
До |
|
|
1-к |
34,1 |
39,1 |
5,05 |
5,85 |
|
2-к |
51,7 |
55,1 |
6,95 |
7,77 |
|
3-к |
69,1 |
77,0 |
9,04 |
10,30 |
К сравнению в данной локации могу предложить только жилые проекты:
Табл. 2
|
Комплекс |
Статус помещения |
Площадь, кв. м. |
Цена, млн. руб. |
Материал |
Срок сдачи |
Отделка |
|
Движение Тушино |
Апартамент |
51,9 |
7,14 |
Монолит |
II квартал 2022 |
Нет |
|
Октябрьское поле. Родной город |
Квартира |
56,1 |
12,00 |
Монолит |
IV квартал 2020 |
Нет |
|
Город на реке Тушино 2018 |
Квартира |
50,04 |
10,10 |
Монолит |
II квартал 2020 |
Нет |
|
Мир Митино |
Квартира |
44,8 |
6,86 |
Монолит |
IV квартал 2020 |
Нет |
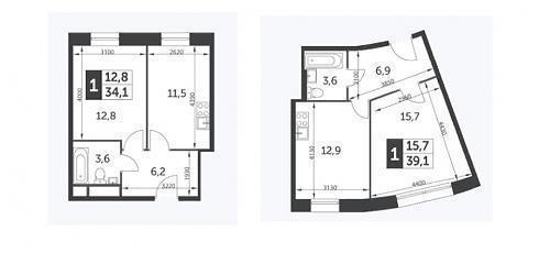
Планировки
На старте продаж выбор апартаментов несколько скудноват. Однако все-таки некоторые варианты, мне показалось, заслуживают внимания. Например, «полукруглые» однокомнатные с большой, почти тринадцатиметровой кухней.
Все представленные двухкомнатные «линейной» планировки, с раздельными санузлами и довольно приличными по площади кухнями.
Трешки предлагаются в двух вариантах, и оба угловые. При этом евро-трехкомнатную легко превратить в «полноценную» трешку: в кухне-гостиной целых три окна! Санузлы в этих апартаментах также раздельные.
Справедливости ради, вариантов планировок на самом деле несколько больше, просто на момент моего визита в офис они еще не поступили продажу. Предлагаю ознакомиться с поэтажными планами.
Число апартаментов на этаже – от девяти до восемнадцати, лифтов на каждую секцию приходится от трех до четырех. У меня есть подозрение, что в часы пик у лифтов могут и «пробки» скапливаться.
Для сравнения представляю вашему вниманию поэтажный план корпуса 3 (который пока в продажу не поступил). 13 этажей, 14 апартаментов на этаж и всего два грузовых лифта. Определенно, лифтов могло бы быть и побольше!
Как купить
Купить апартаменты в ЖК «Движение Тушино» можно следующим образом. Первоначальный этап – бронирование, оно обойдется покупателю в 30 тысяч рублей (эти деньги впоследствии войдут в общую стоимость покупки). Бронь дается на две недели в случае ипотеки, либо на неделю в случае рассрочки или 100% оплаты. После подписания ДДУ покупатель обязан открыть в любом банке аккредитив и внести на него деньги за жилье. После того, как Договор долевого участия будет зарегистрирован в рег. палате, сумма перечисляется Застройщику. Эскроу-счета не используются. Ипотека предоставляется следующими банками:
Существует также возможность рассрочки: при первоначальном взносе от 70% на срок до апреля 2022 года, равными платежами ежемесячно или ежеквартально, без начисления процентов.
В случае 100% оплаты либо ипотеки покупатель может рассчитывать на скидку в 2%. Также можно согласовать скидку (1-2 процента) за быстрый выход на сделку.
Что говорят
На форумах в сети отзывов о ЖК «Движение Тушино» немного, но нашлась довольно любопытная тема на форуме, посвященном «соседу» – «Городу на реке Тушино 2018» (https://tushino2018-forum.ru/). Здесь можно найти обсуждение инфраструктуры района и самые свежие фотографии со стройплощадки апарт-комплекса.
Основные претензии к «Движению Тушино» в сети, насколько я смогла понять, касаются «нежилого» статуса и самого комплекса, и окрестностей.
Действительно, никакой социальной инфраструктуры на территории ЖК не предусмотрено, и в школы, детские сады и поликлиники придется ходить (или ездить) в соседние кварталы. А вот с торговыми точками все не так грустно: во-первых, у ст. м. «Тушинская» магазинов вполне достаточно, во-вторых, лет через пять откроется и большой ТЦ в двух шагах от новостройки.
И в заключение
Что в ЖК «Движение Тушино» может оттолкнуть потенциального покупателя? Близость к Волоколамскому шоссе и автозаправочной станции, отсутствие готовой инфраструктуры рядом с домами, отсутствие в апартаментах балконов и лоджий. Многих, я уверена, смутит «перенаселенность» лестничных площадок, все-таки 11-18 дверей на этаже – аспект, который понравится не каждому. К тому же, хотя сам район Тушино довольно зеленый, до ближайших «прогулочных» мест (набережной Москвы-реки или парка Покровское-Стрешнево) идти или ехать придется километра полтора.
Что в этом ЖК может привлечь? Отличная транспортная доступность, близость двух станций метро, развитая инфраструктура окрестных кварталов, апартаменты с высокими потолками. Не слишком далеко речка, и уж совсем близко – стадион «Спартак». К тому же за три года, пока ЖК «Движение Тушино» будет строиться, ситуация с окрестной инфраструктурой почти наверняка станет значительно лучше. По крайней мере, откроются садики и школа в соседнем ЖК.
В любом случае, с инвестиционной точки зрения, проект этот кажется мне вполне перспективным. Спрос на жилье и «нежилье» в шаговой доступности от метро высоким будет всегда.
Автор: Мария Борискина
Специально для Квартирного контроля

Обсуждение ЖК «Движение Тушино»: апартаменты с видами на «Спартак»