Выбирая квартиру, важно понимать, насколько надежен застройщик вашего жилого комплекса. Брендов много, но вот брендов с историей, уходящей корнями в советское прошлое, мало. А точнее, всего один - это Первый домостроительный комбинат. Новостроек с числительным «первый» в названии в московском регионе уже немало. И все это проекты от группы компаний ФСК, которые строят под брендом «1-й ДСК». Один из последних проектов «1-й Донской» в Ленинском районе Московской области.
Как проехать
Адрес новостройки: Московская область, Ленинский городской округ, деревня Сапроново.
От 27-го километра МКАД на автомобиле до новостройки можно доехать за 9 минут (расстояние 7,2 километра). А от своего дома на автомобиле до Красной площади новосел сможет добраться примерно за час (расстояние 30 километров).
Можно обойтись и без личного автомобиля. Путь до платформы Калинина от Павелецкого вокзала займет около 40 минут.
Потом еще столько же придется идти пешком через трассу М4 Дон и деревню Калиновка. Места живописные, но в распутицу идти пешком не очень комфортно.
От станций метро «Царицыно», «Аннино», «Домодедовская» примерно за час можно доехать до ЖК на рейсовом автобусе.
Что строят
Жилой комплекс, состоящий из девяти корпусов переменной этажности класса комфорт-плюс, строят на земельном участке площадью 26 гектаров. Технология строительства панельная, класс энергоэффективности зданий В и В+ (высокий).
Строительство разбито на три очереди и должно закончиться в 2028 году.
• Первая очередь — корпуса №№ 1 и 2
• Вторая очередь — корпус № 4
• Третья очередь — корпус № 3 и 5
Кроме жилья здесь построят отдельно стоящий паркинг на 500 мест, два детских сада на 300 и 350 мест и школу на 1350 мест, а также станцию скорой помощи. Образовательные учреждения будут муниципальными.
В настоящее время в продажу выведены квартиры в корпусах №№ 1, 2, 3, 4 и 5.
Фасады разработаны испанским бюро Citythinking. Они представляют собой вентилируемые системы с минераловатным утеплителем, отделанные керамической плиткой в теплой цветовой гамме. В квартирах запроектированы лоджии, на фасаде отведены места для установки внешних блоков кондиционеров.
Входные группы с панорамным остеклением с двумя входами обустроят на уровне земли. Предусмотрено место для работы консъержа, будет гостевой санузел, колясочные, велосипедные и лапомойки для домашних животных.
Помещения на первых этажах площадью от 33 до 165 кв.м. и высотой потолков от 4,13 до 5,25 метра займут коммерсанты.
В зданиях от 3 до6секций,на одном этаже в секции от 7до 11 квартир. В секциях установят по 2 или 3 лифта грузоподъемностью 1000, 630 или 400 килограммов. Лифты смогут опускаться на минус первый этаж. В подземном этаже обустроят кладовые площадью от 2,7 до 6,1 кв.м.
Для хранения автотранспорта предусмотрен четырехэтажный наземный паркинг на 500 машиномест.
Благоустройство дворовой территории проектировали в бюро MontDesign. К услугам резидентов в закрытом для машин дворе будут организованы зоны для пешеходных прогулок, занятий спортом и детских игр, а также зоны выгулки животных.
Территория будет огорожена и поставлена под круглосуточное видеонаблюдение.
Квартиры с высотой потолков от 2,84 - 3,34 метра оснастят металлической дверью, двухкамерными стеклопакетамив профиле ПВХ (на лоджиях - в алюминиевом профиле), установленными в 60 сантиметрах от пола.
Квартиры сдаются с чистовой и предчистовой отделкой, причем для чистовой отделки можно выбрать одно из четырех дизайнерских решений.
Отделка «вайт бокс» включает в себя:
• установлена входная металлическая дверь
• установлены межкомнатные двери
• выровненные стены
• выровненный пол с цементной стяжкой
• разведенная по квартире электрика
• в санузлах выполнена отделка, уложена керамическая плитка, установлены ванна, умывальник, смесители, унитаз, полотенцесушитель
Чистовая отделка это:
• установлена входная металлическая дверь
• установлены межкомнатные двери
• укладка керамогранита в санузлах
• облицовка стен санузлов керамической плиткой.
• установка ванны, умывальника, смесителей, унитаза, полотенцесушителя в санузлах
• укладка кварцвинилового напольного покрытия на кухне, в коридоре и в комнатах
• разводка электрики по квартире
• установка электрощитка, выключателей, розеток, точечных светильников
• монтаж натяжного потолка во всех помещениях
Здания насытят современной инженерией, включая систему «умный дом». С помощью этой системы умный хозяин сможет управлять освещением и бытовыми приборами, связываться с управляющей компанией, дистанционно передавать данные расхода коммунальных ресурсов, получать информацию о протечках и дистанционно останавливать движение воды в квартире.
В таблице приведены технические данные на поступившие в продажу корпуса.
Таблица 1.
|
№№ дома |
Кол-во этажей |
Площ. застр. (кв. м.) |
Кол.секц.
|
Общее кол-во квартир/кладовых/неж. пом. |
Дата выдачи разр. на стр-во |
Окончание срока действия разр. на стр-во |
Предполагаемая дата введения в эксплуатац. |
|
1 |
9-14-21-24-24+1 подз |
2214 |
5 |
486/97/12 |
14.04.2023 г.
|
29.10.2024 г. изменено 28.08.2024 г. на 29.05.2025 г. |
2 квартал 2025 г. |
|
2 |
24-24-24-20-12-6+1 подз |
2650 |
6 |
531/111/17 |
|||
|
3 |
24+1 подз |
7264 |
4 |
943/ 155/142 |
29.08.2024 г. |
17.07.2026 г. |
2 квартал 2027 г. |
|
4 |
25+1 подз |
7236 |
4 |
920/ 145/ 97 |
26.12.2023 г. |
26.06.2026 г. |
4 квартал 2026 г. |
|
5 |
25+1 подз |
6136 |
3 |
782/ 138/ 131 |
30.01.2024 г. |
14.09.2026 г. |
1 квартал 2027 г. |
|
11 |
3+1 подз |
3685 |
- |
-/499/- |
29.03.2024 г. |
29.03.2024 г. изменено 29.05.2024 г. на 29.11.2025 г. |
4 квартал 2026 г. |
В настоящее время на объекте ведутся следующие работы:
• корпус №1 – выполнение работ по благоустройству двора
• корпус №2 – выполнение фасадных работ
• корпус №3 –устройство бетонной подготовки
• корпус №4 – монтаж сборных железобетонных панелей
• корпус №5 – устройство фундаментной плиты
Выдача ключей намечена на следующие даты:
• корпус № 1 - на 31 декабря 2025 года.
• корпус № 2 - на 31 декабря 2025 года
• корпус № 3 - на 30 ноября 2027 года
• корпус № 4 -на 30 июня 2027 года
• корпус № 5 - на 30 сентября 2027 года
• корпус № 11 (парковка)-30 июня 2027 года
Кто строит
Строительство ведется на земельных участках со следующими кадастровыми номерами:
• №1 50:21:0000000:49376
• №2 50:21:0080105:22818
• №3 50:21:0080105:22787
• №4 50:21:0080105:22798
• №5 50:21:0080105:22804
• №11 50:21:0000000:49380
Застройщик ООО «Специализированный застройщик «Столица юга» (коммерческое обозначение «ДСК-1-Донской»), созданное в феврале 2021 года. Земельные участки принадлежат застройщику на правах аренды с правом выкупа и праве собственности. Никакого другого жилищного строительства за три года до подачи проектной декларации компания не вела.
Земельный участок ограничивают:
• с севера - проектируемые жилые дома,
• с востока – улица Калиновая,
• с запада – малоэтажная коттеджная застройка,
• с юга – проектируемой образовательной организацией
Территория расположена в границах полос воздушных подходов аэродромов«Раменское» «Домодедово» и «Остафьево».
Учредитель застройщика ООО «ФСК Девелопмент». Девелопер проекта группа компаний «Финансово-строительная корпорация застройщиков».
ГК ФСК имеет высокий кредитный рейтинг, в зону ее деятельности входят Москва, Санкт-Петербург, Московская, Ленинградская, Калужская области и Краснодарский край.
Жилые комплексы ГК ФСК:
• 1-й Химкинский
• 1-й Измайловский
• 1-й Южный
• 1-й Ясеневский
• 1-й Донской
• 1-й Шереметьевский
• Южная Битца
• 1-й Лермонтовский
• 1-й Ленинградский
Достижения ГК ФСК бесспорны, и для покупателей девелопер всегда остается надежным участником рынка жилой недвижимости. Тем не менее, в истории компании были случаи нарушения обязательств по срокам строительства.
Генподрядчик ООО «Первый Домостроительный комбинат».
Первый домостроительный комбинат работает с 1961 года и является крупнейшим предприятием по производству панельных домов и производству железобетонных конструкций любой конфигурации. В 2016 году «Первый ДСК» стал частью ГК ФСК.
Сайт
Сайт новостройки https://www.dsk1.ru/1-donskoj раскрывает основные особенности проекта.
Начинается просмотр контента с главного – способов покупки. Далее идут окружение, близлежащая инфраструктура, места поблизости.
Есть генеральный план, можно посмотреть видеоролик о проекте и скачать презентацию.
Детально показаны особенности отделки квартир, архитектура зданий, отделка входных групп и благоустройство дворовой территории.
Выбор квартир облегчает поисковая система, настроенная на различные параметры: по метражу, этажу, сроку сдачи, корпусу или цене.
Есть вкладки с документацией проекта, имеется раздел новостей.
Дополнительную информацию можно получить здесь:
https://наш.дом.рф/сервисы/каталог-новостроек/объект/51450?ysclid=m5zmcmc7l9494984447
https://наш.дом.рф/сервисы/каталог-новостроек/объект/51450
https://наш.дом.рф/сервисы/единый-реестр-застройщиков/застройщик/15698
https://vk.com/perviy_donskoy?ysclid=m5zmhsl1v3666028893
https://t.me/s/perviydonskoy
Офис продаж
Офис продаж расположен рядом со строительной площадкой по адресу Московская область, Ленинский городской округ, деревня Сапроново, улица Калиновая, близ дома № 85.
Общаться с менеджерами по продажам можно как очно, так и удаленно, по видеосвязи.
Сколько стоит
В таблице ниже представлены цены на квартиры с разными вариантами отделки.
Таблица 2.
|
Тип квартиры |
Площадь (кв. м) |
Стоимость квартиры (руб.) |
Стоимость одного квадратного метра (руб.) |
|
Студия |
19,6 – 31,5 |
6 368 040 – 9 355 500 |
324 900-297 000 |
|
Однокомнатная |
25,1 – 41,9 |
9 771 430 – 10 722 210 |
389 300-255 900 |
|
Двухкомнатная |
42,9 – 64,4 |
11 196 900 – 16 061 360 |
261 000-249 400 |
|
Трехкомнатная |
61,9 – 84,3 |
15 304 775 – 19 574 460 |
247 250-232 200 |
|
Четырехкомнатная |
87,5 – 109,5 |
19 442 500 – 24 319 950 |
222 200-222 100 |
Из таблицы видно, что средняя цена квадратного метра в новостройке составляет 270 125 рублей. Отметим, что в августе 2023 года этот показатель был равен 141 960 рублям.
В следующей таблице для сравнения приведены цены на двухкомнатные квартиры комфорт-класса с отделкой и без в других строящихся ЖК Ленинского района Подмосковья.
Таблица 3.
|
Название ЖК |
Локация |
Площ. квартир (кв. м.) |
Стоимость квартир (руб.) |
Стоимость одного кв.м. (руб.) |
Отделка |
Срок сдачи |
|
«Первый квартал» |
Д. Сапроново |
96,7 |
19 310 000 |
199 689 |
Есть |
1 квартал 2026г. |
|
«Южная Битца» |
П. Булатниковское |
59,6 |
15 692 680 |
263 300 |
Есть |
2 квартал 2026 г. |
|
«1-й Донской» |
Сапроново |
42,9 |
11 196 900 |
261 000 |
Есть |
2 квартал 2025 г. |
|
«Пригород Лесное» |
Д. Мисайлово |
57,41 |
10 965 807 |
191 008 |
Есть |
4 квартал 2025 г. |
|
«Томилинский бульвар» |
Котельники |
48,7 |
8 692 950 |
178 500 |
Есть |
2 квартал 2026 г. |
|
«Восточное Бутово» |
Булатниковское |
49,1 |
8 612 581 |
175 408 |
Есть |
3 квартал 2025 г. |
|
«Видный берег-2» |
Д. Сапроново |
52,3 |
7 829 712 |
149 707 |
Нет |
2 квартал 2026 г. |
|
«Южная долина» |
Д Мещерино |
51,0 |
7 320 000 |
143 529 |
Есть |
2 квартал 2026 г. |
В данном рейтинге проект входит в тройку лидеров.
Планировки
К продаже предлагаются квартиры-студии, одно-, двух-, трех- и четырехкомнатные квартиры площадью от 19,6 до 109,5 кв. м.
План 3 этажа 4 секции 4 корпуса
План 4 этажа 1 секции 3 корпуса
План 10 этажа 1 секции 5 корпуса
План 17 этажа 1 секции 4 корпуса
План 19 этажа 2 секции 4 корпуса
План 20 этажа 1 секции 2 корпуса
План 22 этажа 4 секции 1 корпуса
Планировка студии 19,6
Планировка студии 25,6
Планировка студии 31,5
Планировка студий предусматривает входную зону площадью от 3,4 до 4,4 кв.м., совмещенный санузел площадью от 2,3 до 3,3 кв.м., универсальное помещение площадью от 13,9 до 24,7 кв.м.
Планировка однокомнатной квартиры 25,1
Планировка однокомнатной квартиры 33,5
Планировка однокомнатной квартиры 41,9
Однокомнатные квартиры располагают входной зоной площадью от 3,21 до 6,9 кв.м., совмещенным санузлом площадью от 3,2 до 3,5 кв.м., кухней площадью от 6,9 до 13,4 кв.м. и спальней площадью от 10,3 до 16,0 кв.м. Имеются лоджии площадью от 2,5 до 3,1 кв.м., встречаются гардеробные площадью 2,2 кв.м.
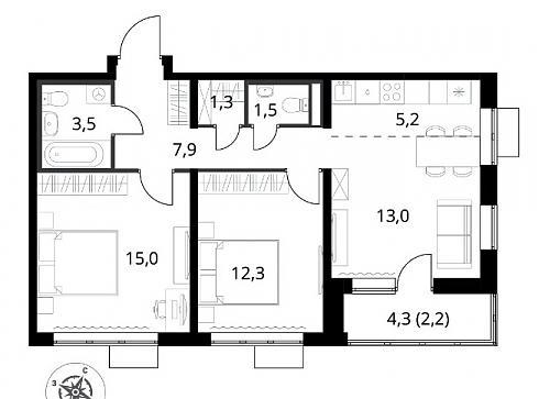
Планировка двухкомнатной квартиры 42,9
Планировка двухкомнатной квартиры 50,8
Планировка двухкомнатной квартиры 64,4
Двухкомнатные квартиры оснащены входной зоной площадью от 5,9 до 7,7 кв.м., одним или двумя санузлами с площадью помещений от 1,4 до 3,4 кв.м., кухней площадью от 20,1 до 22,6 кв.м. в евровариантах планировок и 15,7 кв.м. в классике. Также есть одна или две спальни площадью от 12,2 до 17,4 кв.м. и еще лоджия площадью от 2,9 до 3,5 кв.м., встречается гардеробная площадью 2,4 кв.м. Расположение окон одно- и двухстороннее.
Планировка трехкомнатной квартиры 61,9
Планировка трехкомнатной квартиры 73,1
Планировка трехкомнатной квартиры 84,3
Трехкомнатные квартиры оснащены входной зоной площадью от 7,9 до 14,9 кв.м., двумя или тремя санузлами с площадью помещений от 1,4 до 3,5 кв.м., кухней площадью 14,4 кв.м. и кухней-гостиной в евро вариантах площадью от 18,2 до 19,4 кв.м., двумя или тремя спальнями площадью от 10,7 до 20,3 кв.м. Встречается лоджия площадью от 3,8 до 4,3 кв.м. и гардеробная площадью от 1,3 до 3,2 кв.м. Расположение окон одностороннее, двухстороннее и угловое.
Планировка четырехкомнатной квартиры 87,5
Планировка четырехкомнатной квартиры 99,7
Планировка четырехкомнатной квартиры 109,5
Четырехкомнатные квартиры наделены входной зоной площадью от 9,8 до 13,7 кв.м., тремя санузлами с площадью помещений от 1,4 до 4,1 кв.м., кухней площадью от 14,2 до 15,7 кв.м. в классическом формате и 27 кв.м. в евроварианте планировки, тремя или четырьмя спальнями площадью от 10,0 до 20,3 кв.м. Имеется лоджия площадью от 3,1 до 3,6 кв.м., встречается гардеробная площадью 1,4 кв.м. Расположение окон угловое и двухстороннее. Есть мастер-спальни.
Как купить
Чтобы стать счастливым обладателем квадратных метров в новостройке, необходимо заключить с застройщиком договор долевого участия в строительстве многоквартирного дома и разместить необходимые средства на специальном счете эскроу в Сбербанке России. Так эта процедура прописана в федеральном законе №214-ФЗ.
Далее необходимо зарегистрировать договор в Росреестре и терпеливо ждать окончания строительства. Расходы на регистрацию застройщик берет на себя.
Если вам нужен ипотечный кредит – обратитесь к застройщику, он хорошо известен в банковских кругах и сможет подобрать для вас оптимальный вариант займа. Например, такие:
Семейная ипотека
• Максимальная сумма кредита 12 млн. ₽
• Первоначальный взнос от 15%
• Ставка от 0,11%
Ипотека по двум документам
• Единая анкета для всех банков
• Всего 2 документа для подачи заявки
• Решение банка за 1-2 дня
Военная ипотека
• Выплата ипотечного кредита за счёт государства
• Увеличенная сумма кредита
• Материнский капитал как часть первоначального взноса
Ипотека для многодетных семей
• Электронная регистрация сделки
• Решение банка за 1-2 дня
• Ставка от 0,11%
При 100%-й оплате возможна значительная скидка.
Есть определенные условия для рассрочки, например «Купи сейчас — плати потом», «Живи сейчас — плати потом». Возможна отсрочка оплаты при покупке квартиры в новостройке.
Можно забронировать выбранную квартиру на срок до 10 календарных дней. Услуга может стоить от 30 000 до 50 000 рублей, но эти расходы будут учтены при окончательно расчете. Бронь закрепляет за покупателем квартиру и фиксирует ее стоимость.
Предусмотрены варианты рассрочки. Многие операции по покупки квартиры можно совершить удаленно, без визита в офис продаж.
Инфраструктура
Пока что богатства инфраструктуры рядом с новостройкой не наблюдается.
Транспортную доступность не назовешь высокой, особенно если есть необходимость пользоваться общественным транспортом. Железнодорожная станция далеко, автобусы до метро ходят нечасто и не всегда по расписанию.
Личным транспортом пользоваться более удобно, ведь рядом скоростная трасса М4 Дон и съезд с нее всего в нескольких километрах от ЖК.
Да, рядом есть уже заселенные комплексы со своей инфраструктурой, пока не «вырастет» своя, можно будет пользоваться ею. Но, с другой стороны, это жизненное пространство жилых комплексов «Видный берег» и «Первый квартал», «донские» новоселы могут оказаться там лишними.
С экологической точки зрения это довольно удачная локация, поскольку рядом протекает речка Петелинка, образующая Пуговичинский пруд.
Резюме
Плюсы у данной новостройки, безусловно, есть.
• Современная архитектура
• Близость к лесным зонам и воде
• Известный застройщик
Минусы же связаны, прежде всего, с невысокой транспортной доступностью (речь идет об общественном транспорте).
Автор: Андрей Петров
Специально для Квартирного контроля

Обсуждение ЖК «1-й Донской»: сначала было ДСК